Version: 8.23.0Navigation überspringen

6 Büro-/Praxisflächen mieten in Oldenburg Eversten

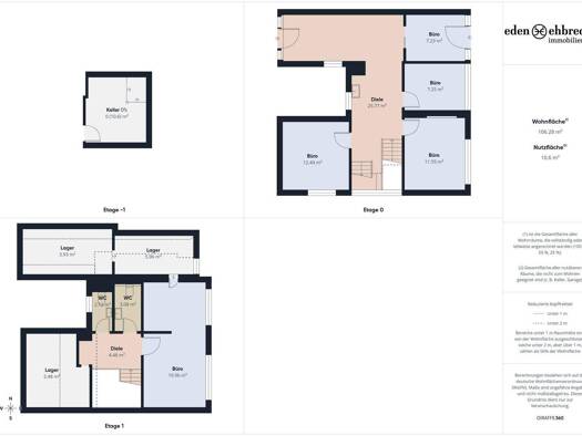
Bürofläche zur Miete provisionsfrei 1.550 € 4 Zimmer 130 m² Bürofläche Edewechter Landstraße 146 Eversten Oldenburg 26131
1.550 €
Nettomiete zzgl. Nebenkosten
Bürofläche zur Miete · provisionsfrei
4 Zimmer
·
130 m² Bürofläche
Edewechter Landstraße 146, Eversten, Oldenburg (26131)
Modernes Bürohaus , hochwertig ausgestattete mit 4 Räumen + D-WC+H-WC, mit großer Terrasse. Das Objekt zeichnet sich durch klare Formen, eine schnörkellose Architektur und die Verwendung hochwertiger...
Immowelt logo
Bürofläche zur Miete provisionsfrei 1.250 € 4 Zimmer 112,9 m² Bürofläche Edewechter Landstraße 146 Eversten Oldenburg 26131
1.250 €
Nettomiete zzgl. Nebenkosten
Bürofläche zur Miete · provisionsfrei
4 Zimmer
·
112,9 m² Bürofläche
Edewechter Landstraße 146, Eversten, Oldenburg (26131)
Modernes Bürohaus , hochwertig ausgestattete 3 / 4 Räume mit Dachterrasse. Das Objekt zeichnet sich durch klare Formen, eine schnörkellose Architektur und die Verwendung hochwertiger Materialien aus....
Bürofläche zur Miete 1.200 € 3 Zimmer 102,5 m² Bürofläche Edewechter Landstr. 146 Eversten Oldenburg 26131
1.200 €
Nettomiete zzgl. Nebenkosten
Bürofläche zur Miete
3 Zimmer
·
102,5 m² Bürofläche
Edewechter Landstr. 146, Eversten, Oldenburg (26131)
Das Objekt zeichnet sich durch klare Formen, eine schnörkellose Architektur und die Verwendung hochwertiger Materialien aus. Die Hausoptik strahlt Wärme und Behaglichkeit aus und bietet insgesamt 6 E...
Bürofläche zur Miete 1.720 € 171 m² Bürofläche Eversten Oldenburg 26122
1.720 €
Nettomiete
Bürofläche zur Miete
171 m² Bürofläche
Eversten, Oldenburg (26122)
**Kein Energieausweis erforderlich, da denkmalgeschützt.** In zentraler Lage von Oldenburg stehen attraktive, repräsentative Büroräume zur Verfügung, die durch eine großzügige Raumaufteilung, Funktio...
BALKOW Immobilien GmbH
Bürofläche zur Miete 400 € 1 Zimmer 12 m² Bürofläche Eversten Oldenburg 26131
400 €
Warmmiete
Bürofläche zur Miete
1 Zimmer
·
12 m² Bürofläche
Eversten, Oldenburg (26131)
Er werden neue Mieter für insgesamt 4 Einzelbüros gesucht. Bisher waren die Räumlichkeiten an einen Steuerberater vermietet. Die Büros befinden sich im 1. Obergeschoss. Über das gepflegte Treppenhaus...
Immowelt logo
BALKOW Immobilien GmbH
Bürofläche zur Miete 450 € 1 Zimmer 17 m² Bürofläche Eversten Oldenburg 26131
450 €
Warmmiete
Bürofläche zur Miete
1 Zimmer
·
17 m² Bürofläche
Eversten, Oldenburg (26131)
Die hier angebotenen Büroraum befindet sich im 1. Obergeschoss in einem repräsentativen Gewerbeobjekt aus dem Jahr 2003. Im rückwärtigen Bereich befindet sich eine Aquaristik- und Teichbaufirma. Des ...
Gesponsert
IWG Management GmbH
Bürofläche zur Miete provisionsfrei 3.849 € 100 m² Bürofläche Stau 123 Innenstadt Oldenburg 26122
3.849 €
Nettomiete zzgl. Nebenkosten
Bürofläche zur Miete · provisionsfrei
100 m² Bürofläche
Stau 123, Innenstadt, Oldenburg (26122)
Großraumbüros für 15 Personen. Verfügbar zu flexiblen Bedingungen, damit Sie mehr Fläche dazubuchen oder bei Bedarf den Standort wechseln können. Verhelfen Sie Ihrem Unternehmen an diesem erstklassig...
Gesponsert
Bürosuche sharednc.com
Bürosuche sharednc.com
Bürofläche zur Miete provisionsfrei 708 € 12 m² Bürofläche Stau Innenstadt Oldenburg (Oldb) 26122
708 €
Warmmiete
Bürofläche zur Miete · provisionsfrei
12 m² Bürofläche
Stau, Innenstadt, Oldenburg (Oldb) (26122)
(Objekt-Nr.: 223773 UM) Objektkategorie: Abgeschlossener Büroraum Titel des Angebots: Büroraum XS ab ***Flexible Konditionen*** Mindestlaufzeit: 1 Monat Kündigungsfrist: 30 Tage zum Monatsende Verfüg...
Weitere Ergebnisse in der Nähe
Entdecke weitere Ergebnisse in der Umgebung von Eversten
Büro zur Miete 980 € 81 m² Bürofläche Innenstadt Oldenburg 26121
980 €
Nettomiete zzgl. Nebenkosten
Büro zur Miete
81 m² Bürofläche
Innenstadt, Oldenburg (26121)
Baudenkmal, die Fläche befindet sich im Erdgeschoss.
Bürofläche zur Miete 145 m² Bürofläche Bloherfelder Str. 8 b Bloherfelde Oldenburg 26129
C
Mietkosten auf Anfrage
Bürofläche zur Miete
145 m² Bürofläche
Bloherfelder Str. 8 b, Bloherfelde, Oldenburg (26129)
Nutzen Sie jetzt die Gelegenheit und sichern Sie sich eine Gewerbefläche bis zu 150,00 qm in dem Neubau - Wohn und Geschäftshaus - Alte Molkerei in Oldenburg! In dem Neubau Das neu errichtete Gebaude...
Privat vom Eigentümer
Praxis zur Miete provisionsfrei 1.980 € 215 m² Bürofläche Meinardusstraße 1 Innenstadt Oldenburg (Oldenburg) 26122
1.980 €
Nettomiete
Praxis zur Miete · provisionsfrei
215 m² Bürofläche
Meinardusstraße 1, Innenstadt, Oldenburg (Oldenburg) (26122)
Zur Neuvermietung steht eine attraktive Gewerbefläche in einem zentral gelegenen, stadtbekannten Praxishaus. Die hellen und universell nutzbaren Räumlichkeiten umfassen ebenerdig 8 Behandlungs-/Bespr...
Praxisfläche zur Miete 1.350 € 3 Zimmer Innenstadt Oldenburg 26121
1.350 €
Nettomiete
Praxisfläche zur Miete
3 Zimmer
Innenstadt, Oldenburg (26121)
Attraktive Büro- oder Praxisfläche im beliebten Haareneschviertel von Oldenburg! Nutzen Sie die Gelegenheit und sichern Sie sich diese stilvoll kernsanierte Gewerbefläche im charmanten Haareneschvier...
Herr Markus Berlik
Bürofläche zur Miete - Erstbezug 1.079 € 72 m² Bürofläche Bloherfelde Oldenburg 26129
1.079 €
Nettomiete zzgl. Nebenkosten
Bürofläche zur Miete - Erstbezug
72 m² Bürofläche
Bloherfelde, Oldenburg (26129)
Objektbeschreibung Zur Vermietung steht eine moderne Büroeinheit im Erstbezug mit einer Gesamtfläche von ca. 72 m². Die Fläche befindet sich in einem hochwertigen Neubau, wurde barrierefrei gestaltet...
Sie sind auf der Suche nach besonderen Praxisflächen oder Büroflächen im Oldenburger Innenstadtbereich? Sie suchen etwas mit Historie, Charme und Charakter? Dann ist diese einzigartige Altbaufläche i...
Bürofläche zur Miete provisionsfrei 50 m² Bürofläche teilbar ab 1 m² Innenstadt Oldenburg 26122
Lassen Sie Ihr Unternehmen auf den drei Etagen des erstklassigen Gebäudes florieren. Mit Blick aufs Wasser, sowie den hellen, komplett eingerichteten Büroräumen arbeiten Sie stets konzentriert. Der Z...
Bürofläche zur Miete provisionsfrei 25 m² Bürofläche teilbar ab 1 m² Innenstadt Oldenburg 26122
Lassen Sie Ihr Unternehmen auf den drei Etagen des erstklassigen Gebäudes florieren. Mit Blick aufs Wasser, sowie den hellen, komplett eingerichteten Büroräumen arbeiten Sie stets konzentriert. Der Z...
Bürofläche zur Miete 12,50 € 18 Zimmer 1.177 m² Bürofläche Innenstadt Oldenburg 26122
12,50 €/m²
Bürofläche zur Miete
18 Zimmer
·
1.177 m² Bürofläche
Innenstadt, Oldenburg (26122)
Sie sind auf der Suche nach einem attraktiven und nachhaltigen Standort für Ihr Unternehmen? Sie expandieren? Sie siedeln sich neu in Oldenburg an oder suchen Büroflächen, auf denen Sie Ihre Unterneh...
Bürofläche zur Miete provisionsfrei 300 m² Bürofläche teilbar ab 1 m² Innenstadt Oldenburg 26122
Lassen Sie Ihr Unternehmen auf den drei Etagen des erstklassigen Gebäudes florieren. Mit Blick aufs Wasser, sowie den hellen, komplett eingerichteten Büroräumen arbeiten Sie stets konzentriert. Der Z...
Bürofläche zur Miete provisionsfrei 200 m² Bürofläche teilbar ab 1 m² Innenstadt Oldenburg 26122
Lassen Sie Ihr Unternehmen auf den drei Etagen des erstklassigen Gebäudes florieren. Mit Blick aufs Wasser, sowie den hellen, komplett eingerichteten Büroräumen arbeiten Sie stets konzentriert. Der Z...
Bürokomplex zur Miete provisionsfrei 500 m² Bürofläche teilbar ab 1 m² Innenstadt Oldenburg 26122
Lassen Sie Ihr Unternehmen auf den drei Etagen des erstklassigen Gebäudes florieren. Mit Blick aufs Wasser, sowie den hellen, komplett eingerichteten Büroräumen arbeiten Sie stets konzentriert. Der Z...
Bürofläche zur Miete provisionsfrei 400 m² Bürofläche teilbar ab 1 m² Innenstadt Oldenburg 26122
Lassen Sie Ihr Unternehmen auf den drei Etagen des erstklassigen Gebäudes florieren. Mit Blick aufs Wasser, sowie den hellen, komplett eingerichteten Büroräumen arbeiten Sie stets konzentriert. Der Z...
Bürogebäude zur Miete 950 € 6 Zimmer 146,4 m² Bürofläche Innenstadt Oldenburg 26122
950 €
Nettomiete
Bürogebäude zur Miete
6 Zimmer
·
146,4 m² Bürofläche
Innenstadt, Oldenburg (26122)
Großzügige Bürofläche im 1. Obergeschoss in einem denkmalgeschützten Wohn- und Geschäftshaus aus 1890 in der Fußgängerzone der Oldenburger Innenstadt. Aufgeteilt ist die Gewerbeeinheit, je nach Nutzu...
Privat von Henrike Bernhardt
Praxis zur Miete provisionsfrei 2.250 € 185 m² Bürofläche Innenstadt Oldenburg 26121
2.250 €
Nettomiete zzgl. Nebenkosten
Praxis zur Miete · provisionsfrei
185 m² Bürofläche
Innenstadt, Oldenburg (26121)
Zur Vermietung steht eine außergewöhnliche und geschichtsträchtige Gewerbeeinheit in einem denkmalgeschützten Haus aus dem Jahr 1806. Die Fläche umfasst insgesamt ca. 185 m². Die Immobilie wurde über...
Bürofläche zur Miete provisionsfrei 5.660 m² Bürofläche Innenstadt Oldenburg 26122
Mietkosten auf Anfrage
Bürofläche zur Miete · provisionsfrei
5.660 m² Bürofläche
Innenstadt, Oldenburg (26122)
Die Büroflächen zeichnen sich sowohl durch die Barrierefreiheit als auch durch die Möglichkeit zur flexiblen Raumgestaltung aus.
Bürogebäude zur Miete 1.670 € 3 Zimmer 107,6 m² Bürofläche Innenstadt Oldenburg 26122
1.670 €
Nettomiete
Bürogebäude zur Miete
3 Zimmer
·
107,6 m² Bürofläche
Innenstadt, Oldenburg (26122)
Sie sind auf der Suche nach einer zentralen Bürofläche in attraktiver City-Lage? Dann ist unser Angebot im Oldenburger Lambertihof vielleicht schon genau das Richtige für Sie. Wir vermieten hier eine...
Bürogebäude zur Miete 11,61 € 2 Zimmer 83,6 m² Bürofläche Innenstadt Oldenburg 26122
11,61 €/m²
Bürogebäude zur Miete
2 Zimmer
·
83,6 m² Bürofläche
Innenstadt, Oldenburg (26122)
Sie sind auf der Suche nach einer zentralen Gewerbefläche in attraktiver City-Lage? Dann ist unser Angebot im Oldenburger Lambertihof vielleicht schon genau das Richtige für Sie. Wir vermieten hier e...
Bürofläche zur Miete 10 € 7 Zimmer 282 m² Bürofläche Innenstadt Oldenburg 26122
10 €/m²
Bürofläche zur Miete
7 Zimmer
·
282 m² Bürofläche
Innenstadt, Oldenburg (26122)
///// Wir bieten diese attraktive Fläche in unmittelbarer Nähe zum Marktplatz zu einem Bestpreis von 10 Euro/m² nettokalt an! ///// Dazu können wir die Fläche nach Bedarf MIT oder auch OHNE Mehrwerts...
Bürofläche zur Miete provisionsfrei 75 m² Bürofläche teilbar ab 1 m² Innenstadt Oldenburg 26122
Lassen Sie Ihr Unternehmen auf den drei Etagen des erstklassigen Gebäudes florieren. Mit Blick aufs Wasser, sowie den hellen, komplett eingerichteten Büroräumen arbeiten Sie stets konzentriert. Der Z...
Sie sind auf der Suche nach exklusiven und einzigartigen Gewerbeflächen in der Oldenburger Innenstadt? Sie suchen Büroflächen oder Praxisflächen, die nicht der typischen Norm entsprechen und Ihren ga...
Privat von Helge Heiner
Praxis zur Miete provisionsfrei 2.599 € 236 m² Bürofläche Bremer Str. 12 Osternburg Oldenburg 26135
2.599 €
Nettomiete zzgl. Nebenkosten
Praxis zur Miete · provisionsfrei
236 m² Bürofläche
Bremer Str. 12, Osternburg, Oldenburg (26135)
Markant sichtbares EG-Büro mit Vollausstattung und 5-7 Stellplätzen am Anfang der Bremer Str. in Oldenburg Highlights: Vollausstattung: - Decken-Klimaanlagen in allen Büro-Bereichen - professionelle ...
Bürogebäude zur Miete 1.550 € 5 Zimmer 175 m² Bürofläche Innenstadt Oldenburg 26122
1.550 €
Nettomiete
Bürogebäude zur Miete
5 Zimmer
·
175 m² Bürofläche
Innenstadt, Oldenburg (26122)
Zentral und lichtdurchflutet- diese Bürofläche im Herzen Oldenburgs bietet den perfekten Rahmen für produktives Arbeiten. Die hier angebotene Bürofläche mit einer Nutzfläche von ca. 175?m² befindet s...
BALKOW Immobilien GmbH
Bürofläche zur Miete 750 € Innenstadt Oldenburg 26122
750 €
Nettomiete zzgl. Nebenkosten
Bürofläche zur Miete
 
Innenstadt, Oldenburg (26122)
Diese attraktive Bürofläche überzeugt durch eine Vielzahl von Merkmalen, die Komfort und Funktionalität miteinander vereinen. Die helle und geräumige Gestaltung bietet ideale Bedingungen für produkti...
Wie zufrieden bist du mit dieser Seite (nicht mit den Immobilien selbst)?
  • Immobilie
  • Büro-Praxisfläche zur Miete in Oldenburg Eversten