Version: 8.19.5
Navigation überspringen
Suchen
Neubauprojekte
Gewerbe
Anbieten
Finanzieren
Umziehen
Immobilienpreise
Inserieren ab 0€
immowelt Startseite
Suchen
Mieten & Kaufen
Wohnung mieten
Haus kaufen
Wohnung kaufen
Gewerbeimmobilien
Auslandsimmobilien
Grundstück kaufen
WGs
Renditeobjekte
Zwangsversteigerung
Bauen
Hauskataloge
Musterhäuser
Musterhausparks
Hausanbieter
Fertighäuser
Ratgeber & Leistungen
Mein Profil
Immobilien-Ratgeber
SCHUFA-Auskunft bestellen
Immobilienpreise
Price Map
Hilfe und Beratung
SCHUFA-Auskunft bestellen
Jetzt anfordern
Neubauprojekte
Gewerbe
Gewerbe
Gewerbeimmobilien suchen
Büro und Praxis
Läden und Einzelhandel
Landwirtschaft
Lagerhalle
Gastgewerbe und Hotel
Anbieten
Für private Anbieter
Eigentümer-Services
Inserieren ab 0€
Kostenlos vermieten
Wohnung vermieten
Haus verkaufen
Immobilienbewertung
Makler finden
Für Immobilienprofis
Leistungen für Profis
Partner werden
Anzeige inserieren
Neu
Weiterbildungsangebot
Tipps für Makler
Ratgeber & Leistungen
Energieausweis erstellen
Immobilien-Ratgeber
Nutzungsdauer-Gutachten
Finanzieren
Finanzierungsangebote
Angebote einholen
Finanzierung berechnen
Finanzierungsrechner
Budgetrechner
Mieten-Kaufen-Rechner
Ratgeber & Service
Baufinanzierung-Ratgeber
Eigenkapital
Anschlussfinanzierung
Umziehen
Umzugskosten
Umzugskosten berechnen
Ratgeber & Service
Umzugs-Tipps
Umzug Checkliste
Tipps zu Umzugskartons
Mietvertrag kündigen
Umzugsangebote
Finde Umzugsunternehmen
Umzugspartner
Immobilienpreise
Preisstatistik
Immobilienpreise
Ratgeber & Service
Immobilie bewerten
Inserieren ab 0€
5 Büro-/Praxisflächen mieten in Köln Lövenich
Bürosuche sharednc.com
1 / 4
420 €
Warmmiete
Bürofläche zur Miete · provisionsfrei
4 m² Bürofläche
Braugasse, Lövenich, Köln (50859)
(Objekt-Nr.: 225314 Y) ***Flexible Konditionen*** Mindestlaufzeit: Keine Kündigungsfrist: 3 Monate zum Monatsende Verfügbar ab: Sofort Ab dem 1. September 2025 bieten wir einen freien Arbeitsplatz, 5...
Immowelt logo
1 / 9
Mietkosten auf Anfrage
Bürofläche zur Miete
190 m² Bürofläche
·
teilbar ab 190 m²
Köln (50859)
Die angebotenen Büroflächen überzeugen durch eine funktionale und zugleich einladende Gestaltung. Großzügige Fensterfronten sorgen für helle, lichtdurchflutete Räume und schaffen eine angenehme Arbei...
1 / 7
11,50 €/m²
Büro zur Miete
190 m² Bürofläche
·
teilbar ab 190 m²
Lövenich, Köln (50859)
1 / 5
11,50 €/m²
Büro zur Miete
200 m² Bürofläche
Lövenich, Köln (50859)
1 / 1
12 €/m²
Bürofläche zur Miete
190 m² Bürofläche
·
teilbar ab 190 m²
Lövenich, Köln (50859)
Die Bürofläche bietet eine moderne und funktionale Ausstattung, die sich ideal für verschiedenste Nutzungskonzepte eignet. Die neu gestalteten WC-Anlagen sowie eine frisch installierte Küchenzeile so...
Immowelt logo
Weitere Ergebnisse in der Nähe
Entdecke weitere Ergebnisse in der Umgebung von Lövenich, 50859
Frau Selina Jauch
1 / 9
Mietkosten auf Anfrage
Büro zur Miete
638 m² Bürofläche
·
teilbar ab 377 m²
Weiden, Köln (50859)
1 / 11
Mietkosten auf Anfrage
Büro zur Miete · provisionsfrei
233,8 m² Bürofläche
·
teilbar ab 104,5 m²
Weiden, Köln (50858)
Das Wohn- und Geschäftsgebäude wurde im Jahr 1973 erbaut. Die Immobilie befindet sich auf der ersten Etage und in einem unsanierten Zustand, was potenzielle Mieter die Möglichkeit bietet, die Räumlic...
Bürosuche sharednc.com
1 / 7
350 €
Warmmiete
Bürofläche zur Miete · provisionsfrei
4 m² Bürofläche
Bunzlauer Straße, Weiden, Köln (50858)
(Objekt-Nr.: 220054 BE) ***Flexible Konditionen*** Mindestlaufzeit: 6 Monate Kündigungsfrist: 30 Tage zum Monatsende Verfügbar ab: Sofort Die Agentur liegt im obersten Stockwerk und verfügt über eine...
1 / 7
Mietkosten auf Anfrage
Bürogebäude zur Miete · provisionsfrei
80 m² Bürofläche
Ostlandstraße 46a, Weiden, Köln (50858)
Das Wohn- und Geschäftsgebäude wurde im Jahr 1973 erbaut. Die Immobilie befindet sich auf der zweiten Etage und in einem unsanierten Zustand, was potenzielle Mieter die Möglichkeit bietet, die Räumli...
1 / 6
Mietkosten auf Anfrage
Bürogebäude zur Miete · provisionsfrei
130 m² Bürofläche
Ostlandstraße 46a, Weiden, Köln (50858)
Das Wohn- und Geschäftsgebäude wurde im Jahr 1973 erbaut. Die Immobilie befindet sich auf der zweiten Etage und befindet sich in einem unsanierten Zustand, was potenzielle Mieter die Möglichkeit biet...
1 / 4
Mietkosten auf Anfrage
Bürogebäude zur Miete · provisionsfrei
102,3 m² Bürofläche
Ostlandstraße 46a, Weiden, Köln (50858)
Das Wohn- und Geschäftsgebäude wurde im Jahr 1973 erbaut. Die Immobilie befindet sich auf der zweiten Etage und in einem unsanierten Zustand, was potenzielle Mieter die Möglichkeit bietet, die Räumli...
1 / 4
Mietkosten auf Anfrage
Bürogebäude zur Miete · provisionsfrei
183 m² Bürofläche
Ostlandstraße 46a, Weiden, Köln (50858)
Das Wohn- und Geschäftsgebäude wurde im Jahr 1973 erbaut. Die Immobilie befindet sich auf der ersten Etage und in einem unsanierten Zustand, was potenzielle Mieter die Möglichkeit bietet, die Räumlic...
1 / 7
Mietkosten auf Anfrage
Büro zur Miete · provisionsfrei
80 m² Bürofläche
Ostlandstraße 46a, Weiden, Köln (50858)
Das Wohn- und Geschäftsgebäude wurde im Jahr 1973 erbaut. Die Immobilie befindet sich auf der zweiten Etage und in einem unsanierten Zustand, was potenzielle Mieter die Möglichkeit bietet, die Räumli...
1 / 6
Mietkosten auf Anfrage
Büro zur Miete · provisionsfrei
130 m² Bürofläche
Ostlandstraße 46a, Weiden, Köln (50858)
Das Wohn- und Geschäftsgebäude wurde im Jahr 1973 erbaut. Die Immobilie befindet sich auf der zweiten Etage und befindet sich in einem unsanierten Zustand, was potenzielle Mieter die Möglichkeit biet...
1 / 4
Mietkosten auf Anfrage
Büro zur Miete · provisionsfrei
183 m² Bürofläche
Ostlandstraße 46a, Weiden, Köln (50858)
Das Wohn- und Geschäftsgebäude wurde im Jahr 1973 erbaut. Die Immobilie befindet sich auf der ersten Etage und in einem unsanierten Zustand, was potenzielle Mieter die Möglichkeit bietet, die Räumlic...
1 / 4
Mietkosten auf Anfrage
Büro zur Miete · provisionsfrei
102,3 m² Bürofläche
Ostlandstraße 46a, Weiden, Köln (50858)
Das Wohn- und Geschäftsgebäude wurde im Jahr 1973 erbaut. Die Immobilie befindet sich auf der zweiten Etage und in einem unsanierten Zustand, was potenzielle Mieter die Möglichkeit bietet, die Räumli...
1 / 11
Mietkosten auf Anfrage
Bürogebäude zur Miete · provisionsfrei
233,8 m² Bürofläche
·
teilbar ab 104,5 m²
Köln (50858)
Das Wohn- und Geschäftsgebäude wurde im Jahr 1973 erbaut. Die Immobilie befindet sich auf der ersten Etage und in einem unsanierten Zustand, was potenzielle Mieter die Möglichkeit bietet, die Räumlic...
1 / 20
13,50 €/m²
Bürofläche zur Miete
8.161,6 m² Bürofläche
·
teilbar ab 200 m²
Müngersdorf, Köln (50933)
Das im Jahre 2000 erbaute 7-geschossige Bürohaus verfügt im Erdgeschoss über einen zentralen Empfang. Im 1. Obergeschoss befinden sich aktuell das Mitarbeiterrestaurant sowie die Konferenzräume. Die ...
Herr Julian Mohs
1 / 5
13,50 €/m²
Büro zur Miete
8.520 m² Bürofläche
·
teilbar ab 510 m²
Müngersdorf, Köln (50933)
Bei der Angebotsliegenschaft handelt es sich um ein 7-geschossiges, vollunterkellertes, freistehendes Büro- und Verwaltungsgebäude mit großzügiger Stellplatzversorung.
1 / 3
11,50 €/m²
Büro zur Miete · provisionsfrei
2.324,4 m² Bürofläche
·
teilbar ab 430 m²
Müngersdorf, Köln (50933)
1 / 7
17,50 €/m²
Büro zur Miete · provisionsfrei
548 m² Bürofläche
·
teilbar ab 257 m²
Müngersdorf, Köln-Braunsfeld (50933)
1 / 2
8,50 €/m²
Bürofläche zur Miete · provisionsfrei
255 m² Bürofläche
·
teilbar ab 255 m²
Pulheim (50259)
Die Büroeinheit liegt im 1. OG eines Gewerbeparks in Pulheim. Sie bietet direkten Zugang zu der darunterliegenden Hallenfläche. Die Raumaufteilung ist flexibel. Im Außenbereich befinden sich ausreich...
Herr Alexander Kovacs
1 / 13
13,50 €/m²
Bürofläche zur Miete
5.060 m² Bürofläche
·
teilbar ab 1.243 m²
Köln (50933)
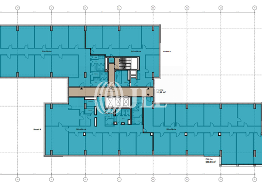
Gestalten Sie hier Ihre neuen Büroflächen im Kölner Westen, unmittelbar am Kölner RheinEnergie Stadion. Auf insgesamt über 5.000 m² haben Sie die Möglichkeit, ab 180 m² unterschiedliche Raumkonzepte ...
1 / 5
14 €/m²
Büro zur Miete
405 m² Bürofläche
·
teilbar ab 147 m²
Junkersdorf, Köln (50858)
Bürosuche sharednc.com
1 / 7
700 €
Warmmiete
Bürofläche zur Miete · provisionsfrei
24 m² Bürofläche
Europaallee, Frechen (50226)
(Objekt-Nr.: 222124 FM) ***Flexible Konditionen*** Mindestlaufzeit: 3 Monate Kündigungsfrist: 3 Monate zum Monatsende Verfügbar ab: Sofort Möbliert: Ja ACHTUNG: Die hier angegebene Fläche von 24qm, e...
Bürosuche sharednc.com
1 / 8
850 €
Warmmiete
Bürofläche zur Miete · provisionsfrei
36 m² Bürofläche
Europaallee, Frechen (50226)
(Objekt-Nr.: 222124 FN) ***Flexible Konditionen*** Mindestlaufzeit: 3 Monate Kündigungsfrist: 3 Monate zum Monatsende Verfügbar ab: Sofort Möbliert: Ja ACHTUNG: Die hier angegebene Fläche von 36qm, e...
1 / 7
550 €
Warmmiete
Bürofläche zur Miete · provisionsfrei
17 m² Bürofläche
Europaallee, Frechen (50226)
(Objekt-Nr.: 222124 FL) ***Flexible Konditionen*** Mindestlaufzeit: 3 Monate Kündigungsfrist: 3 Monate zum Monatsende Verfügbar ab: Sofort Möbliert: Ja ACHTUNG: Die hier angegebene Fläche von 17qm, e...
1 / 5
10,50 €/m²
Büro zur Miete
1.856 m² Bürofläche
·
teilbar ab 253 m²
Müngersdorf, Köln (50933)
1 / 15
15 €/m²
Bürofläche zur Miete
295,5 m² Bürofläche
·
teilbar ab 295,5 m²
Junkersdorf, Köln (50858)
Das Bürogebäude (Baujahr 2003) bietet im 1. Obergeschoss eine zusammenhängende Bürofläche von ca. 295,5 m² sowie ca. 17 m² Archivfläche. Die Fläche ist modern ausgestattet: CAT-6-Verkabelung und Bode...
1 / 5
Neu
9,80 €/m²
Bürofläche zur Miete · provisionsfrei
697 m² Bürofläche
·
teilbar ab 290 m²
Junkersdorf, Köln (50858)
Der 1986 erbaute Gewerbeteil mit diversen Gebäuden bietet flexibel und variabel nutzbare Flächen. Die Flächen werden vor Einzug renoviert. Großraum- oder Zellenbüros sind gut darstellbar, Stellplätze...
1
Wie zufrieden bist du mit dieser Seite (nicht mit den Immobilien selbst)?
Immobilie
Büro-Praxisfläche zur Miete in Köln Lövenich
Immowelt logo