Version: 8.20.1Navigation überspringen
FRANK MUND Immobilienberatung
4 Zimmer  •  142 m²  •  EG

Wohnung zur Miete
1495 €
4 Zimmer  •  142 m²  •  EG

Mit dem Anruf stimme ich der Anruf-Kontakt-Funktion zu.

Moderne Erdgeschoss-Maisonettewohnung mit schönem Garten in historischem Gebäude in MG-Wickrath

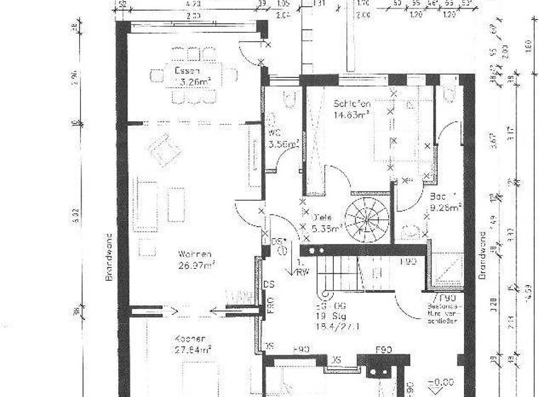
Im Erd-/Untergeschoss der Immobilie befindet sich diese großzügig geschnittene 4-Zimmerwohnung.

Sie bietet ein herrschaftliches Wohn-/Esszimmer mit herrlichem Blick in den Garten. Eine große Küche ist durch eine Doppel-Schiebetür vom Wohnzimmer getrennt. Edle Parkettböden, historische Heizkörperverzierungen, Fensterbänke aus belgischem Granit sowie hohe Decken mit aufwendigen Stuckelementen verleihen dieser Wohnung einen besonderen Charme, den Neubauten nicht erzeugen können.

Angrenzend an das Wohnzimmer befindet sich eine kleine Terrasse. Über eine imposante Treppe erreichen Sie den Garten, für den die Erdgeschossmieter das alleinige Nutzungsrecht erhalten.

Ein großes Schlafzimmer mit eigenem Badezimmer, ein Gäste-WC sowie ein weiteres Gäste-/Arbeitszimmer runden das gelungene Wohnprogramm im Erdgeschoss ab. Über eine innenliegende Wendeltreppe erreichen Sie das Untergeschoss, in dem ein zweites Schlaf-/Arbeitszimmer mit weiterem Duschbad auf Sie wartet.

Merkmale

  • Bezug: nach Absprache
  • Erdgeschoss
  • 2 Stellplätze: 2 Außen-Stellplätze
  • Garten
  • Terrasse
  • Badezimmer: Bad mit Dusche, Bad mit Fenster
  • Bodenbelag: Fliesen, Parkett
  • Denkmalschutz-Afa
- historischer Parkettboden
- moderne Badezimmer mit ebenerdiger Dusche
- hohe Decken
- Garten
- Kellerraum
- viele historische Bauelemente
- Neben dem Gebäude befinden sich insgesamt 7 Stellplätze.

Grundrisse

Grundrisse
1 / 2

Realisiere Dein Projekt

Bausubstanz und Energie

Energieausweis

Ein Energieausweis ist für diesen Gebäudetyp nicht notwendig.
  • Baujahr1900
  • Zustand der Immobilierenoviert / saniert
  • HeizungsartZentralheizung
  • EnergieträgerGas

Mietkosten

Kaltmiete
10,53 €/m²
1.495 €
Nebenkosten
426 €
Heizkosten
in Warmmiete enthalten
Zusätzliche Kosten
Miete pro Stellplatz
75 €
Kaution
4485 €
Weitere Preisinformationen
2 Stellplätze, Miete je: 75,00 EUR

Lage

address-icon
WickrathMönchengladbach-Wickrath (41189)
Der Anbieter hat die genaue Adresse nicht freigegeben
Das Gebäude liegt im Zentrum des südlichen Mönchengladbacher Stadtteils Wickrath. Im Ort finden Sie alle wichtigen Einkaufs-, Sozial- und Infrastruktureinrichtungen des täglichen Bedarfes, wie z. B. Lebensmittel- und Drogeriemärkte, Bank-Filialen, Ärzte und Apotheken.

Wickrath verfügt über eine Grundschule, eine Realschule und mehrere Kindergärten. Gymnasien sind in den Nachbarorten Rheydt, Odenkirchen und Rheindahlen ebenfalls schnell erreichbar.

Direkt vor der Haustür liegen der Schlosspark Wickrath, das Schlossbad Niederrhein sowie die Eventhalle Kunstwerk, überregional bekannt und beliebt, sowie der Niersgrünzug.

Im Grünen finden hier Spaziergänger, Jogger und Walker ideale Voraussetzungen zur Ausübung ihrer Hobbys.

Weitere Informationen

Sonstiges Hinweis: Keine Energieausweispflicht, da denkmalgeschützt. Stichworte Stellplatz vorhanden, Rolladen, Anzahl der Schlafzimmer: 3, Anzahl der Badezimmer: 2, Anzahl der separaten WCs: 1, Anzahl Terrassen: 1, modernisiert: 2021

Weitere Services

Lust auf eine Besichtigung?
Eine Frage zur Immobilie?
Bewerber mit einem persönlichen Anschreiben haben bessere Chancen.
Mit der Nutzung der oben angegebenen Telefonnummer oder durch Klicken auf „Kontaktieren“ akzeptieren Sie die Allgemeinen Nutzungsbedingungen und stimmen der Verwendung unserer Anruf-Kontakt-Funktion, der Sie jederzeit widersprechen können. Weitere Informationen zum Datenschutz

Über den Anbieter

Poststr. 31, 41189 Mönchengladbach
partner badge
10 Jahre Partnerschaft
Herr Fabian Schürhaus
Herr Fabian SchürhausDein Kontakt
Online-ID: 2m8u55l
Referenznummer: 4444
FRANK MUND Immobilienberatung
title
FRANK MUND Immobilienberatung
Bewertung: 4,9 von 5 Sternen
Bewerber mit einem persönlichen Anschreiben haben bessere Chancen.
Mit der Nutzung der oben angegebenen Telefonnummer oder durch Klicken auf „Kontaktieren“ akzeptieren Sie die Allgemeinen Nutzungsbedingungen und stimmen der Verwendung unserer Anruf-Kontakt-Funktion, der Sie jederzeit widersprechen können. Weitere Informationen zum Datenschutz
Wie zufrieden bist du mit dieser Seite (nicht mit der Immobilie selbst)?