Version: 8.20.1Navigation überspringen
24 €
376 m² Bürofläche  •  teilbar ab 176 m²
Immowelt logo

Bürofläche zur Miete • provisionsfrei
24 Euro pro Quadratmeter
24 Euro pro Quadratmeter
24 €/m² undefined
376 m² Bürofläche  •  teilbar ab 176 m²

Mit dem Anruf stimme ich der Anruf-Kontakt-Funktion zu.

Cooles Büro auf Campusgelände

Kurzbeschreibung Cooles Büro auf Campusgelände Objekt Das 2010 komplett sanierte Areal bietet klassische Altbauten und moderne Neubauten mit Büros, Studios und Lofts. Fünf unterschiedliche Gebäudetypen, Hochbeete für die Mieter, viel grüner Außenbereich nach Feng-Shui Richtlinie mit Wasserläufen, Schmetterlingswiese und Obstbäumen unterstreichen die Vielfalt des modernen Campus und seinen individuellen New-Work-Büroflächen. Nicht nur kreative Unternehmen finden hier das optimale Raumkonzept. Die ansprechende Fläche besticht vor allem durch den hochwertigen Ausbau.

Merkmale

  • Bezug: nach Vereinbarung
  • Personenaufzug
  • Keller
  • Raumaufteilung flexibel
- Parkett
- LED-Beleuchtung
- Teeküche
- Unisex WC mit Waschtisch
- Doppelboden für IT-Verkabelung (muss evtl. auf Ihren Bedarf angepasst werden)
- Personenlift
- schöne Raumhöhe
- außen liegender, elektrischer Sonnenschutz
- Provider: Telekom, M-Net, Colt, 1&1, Trusted Networks

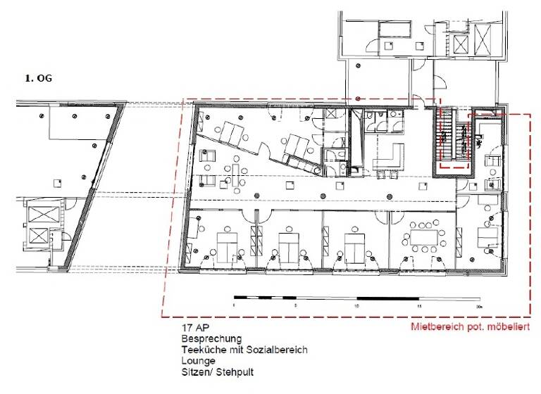
Grundrisse

Grundrisse
1 / 1

Realisiere Dein Projekt

Bausubstanz und Energie

Energieausweis

Endenergieverbrauch (Wärme)

Endenergieverbrauch (Strom)

  • Baujahr2009
  • Zustand der Immobilieneuwertig
Immowelt logo

Mietkosten

Monatliche Miete
24 €/m²
Nebenkosten
4,50 €
Provision für Mieter
provisionsfrei
Kaution
keine Angabe

Lage

address-icon
SchwanthalerhöheMünchen (80339)
Der Anbieter hat die genaue Adresse nicht freigegeben
- zwischen Ridler-, Radlkoferstraße und Theresienhöhe
- U-Bahn Schwanthalerhöhe oder U- und S-Bahn Heimeranplatz
- nur wenige Gehminuten bis zum Einkaufszentrum Theresie mit vielen Geschäften für den täglichen Bedarf
- einige Restaurants und Cafés befinden sich in den Seitenstraßen, ein schöner Biergarten liegt unweit entfernt
- Kita mit speziellen Mitarbeiter-Regelungen auf dem Campus

Weitere Informationen

Sonstiges - Stellplätze in der Tiefgarage können angemietet werden (à € 95,00 zzgl. € 10,00 Nebenkosten und gesetzl MwSt.) sowie E-Charger für Autos und E-Bikes
- zur Mietfläche kommen anteilige Verkehrswege sowie Funktionsflächen von ca. 74 m² hinzu und werden zu 8,50 €/m² mit berechnet
- Gewerbesteuerhebesatz von 490%
- ein Energieverbrauchsausweis liegt vor, der Verbrauchskennwert für Wärme beträgt 72,2 kWh/(m²*a) und für Strom 25,2 kWh/(m²*a), wesentlicher Energieträger für die Heizung des Gebäudes ist Fernwärme Stichworte Gesamtfläche: 376,00 m²

Weitere Services

Lust auf eine Besichtigung?
Eine Frage zur Immobilie?
Nachricht hinzufügen
Mit der Nutzung der oben angegebenen Telefonnummer oder durch Klicken auf „Kontaktieren“ akzeptieren Sie die Allgemeinen Nutzungsbedingungen und stimmen der Verwendung unserer Anruf-Kontakt-Funktion, der Sie jederzeit widersprechen können. Weitere Informationen zum Datenschutz

Über den Anbieter

Breitwieser Roth GmbH
Innere Wiener Str. 7b, 81667 München
partner badge
6 Jahre Partnerschaft
Online-ID: 2e8f35e
Referenznummer: 10929
Breitwieser Roth GmbH
Breitwieser Roth GmbH
Bewertung: 5 von 5 Sternen
Nachricht hinzufügen
Mit der Nutzung der oben angegebenen Telefonnummer oder durch Klicken auf „Kontaktieren“ akzeptieren Sie die Allgemeinen Nutzungsbedingungen und stimmen der Verwendung unserer Anruf-Kontakt-Funktion, der Sie jederzeit widersprechen können. Weitere Informationen zum Datenschutz
Wie zufrieden bist du mit dieser Seite (nicht mit der Immobilie selbst)?