Version: 8.22.4Navigation überspringen
Sparkasse Tauberfranken
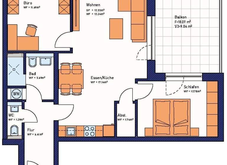
3 Zimmer  •  78,2 m²

Wohnung zum Kauf - Neubau • provisionsfrei
339775 €
4.344 €/m²
3 Zimmer  •  78,2 m²

Mit dem Anruf stimme ich der Anruf-Kontakt-Funktion zu.

Neubauhighlight in Weikersheim - zentral, energieeffizient & förderfähig!

Im attraktiven Wohnquartier "An den Lucianwiesen" startet der zweite Bauabschnitt. Nach dem erfolgreichen Abschluss des ersten Bauabschnitts entstehen nun weitere 27 moderne Neubauwohnungen in einer der begehrtesten Wohnlagen Weikersheims. Die perfekte Kombination aus ruhiger, zentraler Lage, zeitloser Architektur und zukunftsorientierter Bauweise macht dieses Projekt zu einer seltenen Gelegenheit für Eigennutzer und Kapitalanleger.

Die neuen Wohneinheiten werden in energieeffizienter KfW 40 QNG-Bauweise realisiert und bieten damit gleich mehrere finanzielle Vorteile:

- Bis zu 10 % steuerliche Abschreibungen durch die KfW 40 QNG-Zertifizierung
- Zinsgünstige KfW-Förderdarlehen
- Nachhaltige Bauweise mit langer Wertstabilität

Geplant sind attraktive 2- bis 4-Zimmer-Wohnungen mit Wohnflächen von ca. 45 m² bis ca. 183 m², jeweils mit großzügigen Balkonen oder Terrassen sowie separatem Kellerraum. Eine Aufzugsanlage, gemeinschaftliche Abstellräume und optional verfügbare Außen- und Tiefgaragenstellplätze sorgen für hohen Wohnkomfort. Die Fertigstellung der Wohnanlage erfolgt voraussichtlich im Winter 2027.

Ausstattungsmerkmale:
. Bodenbeläge mit Fliesen und Vinyl
. Kunststoff-Isolierglasfenster dreifach, elektrische Rollläden
. Wärmepumpe, Fußbodenheizung
. hochwertige Bäder
. Videosprechanlage
. Balkone und Terrassen
. barrierearm und teilweise barrierefrei
. Personenaufzug

Pkw-Außenstellplätze und Tiefgaragenstellplätze können optional erworben werden. Die Kaufpreise liegen zwischen € 18.000,00 und € 29.900,00.

Die Lage besticht durch die unmittelbare Nähe zum Schlosspark, zum Marktplatz und zu sämtlichen Einrichtungen des täglichen Bedarfs. Alles ist bequem fußläufig erreichbar - ein Wohnumfeld, das Komfort, Lebensqualität und Planbarkeit bis ins hohe Alter vereint.

Übrigens! Sie haben noch keine Finanzierung? Sprechen Sie uns an - wir vermitteln Ihnen jederzeit einen Ansprechpartner, der für Sie ein unverbindliches Angebot ausarbeitet.
Teil eines Projekts
Neubauhighlight in Weikersheim - zentral, energieeffizient & förderfähig!
Neubauprojekt
  • alle Details des Projekts erhalten
  • alle verfügbaren Einheiten ansehen
Zum Projekt

Merkmale

  • Personenaufzug
Individuelle Ausstattungsmerkmale:

- barrierearm und teilweise barrierefrei
- elektrische Rollläden
- Balkon
- Terrasse

Grundrisse

Grundrisse
1 / 1

Realisiere Dein Projekt

Bausubstanz und Energie

Energieausweis

Ein Energieausweis ist für diesen Gebäudetyp nicht notwendig.
  • Baujahr2027
  • Zustand der ImmobilieMassivhaus, Erstbezug
  • HeizungsartFußbodenheizung
  • EnergieträgerLuft-/Wasser-Wärmepumpe
MediumRectangleTop

Preisdetails

Kaufpreis
339775 €
4.343,84 €/m²
Provision für Käufer
provisionsfrei; prov.frei
Geschätzte Gesamtkosten
363.560 €1
Kaufpreis
339.775 €
Notarkosten (1,5%)
5.097 €
Grunderwerbsteuer (5%)
16.989 €
Grundbucheintrag (0,5%)
1.699 €
1Der angezeigte Wert ist eine automatisch berechnete Schätzung von immowelt.
2Bei den Angaben handelt es sich um ortsübliche Werte. Individuelle Kosten können abweichen.

Insights für Investoren

Diese Anzeige
4.343,84 €/m²
Niedrigster Wert in der Region
1.334 €/m²
Höchster Wert in der Region
3.590 €/m²
¹ Der angegebene Quadratmeterpreis wurde von AVIV Germany automatisch anhand des angegebenen Verkaufspreises und der angegebenen Quadratmeterzahl des Objektes berechnet. Der Vergleichswert basiert auf den verfügbaren Marktwerten zu Objekten ähnlicher Beschaffenheit und Lage. Diese Angaben können eine gutachterliche Bewertung nicht ersetzen, da diese immer auch vom Zustand und der Lage des konkreten Objektes abhängig ist. 

Lage

address-icon
Weikersheim (97990)
Der Anbieter hat die genaue Adresse nicht freigegeben
Weikersheim liegt an der Romantischen Straße im Main-Tauber-Kreis und überzeugt durch hervorragende Infrastruktur, ein vielfältiges kulturelles Angebot und eine hohe Lebensqualität.
Mit der Taubertalbahn (Anschluss über Würzburg und Crailsheim an das Fernverkehrsnetz) sowie mehreren Buslinien ist der Ort optimal angebunden. Schulen, Kindergärten, Ärzte und zahlreiche Einkaufsmöglichkeiten sind direkt vor Ort vorhanden.

Das historische Renaissanceschloss mit Schlossgarten, die Tauberphilharmonie sowie die idyllischen Weinberge und Radwege der Region prägen das besondere Flair dieser Stadt.

Weitere Informationen

Stichworte Bundesland: Baden-Württemberg, 4 Etagen

Weitere Services

Lust auf eine Besichtigung?
Eine Frage zur Immobilie?
Nachricht hinzufügen
Mit der Nutzung der oben angegebenen Telefonnummer oder durch Klicken auf „Kontaktieren“ akzeptierst Du die Allgemeinen Nutzungsbedingungen und stimmst der Verwendung unserer Anruf-Kontakt-Funktion zu, der Du jederzeit widersprechen kannst. Weitere Informationen zum Datenschutz

Über den Anbieter

Hauptstraße 68, 97941 Tauberbischofsheim
partner badge
6 Jahre Partnerschaft
Herr Sven Breidenbach
Herr Sven BreidenbachDein Kontakt
Online-ID: 2nuq354
Referenznummer: 2889-7

Du willst verkaufen?Schätze den Wert deiner Immobilie

Sparkasse Tauberfranken
title
Sparkasse Tauberfranken
Bewertung: 4,1 von 5 Sternen
Nachricht hinzufügen
Mit der Nutzung der oben angegebenen Telefonnummer oder durch Klicken auf „Kontaktieren“ akzeptierst Du die Allgemeinen Nutzungsbedingungen und stimmst der Verwendung unserer Anruf-Kontakt-Funktion zu, der Du jederzeit widersprechen kannst. Weitere Informationen zum Datenschutz
MediumRectangleTop
MediumRectangleBottom
MediumRectangleTop
Wie zufrieden bist du mit dieser Seite (nicht mit der Immobilie selbst)?