

Einfamilienhaus zum KaufMit dem Anruf stimme ich der Anruf-Kontakt-Funktion zu.
Mit dem Anruf stimme ich der Anruf-Kontakt-Funktion zu.
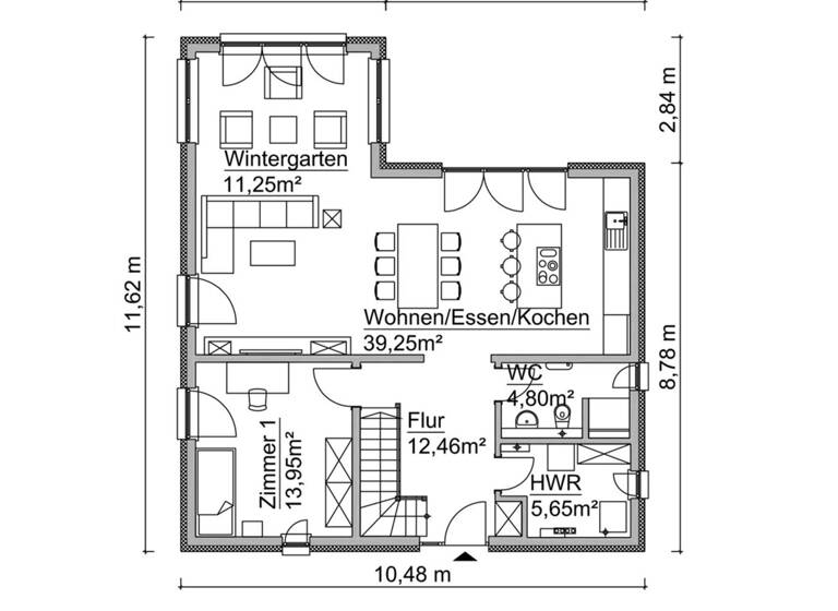
Effizient geplant, großzügig gewohnt - Drempelhaus in Bad Düben
Merkmale
- 1.112 m² Grundstück
- Gäste-WC
- voll erschlossen
Grundrisse
Grundrisse
1 / 2
Realisiere Dein Projekt
Bausubstanz und Energie
Der Anbieter hat keine Informationen zum Energieverbrauch bereit gestellt.
- Zustand der ImmobilieProjektiert
- HeizungsartFußbodenheizung
- EnergieträgerLuft-/Wasser-Wärmepumpe
Preisdetails
Kaufpreis
484660 €
3.057,79 €/m²
Provision für Käufer
Bitte beachte, das Angebot kann bei Vertragsabschluss die Zahlung einer Provision beinhalten. Weitere Informationen erhältst Du vom Anbieter.
Geschätzte Gesamtkosten
538.311 €1
Kaufpreis
484.660 €
Kaufnebenkosten
53.651 €
2Notarkosten (1,5%)
7.270 €
Grunderwerbsteuer (5,5%)
26.656 €
Provision für Käufer (3,57%)
17.302 €
Grundbucheintrag (0,5%)
2.423 €
1Der angezeigte Wert ist eine automatisch berechnete Schätzung von immowelt.
2Bei den Angaben handelt es sich um ortsübliche Werte. Individuelle Kosten können abweichen.
Insights für Investoren
Diese Anzeige
3.057,79 €/m²
Niedrigster Wert in der Region
801 €/m²
Höchster Wert in der Region
3.321 €/m²
¹ Der angegebene Quadratmeterpreis wurde von AVIV Germany automatisch anhand des angegebenen Verkaufspreises und der angegebenen Quadratmeterzahl des Objektes berechnet. Der Vergleichswert basiert auf den verfügbaren Marktwerten zu Objekten ähnlicher Beschaffenheit und Lage. Diese Angaben können eine gutachterliche Bewertung nicht ersetzen, da diese immer auch vom Zustand und der Lage des konkreten Objektes abhängig ist.
Lage

Bad Düben (04849)
Der Anbieter hat die genaue Adresse nicht freigegeben
Weitere Informationen
Weitere Services
Lust auf eine Besichtigung?
Eine Frage zur Immobilie?
Über den Anbieter
Immobilienberatung BehrendtMaklerbüro
Gohliser Straße 11, 04105 Leipzig
6 Jahre Partnerschaft
Herr Tobias BehrendtDein Kontakt
Online-ID: 2kmcx5n
Referenznummer: 624_12.2_SH160D_V.A
Du willst verkaufen?Schätze den Wert deiner Immobilie

Immobilienberatung Behrendt
Bewertung: 4,8 von 5 Sternen
Wie zufrieden bist du mit dieser Seite (nicht mit der Immobilie selbst)?

