

Einfamilienhaus zum KaufMit dem Anruf stimme ich der Anruf-Kontakt-Funktion zu.
Mit dem Anruf stimme ich der Anruf-Kontakt-Funktion zu.
*Freistehendes Einfamilienhaus mit sonnigem Grundstück - ruhige Wohnidylle in Bad Birnbach*
Merkmale
- 1.500 m² Grundstück
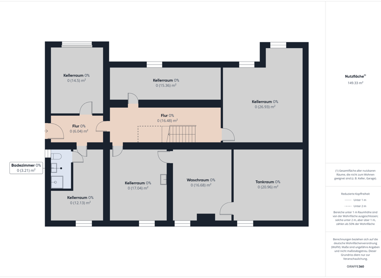
- Keller
- 2 Stellplätze: 2 Garagen
- Balkon
- Garten
- Terrasse
- Waschraum
- Bodenbelag: Fliesen, Laminat
Grundrisse
Grundrisse
1 / 4
Virtueller Rundgang
3D tour

Realisiere Dein Projekt
Bausubstanz und Energie
Energieausweis
A
- Baujahr1977
- Zustand der ImmobilieAltbau (bis 1945), Gepflegt
- HeizungsartZentralheizung
- EnergieträgerGas
Preisdetails
Kaufpreis
470000 €
2.061,77 €/m²
Provision für Käufer
Die Vermittlungsprovision beträgt 3.00% inklusive MwSt
Weitere Preisinformationen
2 Garagenstellplätze
Geschätzte Gesamtkosten
509.950 €1
Kaufpreis
470.000 €
Kaufnebenkosten
39.950 €
2Notarkosten (1,5%)
7.050 €
Grunderwerbsteuer (3,5%)
16.450 €
Provision für Käufer (3%)
14.100 €
Grundbucheintrag (0,5%)
2.350 €
1Der angezeigte Wert ist eine automatisch berechnete Schätzung von immowelt.
2Bei den Angaben handelt es sich um ortsübliche Werte. Individuelle Kosten können abweichen.
Insights für Investoren
Günstiger als vergleichbare Immobilien in der Region.
2.061,77 €/m²
Niedrigster Wert in der Region
1.077 €/m²
Höchster Wert in der Region
4.228 €/m²
¹ Der angegebene Quadratmeterpreis wurde von AVIV Germany automatisch anhand des angegebenen Verkaufspreises und der angegebenen Quadratmeterzahl des Objektes berechnet. Der Vergleichswert basiert auf den verfügbaren Marktwerten zu Objekten ähnlicher Beschaffenheit und Lage. Diese Angaben können eine gutachterliche Bewertung nicht ersetzen, da diese immer auch vom Zustand und der Lage des konkreten Objektes abhängig ist.
Lage

Bad Birnbach (84364)
Der Anbieter hat die genaue Adresse nicht freigegeben
Weitere Informationen
Weitere Services
Lust auf eine Besichtigung?
Eine Frage zur Immobilie?
Über den Anbieter
KRAUSE ImmobilienMaklerbüro
Gramanstraße 54B, 84518 Wald a. d. Alz
Partnerschaft

Herr David BruckmeierDein Kontakt
Weitere Unterlagen
Online-ID: 2mu8558
Referenznummer: 162
Du willst verkaufen?Schätze den Wert deiner Immobilie


KRAUSE Immobilien
Bewertung: 5 von 5 Sternen
Wie zufrieden bist du mit dieser Seite (nicht mit der Immobilie selbst)?

