Version: 8.20.1Navigation überspringen
140 m²  •  400 m² Grundstück
Immowelt logo

Einfamilienhaus zum Kauf • provisionsfrei
295820 €
2.113 €/m²
140 m²  •  400 m² Grundstück

Mit dem Anruf stimme ich der Anruf-Kontakt-Funktion zu.

Modernes Ausbauhaus von Visio PlanHaus (5 Schlafräume)

Merkmale

  • Bezug: 2027
  • 2 Geschosse
  • 400 m² Grundstück
  • Kein Keller
Der angegebene Preis im Exposé beinhaltet das projektierte Hauskonzept (Ausbauhaus) exklusive Grundstück. Die Architektenleistungen für Planung, Bauantragsbearbeitung und die Projektüberwachung sind ebenfalls im Preis inkludiert.

Es handelt sich bei dieser Projektierung um ein Effizienzhaus nach den neuesten Regeln des Gebäude Energie Gesetz (GEG) 2024 in massiver Bauweise. (optional staatlich förderfähig)

Zu dem im Exposee angebotenen Preis kommen die GS Kosten, die GS-Nebenkosten (Notar/ Steuer etc.) der Innenausbau sowie die Baunebenkosten (z.B. Tiefbau + Außenanlagen etc.) , sowie Ihre Eigenleistungen hinzu.

Gerne bieten wir alternativ auch alle Leistungen aus einer Hand zum Festpreis - bis zur Schlüsselübergabe - an. Inklusive Tiefbau und Außenanlagen.


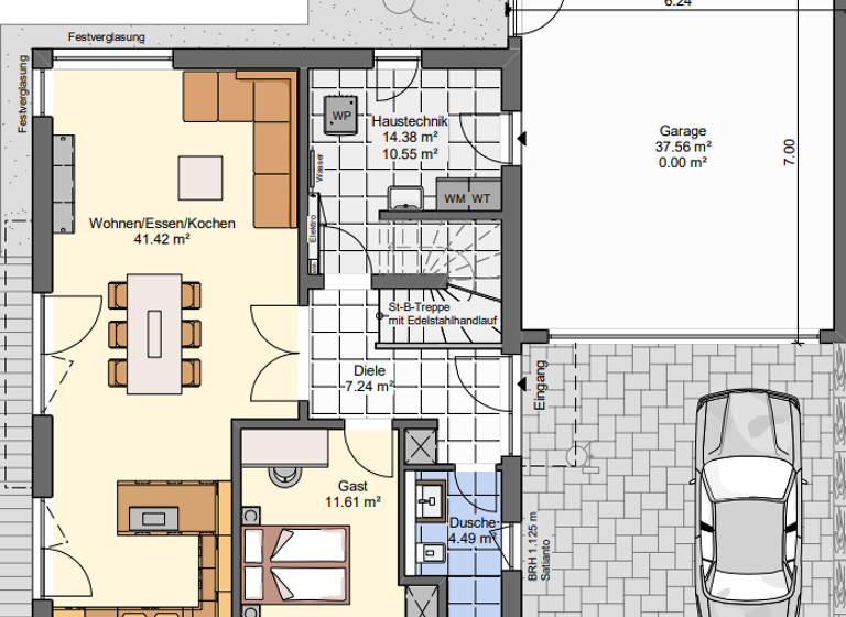
Grundrisse

Grundrisse
1 / 2

Realisiere Dein Projekt

Bausubstanz und Energie

Der Anbieter hat keine Informationen zum Energieverbrauch bereit gestellt.
  • Baujahr2026
  • Zustand der ImmobilieNeubau, Massivhaus, Projektiert
  • HaustypKfW 55
Immowelt logo

Preisdetails

Kaufpreis
295820 €
2.113 €/m²
Provision für Käufer
provisionsfrei; Privatanbieter
Geschätzte Gesamtkosten
316.527 €1
Kaufpreis
295.820 €
Notarkosten (1,5%)
4.437 €
Grunderwerbsteuer (5%)
14.791 €
Grundbucheintrag (0,5%)
1.479 €
1Der angezeigte Wert ist eine automatisch berechnete Schätzung von immowelt.
2Bei den Angaben handelt es sich um ortsübliche Werte. Individuelle Kosten können abweichen.

Insights für Investoren

Günstiger als vergleichbare Immobilien in der Region.
2.113 €/m²
Niedrigster Wert in der Region
1.839 €/m²
Höchster Wert in der Region
5.083 €/m²
¹ Der angegebene Quadratmeterpreis wurde von AVIV Germany automatisch anhand des angegebenen Verkaufspreises und der angegebenen Quadratmeterzahl des Objektes berechnet. Der Vergleichswert basiert auf den verfügbaren Marktwerten zu Objekten ähnlicher Beschaffenheit und Lage. Diese Angaben können eine gutachterliche Bewertung nicht ersetzen, da diese immer auch vom Zustand und der Lage des konkreten Objektes abhängig ist. 

Lage

address-icon
Hillesheim (67586)
Der Anbieter hat die genaue Adresse nicht freigegeben
Das angebotene voll erschlossene Grundstück befindet sich in Ortslage.

Weitere Informationen

Baustoff Nr. 1: Stein & Beton Eure ganz bewusste und clevere Entscheidung!

Stein/Beton ist seit je her und bis heute (im Jahr 2025) unverändert der beliebteste Baustoff von Baufamilien in ganz Deutschland und Europa.

Ob Ihr einen Wolkenkratzer oder ein neues Zuhause mit Pool für eure Familie bauen möchtet, die massive Bauweise ist unverändert die sicherste und werthaltigste Bauweise der heutigen Zeit. (siehe Baugenehmigungen 2024) Hervorragende Schalldämmung, Schutz vor Kälte und Hitze, bestes Raumklima und erstklassiger Brandschutz. Der Baustoff Stein/Beton ist zu 100% recyclebar und bietet euch und euren Kindern, Enkelkindern - über hunderte von Jahren Sicherheit und Schutz. Auch bei - ständig zunehmenden - gefährlichen Wetterereignissen. Die Bauweise erfüllt alle Kriterien des neuesten GEG 2024 (Gebäudeenergiegesetz) und ist uneingeschränkt förderfähig.

Euer VisioPlanHaus Team


Einfamilienhaus Herzlich willkommen bei Visio Planhaus - Ihrem verlässlichen regionalen Partner für den Bau Ihres neuen individuellen Zuhauses.

Dieses angebotene exklusive Einfamilienhaus mit Flachdach ( auch mit anderer Dachform erhältlich) bietet auf einem großzügigen Grundstück einen gehobenen Wohnkomfort auf zwei Etagen. Mit insgesamt 6 Zimmern, davon 5 Schlafzimmern (im OG) und 2 Sanitärräumen, inklusive bodengleicher Dusche, bietet dieses Haus ausreichend Platz für die ganze Familie und viele nette Besucher.

Sie planen eine offene, lichtdurchflutete Raumgestaltung Ihres Wohn-/Essbereichs mit offener Küche . Durch Ihren HWR/Technikraum hätten Sie die Möglichkeit trockenen Fußes in Ihre optionale Garage zu gelangen.

Ihr neues Zuhause entspricht dem neuesten GEG-Standard 2024 - was auch bedeutet, dass Sie (mit einer optionalen Photovoltaikanlage) nachhaltig Energie sparen werden und auf Wunsch optional staatliche Fördermittel in Anspruch nehmen können.
Sonstige Hinweise zum Angebot Die von uns gemachten Informationen im Exposee beruhen auf Angaben des Grundstücksverkäufers bzw. der Verkäuferin.

Für die Richtigkeit und Vollständigkeit der Angaben kann keine Gewähr bzw. Haftung übernommen werden. Der Zwischenverkauf und Irrtümer sind vorbehalten. Es besteht kein Rechtsanspruch. VPH ist nicht Eigentümer des Grundstücks.

Bilder und Grundrissskizzen zeigen ggfs. Abweichungen bzw. optionale Bauteile/Ausstattungen. Visio Planhaus Bei Visio Planhaus erhalten Sie bereits im Standard die neueste effiziente massive Bauweise nach dem neuen Gebäude Energiegesetz (GEG 2024)

Unser Firmenname steht seit Jahren für

Vertrauen beim Bauen!

Viele hunderte Baufamilien die bereits in einem individuellen Visio Planhaus leben, bestätigen uns dies. (Fragen Sie uns gerne nach regionalen Referenzen)

Wir bauen in Deutschland und Luxemburg - ausschließlich in Kooperation mit regionalen Traditionsunternehmen - und mit großer Überzeugung in nachhaltiger Massivbauweise. (Kein WDVS, sondern traditionell Stein auf Stein)

Bei uns stehen Langlebigkeit und Wertbeständigkeit im Fokus.
Unsere Bauweise ist nicht nur altbewährt, sondern gleichzeitig hochmodern da wir darauf achten, dass die Eigenschaften der Baustoffe und auch die Effizienz der industriellen Herstellungsverfahren zukunftsorientiert erfolgen. Natürlich achten wir auf kurze Transportwege.

Wärmeschutz, Brandschutz und eine hohe Dämmwirkung sind bei dieser klassischen Bauweise ebenso garantiert wie ein hoher Schallschutz. (Massivbaustoffe sind perfekte Schallschlucker)
Der richtige Stein – in Kombination mit Holz aus regionaler Forstwirtschaft (z.B. für die Dachkonstruktion etc.) sind die idealen Werkstoffe zum Bau eines wertbeständigen Ein-/Mehrfamilienhauses. (Fragen Sie gerne Ihren unabhängigen Finanzierer und Fördermittelberater)
Dies ist unser Beitrag zum Klimaschutz! Gerne auch für Ihre Familie, für Ihre Kinder und deren Kinder, damit wir alle gesund auf diesem Planeten leben können. Denn auch wir möchten gesund leben und nachhaltige Konzepte anbieten.
Die individuelle Planung Bei Visio Planhaus haben Sie die uneingeschränkte Möglichkeit, Ihr neues Zuhause ganz nach Ihren Vorstellungen zu gestalten.

Gerne mit unseren erfahrenen internen Architektinnen und Architekten. Oder auch mit einem Fremdarchitekten Ihrer Wahl. (Kommen Sie gerne jederzeit mit Ihrem fertigen Grundriss auf uns zu)

Sie haben selbstverständlich die Wahl zwischen verschiedenen Ausbaustufen.

Ihre gewünschten Eigenleistungen können Sie nach Ihren Vorstellungen und Fähigkeiten einbringen (völlig egal ob sie z.B. die Elektrik, den Fassadenanstrich, die Dacheindeckung oder aber die Fußböden in Eigenleistung erbringen möchten)

Ihr Traumhaus entsteht ganz nach Ihren individuellen Vorstellungen und Ihrem persönlichen Budget.

Sie erhalten von Visio PlanHaus eine vertraglich zugesicherte Bauzeit, sowie eine Festpreis Garantie über die im Vertrag zugesicherte Bauzeit.

Sie zahlen bei Visio Planhaus - innerhalb der vereinbarten Bauzeit - immer erst nach Fertigstellung des vereinbarten Baufortschritts.

Seit Gründung unseres Unternehmens arbeiten wir ausschließlich mit unseren Mitarbeiterinnen & Mitarbeitern und mit regionalen Partnern.

Der Name Visio PlanHaus steht – bereits seit vielen Jahren - für kreative Planung, hohe Qualität und absolute Zuverlässigkeit.

Ihre Ausstattungs- und Gestaltungswünsche werden bereits im Vorfeld individuell auf Sie angepasst, um Zusatzkosten im Nachgang zu vermeiden. Bauamtliche Vorgaben des Bebauungsplans werden berücksichtigt.

Gerne bieten wir Ihnen eine sorgenfreie „schlüsselfertige“ Lösung an, die auch die Tiefbauarbeiten und die Gestaltung der Außenanlagen aus einer Hand beinhaltet. Ebenso übernehmen wir für Sie den notwendigen Papierkram mit Versorgern und die Bauantragsplanung.

Gerne auch völlig anders! Dank unseres internen Architekturbüros sowie unserem eigenen Roh- & Tiefbauunternehmen, bieten wir diese Planungs- und Bauleistungen Leistungen auch unabhängig an.

Überzeugen Sie sich sehr gerne selbst und vereinbaren Sie Ihren unverbindlichen persönlichen Beratungstermin. Impressum Impressum:

Visio Planhaus
Betriebsstätte
An der Eisernen Hand
56332 Wolken/Kobern Gondorf (Kreis Mayen/Koblenz)

Visio Planhaus Schweich GmbH
Im Handwerkerhof 1a
54338 Schweich-Issel
Telefon: +49 (0)6502 93096-0
Telefax: +49 (0)6502 93096-170
Homepage: https://www.visioplanhaus.de/
Rechtliche Angaben
Registernummer: HRB 43432
USt-IdNr.: 42/658/06733
Registergericht: Amtsgericht Wittlich
Gewerbeerlaubnis gem. §34c GewO wurde erteilt durch: Verbandsgemeinde Schweich
Verbraucherinformationen: Online-Streitbeilegung gemäß Art. 14 Abs. 1 ODR-VO: Die Europäische Kommission stellt eine Plattform zur Online - Streitbeilegung(OS) bereit, die Sie unter http://ec.europa.eu/consumers/odr finden.

Die in den Plänen eingezeichneten Möblierungen und Kücheneinrichtungen dienen der Orientierung und gehören nicht zum Leistungsumfang der Verkäufer.

Einwilligung zur Nutzung und Übermittlung vorhabensbezogener Daten gem. Art. 7 DSGVO: Mit Ihrer Angebotsanfrage willigen Sie ein, dass die Visio Planhaus Schweich GmbH mit Sitz in Schweich-Issel Ihre personenbezogenen Daten zum Zweck der Übermittlung von Angeboten und Kaufverhandlungen verarbeitet und Ihnen solche Informationen zusendet bzw. Sie anruft. Sie werden hiermit ausdrücklich darüber informiert, dass Sie diese Einwilligung jederzeit und ohne Angaben von Gründen gegenüber der Visio Planhaus Schweich GmbH per E-Mail, Fax oder Post widerrufen können. Stichworte Versorgung: Städtische Wasserversorgung, Städtische Stromversorgung

Weitere Services

Lust auf eine Besichtigung?
Eine Frage zur Immobilie?
Nachricht hinzufügen
Mit der Nutzung der oben angegebenen Telefonnummer oder durch Klicken auf „Kontaktieren“ akzeptieren Sie die Allgemeinen Nutzungsbedingungen und stimmen der Verwendung unserer Anruf-Kontakt-Funktion, der Sie jederzeit widersprechen können. Weitere Informationen zum Datenschutz

Über den Anbieter

Im Handwerkerhof 1a, 54338 Schweich-Issel
Herr Jörg  Demmerath
Herr Jörg DemmerathDein Kontakt
Online-ID: 2letn5z

Du willst verkaufen?Schätze den Wert deiner Immobilie

Visio Planhaus Schweich GmbH
title
Visio Planhaus Schweich GmbH
Bewertung: 5 von 5 Sternen
Nachricht hinzufügen
Mit der Nutzung der oben angegebenen Telefonnummer oder durch Klicken auf „Kontaktieren“ akzeptieren Sie die Allgemeinen Nutzungsbedingungen und stimmen der Verwendung unserer Anruf-Kontakt-Funktion, der Sie jederzeit widersprechen können. Weitere Informationen zum Datenschutz
Wie zufrieden bist du mit dieser Seite (nicht mit der Immobilie selbst)?