Version: 8.22.3Navigation überspringen
205.000 €
2 Zimmer  •  46,4 m²
Immowelt logo

Wohnung zum Kauf
205000 €
4.417 €/m²
2 Zimmer  •  46,4 m²

Mit dem Anruf stimme ich der Anruf-Kontakt-Funktion zu.

"STADTQUARTIER WEST - Neu renoviertes 2 Zimmer Atelier"

Das charmante und bestens ausgestattete Atelier befindet sich in einem komplett sanierten Jahrhundertwendehaus im 15. Bezirk im Souterrein! Das Atelier glänzt durch die modernen und hochwertigen Materialien....... In das typisch Alt-Wiener Stiegenhaus wurde ein Aufzug integriert. Eine schöne Wohnung mit gut durchdachtem Raumkonzept!

Die Lage der Liegenschaft kann als sehr gut eingestuft werden! Der Nahe gelegene Westbahnhof und die U-Bahn Haltestelle U 3 Schweglerplatz sind in wenigen Gehminuten erreichbar. Auch das Schloss Schönbrunn mit all seinen Annehmlichkeiten ist nicht weit weg!

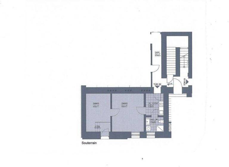
Zum Raumprogramm:

In die Wohnung kommt man über einen eigenen Ausseneingang oder aber über das neu erschlossene und renovierte Stiegenhaus. Im Souterrein angekommen steht man im Vorraum oder Empfang. Der geräumige Wohn- Schlaf oder auch Büro und Behandlungsraum befindet sich in der Mitte des Ateliers und vom Vorraum aus erschlossen. Das Badezimmer mit Dusche/Waschtisch/Toilette/Handtuchtrockner und Fenster befindet sich im hinteren Teil der Wohnung. Die Küche liegt direkt neben dem Hauseingang und dem Badezimmer...................

Hinweis gemäß Energieausweisvorlagegesetz: Ein Energieausweis wurde vom Eigentümer bzw. Verkäufer, nach unserer Aufklärung über die generell geltende Vorlagepflicht, sowie Aufforderung zu seiner Erstellung noch nicht vorgelegt. Daher gilt zumindest eine dem Alter und der Art des Gebäudes entsprechende Gesamtenergieeffizienz als vereinbart. Wir übernehmen keinerlei Gewähr oder Haftung für die tatsächliche Energieeffizienz der angebotenen Immobilie.

Infrastruktur / Entfernungen

Gesundheit
Arzt <500m
Apotheke <500m
Klinik <1.000m
Krankenhaus <1.500m

Kinder & Schulen
Schule <500m
Kindergarten <500m
Universität <1.000m
Höhere Schule <1.500m

Nahversorgung
Supermarkt <500m
Bäckerei <500m
Einkaufszentrum <1.000m

Sonstige
Geldautomat <500m
Bank <500m
Post <500m
Polizei <500m

Verkehr
Bus <500m
U-Bahn <500m
Straßenbahn <500m
Bahnhof <500m
Autobahnanschluss <5.000m

Angaben Entfernung Luftlinie / Quelle: OpenStreetMap

Merkmale

  • Bezug: sofort
  • Souterrain
  • Personenaufzug
  • Badezimmer: Bad mit Dusche, Bad mit Fenster
  • Bodenbelag: Fliesen, Parkett
  • voll erschlossen

Grundrisse

Grundrisse
1 / 1

Realisiere Dein Projekt

Bausubstanz und Energie

Der Anbieter hat keine Informationen zum Energieverbrauch bereit gestellt.
  • Baujahr1900
  • Zustand der ImmobilieAltbau (bis 1945), renoviert / saniert
  • HeizungsartZentralheizung
  • EnergieträgerGas
Immowelt logo

Preisdetails

Kaufpreis
205000 €
4.417,15 €/m²
Provision für Käufer
3% des Kaufpreises zzgl. 20% USt.

Lage

address-icon
Wien (1150)
Rudolfsheim-Fünfhaus ist der 15. Wiener Gemeindebezirk und liegt westlich des Stadtzentrums. Obwohl er ob seiner Lage außerhalb des Gürtels als Außenbezirk Wiens gilt, ähnelt er in vielem den Innenbezirken: geringe Größe, hohe Bevölkerungsdichte, Altstadtnähe und - ungleich den anderen Außenbezirken - ein fehlender Anteil am Wiener Grüngürtel. Durch die Trassenführung der Westbahn bedingt, ist der Fünfzehnte von einer starken Nord-Süd-Differenzierung geprägt. Während sich die bis ins Mittelalter zurückreichenden Ortskerne der einstigen Vororteagglomeration um Fünfhaus und Rudolfsheim im Südteil befinden, wurde der Nordteil (Schmelz), in dem heute etwa mehr als die Hälfte der Bezirksbewohner lebt, erst nach 1850 verstädtert. So ist es wohl der Fragmentierung des Bezirksgebiets zu schulden, dass sich in Rudolfsheim-Fünfhaus kein Lokalpatriotismus herausgebildet hat, der mit dem anderer Außenbezirke wie Floridsdorf, Ottakring oder Meidling vergleichbar wäre. In den letzten Jahren ist allerdings eine Tendenz zu einem wachsenden Grätzlbewusstsein merkbar, so etwa im Nibelungenviertel und um die Reindorfgasse. Früher häufig mit abgewohnten Gründerzeitvierteln, Arbeitsmigration und der mittlerweile großteils an den Stadtrand verdrängten Straßenprostitution assoziiert, gewann der Bezirk seit der Jahrtausendwende wieder im Hinblick auf Einwohnerzahl und Attraktivität. Seine bekanntesten Bauwerke sind der Westbahnhof, die Wiener Stadthalle und die Kirche Maria vom Siege.

Weitere Informationen

Stichworte Fahrradraum, Nutzfläche: 46,41 m², Gesamtfläche: 46,41 m², Anzahl der Badezimmer: 1, Anzahl der separaten WCs: 1, Kellerfläche: 2,53 m², Bundesland: Wien, modernisiert: 2019

Weitere Services

Lust auf eine Besichtigung?
Eine Frage zur Immobilie?
Nachricht hinzufügen
Mit der Nutzung der oben angegebenen Telefonnummer oder durch Klicken auf „Kontaktieren“ akzeptieren Sie die Allgemeinen Nutzungsbedingungen und stimmen der Verwendung unserer Anruf-Kontakt-Funktion, der Sie jederzeit widersprechen können. Weitere Informationen zum Datenschutz

Über den Anbieter

Bachsiedlung 11, 5166 Perwang am Grabensee
Herr Siegfried SeidlDein Kontakt
Online-ID: 2l8255y
Referenznummer: OBGC201911181826497364a173f266a

Du willst verkaufen?Schätze den Wert deiner Immobilie

MIA Real Estate GmbH
MIA Real Estate GmbH
Bewertung: 3,3 von 5 Sternen
Nachricht hinzufügen
Mit der Nutzung der oben angegebenen Telefonnummer oder durch Klicken auf „Kontaktieren“ akzeptieren Sie die Allgemeinen Nutzungsbedingungen und stimmen der Verwendung unserer Anruf-Kontakt-Funktion, der Sie jederzeit widersprechen können. Weitere Informationen zum Datenschutz
Wie zufrieden bist du mit dieser Seite (nicht mit der Immobilie selbst)?