Version: 8.25.1Navigation überspringen

27 Immobilien in Bochum Altenbochum

BPD Immobilienentwicklung GmbH
Wohnung zum Kauf - Neubau provisionsfrei 585.000 € 4 Zimmer 104 m² 3. Geschoss Ostparkallee Altenbochum Bochum 44803
Projekteinheit
585.000 € 5.625 €/m²
Wohnung zum Kauf - Neubau · provisionsfrei
4 Zimmer
·
104 m²
·
3. Geschoss
Ostparkallee, Altenbochum, Bochum (44803)
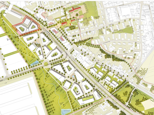
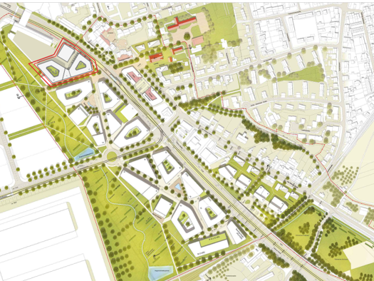
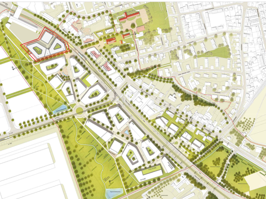
Mit einem Mix aus unterschiedlichen Wohnangeboten, umgeben von großzügigen Grünflächen entstehen im neuen Quartier Feldmark durch die BPD Immobilienentwicklung zwei Stadthäuser mit unterschiedlich gr...
Immowelt logo
Wohnung zur Miete 920 € 3,5 Zimmer 94 m² 1. Geschoss Altenbochum Bochum 44803
Neu
E
920 €
Kaltmiete
Wohnung zur Miete
3,5 Zimmer
·
94 m²
·
1. Geschoss
Altenbochum, Bochum (44803)
Objektbeschreibung 3-Familienhaus in einer verkehrsarmen Anlieger-/Seitenstraße Raumaufteilung großzügiges Wohn-/Esszimmer, Schlafzimmer, Kinder-/Arbeitszimmer, Küche mit Zugang zum Balkon, Tageslicht-Duschbad, separates Tageslicht-WC, Diele, sämtliche Räume sind von der Diele aus begehbar Die Warmwasseraufbereitung erfolgt über einen elektrischen Durchlauferhitzer. Die Vorgartenpflege und der Winterdienst werden durch einen Fachbetrieb ausgeführt.
Penthouse zum Kauf - Neubau provisionsfrei 495.000 € 3 Zimmer 85 m² 4. Geschoss Ostparkallee Altenbochum Bochum 44803
Projekteinheit
495.000 € 5.824 €/m²
Penthouse zum Kauf - Neubau · provisionsfrei
3 Zimmer
·
85 m²
·
4. Geschoss
Ostparkallee, Altenbochum, Bochum (44803)
Mit einem Mix aus unterschiedlichen Wohnangeboten, umgeben von großzügigen Grünflächen entstehen im neuen Quartier Feldmark durch die BPD Immobilienentwicklung zwei Stadthäuser mit unterschiedlich gr...
Herr Nicholas Deters
Wohnung zum Kauf provisionsfrei 139.500 € 3 Zimmer 76,7 m² 1. Geschoss Steinkuhlstraße 7 Altenbochum Bochum 44799
F
139.500 € 1.818 €/m²
Wohnung zum Kauf · provisionsfrei
3 Zimmer
·
76,7 m²
·
1. Geschoss
Steinkuhlstraße 7, Altenbochum, Bochum (44799)
Diese gut geschnittene 3-Zimmer-Eigentumswohnung befindet sich im 1. Obergeschoss eines gepflegten, ruhigen Mehrfamilienhauses in der Steinkuhlstraße 7 mitten im begehrten Altenbochum. Das im Jahre 1...
Herr Nicholas Deters
Wohnung zum Kauf provisionsfrei 139.500 € 3 Zimmer 76,1 m² 1. Geschoss Steinkuhlstraße 7 Altenbochum Bochum 44799
F
139.500 € 1.834 €/m²
Wohnung zum Kauf · provisionsfrei
3 Zimmer
·
76,1 m²
·
1. Geschoss
Steinkuhlstraße 7, Altenbochum, Bochum (44799)
Diese gut geschnittene 3-Zimmer-Eigentumswohnung befindet sich im 1. Obergeschoss eines gepflegten, ruhigen Mehrfamilienhauses in der Steinkuhlstraße 7 mitten im begehrten Altenbochum. Das im Jahre 1...
Immowelt logo
Herr Suriano
Studio zur Miete 526 € 1 Zimmer 50,8 m² 2. Geschoss frei ab 09.05.2026 Püttmannsweg 10 Altenbochum Bochum 44803
F
526 €
Kaltmiete
Studio zur Miete
1 Zimmer
·
50,8 m²
·
2. Geschoss
·
frei ab 09.05.2026
Püttmannsweg 10, Altenbochum, Bochum (44803)
In dieser Wohnung sind die originalen Holzdielen als fertiger Oberboden vorhanden. Tapeten welche sich leicht überstreichen lassen, finden Sie ebenfalls vor. An schönen Tagen können Sie von Ihrer Küche aus auf dem Balkon ins grüne blicken und entspannen. Das Badezimmer ist modern inkl. einer Dusche. Kommen Sie am besten gleich vorbei.
Ihr McMakler Team
Studio zum Kauf 75.000 € 1 Zimmer 26,6 m² 1. Geschoss Altenbochum Bochum 44803
Neu
D
75.000 € 2.830 €/m²
Studio zum Kauf
1 Zimmer
·
26,6 m²
·
1. Geschoss
Altenbochum, Bochum (44803)
Objektnr: 1070860 Als ideale Option für Eigennutzung oder Investment präsentiert sich diese Eigentumswohnung in Bochum, beschaulich und sicher in einer Nebenstraße. Die gut angebundene Lage in der Vo...
Herr Carman Mehmet
Einfamilienhaus zum Kauf 499.789 € 4 Zimmer 143 m² 370 m² Grundstück Altenbochum Bochum Süd 44803
499.789 € 3.495 €/m²
Einfamilienhaus zum Kauf
4 Zimmer
·
143 m²
·
370 m² Grundstück
Altenbochum, Bochum Süd (44803)
Willkommen in Ihrem neuen Einfamilienhaus, das ganz nach Ihren Wünschen und Vorstellungen projektiert wird. Dieses moderne Zuhause bietet Ihnen mit 4 Zimmern, einer großzügigen Wohnfläche von 143 m² ...
Herr Carman Mehmet
Einfamilienhaus zum Kauf 594.429 € 4 Zimmer 142 m² 384 m² Grundstück Altenbochum Bochum 44803
594.429 € 4.186 €/m²
Einfamilienhaus zum Kauf
4 Zimmer
·
142 m²
·
384 m² Grundstück
Altenbochum, Bochum (44803)
Wir präsentieren Ihnen ein projektiertes Einfamilienhaus in Bochum, das ganz nach Ihren persönlichen Wünschen und Vorstellungen gestaltet wird. Mit einer großzügigen Wohnfläche von 142 m² auf zwei Et...
Gesponsert
Frau Silke Kurth
S-ImmobilienDienst der Sparkasse Bochum GmbH
Wohnung zum Kauf 175.000 € 3,5 Zimmer 68,1 m² EG Grumme Bochum 44791
G
175.000 € 2.571 €/m²
Wohnung zum Kauf
3,5 Zimmer
·
68,1 m²
·
EG
Grumme, Bochum (44791)
- Lichtdurchflutete Erdgeschosswohnung - Aktuell vermietet, wird frei ca. 07/2026 - Ruhiger Balkon zum Garten - Gelungene Raumaufteilung - Tageslicht Duschbad - Parkettboden-Fliesen - Dachboden und 2...
Immowelt logo
Herr Carman Mehmet
Einfamilienhaus zum Kauf 521.989 € 5 Zimmer 165 m² 450 m² Grundstück Altenbochum Bochum 44791
521.989 € 3.164 €/m²
Einfamilienhaus zum Kauf
5 Zimmer
·
165 m²
·
450 m² Grundstück
Altenbochum, Bochum (44791)
Dieses projektiert geplante Einfamilienhaus in Bochum bietet Ihnen mit 5 Zimmern auf 165 m² Wohnfläche ausreichend Platz für die ganze Familie. Das großzügige 450 m² Grundstück und die zweigeschossig...
von privat
Wohnung zur Miete 750 € 4 Zimmer 90 m² Geschoss 2/3 frei ab sofort Altenbochum Bochum 44803
Neu
750 €
Kaltmiete
Wohnung zur Miete
4 Zimmer
·
90 m²
·
Geschoss 2/3
·
frei ab sofort
Altenbochum, Bochum (44803)
Diese helle und geräumige 4-Zimmer-Wohnung mit ca. 90 m² Wohnfläche befindet sich in Bochum-Altenbochum. Die Wohnung wurde vor kurzen komplett saniert und wäre Erstbezug nach der Renovierung. Bevorzugt ist ein 3 Personen Haushalt, da ich ein längeres Mietverhältnis suche. Die Aufteilung der Wohnung entnehmen Sie den Bilder oder durch eine persönliche Besichtigung mit mir. Ich freue mich auf euch!
Wohnung zum Kauf - Neubau provisionsfrei 580.000 € 4 Zimmer 104 m² 3. Geschoss Ostparkallee Altenbochum Bochum 44803
Projekteinheit
580.000 € 5.577 €/m²
Wohnung zum Kauf - Neubau · provisionsfrei
4 Zimmer
·
104 m²
·
3. Geschoss
Ostparkallee, Altenbochum, Bochum (44803)
Mit einem Mix aus unterschiedlichen Wohnangeboten, umgeben von großzügigen Grünflächen entstehen im neuen Quartier Feldmark durch die BPD Immobilienentwicklung zwei Stadthäuser mit unterschiedlich gr...
Wohnung zum Kauf - Neubau provisionsfrei 285.000 € 2 Zimmer 50,8 m² 2. Geschoss Ostparkallee Altenbochum Bochum 44803
Projekteinheit
285.000 € 5.610 €/m²
Wohnung zum Kauf - Neubau · provisionsfrei
2 Zimmer
·
50,8 m²
·
2. Geschoss
Ostparkallee, Altenbochum, Bochum (44803)
Mit einem Mix aus unterschiedlichen Wohnangeboten, umgeben von großzügigen Grünflächen entstehen im neuen Quartier Feldmark durch die BPD Immobilienentwicklung zwei Stadthäuser mit unterschiedlich gr...
Möchtest du deine Immobilie vermieten?
Einfach inserieren
Hohe Reichweite für deine Anzeige
Schnell passende Mieter finden
Möchtest du deine Immobilie vermieten?
Private Vermieter inserieren 1 Monat kostenlos ‒ auch bei mehreren Mietobjekten
Deine Suche, nur smarter
Alle Anfragen im Überblick
Suchaufträge verwalten
Anzeigen-Status verfolgen
Verbessere dein Sucherlebnis - melde dich an, um deinen Fortschritt zu speichern.
Terrassenwohnung zum Kauf - Neubau provisionsfrei 305.000 € 2 Zimmer 59 m² EG Ostparkallee Altenbochum Bochum 44803
Projekteinheit
305.000 € 5.169 €/m²
Terrassenwohnung zum Kauf - Neubau · provisionsfrei
2 Zimmer
·
59 m²
·
EG
Ostparkallee, Altenbochum, Bochum (44803)
Mit einem Mix aus unterschiedlichen Wohnangeboten, umgeben von großzügigen Grünflächen entstehen im neuen Quartier Feldmark durch die BPD Immobilienentwicklung zwei Stadthäuser mit unterschiedlich gr...
Terrassenwohnung zum Kauf - Neubau provisionsfrei 310.000 € 2 Zimmer 57 m² EG Ostparkallee Altenbochum Bochum 44803
Projekteinheit
310.000 € 5.439 €/m²
Terrassenwohnung zum Kauf - Neubau · provisionsfrei
2 Zimmer
·
57 m²
·
EG
Ostparkallee, Altenbochum, Bochum (44803)
Mit einem Mix aus unterschiedlichen Wohnangeboten, umgeben von großzügigen Grünflächen entstehen im neuen Quartier Feldmark durch die BPD Immobilienentwicklung zwei Stadthäuser mit unterschiedlich gr...
Herr Suriano
Wohnung zur Miete 432 € 1,5 Zimmer 43,6 m² 2. Geschoss frei ab 09.05.2026 Theoderichstr. 12 Altenbochum Bochum 44803
E
432 €
Kaltmiete
Wohnung zur Miete
1,5 Zimmer
·
43,6 m²
·
2. Geschoss
·
frei ab 09.05.2026
Theoderichstr. 12, Altenbochum, Bochum (44803)
Über einen barrierefreien Zugang erreichen Sie Ihre neue Wohnung bequem mit dem im Haus befindlichen Aufzug. Ein Duschbad sowie ein großzügiger Wohnraum mit Schlafnische erwarten Sie. Derzeit wird die gesamte Wohnung einzugsbereit neu für Sie renoviert! An schönen Tagen können Sie über die Küche auf Ihren eigenen Balkon gelangen und entspannen. Ideal eignet sich diese gemütliche Wohnung für eine Person im Alter! *Bitte beachten Sie das es sich bei den hinterlegten Bildern um Musterbilder handel...
von privat
Büro zur Miete provisionsfrei 1.800 € 5 Zimmer 300 m² Bürofläche Altenbochumer Str. 1 Altenbochum Bochum 44803
1.800 €
Nettomiete
Büro zur Miete · provisionsfrei
5 Zimmer
·
300 m² Bürofläche
Altenbochumer Str. 1, Altenbochum, Bochum (44803)
Die Büro- und Lagerräume befinden in Altenbochum in zentraler Lage zur Innenstadt mit guter Anbindung an A40, A448 und A43 sowie dem ÖPNV. Zum Objekt gehören noch 10 Stellplätze, die im Mietpreis ent...
Immowelt logo
Bürofläche zur Miete - Erstbezug provisionsfrei 1.450 m² Bürofläche Altenbochum Bochum 44803
Mietkosten auf Anfrage
Bürofläche zur Miete - Erstbezug · provisionsfrei
1.450 m² Bürofläche
Altenbochum, Bochum (44803)
Die BrainFactory Bochum ist Teil des neuen Technologie- und Wissenscampus auf dem Gelände Mark 51°7 - dem O WERK l CAMPUS! Als Teil des Spririt Offices setzt die Brainfactory mit ihren Spirit Mindset...
Herr Suriano
Wohnung zur Miete 441 € 1,5 Zimmer 43,6 m² 4. Geschoss frei ab 12.05.2026 Theoderichstr. 12 Altenbochum Bochum 44803
Neu
E
441 €
Kaltmiete
Wohnung zur Miete
1,5 Zimmer
·
43,6 m²
·
4. Geschoss
·
frei ab 12.05.2026
Theoderichstr. 12, Altenbochum, Bochum (44803)
Diese Wohnung erreichen Sie ohne Barrieren bequem über einen Aufzug im Haus. Vor Ihrem Einzug wird ein neues Duschbad verfliest. Derzeit wird die gesamte Wohnung einzugsbereit neu renoviert. Nach Abschluss unserer Arbeiten finden Sie einen hellen und modernen Vinylboden vor, alle Wände und Decken werden tapeziert und gestrichen.
Ihr McMakler Team
Sonstiges zum Kauf als Kapitalanlage geeignet 75.000 € 1 Zimmer 25 m² Altenbochum Bochum 44803
D
75.000 € 2.830 €/m²
Sonstiges zum Kauf · als Kapitalanlage geeignet
1 Zimmer
·
25 m²
Altenbochum, Bochum (44803)
Objektnr: 1070860 Als ideale Option für Eigennutzung oder Investment präsentiert sich diese Eigentumswohnung in Bochum, beschaulich und sicher in einer Nebenstraße. Die gut angebundene Lage in der Vo...
Wohnung zur Miete 500 € 2,5 Zimmer 45 m² Laerstraße 67a Altenbochum Bochum 44803
H
500 €
Kaltmiete
Wohnung zur Miete
2,5 Zimmer
·
45 m²
Laerstraße 67a, Altenbochum, Bochum (44803)
Diese gepflegte 2,5 Zimmer Wohnung erfüllt Ihre Wohnwünsche. Sie befindet sich im Erdgeschoss eines ruhigen Mehrfamilienhauses und hat eine Wohnfläche von ca. 45 qm. Vom hellen Wohnzimmer gelangen Sie direkt auf den großen Balkon, welcher zum Entspannen einlädt. Außerdem verfügt die Wohnung über ein Schlafzimmer, eine Küche, ein Badezimmer mit Badewanne und zwei praktischen Abstellkammern.
Immowelt logo
Außenstellplatz zur Miete provisionsfrei 40 € Wasserstr. 86 Altenbochum Bochum 44803
40 €
Kaltmiete
Außenstellplatz zur Miete · provisionsfrei
 
Wasserstr. 86, Altenbochum, Bochum (44803)
Gesponsert
Bürosuche sharednc.com
Bürosuche sharednc.com
Bürofläche zur Miete provisionsfrei 620 € 18 m² Bürofläche Alte Wittener Straße Laer Bochum 44803
620 €
Warmmiete
Bürofläche zur Miete · provisionsfrei
18 m² Bürofläche
Alte Wittener Straße, Laer, Bochum (44803)
(Objekt-Nr.: 225791 WH) Objektkategorie: Abgeschlossener Büroraum Titel des Angebots: Einzelbüro L ***Flexible Konditionen*** Mindestlaufzeit: 3 Monate Kündigungsfrist: 3 Monate zum Monatsende Verfüg...
Frau Susanne Bahr
Wohnung zum Kauf provisionsfrei 127.900 € 3 Zimmer 68 m² 2. Geschoss Theoderichstraße 8 Altenbochum Bochum 44803
G
127.900 € 1.881 €/m²
Wohnung zum Kauf · provisionsfrei
3 Zimmer
·
68 m²
·
2. Geschoss
Theoderichstraße 8, Altenbochum, Bochum (44803)
Die hier zum Verkauf anstehende 3,5 Zimmer Dachgeschosswohnung befindet sich in einem sehr gepflegten 6-Familienhaus in Altenbochum. Die Eigentümergemeinschaft umfasst insgesamt 18 Wohneinheiten, wel...
Bürofläche zur Miete 12 € 183 m² Bürofläche teilbar ab 183 m² Altenbochum Bochum 44803
12 €/m²
Bürofläche zur Miete
183 m² Bürofläche
·
teilbar ab 183 m²
Altenbochum, Bochum (44803)
Die angebotenen Immobilie bietet ihrem Nutzer eine großzügige, klimatisierte Bürofläche im Dachgeschoss. Die integrierten Erker und markant gestalteten Fensterausschnitte verleihen den Räumen ein auß...
Studio zur Miete Tauschwohnung 339 € 1 Zimmer 20 m² 8. Geschoss Altenbochum Bochum 44803
339 €
Kaltmiete
Studio zur Miete · Tauschwohnung
1 Zimmer
·
20 m²
·
8. Geschoss
Altenbochum, Bochum (44803)
Es handelt es sich hierbei um ein Tauschangebot. (Anbieter-ID: 431826) Ich biete eine kleine, gemütliche Wohnung im schönen Bochum-Wiemelhausen an. Die Flat hat 20 m², einen Raum und kostet 339 € Miete. Wenn du eine Unterkunft in Syke hast, die mindestens 20 m² groß ist und maximal 400 € kostet, dann lass uns doch einfach in Kontakt kommen! Ich freue mich darauf, mehr über deine Wohnung zu erfahren. Weitere Details zur genauen Lage oder Ausstattung können wir nach Bedarf austauschen. Diese Anze...
Frau Broni Nowak
Haus zum Kauf provisionsfrei 549.750 € 5 Zimmer 150 m² 660 m² Grundstück Altenbochum Bochum 44803
549.750 € 3.665 €/m²
Haus zum Kauf · provisionsfrei
5 Zimmer
·
150 m²
·
660 m² Grundstück
Altenbochum, Bochum (44803)
Die Stadtvilla 152 RE steht für zeitlose Architektur, großzügige Räume und ein modernes Wohnkonzept ohne Kompromisse. Zwei voll nutzbare Geschosse, helle Räume und ein klar strukturierter Grundriss m...
Immowelt logo
Wohnung zur Miete Tauschwohnung 540 € 2,5 Zimmer 47 m² Altenbochum Bochum 44803
540 €
Kaltmiete
Wohnung zur Miete · Tauschwohnung
2,5 Zimmer
·
47 m²
Altenbochum, Bochum (44803)
Es handelt es sich hierbei um ein Tauschangebot. (Anbieter-ID: 433432) Biete: Wohnung im 4. Stock mit Badewanne und Balkon, Haustiere erlaubt. Suche: 1-1,5 Zimmer mit Balkon und entweder Erdgeschoss/ Parterre, oder aber Aufzug. Balkon muss vorhanden sein und Haustiere erlaubt. Diese Anzeige wurde von einem Nutzer eingestellt. Tauschwohnung.com stellt nur die Plattform bereit und ist nicht Anbieter der Wohnung. Hinweise auf mögliche Rechtsverletzungen (z. B. bei Fotos) bitte hier melden: https:/...
Weitere Ergebnisse in der Nähe
Entdecke weitere Ergebnisse in der Umgebung von Altenbochum, 44803
Ihr McMakler Team
Mehrfamilienhaus zum Kauf 320.000 € 6 Zimmer 211,5 m² 728,1 m² Grundstück Laer Bochum 44803
H
320.000 € 1.513 €/m²
Mehrfamilienhaus zum Kauf
6 Zimmer
·
211,5 m²
·
728,1 m² Grundstück
Laer, Bochum (44803)
Objektnr: 1069172 Als ideale Option für Eigennutzung oder Investment präsentiert sich dieses Objekt in Bochum. Altersbedingt weist die 1900 erbaute Immobilie Renovierungsbedarf auf, der viel Gestaltu...
Bürofläche zur Miete provisionsfrei 9,90 € Innenstadt Bochum 44789
9,90 €/m²
Bürofläche zur Miete · provisionsfrei
 
Innenstadt, Bochum (44789)
Die Büroflächen befinden sich inmitten der Bochumer Innenstadt, nahe dem Hauptbahnhof. Die schicke Außenfassade macht das Objekt zu einem echter Hingucker. Durch die großen, zahlreichen Fenster sind ...
Bürofläche zur Miete provisionsfrei 73 Zimmer 2.249,9 m² Bürofläche teilbar ab 750 m² Wiemelhausen Bochum 44799
Mietkosten auf Anfrage
Bürofläche zur Miete · provisionsfrei
73 Zimmer
·
2.249,9 m² Bürofläche
·
teilbar ab 750 m²
Wiemelhausen, Bochum (44799)
- barrierefrei - gute Anbindung - modernisierter Eingangsbereich - 96 Stellplätze teilweise überdacht
Wie zufrieden bist du mit dieser Seite (nicht mit den Immobilien selbst)?
Markttrends
Immobilienpreis pro m²
April 2026
Apartment building illustration
Wohnung
2.533 €/m²
Niedrigster Preis
1.456 €/m²
Höchster Preis
5.066 €/m²
House illustration
Haus
3.377 €/m²
Niedrigster Preis
1.351 €/m²
Höchster Preis
5.774 €/m²
Preisentwicklung
Entdecke die Preisentwicklungen vor Ort und auf dem größeren Markt in den letzten 5 Jahren.
1 Monat
+0.6%
6 Monate
+4.7%
1 Jahr
+6.1%
5 Jahre
+12.8%
Bochum
Nordrhein-Westfalen
Auf den Markt reinzoomenZugang zu detaillierten Immobilienpreisen, bis hin zur genauen Adresse.