Version: 8.26.0Navigation überspringen

40 Angebote für 3 - 3,5-Zimmer Wohnungen mieten in Passau

Frau Rosina Kinateder-Schmid
Sparkasse Passau i.V. der Sparkassen-Immobilien-Vermittlungs-GmbH
Wohnung zur Miete 1.270 € 3 Zimmer 85 m² Haidenhof-Nord Passau 94032
1.270 €
Kaltmiete
Wohnung zur Miete
3 Zimmer
·
85 m²
Haidenhof-Nord, Passau (94032)
Verlieren Sie keine Zeit und lassen Sie sich vormerken!! Bezugsfertig ab Sommer 2026 Im Brauhof I erwartet Sie ein Wohnkonzept der Extraklasse: Stilvoll, hochwertig und mit urbanem Flair. In einem der gefragtesten Wohnquartiere der Stadt sind 82 Wohnungen entstanden, die den höchsten Ansprüchen gerecht werden. Das Raum- und Designkonzept des Brauhofs ist smart: Intelligente und offene Grundrisse sparen Quadratmeter, bringen aber ein hervorragendes, großzügiges Wohngefühl in alle Räume. Modernst...
Immowelt logo
Frau Rosina Kinateder-Schmid
Sparkasse Passau i.V. der Sparkassen-Immobilien-Vermittlungs-GmbH
Wohnung zur Miete 860 € 3 Zimmer 81 m² Grubweg Passau 94034
C
860 €
Kaltmiete
Wohnung zur Miete
3 Zimmer
·
81 m²
Grubweg, Passau (94034)
In der charmanten Stadt Passau wartet eine tolle Etagenwohnung auf dich, ideal für junge Menschen, die nach einer gemütlichen und modernen Bleibe suchen.Mit einer Wohnfläche von 81 Quadratmetern bietet sie genügend Platz für ein komfortables Leben. Die Wohnung verfügt über drei Zimmer, darunter zwei Schlafzimmer, ein Badezimmer mit Badewanne und einem separaten Gäste-WC, was die perfekte Ausstattung für ein unkompliziertes Wohnen darstellt. Ein Highlight der Wohnung ist sicherlich die Einbauküc...
Wohnung zur Miete - Erstbezug 1.280 € 3 Zimmer 80 m² Geschoss EG/2 frei ab 01.07.2026 Haidenhof-Nord Passau 94036
Neu
A
1.280 €
Kaltmiete
Wohnung zur Miete - Erstbezug
3 Zimmer
·
80 m²
·
Geschoss EG/2
·
frei ab 01.07.2026
Haidenhof-Nord, Passau (94036)
Diese traumhafte und wunderbar helle 3-Zimmer-Wohnung mit einer Wohnfläche von 80,01 m² befindet sich im Erdgeschoss der neuen Wohnanlage am Fernsehturm in Passau. Die Wohnanlage mit insgesamt 21 Wohneinheiten, ist voraussichtlich ab dem 01.07.2026 bezugsfertig. Zu diesem Zeitpunkt kann diese herrliche 3-Zimmer- Wohnung im Erstbezug bezogen werden. Die Wohnanlage wurde von der Firma Bergander Bau nach den neuesten Standards errichtet. Besonderes Augenmerk wurde auf hochwertige Materialien und K...
Wohnung zur Miete 1.200 € 3 Zimmer 81,8 m² 2. Geschoss frei ab 01.07.2026 Haidenhof-Nord Passau 94036
Neu
A
1.200 €
Kaltmiete
Wohnung zur Miete
3 Zimmer
·
81,8 m²
·
2. Geschoss
·
frei ab 01.07.2026
Haidenhof-Nord, Passau (94036)
Diese helle und sehr komfortable Wohnung mit einer Wohnfläche von 81,80 m² befindet sich im 2. OG der neuen Wohnanlage am Fernsehturm in Passau. Die Wohnanlage mit insgesamt 21 Wohneinheiten, ist voraussichtlich ab dem 01.07.2026 bezugsfertig. Zu diesem Zeitpunkt kann diese schöne 3-Zimmer- Wohnung im Erstbezug bezogen werden. Sie wurde von der Firma Bergander Bau nach den neuesten Standards errichtet. Besonderes Augenmerk wurde auf hochwertige Materialien und Komfort gelegt. Gegenüber der Wohn...
Wohnung zur Miete - Erstbezug 1.050 € 3 Zimmer 75,6 m² Geschoss 1/2 frei ab 01.07.2026 Haidenhof-Nord Passau 94036
Neu
A
1.050 €
Kaltmiete
Wohnung zur Miete - Erstbezug
3 Zimmer
·
75,6 m²
·
Geschoss 1/2
·
frei ab 01.07.2026
Haidenhof-Nord, Passau (94036)
Diese helle und sehr komfortable Wohnung mit einer Wohnfläche von 75,63 m² befindet sich im 1. OG der neuen Wohnanlage am Fernsehturm in Passau. Die Wohnanlage mit insgesamt 21 Wohneinheiten, ist ab dem 01.07.2026 bezugsfertig. Zu diesem Zeitpunkt kann diese schöne 3-Zimmer- Wohnung im Erstbezug bezogen werden. Die Wohnanlage wurde von der Firma Bergander Bau nach den neuesten Standards errichtet. Besonderes Augenmerk wurde auf hochwertige Materialien und Komfort gelegt. Über den Laubengang err...
Immowelt logo
Herr Michael Resch
Passauer Immobilien Resch & Söhne GmbH seit 1968
Wohnung zur Miete 900 € 3 Zimmer 78,8 m² EG Innstraße 79 c Haidenhof-Süd Passau 94036
C
900 €
Kaltmiete
Wohnung zur Miete
3 Zimmer
·
78,8 m²
·
EG
Innstraße 79 c, Haidenhof-Süd, Passau (94036)
Die in den Jahren 2004 bis 2006 errichtete Wohnanlage wird sowohl von der Hausverwaltung als auch von den Eigentümern äußerst gepflegt und kontinuierlich instandgehalten. Dies zeigt sich bereits beim Betreten des Grundstücks: Gepflegte Grünanlagen, saubere Zuwege und Parkflächen sowie ein ordentliches, abgeschlossenes Müllhäuschen vermitteln einen rundum positiven Eindruck. Die Wohnung ist bequem ebenerdig erreichbar. Bereits beim Eintreten empfängt Sie eine großzügige Diele mit direktem Anschl...
Herr Bauer
Wohnung zur Miete 711 € 3 Zimmer 64,7 m² frei ab 31.05.2026 Bernhard-Setzer-Str. 14 a Haidenhof-Nord Passau 94032
Neu
B
711 €
Kaltmiete
Wohnung zur Miete
3 Zimmer
·
64,7 m²
·
frei ab 31.05.2026
Bernhard-Setzer-Str. 14 a, Haidenhof-Nord, Passau (94032)
Diese frisch sanierte 3-Zimmer-Wohnung vereint auf 64,66 m² zeitgemäßen Komfort und angenehme Ruhe in einem gepflegten 8-Parteien-Haus - ideal für Paare oder kleine Familien. Hochwertiges Laminat in den Wohnräumen trifft hier auf ein stilvolles Farbkonzept mit anthrazitfarbenen Fliesen in Küche und Tageslichtbad, welches zudem mit einer einladenden Badewanne ausgestattet ist. Energetisch ist das Gebäude dank moderner Dämmung, neuen Fenstern und einer effizienten Gas-Zentralheizung bestens für d...
von privat
Wohnung zur Miete 1.300 € 3 Zimmer 85 m² Geschoss -2/4 frei ab 01.08.2026 Auerspergstraße 2 Haidenhof-Nord Passau 94032
Neu
1.300 €
Kaltmiete
Wohnung zur Miete
3 Zimmer
·
85 m²
·
Geschoss -2/4
·
frei ab 01.08.2026
Auerspergstraße 2, Haidenhof-Nord, Passau (94032)
Im hochwertigen, modern Brauhof I wird ab Sommer 2026 diese attraktiv geschnittene, lichtdurchflutete 3-Zimmer-Wohnung mit ca. 85 m² Wohnfläche vermietet. Der großzügige und helle Wohn- und Essbereich bildet das Zentrum der Wohnung und überzeugt mit viel Tageslicht und einer offenen, einladenden Atmosphäre. Der ca. 10 m² große gemütliche Balkon bietet einen Blick Richtung Altstadt und auf die Veste Oberhaus. Die Ausstattung ist durchweg hochwertig: Edles Parkett, großformatige Fließen, durchgän...
Wohnung zur Miete - Erstbezug 1.150 € 3 Zimmer 80 m² Geschoss 2/2 frei ab 01.07.2027 Haidenhof-Nord Passau 94036
A
1.150 €
Kaltmiete
Wohnung zur Miete - Erstbezug
3 Zimmer
·
80 m²
·
Geschoss 2/2
·
frei ab 01.07.2027
Haidenhof-Nord, Passau (94036)
Objektbeschreibung: Diese wunderschöne und sehr helle 3-Zimmer-Wohnung mit einer Wohnfläche von 80,01 m² befindet sich im obersten Geschoss der neuen „Wohnanlage am Fernsehturm“ in Passau. Die Wohnanlage mit insgesamt 21 Wohneinheiten, ist voraussichtlich ab dem 01.07.2026 bezugsfertig. Die Anlage wurde von der Firma Bergander Bau nach den neuesten Standards errichtet. Besonderes Augenmerk wurde auf hochwertige Materialien und Komfort gelegt. Zusammen mit zwei weiteren Wohnungen verfügt die Woh...
Immowelt logo
von privat
Wohnung zur Miete 860 € 3 Zimmer 87 m² Geschoss 1/3 frei ab 01.06.2026 Innstraße 77 b Haidenhof-Süd Passau 94036
860 €
Kaltmiete
Wohnung zur Miete
3 Zimmer
·
87 m²
·
Geschoss 1/3
·
frei ab 01.06.2026
Innstraße 77 b, Haidenhof-Süd, Passau (94036)
Diese ansprechende 3-Zimmer-Wohnung bietet mit 87 qm Wohnfläche viel Raum für Ihre persönliche Entfaltung. Der durchdachte Grundriss sorgt für ein angenehmes Wohngefühl und bietet ideale Voraussetzungen für Paare. Ein Highlight ist die Loggia mit Blick auf den Inn. Neben Schlafzimmer und Büro/Kinderzimmer bietet die Wohnung ein 26qm großes Wohnzimmer. Die Küche mit ca. 11 qm bietet Platz für Ihre individuelle Küchenplanung. Die Wohnung verfügt über ein neues Bad mit bodengleicher Dusche und ein...
von privat
Wohnung zur Miete 1.290 € 3 Zimmer 85 m² Geschoss 1/3 frei ab 15.07.2026 Haidenhof-Nord Passau 94032
1.290 €
Kaltmiete
Wohnung zur Miete
3 Zimmer
·
85 m²
·
Geschoss 1/3
·
frei ab 15.07.2026
Haidenhof-Nord, Passau (94032)
Verfügbar ab 15.07.2026. Besichtigungen ab 7.7. möglich! Diese hochwertige 3-Zimmer-Neubauwohnung im Zentrum von Passau verbindet modernes Wohnen mit stilvoller Ausstattung und einer hervorragenden Lage. Auf ca. 85,5 m² Wohnfläche erwarten Sie helle Räume, eine durchdachte Raumaufteilung und hoher Wohnkomfort. Herzstück der Wohnung ist der großzügige Wohn- und Essbereich mit moderner Einbauküche inklusive Kochinsel und hochwertigen Markengeräten (Kühl-Gefrierkombination, Herd, Backofen und Spül...
Living Immo - Immobilien GmbH
Wohnung zur Miete - Erstbezug 957 € 3 Zimmer 87 m² Grubweg Passau 94034
957 €
Kaltmiete
Wohnung zur Miete - Erstbezug
3 Zimmer
·
87 m²
Grubweg, Passau (94034)
In attraktiver und ruhiger Wohnlage von Passau-Zieglreuth präsentiert sich dieses moderne Neubau-Mehrfamilienhaus mit lediglich sechs hochwertig gestalteten Wohneinheiten. Das exklusive Wohnensemble überzeugt durch seine zeitlose Architektur, eine hochwertige Bauausführung sowie ein angenehmes und naturnahes Wohnumfeld. Die Wohnungen befinden sich im Erstbezug und bieten ein modernes Wohnkonzept mit großzügigen, lichtdurchfluteten Räumen und durchdacht gestalteten Grundrissen. Große Fensterfläc...
Living Immo - Immobilien GmbH
Wohnung zur Miete - Erstbezug 855 € 3 Zimmer 77,7 m² Grubweg Passau 94034
855 €
Kaltmiete
Wohnung zur Miete - Erstbezug
3 Zimmer
·
77,7 m²
Grubweg, Passau (94034)
In attraktiver und ruhiger Wohnlage von Passau-Zieglreuth präsentiert sich dieses moderne Neubau-Mehrfamilienhaus mit lediglich sechs hochwertig gestalteten Wohneinheiten. Das exklusive Wohnensemble überzeugt durch seine zeitlose Architektur, eine hochwertige Bauausführung sowie ein angenehmes und naturnahes Wohnumfeld. Die Wohnungen befinden sich im Erstbezug und bieten ein modernes Wohnkonzept mit großzügigen, lichtdurchfluteten Räumen und durchdacht gestalteten Grundrissen. Große Fensterfläc...
Möchtest du deine Immobilie vermieten?
Einfach inserieren
Hohe Reichweite für deine Anzeige
Schnell passende Mieter finden
Möchtest du deine Immobilie vermieten?
Private Vermieter inserieren 1 Monat kostenlos ‒ auch bei mehreren Mietobjekten
Deine Suche, nur smarter
Alle Anfragen im Überblick
Suchaufträge verwalten
Anzeigen-Status verfolgen
Verbessere dein Sucherlebnis - melde dich an, um deinen Fortschritt zu speichern.
Frau Rosina Kinateder-Schmid
Sparkasse Passau i.V. der Sparkassen-Immobilien-Vermittlungs-GmbH
Wohnung zur Miete 950 € 3 Zimmer 81 m² Heining Passau 94036
A
950 €
Kaltmiete
Wohnung zur Miete
3 Zimmer
·
81 m²
Heining, Passau (94036)
Willkommen in Ihrem neuen Zuhause! Diese erst 2021 fertiggestellte 3-Zimmer-Wohnung kombiniert zeitgemäßen Wohnkomfort mit einer durchdachten Raumaufteilung auf großzügigen 81 m² Wohnfläche. Dank des jungen Baujahres profitieren Sie von modernster energetischer Bauweise und einer hochwertigen Ausstattung. Das Herzstück der Wohnung ist der lichtdurchflutete Wohnbereich, von dem aus Sie direkt den sonnigen Balkon erreichen - ideal für entspannte Feierabende im Freien. Zwei weitere Zimmer bieten f...
Living Immo - Immobilien GmbH
Wohnung zur Miete - Erstbezug 920 € 3 Zimmer 83,7 m² Grubweg Passau 94034
920 €
Kaltmiete
Wohnung zur Miete - Erstbezug
3 Zimmer
·
83,7 m²
Grubweg, Passau (94034)
In attraktiver und ruhiger Wohnlage von Passau-Zieglreuth präsentiert sich dieses moderne Neubau-Mehrfamilienhaus mit lediglich sechs ansprechend gestalteten Wohneinheiten. Das gehobene Wohnensemble überzeugt durch seine zeitlose Architektur, eine wertige Bauausführung sowie ein angenehmes und naturnahes Wohnumfeld. Die Wohnungen befinden sich im Erstbezug und bieten ein modernes Wohnkonzept mit großzügigen, lichtdurchfluteten Räumen und durchdacht gestalteten Grundrissen. Große Fensterflächen ...
Herr Bauer
Wohnung zur Miete 711 € 3 Zimmer 67,7 m² 4. Geschoss frei ab sofort Nibelungenstr. 24 Haidenhof-Nord Passau 94032
D
711 €
Kaltmiete
Wohnung zur Miete
3 Zimmer
·
67,7 m²
·
4. Geschoss
·
frei ab sofort
Nibelungenstr. 24, Haidenhof-Nord, Passau (94032)
Die gut geschnittene 3-Zimmer-Wohnung befindet sich in einem ruhigen Mehrfamilienhaus, das zehn Parteien umfasst. Sie bietet Wohnkomfort auf 67,69 qm und ist daher bestens geeignet für Paare oder kleine Familien. 2020 wurde die Wohnung umfassend renoviert. Dabei wurde das Tageslichtbad mit schönen neuen Fliesen und Sanitärgegenständen sowie einer neuen Dusche ausgestattet. Modern und schön anzuschauen: In der gesamten Wohnung wurde ein pflegeleichter Vinyl - Designboden in Holzoptik verlegt. Zu...
Living Immo - Immobilien GmbH
Wohnung zur Miete - Erstbezug 879 € 3 Zimmer 80 m² Grubweg Passau 94034
879 €
Kaltmiete
Wohnung zur Miete - Erstbezug
3 Zimmer
·
80 m²
Grubweg, Passau (94034)
In attraktiver und ruhiger Wohnlage von Passau-Zieglreuth präsentiert sich dieses moderne Neubau-Mehrfamilienhaus mit lediglich sechs ansprechend gestalteten Wohneinheiten. Das gehobene Wohnensemble überzeugt durch seine zeitlose Architektur, eine wertige Bauausführung sowie ein angenehmes und naturnahes Wohnumfeld. Die Wohnungen befinden sich im Erstbezug und bieten ein modernes Wohnkonzept mit großzügigen, lichtdurchfluteten Räumen und durchdacht gestalteten Grundrissen. Große Fensterflächen ...
Immowelt logo
Wohnung zur Miete 850 € 3 Zimmer 112,4 m² EG frei ab 01.08.2026 Hacklberg Passau 94034
850 €
Kaltmiete
Wohnung zur Miete
3 Zimmer
·
112,4 m²
·
EG
·
frei ab 01.08.2026
Hacklberg, Passau (94034)
Willkommen in Ihrem neuen Zuhause! Diese wunderschöne 3-Zimmer-Wohnung in Schalding links der Donau bietet alles, was das Herz begehrt. Mit einem eigenen Eingangsbereich und hellen, freundlichen Räumlichkeiten verspricht diese Wohnung hohen Wohnkomfort. Die großzügige Aufteilung der Zimmer bietet Ihnen auf ca. 112 m² inklusive Terrasse ein gemütliches und harmonisches Wohnerlebnis. Die gut ausgestattete Küche ist hierbei das Herzstück der Wohnung. Sie verfügt über einen großzügigen Essbereich, ...
von privat
Wohnung zur Miete 1.250 € 3 Zimmer 95 m² Geschoss EG/3 frei ab 01.09.2026 Haidenhof-Nord Passau 94036
1.250 €
Kaltmiete
Wohnung zur Miete
3 Zimmer
·
95 m²
·
Geschoss EG/3
·
frei ab 01.09.2026
Haidenhof-Nord, Passau (94036)
Neues 6 Familienhaus mit sehr ruhigen Mietern. Das Objekt befindet sich in einer ruhigen, dennoch sehr zentralen Lage mit einem auf der Südseite des Hauses gegenüberliegendem kleinen Naturschutzgebiet. Das Haus steht absolut frei und hat somit keine unmittelbaren Nachbarhäuser. In zentraler und dennoch ruhiger Lage sind Einkaufsmöglichkeiten und Busanbindung nahe gelegen und schnell fußläufig erreichbar. Die Wohnung ist hochwertig ausgestattet mit moderner Einbauküche im großen Wohnraum der ein...
Living Immo - Immobilien GmbH
Wohnung zur Miete - Erstbezug 981 € 3 Zimmer 89,2 m² 2. Geschoss Grubweg Passau 94034
981 €
Kaltmiete
Wohnung zur Miete - Erstbezug
3 Zimmer
·
89,2 m²
·
2. Geschoss
Grubweg, Passau (94034)
Zur Vermietung steht eine sehr schöne, moderne Neubauwohnungen mit Erstbezug. Über einen klar gegliederten Eingangsbereich - der Platz für Garderobe und Stauraum bietet und die Räume sinnvoll erschließt - gelangen Sie in den zentralen Wohnbereich, der als Mittelpunkt des Alltags dient und sich flexibel für Wohnen und Essen einrichten lässt. Der offene Küchenbereich vervollständigt den Bereich. Angrenzend bieten die weiteren Räume gute Voraussetzungen für eine praktische Nutzung, etwa als Schlaf...
Confiance AG
Wohnung zur Miete 1.200 € 3 Zimmer 176 m² 1. Geschoss frei ab sofort Haidenhof-Süd Passau 94032
Neu
D
1.200 €
Kaltmiete
Wohnung zur Miete
3 Zimmer
·
176 m²
·
1. Geschoss
·
frei ab sofort
Haidenhof-Süd, Passau (94032)
Diese außergewöhnliche Wohnung in Uninähe bietet auf 176 m² ein Wohnkonzept der Extraklasse - perfekt geeignet für eine exklusive 3er-Wohngemeinschaft oder anspruchsvolles gemeinsames Wohnen mit viel Freiraum. Der großzügige, loftähnliche Wohnstil mit offenem Wohn-, Ess- und Kochbereich schafft ein helles, modernes Ambiente mit besonderem Flair. Drei separat begehbare Schlafzimmer bieten Privatsphäre für jeden Bewohner. Ein stilvolles Badezimmer sowie ein separates Gäste-WC runden das Raumangeb...
Immowelt logo
Confiance AG
Wohnung zur Miete 690 € 3 Zimmer 76,9 m² 1. Geschoss Grubweg Passau 94034
D
690 €
Kaltmiete
Wohnung zur Miete
3 Zimmer
·
76,9 m²
·
1. Geschoss
Grubweg, Passau (94034)
In begehrter Wohnlage von Passau, im Stadtteil Grubweg, erwartet Sie diese gut geschnittene 3-Zimmer-Wohnung in einem gepflegten Mehrparteienhaus. Die Wohnung überzeugt durch ihre durchdachte Raumaufteilung, eine separate Küche mit hochwertiger Einbauküche sowie einen großzügigen Balkon, der zum Entspannen einlädt. Die Küche ist Eigentum der jetzigen Mieter und steht gerne zur Ablöse bereit. Der großzügige Wohnbereich bildet das Herzstück der Wohnung und bietet direkten Zugang zum großen Balkon...
Herr Michael Resch
Passauer Immobilien Resch & Söhne GmbH seit 1968
Wohnung zur Miete 600 € 3 Zimmer 73,5 m² 2. Geschoss frei ab sofort Kremser Str. 33 Innstadt Passau 94032
E
600 €
Kaltmiete
Wohnung zur Miete
3 Zimmer
·
73,5 m²
·
2. Geschoss
·
frei ab sofort
Kremser Str. 33, Innstadt, Passau (94032)
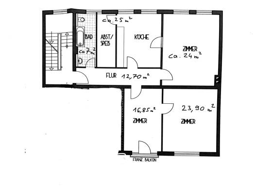
Die Kompakte 3-Zimmer-Wohnung befindet sich in der 2. Etage eines Mehrparteienhauses. Über das Treppenhaus oder den Lift erreichen Sie Ihre Wohnetage. Über einen Laubengang kommen Sie zu Ihrer Wohnungseingangstür. Durch die kleine Diele hindurch in den Flur gelangen Sie zu allen Räumlichkeiten. Das Wohnzimmer hat eine Rechteckige Form und lässt sich super Möblieren, auch der Essbereich kann mitintegriert werden. Ebenso passen in das Schlafzimmer ausreichend Möbel wie en großer Schrank und ein B...
Wohnung zur Miete - Erstbezug 1.245 € 3 Zimmer 94,5 m² EG Hacklberg Passau 94034
1.245 €
Kaltmiete
Wohnung zur Miete - Erstbezug
3 Zimmer
·
94,5 m²
·
EG
Hacklberg, Passau (94034)
- KfW 40 energieeffizienter Neubau - 2,5-Zimmer-Wohnung - Im Inneren erwartet Sie ein großzügiger, offen geschnittener Raum mit Küche. Die Einbauküche ist bereits inkl. Elektrogeräten im Mietpreis enthalten. Ein praktischer Abstellraum direkt neben der Küche bieten zusätzlichen Komfort und beinhaltet einen Anschluss für die Waschmaschine. Der Raum ist halb abgetrennt in ein weiteres Zimmer, welches wunderbar als Wohnzimmer, Esszimmer oder Büro genutzt werden kann. Das separate Schlafzimmer ist ...
Wohnung zur Miete 910 € 3 Zimmer 92,5 m² 3. Geschoss frei ab sofort Haidenhof-Nord Passau 94032
C
910 €
Kaltmiete
Wohnung zur Miete
3 Zimmer
·
92,5 m²
·
3. Geschoss
·
frei ab sofort
Haidenhof-Nord, Passau (94032)
Die Wohnung zeichnet sich durch ihre großzügige und gut durchdachte Raumaufteilung aus. Das Wohnzimmer besticht durch hohe Decken mit sichtbaren Holzbalken, die dem Raum einen sehr gemütlichen Flair verleihen. Große Dachfenster sorgen für reichlich Tageslicht und schaffen eine freundliche und helle Atmosphäre. Die separate Küche verfügt über eine Einbauküche und ist mit allen notwendigen Elektrogeräten ausgestattet. Das Badezimmer bietet sowohl eine Badewanne als auch eine separate Dusche. Ein ...
Wohnungs- und Grundstücksgesellschaft Passau mbH
Wohnung zur Miete 957 € 3 Zimmer 87 m² 3 Geschosse frei ab sofort Zieglreuth 17 Grubweg Passau 94034
957 €
Kaltmiete
Wohnung zur Miete
3 Zimmer
·
87 m²
·
3 Geschosse
·
frei ab sofort
Zieglreuth 17, Grubweg, Passau (94034)
Moderne Eleganz trifft auf natürliche Ruhe in dieser einladenden Drei-Zimmer-Wohnung mit 86,96 m² Wohnfläche im Erstbezug. Das gepflegte Mehrfamilienhaus, in dem diese Wohnung liegt, beherbergt nur sechs Parteien und bietet helle, freundliche Räume sowie einen gut durchdachten Grundriss. Die ruhige Lage in Passau - Zieglreuth sorgt für eine entspannte Wohnatmosphäre, die ideal für Familien und Naturliebhaber ist.
Immowelt logo
Wohnungs- und Grundstücksgesellschaft Passau mbH
Wohnung zur Miete 855 € 3 Zimmer 77,7 m² 3 Geschosse frei ab sofort Zieglreuth 17 Grubweg Passau 94034
855 €
Kaltmiete
Wohnung zur Miete
3 Zimmer
·
77,7 m²
·
3 Geschosse
·
frei ab sofort
Zieglreuth 17, Grubweg, Passau (94034)
Erleben Sie die harmonische Verbindung von Natur und modernem Wohnkomfort in dieser neu errichteten Drei-Zimmer-Wohnung mit 77,69 m² in Passau - Zieglreuth. Die Wohnung liegt im Erstbezug eines gepflegten Mehrfamilienhauses mit nur sechs Einheiten und überzeugt durch lichtdurchflutete, einladende Räume sowie einen durchdachten Grundriss. Genießen Sie die ruhige Atmosphäre der Umgebung, die ideal für entspannende Momente ist.
Wohnungs- und Grundstücksgesellschaft Passau mbH
Wohnung zur Miete 920 € 3 Zimmer 83,7 m² 3 Geschosse frei ab sofort Zieglreuth 15 Grubweg Passau 94034
920 €
Kaltmiete
Wohnung zur Miete
3 Zimmer
·
83,7 m²
·
3 Geschosse
·
frei ab sofort
Zieglreuth 15, Grubweg, Passau (94034)
Moderne Eleganz trifft auf natürliche Ruhe in dieser einladenden Drei-Zimmer-Wohnung mit 83,65 m² Wohnfläche im Erstbezug. Das gepflegte Mehrfamilienhaus, in dem diese Wohnung liegt, beherbergt nur sechs Parteien und bietet helle, freundliche Räume sowie einen gut durchdachten Grundriss. Die ruhige Lage in Passau - Zieglreuth sorgt für eine entspannte Wohnatmosphäre, die ideal für Familien und Naturliebhaber ist.
Living Immo - Immobilien GmbH
Wohnung zur Miete 1.050 € 3 Zimmer 123 m² 2. Geschoss Altstadt Passau 94032
1.050 €
Kaltmiete
Wohnung zur Miete
3 Zimmer
·
123 m²
·
2. Geschoss
Altstadt, Passau (94032)
Diese großzügige und frisch renovierte 3-Zimmer-Altbauwohnung befindet sich in der zweiten Etage eines gepflegten Hauses in der Passauer Altstadt. Auf ca. 123 m² Wohnfläche erwartet Sie ein durchdachter Grundriss mit hellen, großzügigen Räumen. Das Wohnzimmer mit ca. 34 m² liegt auf der Donauseite und bietet einen schönen Ausblick. Zwei Schlafzimmer (ca. 26 m² und ca. 16 m²) befinden sich auf der Gassenseite und bieten vielseitige Nutzungsmöglichkeiten - ob als Schlaf-, Arbeits- oder Gästezimme...
Wohnung zur Miete 880 € 3 Zimmer 104,2 m² 2. Geschoss frei ab 01.06.2026 Altstadt Passau 94032
880 €
Kaltmiete
Wohnung zur Miete
3 Zimmer
·
104,2 m²
·
2. Geschoss
·
frei ab 01.06.2026
Altstadt, Passau (94032)
Diese charmante Wohnung mit einer Wohnfläche von ca. 104 m² befindet sich in attraktiver Altstadtlage und überzeugt durch ihren besonderen Grundriss sowie den klassischen Altbaucharme mit hohen Decken. Nach dem Betreten der Wohnung gelangt man zunächst in den Eingangsbereich, von dem aus einige Treppenstufen in die obere Wohnebene führen. Von hier aus erschließt sich die weiteren Räumlichkeiten. Direkt erreichbar ist das Badezimmer, ausgestattet mit Badewanne und WC. Ein weiteres Zimmer bietet ...
Wie zufrieden bist du mit dieser Seite (nicht mit den Immobilien selbst)?
Markttrends
Immobilienpreis pro m²
Mai 2026
Apartment building illustration
Wohnung
9 €/m²
Niedrigster Preis
6 €/m²
Höchster Preis
16 €/m²
House illustration
Haus
10 €/m²
Niedrigster Preis
7 €/m²
Höchster Preis
14 €/m²
Preisentwicklung
Entdecke die Preisentwicklungen vor Ort und auf dem größeren Markt in den letzten 5 Jahren.
1 Monat
+0.2%
6 Monate
+1.1%
1 Jahr
+2.1%
5 Jahre
-
Passau
Bayern
Auf den Markt reinzoomenZugang zu detaillierten Immobilienpreisen, bis hin zur genauen Adresse.