Version: 8.26.0Navigation überspringen

2 Grundstücke kaufen in Dargun (17159), Mecklenburgische Seenplatte

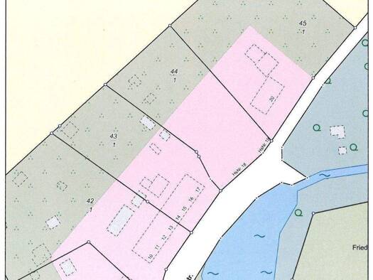
Grundstück zum Kauf 220.000 € 2.235 m² Grundstück Dargun 17159
220.000 € 98,43 €/m²
Grundstück zum Kauf
2.235 m² Grundstück
Dargun (17159)
Zum Verkauf steht ein großzügiges Baugrundstück in zentraler Lage von Dargun. Die ca. 2.235 m² große Liegenschaft befindet sich in einem B-Plan Gebiet und muss nach dem Erwerb noch ortsüblich erschlo...
Immowelt logo
Sparkasse Neubrandenburg-Demmin
Grundstück zum Kauf 82.740 € 1.182 m² Grundstück frei ab sofort Dargun 17159
82.740 € 70 €/m²
Grundstück zum Kauf
1.182 m² Grundstück
·
frei ab sofort
Dargun (17159)
Kurzbeschreibung Zum Verkauf stehen vier erschlossene Baugrundstücke ohne Auflagen, Größe je Grundstück ca. 1.182 m². Objekt In der charmanten Stadt Dargun wartet ein Traumgrundstück auf Sie! Hier ha...
Weitere Ergebnisse in der Nähe
Entdecke weitere Ergebnisse in der Umgebung von Dargun, 17159
Grundstück zum Kauf 91.100 € 3.368 m² Grundstück Lelkendorf Lelkendorf / Gottin 17168
91.100 € 27,05 €/m²
Grundstück zum Kauf
3.368 m² Grundstück
Lelkendorf, Lelkendorf / Gottin (17168)
Energieausweis: ZU DIESER IMMOBILIE LIEGT DERZEIT NOCH KEIN ENERGIEAUSWEIS VOR. IN VORBEREITUNG. Das hier zum Verkauf stehende Baugrundstück erstreckt sich über eine Fläche von ca. 3.368 qm. und ist ...
Grundstück zum Kauf 49.900 € 1.427 m² Grundstück Demmin 17109
49.900 € 34,97 €/m²
Grundstück zum Kauf
1.427 m² Grundstück
Demmin (17109)
Zum Verkauf steht ein attraktives, unbebautes Grundstück in zentraler Lage von Demmin, gelegen an der Jarmener Straße 68. Das Grundstück besteht aus den Flurstücken 76/25 und 76/46 der Gemarkung Demm...
Gewerbegrundstück zum Kauf 850.000 € 20.000 m² Grundstück Loitzer Straße 27 Demmin 17109
Neu
850.000 € 42,50 €/m²
Gewerbegrundstück zum Kauf
20.000 m² Grundstück
Loitzer Straße 27, Demmin (17109)
Ein kürzlich geschlossener Baumarkt steht zum Verkauf. Lkw und Hebetechnik kann zusätzlich erworben werden. Im Bestand sind ein attraktives Lagerobjekt mit separaten Verkaufsflächen. Diese wären auch...
Sparkasse Neubrandenburg-Demmin
Grundstück zum Kauf 100.000 € 2.000 m² Grundstück Demmin 17109
100.000 € 50 €/m²
Grundstück zum Kauf
2.000 m² Grundstück
Demmin (17109)
Kurzbeschreibung Bauerwartungsland zum Bau von Eigenheimen! Objekt Bauerwartungsland ca. 2.000 m² Aufteilung in zwei Baugrundstücke von jeweils ca. 1.000 m² möglich. Grundstück bzw. Grundstücke werde...
Grundstück zum Kauf 35.000 € 1.223 m² Grundstück Pensin 17111
35.000 € 28,62 €/m²
Grundstück zum Kauf
1.223 m² Grundstück
Pensin (17111)
Das zu veräußernde Grundstück liegt an einer ruhigen Durchfahrtsstraße in Quiterow. Alle wesentlichen Versorgungen finden Sie in naher Umgebung. Das zur Wahl stehende Grundstück die mögliche Bebauung...
Grundstück zur Versteigerung 1.800 € 6.280 m² Grundstück Turow Glewitz 18513
Neu
1.800 € 0,29 €/m²
Grundstück zur Versteigerung
6.280 m² Grundstück
Turow, Glewitz (18513)
Nachstehende Informationen sind dem gedruckten Auktions-Katalog, Stand 27.04.2026, entnommen / Änderungen vorbehalten. Der Katalog enthält wichtige Informationen zum Ablauf der Auktion und zu den Mög...
Grundstück zum Kauf provisionsfrei 38.500 € 1.100 m² Grundstück OT Viecheln Bäbelitz Behren-Lübchin 17179
38.500 € 35 €/m²
Grundstück zum Kauf · provisionsfrei
1.100 m² Grundstück
OT Viecheln, Bäbelitz, Behren-Lübchin (17179)
¤ Aufgepasst - wir erfüllen Lebensträume! ¤ Neubauprojekt mit einem modernen Einfamilienhaus nördlich der Warbelstadt Gnoien – modernes Wohnen in schöner Lage wo Ruhe und Erholung garantiert ist! Erf...
Grundstück zur Versteigerung 1.000 € 2.691 m² Grundstück Bäbelitz Behren-Lübchin 17179
Neu
1.000 € 0,37 €/m²
Grundstück zur Versteigerung
2.691 m² Grundstück
Bäbelitz, Behren-Lübchin (17179)
Nachstehende Informationen sind dem gedruckten Auktions-Katalog, Stand 27.04.2026, entnommen / Änderungen vorbehalten. Der Katalog enthält wichtige Informationen zum Ablauf der Auktion und zu den Mög...
Grundstück zum Kauf provisionsfrei 34.000 € 710 m² Grundstück Retzow 17139
34.000 € 47,89 €/m²
Grundstück zum Kauf · provisionsfrei
710 m² Grundstück
Retzow (17139)
Endgrundstück: Bauland mit 700 m² oder 1400 m² in ruhiger Lage.... Zwei teilerschlossene, schattenfreie Baugrundstücke mit je 710 m². Verkauf einzeln oder im Paket. Medien liegen jeweils an, wobei ei...
Grundstück zum Kauf provisionsfrei 95.339 € 858 m² Grundstück Marienhof Sukow-Levitzow 17168
95.339 € 111 €/m²
Grundstück zum Kauf · provisionsfrei
858 m² Grundstück
Marienhof, Sukow-Levitzow (17168)
BUILD YOUR WAY. OWN YOUR SPACE. Dein Traum vom Eigenheim beginnt hier. White&Black bringt dich dorthin - einfach, erschwinglich, zukunftssicher. THE RIGHT MATCH. Finanzierung, Grundstück, Haus - ...
Grundstück zum Kauf provisionsfrei 99.500 € 560 m² Grundstück Zeitlow Loitz 17121
99.500 € 178 €/m²
Grundstück zum Kauf · provisionsfrei
560 m² Grundstück
Zeitlow, Loitz (17121)
560 m² großes Baugrundstück im alten Stadtkern Nahe der Peene, nur 400 m vom Hafen entfernt. Der alte Stadtkern ist als Sanierungsgebiet ausgewiesen zur Erhaltung der historischen Bauten. Ursprünglic...
MAGO Immobilien
Grundstück zum Kauf als Kapitalanlage geeignet 700 m² Grundstück Kösters Eck Pisede Malchin 17139
Preis auf Anfrage
Grundstück zum Kauf · als Kapitalanlage geeignet
700 m² Grundstück
Kösters Eck, Pisede, Malchin (17139)
Die Kleinstadt Malchin liegt mitten in der Mecklenburgischen Schweiz zwischen den landschaftlich sehr schön gelegenen Seen Malchiner See und Kummerow See. Kösters Eck hat sich in den letzten Jahren z...
Grundstück zum Kauf 25.000 € 11.917 m² Grundstück Hohen Mistorf Alt Sührkow 17166
25.000 € 2,10 €/m²
Grundstück zum Kauf
11.917 m² Grundstück
Hohen Mistorf, Alt Sührkow (17166)
Das Areal umfasst drei Bestandsgebäude, die abgerissen werden müssen. Die Scheune ist nach einem Brandschaden nur noch in Ihren Grundmauern vorhanden, Haus und Schweinestall sind verfallen. Die Natur...
Herr Denny Krüger
Grundstück zum Kauf 70.000 € 3.134 m² Grundstück Lühburg 17179
70.000 € 22,34 €/m²
Grundstück zum Kauf
3.134 m² Grundstück
Lühburg (17179)
Zum Verkauf steht ein großzügiges Grundstück mit einer Fläche von etwa 3.134 Quadratmetern. Die Liegenschaft befindet sich direkt an der Bundesstraße 110 und überzeugt durch ihre hervorragende Sichtb...
Grundstück zum Kauf 37.000 € 696 m² Grundstück Malchin 17139
37.000 € 53,16 €/m²
Grundstück zum Kauf
696 m² Grundstück
Malchin (17139)
In attraktiver, innenstadtnaher Lage von Malchin erwartet Sie dieses voll erschlossene Grundstück - der ideale Ort, um Ihr neues Zuhause zu verwirklichen. Eingebettet in eine familienfreundliche Nach...
Grundstück zum Kauf 30.000 € 129 m² Grundstück Malchin 17139
30.000 € 233 €/m²
Grundstück zum Kauf
129 m² Grundstück
Malchin (17139)
Zum Verkauf steht ein vollerschlossenes Baugrundstück in einer ruhigen Anliegerstraße der historischen Innenstadt von Malchin - ohne Bauträgerbindung und ohne Baufrist. Das Grundstück bildet - umgebe...
Grundstück zum Kauf 59.000 € 966 m² Grundstück Malchin 17139
59.000 € 61,08 €/m²
Grundstück zum Kauf
966 m² Grundstück
Malchin (17139)
Ein courtagefreies 966 qm großes erschlossenes Baugrundstück mit vielfältigen Nutzungsmöglichkeiten können wir Ihnen hier anbieten. Erfüllen Sie sich Ihren Wunsch nach einer Stadthausvilla auf großem...
Herr Sören Schuldt
Wohnen in Vorpommern GmbH
Grundstück zum Kauf 25.000 € 315 m² Grundstück Breesen Lindholz 18334
25.000 € 79,37 €/m²
Grundstück zum Kauf
315 m² Grundstück
Breesen, Lindholz (18334)
Mitten im Dorf genau gegenüber vom Dorfteich steht ein echtes Tiny-Baugrundstück von 315 m2 zur Verfügung. Es liegt eine rechtskräftiger Bauvorbescheid für einen Rolling Bungalow vor. Architekten des...
Bundesanstalt für Immobilienaufgaben
Grundstück zum Kauf 1.500 € 2.196 m² Grundstück Wendisch Baggendorf Wendisch Baggendorf OT Bassin 18513
1.500 € 0,68 €/m²
Grundstück zum Kauf
2.196 m² Grundstück
Wendisch Baggendorf, Wendisch Baggendorf OT Bassin (18513)
Das brachliegende Grundstück besitzt keine Anbindung an eine öffentliche Straße, sondern ist nur über einen unbefestigten Rad- und Wanderweg erreichbar, der nach Auskunft des Amtes Franzburg-Richtenb...
Grundstück zum Kauf 45.000 € 1.418 m² Grundstück Kletzin Pensin 17111
45.000 € 31,73 €/m²
Grundstück zum Kauf
1.418 m² Grundstück
Kletzin, Pensin (17111)
Das zu veräußernde Grundstück liegt an einer ruhigen Durchfahrtsstraße in Pensin. Alle wesentlichen Versorgungen finden Sie in naher Umgebung. Das zur Wahl stehende Grundstück die mögliche Bebauung u...
Grundstück zum Kauf provisionsfrei 50.000 € 904 m² Grundstück Zum Landgut Teschow Teterow 17166
50.000 € 55,31 €/m²
Grundstück zum Kauf · provisionsfrei
904 m² Grundstück
Zum Landgut, Teschow, Teterow (17166)
Das schöne Grundstück befindet sich in 17166 Teschow unweit von Teterow. (Entfernung zur Stadtmitte ca. 6 km ) In Teterow sind Einkaufsmöglichkeiten, Schulen , Kindergärten und Krippen , eine sehr gu...
Grundstück zum Kauf 49.000 € 1.338 m² Grundstück Borgstedt Wendisch Baggendorf 18513
49.000 € 36,62 €/m²
Grundstück zum Kauf
1.338 m² Grundstück
Borgstedt, Wendisch Baggendorf (18513)
Dieses großzügige Grundstück mit rund 1.338 m² Fläche befindet sich in Borgstedt, einem ruhigen Ortsteil der Gemeinde Wendisch Baggendorf im Landkreis Vorpommern-Rügen. Das Grundstück ist ortsüblich ...
Herr Denny Krüger
Grundstück zum Kauf 75.000 € 3.798 m² Grundstück Dalwitz 17179
75.000 € 19,75 €/m²
Grundstück zum Kauf
3.798 m² Grundstück
Dalwitz (17179)
Zum Verkauf steht ein großzügiges Grundstück mit einer Fläche von etwa 3700 Quadratmetern in Dalwitz. Aufgrund der Größe und der straßenseitigen Lage eignet sich das Grundstück ideal für Interessente...
Grundstück zur Versteigerung 1.500 € 2.196 m² Grundstück Leyerhof Wendisch Baggendorf 18513
Neu
1.500 € 0,68 €/m²
Grundstück zur Versteigerung
2.196 m² Grundstück
Leyerhof, Wendisch Baggendorf (18513)
Nachstehende Informationen sind dem gedruckten Auktions-Katalog, Stand 27.04.2026, entnommen / Änderungen vorbehalten. Der Katalog enthält wichtige Informationen zum Ablauf der Auktion und zu den Mög...
Grundstück zur Versteigerung 2.500 € 14.440 m² Grundstück Siemersdorf Tribsees 18465
Neu
2.500 € 0,17 €/m²
Grundstück zur Versteigerung
14.440 m² Grundstück
Siemersdorf, Tribsees (18465)
Nachstehende Informationen sind dem gedruckten Auktions-Katalog, Stand 27.04.2026, entnommen / Änderungen vorbehalten. Der Katalog enthält wichtige Informationen zum Ablauf der Auktion und zu den Mög...
Ihr McMakler Team
Grundstück zum Kauf 32.000 € 906,1 m² Grundstück Tribsees 18465
Neu
32.000 € 35,32 €/m²
Grundstück zum Kauf
906,1 m² Grundstück
Tribsees (18465)
Objektnr: 1070654 + Nutzen Sie dieses Grundstück beschaulich und sicher in einer Nebenstraße in urbaner Lage von Tribsees in Hanglage für Ihre nächste Projektierung oder die Errichtung Ihres neues Zu...
Herr Denny Krüger
Grundstück zum Kauf 99.000 € 8.600 m² Grundstück Repnitz 17179
99.000 € 11,51 €/m²
Grundstück zum Kauf
8.600 m² Grundstück
Repnitz
Zum Verkauf steht ein großzügiges Baugrundstück mit einer Fläche von etwa 8.600 Quadratmetern im Ort Repnitz, Gemeinde Lühburg, in Mecklenburg Vorpommern. Das Grundstück befindet sich in ruhiger Dorf...
Grundstück zum Kauf 121.280 € 9.607 m² Grundstück Repnitz Walkendorf-Repnitz 17129
121.280 € 12,62 €/m²
Grundstück zum Kauf
9.607 m² Grundstück
Repnitz, Walkendorf-Repnitz (17129)
Energieausweis: ZU DIESER IMMOBILIE LIEGT DERZEIT NOCH KEIN ENERGIEAUSWEIS VOR. IN VORBEREITUNG. Das hier zum Verkauf stehende Freizeitgrundstück von ca. insgesamt 9607 qm. ist einfach RIESIG, aber n...
Wie zufrieden bist du mit dieser Seite (nicht mit den Immobilien selbst)?
Markttrends
Immobilienpreis pro m²
Mai 2026
Apartment building illustration
Wohnung
1.182 €/m²
Niedrigster Preis
615 €/m²
Höchster Preis
2.007 €/m²
House illustration
Haus
1.148 €/m²
Niedrigster Preis
459 €/m²
Höchster Preis
2.296 €/m²
Preisentwicklung
Entdecke die Preisentwicklungen vor Ort und auf dem größeren Markt in den letzten 5 Jahren.
1 Monat
-0.8%
6 Monate
-0.6%
1 Jahr
-2.8%
5 Jahre
+8.3%
Dargun
Mecklenburg-Vorpommern
Auf den Markt reinzoomenZugang zu detaillierten Immobilienpreisen, bis hin zur genauen Adresse.