Version: 8.23.0Navigation überspringen

2 Grundstücke kaufen in Wilhelmsdorf (91489), Neustadt an der Aisch-Bad Windsheim

Grundstück zum Kauf 240.000 € 2.420 m² Grundstück frei ab sofort Wilhelmsdorf 91489
240.000 € 99,17 €/m²
Grundstück zum Kauf
2.420 m² Grundstück
·
frei ab sofort
Wilhelmsdorf (91489)
Dieses erstklassige Baugrundstück befindet sich in der Gartenstraße in der charmanten Gemeinde Wilhelmsdorf (91489). Mit einer großzügigen Fläche bietet es Ihnen die Möglichkeit, Ihre Wohnträume zu v...
Immowelt logo
Grundstück zum Kauf 198.000 € 1.060,4 m² Grundstück Wilhelmsdorf 91489
198.000 € 187 €/m²
Grundstück zum Kauf
1.060,4 m² Grundstück
Wilhelmsdorf (91489)
Weitere Ergebnisse in der Nähe
Entdecke weitere Ergebnisse in der Umgebung von Wilhelmsdorf, 91489
Grundstück zum Kauf 225.000 € 981 m² Grundstück Emskirchen 91448
225.000 € 229 €/m²
Grundstück zum Kauf
981 m² Grundstück
Emskirchen (91448)
Zum Verkauf steht dieses großzügige Hanggrundstück in toller Lage in Emskirchen. Dieses ist noch unbebaut und wurde von den Eigentümern des oberen Hauses mitbenutzt und bepflanzt. Am oberen Ende des ...
Argetra GmbH
Grundstück zum Kauf provisionsfrei 23.800 € 5.332 m² Grundstück Linden Gerhardshofen 91466
23.800 €
Grundstück zum Kauf · provisionsfrei
5.332 m² Grundstück
Linden, Gerhardshofen (91466)
FÜR EINE SCHNELLE BEARBEITUNG IHRER ANFRAGE, GEBEN SIE BITTE EINE RÜCKRUFNUMMER AN. ANFRAGEN OHNE TELEFONNUMMER KÖNNEN NUR SEHR ZEITVERZÖGERT BEARBEITET WERDEN. VIELEN DANK! Ackerland, Grünland im Au...
Firma VON POLL IMMOBILIEN Shop Neustadt an der Aisch
Grundstück zum Kauf 145.000 € 2.647 m² Grundstück Buchklingen Emskirchen / Buchklingen 91448
145.000 € 54,78 €/m²
Grundstück zum Kauf
2.647 m² Grundstück
Buchklingen, Emskirchen / Buchklingen (91448)
Ihr Traumgrundstück in Buchlingen, Emskirchen: Ruhe, Natur und Lebensqualität Objektbeschreibung: Das großzügige Grundstück mit einer Fläche von 2.647 Quadratmetern liegt in einer ruhigen, idyllische...
von privat
Grundstück zum Kauf provisionsfrei 425.000 € 960 m² Grundstück Zweifelsheim Herzogenaurach 91074
425.000 € 443 €/m²
Grundstück zum Kauf · provisionsfrei
960 m² Grundstück
Zweifelsheim, Herzogenaurach (91074)
Attraktives, ebenes Grundstück in ruhiger Lage in Herzogenaurach, Ortsteil Zweifelsheim. Bebaubar nach § 34 BauGB mit 2 Vollgeschossen und Dachgeschoss. Geeignet für: Einfamilienhaus Doppelhaus Mehrf...
von privat
Grundstück zum Kauf provisionsfrei 225.000 € 450 m² Grundstück Zweifelsheim Herzogenaurach 91074
225.000 € 500 €/m²
Grundstück zum Kauf · provisionsfrei
450 m² Grundstück
Zweifelsheim, Herzogenaurach (91074)
Attraktives, ebenes Grundstück in ruhiger Lage in Herzogenaurach, Ortsteil Zweifelsheim. Bebaubar nach § 34 BauGB mit 2 Vollgeschossen und Dachgeschoss. Geeignet für: Einfamilienhaus Doppelhaus Die G...
Grundstück zum Kauf provisionsfrei 225.000 € 28.377 m² Grundstück Diespeck 91456
225.000 €
Grundstück zum Kauf · provisionsfrei
28.377 m² Grundstück
Diespeck (91456)
BITTE BEACHTEN SIE, DASS SIE BEI IHRER ANFRAGE EINE TELEFONNUMMER ANGEBEN. Ackerland, zum Zeitpunkt der Wertermittlung verpachtet
Argetra GmbH
Grundstück zum Kauf provisionsfrei 225.000 € 28.377 m² Grundstück Diespeck 91456
225.000 €
Grundstück zum Kauf · provisionsfrei
28.377 m² Grundstück
Diespeck (91456)
FÜR EINE SCHNELLE BEARBEITUNG IHRER ANFRAGE, GEBEN SIE BITTE EINE RÜCKRUFNUMMER AN. ANFRAGEN OHNE TELEFONNUMMER KÖNNEN NUR SEHR ZEITVERZÖGERT BEARBEITET WERDEN. VIELEN DANK! Ackerland, zum Zeitpunkt ...
Grundstück zum Kauf 695.000 € 2.116 m² Grundstück Baugenehmigung vorhanden Vorstadtstraße Weisendorf 91085
Neu
695.000 € 328 €/m²
Grundstück zum Kauf
2.116 m² Grundstück
·
Baugenehmigung vorhanden
Vorstadtstraße, Weisendorf (91085)
Zu verkaufen ist ein vielseitug nutzbares Grundstück in Weisendorf. Die aktuelle Bebauung besteht aus einem Scheunengebäude sowie einem Wohn- und Lagerhaus bestehend aus 2 Wohnungen sowie Lagerfläche...
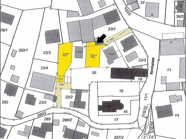
Gewerbegrundstück zum Kauf 449.000 € 4.763 m² Grundstück Neustadt Neustadt a d Aisch 91413
449.000 € 94,27 €/m²
Gewerbegrundstück zum Kauf
4.763 m² Grundstück
Neustadt, Neustadt a d Aisch (91413)
Zum Verkauf steht ein großzügiges Gewerbegrundstück mit einer Gesamtfläche von 4.763 m². Das Grundstück setzt sich aus den im Plan gekennzeichneten roten und gelben Flächen zusammen und bildet eine z...
Grundstück zum Kauf 195.000 € 699 m² Grundstück Diespeck 91456
Neu
195.000 € 279 €/m²
Grundstück zum Kauf
699 m² Grundstück
Diespeck (91456)
Das Grundstück mit leichter Hanglage befindet sich in Nähe der Ortsmitte von Diespeck. Die Nachbarbebauung besteht aus Ein und Zweifamilienhäusern mit schön angelegten Gärten.
Denis Mazebura
Grundstück zum Kauf provisionsfrei 235.305 € 567 m² Grundstück Puschendorfer Straße 9 Kirchfembach Langenzenn 90579
235.305 € 415 €/m²
Grundstück zum Kauf · provisionsfrei
567 m² Grundstück
Puschendorfer Straße 9, Kirchfembach, Langenzenn (90579)
!!!Exklusives Baugrundstück in Langenzenn OT Kirchfembach!!! (von Privat) Willkommen in Ihrem neuen Zuhause in Langenzenn OT Kirchfembach! Dieses exclusive Baugrundstück mit einer Gesamtfläche von 1....
Denis Mazebura
Grundstück zum Kauf provisionsfrei 120.350 € 290 m² Grundstück Baugenehmigung vorhanden Puschendorfer Straße 9 Kirchfembach Langenzenn 90579
120.350 € 415 €/m²
Grundstück zum Kauf · provisionsfrei
290 m² Grundstück
·
Baugenehmigung vorhanden
Puschendorfer Straße 9, Kirchfembach, Langenzenn (90579)
Ruhe und Natur: Das Grundstück ist ideal für Familien, die eine ruhige und grüne Umgebung suchen. Hier finden Sie die perfekte Balance zwischen Naturnähe, moderner Wohnqualität und die Anbindung an e...
Herr Markus Kober
Grundstück zum Kauf provisionsfrei 549.000 € 920 m² Grundstück Weisendorf 91085
549.000 € 597 €/m²
Grundstück zum Kauf · provisionsfrei
920 m² Grundstück
Weisendorf (91085)
Das hier angebotene Grundstück befindet sich in der Marktgemeinde Weisendorf unweit des Schloßgartens. Das Grundstück weißt gemäß Grundbuch eine Gesamtfläche von 920m² auf. Der Abriss des Bestandsgeb...
Grundstück zum Kauf 292.500 € 665 m² Grundstück Puschendorf 90617
292.500 € 440 €/m²
Grundstück zum Kauf
665 m² Grundstück
Puschendorf (90617)
Das teil erschlossene, ruhig gelegene Grundstück mit ca. 665 m² in sehr guter Lage von Puschendorf bietet die Möglichkeit ein großzügiges Einfamilienhaus zu verwirklichen. Es ist Teil eines derzeit b...
von privat
Grundstück zum Kauf provisionsfrei 570.600 € 951 m² Grundstück Puschendorf 90617
570.600 € 600 €/m²
Grundstück zum Kauf · provisionsfrei
951 m² Grundstück
Puschendorf (90617)
Randlage: unverbaubarer Blick Richtung Tuchenbach und Veitsbronn Ortsüblich erschlossen (Strom, Telekom, Wasser/Abwasser) Bebauung nach Bebauungsplan - kein Bauzwang Keine Makleranfragen
2.000.000 € 400 €/m²
Grundstück zum Kauf
5.000 m² Grundstück
Puschendorf (90617)
Großes und schönes Baugrundstück in Puschendorf. Gesamtgröße 5000 m², davon sind 2500 m² erschlossen und 2500 m² müssen noch erschlossen werden. Bebaubar für EFH und DHH
Herr Mathias Fröhlich
Grundstück zum Kauf 2.174 m² Grundstück Puschendorf 90617
Preis auf Anfrage
Grundstück zum Kauf
2.174 m² Grundstück
Puschendorf (90617)
Entdecken Sie ein einzigartiges Baugrundstück in Puschendorf, das mit seiner großzügigen Fläche von etwa 2.181 m² zahlreiche Möglichkeiten bietet, Ihr Traumhaus zu verwirklichen. Dieses Grundstück is...
Herr Tim Hofmann
Grundstück zum Kauf provisionsfrei 239.000 € 862 m² Grundstück frei ab sofort Bamberger Straße 37 Neustadt Neustadt an der Aisch 91413
239.000 € 277 €/m²
Grundstück zum Kauf · provisionsfrei
862 m² Grundstück
·
frei ab sofort
Bamberger Straße 37, Neustadt, Neustadt an der Aisch (91413)
Perfekte Wohnlage in Innenstadtnähe von Neustadt/Aisch. Ideal für den Bau eines Mehrfamilienhauses. Geh- und Fahrtrecht, sowie Erschließung werden dinglich gesichert. Zufahrt über Bamberger Straße un...
Grundstück zum Kauf 645.000 € 1.476 m² Grundstück Baugenehmigung vorhanden frei ab sofort Heimweg 10 Puschendorf 90617
645.000 € 430 €/m²
Grundstück zum Kauf
1.476 m² Grundstück
·
Baugenehmigung vorhanden
·
frei ab sofort
Heimweg 10, Puschendorf (90617)
Schönes, großes Baugrundstück in 90617 Puschendorf bei Herzogenaurach zu verkaufen Das Grundstück umfasst ca. 2.950 m², ist voll erschlossen und unterliegt keinem Bauzwang. Es liegt in einer ruhigen,...
Grundstück zum Kauf 739.500 € 800 m² Grundstück frei ab sofort Herzogenaurach 91074
739.500 € 924 €/m²
Grundstück zum Kauf
800 m² Grundstück
·
frei ab sofort
Herzogenaurach (91074)
BITTE BEACHTEN SIE, DASS WIR NUR ANFRAGEN BEI AUSGEFÜLLTEN KONTAKTFORMULAR MIT ANGABE IHRER ADRESSE & TELEFONNUMMER BEARBEITEN KÖNNEN. In einer hervorragenden Lage von Herzogenaurach befindet sic...
von privat
Grundstück zum Kauf provisionsfrei 195.000 € 511 m² Grundstück Langenzenn 90579
195.000 € 382 €/m²
Grundstück zum Kauf · provisionsfrei
511 m² Grundstück
Langenzenn (90579)
Grundstück 3, Fl.Nr. 553/12, 543 qm, 205.960 EURO und Grundstück 6, Fl.Nr. 553/25, 511 qm, 194.180 EURO . Zum Kaufpreis hinzu kommen noch Nebenkosten wie Notar-, Grundbuchkosten, Grunderwerbssteuer u...
Grundstück zum Kauf 255.000 € 474 m² Grundstück Langenzenn 90579
255.000 € 538 €/m²
Grundstück zum Kauf
474 m² Grundstück
Langenzenn (90579)
Das in Lagenzenn gelegene Grundstück ist derzeit mit einem Reihenmittelhaus (Baujahr ca.1959 ) bebaut. Eine umfassende Renovierung zur eigenen Nutzung bspw. zur Vermietung, Verkauf wäre ebenfalls mög...
Grundstück zum Kauf 550.000 € 880 m² Grundstück Langenzenn 90579
550.000 € 600 €/m²
Grundstück zum Kauf
880 m² Grundstück
Langenzenn (90579)
Der herrliche Baugrund befindet sich in einem Mischgebiet im südlichen Stadtteil von Langenzenn. Sollten Sie einen noch größeren Grund wünschen, so können wir Ihnen das nebenanliegende Grundstück in ...
ZANKL Immobilien
Grundstück zum Kauf 410.000 € 1.376 m² Grundstück frei ab sofort Blumenstraße Langenzenn 90579
Neu
410.000 € 298 €/m²
Grundstück zum Kauf
1.376 m² Grundstück
·
frei ab sofort
Blumenstraße, Langenzenn (90579)
2 Grundstücke ( 798 und 578 m²) in toller Wohnlage warten auf Eigentümer die die bebauung in Angriff nehmen. Die Grundstücke können noch in Ihren Fläcen geändert werden. Ein bebauungsplan für die Flä...
Frau Andrea Krapf
Krapf Immobilien
Grundstück zum Kauf 270.000 € 990 m² Grundstück Uehlfeld 91486
270.000 € 273 €/m²
Grundstück zum Kauf
990 m² Grundstück
Uehlfeld (91486)
Willkommen in Uehlfeld - Ihrem zukünftigen Wohnparadies! Dieses beeindruckende Baugrundstück bietet auf großzügigen 990 m² die ideale Grundlage für Ihr Traumhaus. Ob ein weitläufiger Bungalow mit vie...
Privat von Ernst Reich
Grundstück zum Kauf provisionsfrei 180.000 € 797 m² Grundstück Uehlfeld 91486
180.000 € 226 €/m²
Grundstück zum Kauf · provisionsfrei
797 m² Grundstück
Uehlfeld (91486)
Einmalige Gelegenheit zum Neubau in ruhiger und schöner Bestandslage von Uehlfeld. Es handelt sich nicht um ein Neubaugebiet und es besteht zusätzlich kein Bau-Zwang. Somit auch ideal für Kapitalanle...
Grundstück zum Kauf 600.000 € 1.460 m² Grundstück Langenzenn 90579
600.000 € 411 €/m²
Grundstück zum Kauf
1.460 m² Grundstück
Langenzenn (90579)
Zum Verkauf steht ein attraktives Entwicklungsgrundstück in zentraler Lage von Langenzenn mit einer Gesamtfläche von rund 1.460 m². Das Areal setzt sich aus drei benachbarten Grundstücken zusammen, d...
Grundstück zum Kauf provisionsfrei 270.000 € 600 m² Grundstück Burggrafenhof Langenzenn 90579
270.000 € 450 €/m²
Grundstück zum Kauf · provisionsfrei
600 m² Grundstück
Burggrafenhof, Langenzenn (90579)
Dieses ca. 600 m² große Grundstück bietet ideale Voraussetzungen für die Verwirklichung Ihres Bauvorhabens. Es liegt in einer gewachsenen Wohngegend und überzeugt durch seine ruhige Lage sowie die eb...
Wie zufrieden bist du mit dieser Seite (nicht mit den Immobilien selbst)?
Markttrends
Immobilienpreis pro m²
Februar 2026
Apartment building illustration
Wohnung
2.642 €/m²
Niedrigster Preis
1.715 €/m²
Höchster Preis
3.050 €/m²
House illustration
Haus
2.689 €/m²
Niedrigster Preis
1.076 €/m²
Höchster Preis
4.404 €/m²
Preisentwicklung
Entdecke die Preisentwicklungen vor Ort und auf dem größeren Markt in den letzten 5 Jahren.
1 Monat
-0.2%
6 Monate
-0.2%
1 Jahr
+4.8%
5 Jahre
+2.5%
Wilhelmsdorf
Bayern
Auf den Markt reinzoomenZugang zu detaillierten Immobilienpreisen, bis hin zur genauen Adresse.