

Einfamilienhaus zum KaufMit dem Anruf stimme ich der Anruf-Kontakt-Funktion zu.
Mit dem Anruf stimme ich der Anruf-Kontakt-Funktion zu.
Ehemaliges Bauernhaus mit vielseitigem Nutzungspotenzial, separatem Baugrundstück sowie Nebengebäude
Merkmale
- 2.827 m² Grundstück
- Keller
- Garten
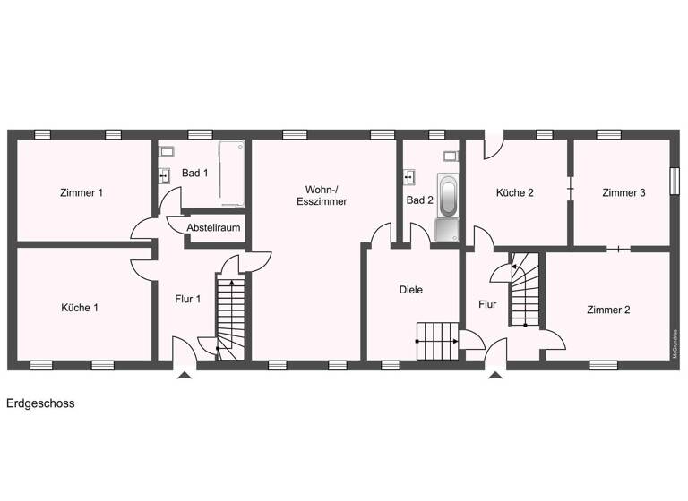
Grundrisse
Grundrisse
1 / 2
Realisiere Dein Projekt
Bausubstanz und Energie
Energieausweis
H
- Baujahr1930
- Zustand der ImmobilieAltbau (bis 1945), Massivhaus
- EnergieträgerÖl
Preisdetails
Kaufpreis
280000 €
1.333,33 €/m²
Provision für Käufer
3,57 % inkl. MwSt.
Geschätzte Gesamtkosten
309.596 €1
Kaufpreis
280.000 €
Kaufnebenkosten
29.596 €
2Notarkosten (1,5%)
4.200 €
Grunderwerbsteuer (5%)
14.000 €
Provision für Käufer (3,57%)
9.996 €
Grundbucheintrag (0,5%)
1.400 €
ab 968 € mtl. finanzieren
1Der angezeigte Wert ist eine automatisch berechnete Schätzung von immowelt.
2Bei den Angaben handelt es sich um ortsübliche Werte. Individuelle Kosten können abweichen.
Preise in der Region
Diese Anzeige
1.333,33 €/m²
Niedrigster Wert in der Region
904 €/m²
Höchster Wert in der Region
1.768 €/m²
¹ Der angegebene Quadratmeterpreis wurde von AVIV Germany automatisch anhand des angegebenen Verkaufspreises und der angegebenen Quadratmeterzahl des Objektes berechnet. Der Vergleichswert basiert auf den verfügbaren Marktwerten zu Objekten ähnlicher Beschaffenheit und Lage. Diese Angaben können eine gutachterliche Bewertung nicht ersetzen, da diese immer auch vom Zustand und der Lage des konkreten Objektes abhängig ist.
Lage

Ziegenhain (57632)
Der Anbieter hat die genaue Adresse nicht freigegeben
Weitere Informationen
Weitere Services
Lust auf eine Besichtigung?
Eine Frage zur Immobilie?
Über den Anbieter
Neumarkt 1, 57627 Hachenburg
6 Jahre Partnerschaft

Frau Angelina JungDein Kontakt
Online-ID: 26EQQXQUCRZC
Referenznummer: 2 116 3
Du willst verkaufen?Schätze den Wert deiner Immobilie


Immobiliengesellschaft der Westerwald Bank mbH
Bewertung: 4,6 von 5 Sternen
Wie zufrieden bist du mit dieser Seite (nicht mit der Immobilie selbst)?

