

Maisonette zum Kauf - ErstbezugMit dem Anruf stimme ich der Anruf-Kontakt-Funktion zu.
Mit dem Anruf stimme ich der Anruf-Kontakt-Funktion zu.
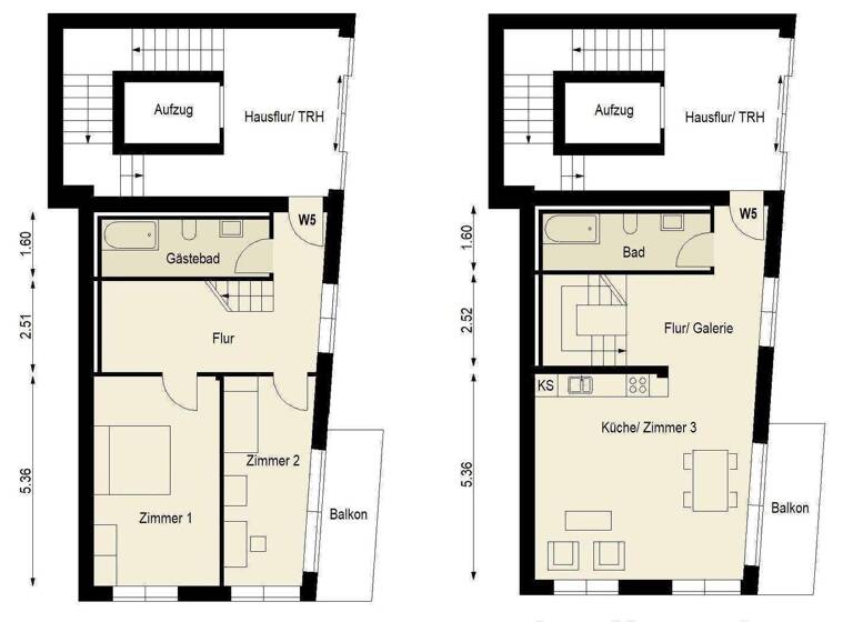
3-Zimmer-Maisonette im Erstbezug / Lift / Balkon / Bad / Gäste WC / Fertigstellung ist erfolgt – 0172-3261193
Merkmale
- Bezug: Ab sofort
- 3. Geschoss
- Haustiere erlaubt
- offene Küche
- Keller
- Bad/WC getrennt, Gäste-WC
- Balkon
Grundrisse
Grundrisse
1 / 1
Realisiere Dein Projekt
Bausubstanz und Energie
Möchtest du Details zum Energieverbrauch?

- Baujahr2024
- Zustand der ImmobilieNeubau, Erstbezug
- HeizungsartZentralheizung: Fußbodenheizung
- EnergieträgerFernwärme
Preisdetails
Kaufpreis
870000 €
7.457,57 €/m²
Provision für Käufer
3,57% inkl. MwSt.
Provision fällig bei Abschluß eines notariellen Kaufvertrages
Provision fällig bei Abschluß eines notariellen Kaufvertrages
Geschätzte Gesamtkosten
970.659 €1
Kaufpreis
870.000 €
Kaufnebenkosten
100.659 €
2Notarkosten (1,5%)
13.050 €
Grunderwerbsteuer (6%)
52.200 €
Provision für Käufer (3,57%)
31.059 €
Grundbucheintrag (0,5%)
4.350 €
ab 3.041 € mtl. finanzieren
1Der angezeigte Wert ist eine automatisch berechnete Schätzung von immowelt.
2Bei den Angaben handelt es sich um ortsübliche Werte. Individuelle Kosten können abweichen.
Preise in der Region
Diese Anzeige
7.457,57 €/m²
Niedrigster Wert in der Region
3.985 €/m²
Höchster Wert in der Region
9.419 €/m²
¹ Der angegebene Quadratmeterpreis wurde von AVIV Germany automatisch anhand des angegebenen Verkaufspreises und der angegebenen Quadratmeterzahl des Objektes berechnet. Der Vergleichswert basiert auf den verfügbaren Marktwerten zu Objekten ähnlicher Beschaffenheit und Lage. Diese Angaben können eine gutachterliche Bewertung nicht ersetzen, da diese immer auch vom Zustand und der Lage des konkreten Objektes abhängig ist.
Lage

Mitte, Berlin (10178)
Der Anbieter hat die genaue Adresse nicht freigegeben
Weitere Informationen
Weitere Services
Lust auf eine Besichtigung?
Eine Frage zur Immobilie?
Über den Anbieter
Online-ID: 26KEDKZ8RLLU
Referenznummer: 5-69rfj66mtj98r
Du willst verkaufen?Schätze den Wert deiner Immobilie


Gerd Kühle Immobilien GmbH
Bewertung: 4,9 von 5 Sternen
Wie zufrieden bist du mit dieser Seite (nicht mit der Immobilie selbst)?

