Version: 8.24.0Navigation überspringen

1 Angebot für 4 - 4,5-Zimmer Wohnungen mieten in Georgsmarienhütte (49124), Osnabrück

von privat
Wohnung zur Miete 500 € 4 Zimmer 77 m² Geschoss 1/3 frei ab 01.06.2026 Oesede Georgsmarienhütte 49124
500 €
Kaltmiete
Wohnung zur Miete
4 Zimmer
·
77 m²
·
Geschoss 1/3
·
frei ab 01.06.2026
Oesede, Georgsmarienhütte (49124)
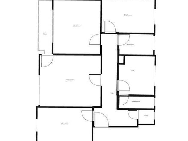
Ich vermiete zum 01.06.2026 eine helle 4 Zimmer Wohnung mit ca. 77 m² Wohnfläche in AltGeorgmarienhütte nähe Waldbad,in ruhiger Wohnlage ohne Durchgangsverkehr. Die Wohnung befindet sich im 1. Obergeschoss eines 6-Familienhauses und verfügt über 4 Zimmer, einer Küche, sowie ein Tageslichtbad mit Badewane. Ideal für einen 2-3 Personenhaushalt. Außerdem ist ein kleiner Balkon vorhanden.Wohnzimmer und Kinderzimmer mit Balkonzugang. Keine Haustiere! Da der jetzige Mieter sich schon im Auszug befind...
Immowelt logo
Weitere Ergebnisse in der Nähe
Entdecke weitere Ergebnisse in der Umgebung von Georgsmarienhütte, 49124
Frau Stucke
Wohnung zur Miete 849 € 4 Zimmer 86,4 m² frei ab 12.03.2026 Iburger Str. 45 Nahne Osnabrück 49082
C
849 €
Kaltmiete
Wohnung zur Miete
4 Zimmer
·
86,4 m²
·
frei ab 12.03.2026
Iburger Str. 45, Nahne, Osnabrück (49082)
Diese helle und freundliche 4-Zimmer-Wohnung im Dachgeschoss eines gepflegten Mehrfamilienhauses bietet idealen Raum für Wohngemeinschaften von Studenten und/oder Auszubildenden. Alle Räume sind vom Flur aus zugänglich, was eine flexible Nutzung ermöglicht. Die Küche ist groß genug, um auch als gemeinschaftlicher Treffpunkt oder Essbereich genutzt zu werden - perfekt für gemeinsame Kochabende. Sie ist mit einer Einbauküche ausgestattet, sodass Sie sofort loslegen können. Die Wohnung verfügt übe...
Wohnung zur Miete 770 € 4 Zimmer 96 m² 2. Geschoss An den Spoolen 5 Voxtrup Osnabrück 49086
Neu
770 €
Kaltmiete
Wohnung zur Miete
4 Zimmer
·
96 m²
·
2. Geschoss
An den Spoolen 5, Voxtrup, Osnabrück (49086)
Diese charmante Mietwohnung im 2. Obergeschoss überzeugt durch seine gute Raumaufteilung. Neben den zwei Schlafzimmern und einer großen Küche ist ein besonderes Highlight der ausgebaute Spitzboden. Dieser schafft ein großzügiges Raumgefühl. Hier entsteht ein zusätzlicher Bereich, der sich ideal als Homeoffice, Hobbyraum oder gemütliche Rückzugsort eignet. Weiterer Pluspunkt ist der Balkon, angrenzend am Wohnzimmer. Neben einem Kellerraum gehört zu der Wohnung ein PKW-Stellplatz vor dem Haus. An...
von privat
Wohnung zur Miete 390 € 4 Zimmer 16 m² 1. Geschoss frei ab sofort Lange Straße 17 A Wüste Osnabrück 49080
Neu
390 €
Kaltmiete
Wohnung zur Miete
4 Zimmer
·
16 m²
·
1. Geschoss
·
frei ab sofort
Lange Straße 17 A, Wüste, Osnabrück (49080)
Moderne 4er WG vollständig Möbliert in Schlossnähe. Gute Bindung an ÖPNV und zentrale Lage. Alle Unistandorte mit dem Fahrrad und Bus in kurzer Zeit zu erreichen. Supermarkt ist quasi direkt vor der Tür. Es ist eine gesellige WG und zusammen wird gerne auch was unternommen. Hier einmal eine kurze Vorstellung. Hey, ich bin Emily (23) und studiere IBM im 2. Semester an der Hochschule Osnabrück, komme aber ursprünglich aus Celle. Weil ich dort noch eine Reitbeteiligung habe, bin ich meistens über ...
Studio zur Miete 1.264 € 4 Zimmer 94,7 m² 4. Geschoss frei ab 15.03.2026 Töpferhof 3 Hellern Osnabrück 49078
A
1.264 €
Kaltmiete
Studio zur Miete
4 Zimmer
·
94,7 m²
·
4. Geschoss
·
frei ab 15.03.2026
Töpferhof 3, Hellern, Osnabrück (49078)
Virtueller Rundgang: https://my.matterport.com/show/?m=UrYpGHuhkPW Ihre Traumwohnung wartet! Diese schicke 4-Zimmer-Wohnung liegt mitten im Herzen der Stadt und bietet auf einer großzügigen Wohnfläche von rund 95 m² den perfekten Ort zum Wohlfühlen. Gelegen in der vierten Etage eines sechsstöckigen Neubauhauses aus dem Jahr 2020, finden Paare oder kleine Familien in dem modernen Mietobjekt ein wundervolles neues Zuhause. Der offene Wohn- und Essbereich mit integrierter Einbauküche ist das Herzs...
Studio zur Miete 1.264 € 4 Zimmer 94,4 m² 1. Geschoss frei ab 15.03.2026 Töpferhof 3 Hellern Osnabrück 49078
A
1.264 €
Kaltmiete
Studio zur Miete
4 Zimmer
·
94,4 m²
·
1. Geschoss
·
frei ab 15.03.2026
Töpferhof 3, Hellern, Osnabrück (49078)
Ihre Traumwohnung wartet! Diese schicke 4-Zimmer-Wohnung liegt mitten im Herzen der Stadt und bietet auf einer großzügigen Wohnfläche von rund 94 m² den perfekten Ort zum Wohlfühlen. Gelegen in der ersten Etage eines sechsstöckigen Neubauhauses aus dem Jahr 2020, finden Paare oder kleine Familien in dem modernen Mietobjekt ein wundervolles neues Zuhause. Der offene Wohn- und Essbereich mit integrierter Einbauküche ist das Herzstück der Wohnung. Hier können Sie gesellige Abende mit Freunden verb...
Privat vom Eigentümer
Wohnung zur Miete - Erstbezug 1.370 € 4 Zimmer 106,8 m² 1. Geschoss frei ab sofort Wissinger Mark 21 Bissendorf 49143
A+
1.370 €
Kaltmiete
Wohnung zur Miete - Erstbezug
4 Zimmer
·
106,8 m²
·
1. Geschoss
·
frei ab sofort
Wissinger Mark 21, Bissendorf (49143)
Willkommen in Ihrem neuen Zuhause! Diese hochwertige 4-Zimmer-Neubauwohnung im 1. Obergeschoss überzeugt durch einen durchdachten Grundriss, helle Räume und eine moderne, energieeffiziente Ausstattung. Mit einer Wohnfläche von ca. 106,82 m² bietet die Wohnung ausreichend Platz für Familien, Paare mit Platzbedarf oder anspruchsvolle Berufstätige. Dank KfW-40-QNG-Standard, Wärmepumpe und Photovoltaikanlage profitieren Sie von sehr niedrigen Betriebskosten - nachhaltig und zukunftssicher. Eckdaten...
von privat
Wohnung zur Miete 1.100 € 4 Zimmer 140 m² Geschoss 1/2 frei ab 01.06.2026 Remsede Bad Laer 49196
Neu
1.100 €
Kaltmiete
Wohnung zur Miete
4 Zimmer
·
140 m²
·
Geschoss 1/2
·
frei ab 01.06.2026
Remsede, Bad Laer (49196)
Die gepflegte Wohnung befindet sich im Obergeschoss eines 2-Familienhauses. Zur Lage: Die Immobilie befindet sich in Bad Laer/Ortsteil Remsede inmitten der Kurorte Bad Rothenfelde, Bad Iburg und Bad Laer. Es besteht eine gute Anbindung nach Osnabrück, Münster und Bielefeld. Eine Bushaltestelle ist ca. 50 m von der Wohnung entfernt. Die Wohnung verfügt über 140 qm und einen 8 qm großen Balkon in Südwestausrichtung. Sie besticht durch die helle Gestaltung, die ein modernes und komfortables Wohnge...
Wohnung zur Miete 1.400 € 4 Zimmer 119,5 m² 2. Geschoss frei ab sofort Wachsbleiche/Stüvestr. 28 a-c/42 Westerberg Osnabrück 49076
1.400 €
Kaltmiete
Wohnung zur Miete
4 Zimmer
·
119,5 m²
·
2. Geschoss
·
frei ab sofort
Wachsbleiche/Stüvestr. 28 a-c/42, Westerberg, Osnabrück (49076)
In einer der besten Lage Osnabrücks-Westerberg entstand 2021 dieser moderne Wohn- und Geschäftshauskomplex. Insgesamt wurden hier 55 Mietwohnungen errichtet. Die hier angebotene 4-Zimmer-Wohnung befindet sich im 2. Obergeschoss dieser Wohnanlage mit Blick zur Hase. Rund 119,54 m² Wohnfläche verteilen sich auf ein kombiniertes Wohn-/Esszimmer mit offener Küche, ein Schlafzimmer, ein Kinderzimmer, Arbeitszimmer, ein Tageslichtbad mit Dusche und Badewanne, Abstellraum, Flur und einem extravaganten...
Wohnung zur Miete 2.355 € 4 Zimmer 174,2 m² 2. Geschoss Westerberg Osnabrück 49076
C
2.355 €
Kaltmiete
Wohnung zur Miete
4 Zimmer
·
174,2 m²
·
2. Geschoss
Westerberg, Osnabrück (49076)
Objektbeschreibung Ein wunderschönes Objekt mit vier Wohneinheiten. Das charmante Gebäude aus dem Jahr 1930 wurde im Jahr 2007 umfassend kernsaniert. Bereits das großzügige Treppenhaus spiegelt den besonderen Charakter und den zeitlosen Charme des Hauses wider. Dieses außergewöhnliche Objekt überzeugt durch ein repräsentatives Treppenhaus, eine gepflegte und ansprechende Außenanlage sowie Garagen mit direktem Zugang zum Haus. Zusätzlich stehen separate Stellplätze zur Verfügung, die auch Platz ...
von privat
Wohnung zur Miete 750 € 4 Zimmer 107 m² Geschoss 1/2 Hasbergen 49205
750 €
Kaltmiete
Wohnung zur Miete
4 Zimmer
·
107 m²
·
Geschoss 1/2
Hasbergen (49205)
Die Wohnung befindet sich in einer ruhigen gepflegten Nachbarschaft. Zu der Wohnung gehört eine Garage und Kellerraum. Die Zimmer erstrecken sich über 2 Etagen: im EG befinden sich die Küche, Bad, ein Zimmer sowie das große Wohn/Esszimmer. Im 1. OG befinden sich 2 weitere Zimmer mit einem Bad (WC + Waschbecken). Der Garten wird mit vermietet, dafür wird die Pflege des Gartens (Hanglage) erwartet. Sowohl eine vorhandene Einbauküche als auch andere Möbel / Gardinen können bei Zahlung einer Abstan...
Wohnung zur Miete 550 € 4 Zimmer 121,6 m² 3. Geschoss frei ab sofort Natruper Straße 95 Westerberg Osnabrück 49076
F
550 €
Warmmiete
Wohnung zur Miete
4 Zimmer
·
121,6 m²
·
3. Geschoss
·
frei ab sofort
Natruper Straße 95, Westerberg, Osnabrück (49076)
Du hast zum Unistart noch keine passende WG gefunden? Dann haben wir mit diesem Mietangebot genau das Richtige für dich! Es handelt es sich um eine frisch sanierte, 121,63m² große Wohnung mit vier WG-Zimmern, mitten in Osnabrück. In nur wenigen Gehminuten sind die Innenstand, der Bahnhof, Fitnessstudios, Restaurants und diverse Freizeiteinrichtungen erreichbar. Die Universität und die Hochschulen sind mit dem Fahrrad nur wenige Minuten entfernt. Zudem befindet sich in unmittelbarer Nähe eine Bu...
­datos Immobilien GmbH
Penthouse zur Miete - Erstbezug 2.650 € 4 Zimmer 154,5 m² EG Westerberg Osnabrück 49076
A+
2.650 €
Kaltmiete
Penthouse zur Miete - Erstbezug
4 Zimmer
·
154,5 m²
·
EG
Westerberg, Osnabrück (49076)
Die WesterbergLogen vereinen zeitgemäße Architektur, hochwertige Ausstattung und eine attraktive Lage am beliebten Osnabrücker Westerberg. Das Neubauensemble bietet ein urbanes Wohngefühl mit hohem Komfort - ideal für alle, die Wert auf Qualität und eine gute Anbindung legen. Die Wohnungen überzeugen durch helle Grundrisse, großzügige Fensterflächen und moderne Ausstattungsdetails. Fußbodenheizung, hochwertige Bodenbeläge und offene Wohnbereiche schaffen ein angenehmes Wohnambiente. Jede Einhei...
Frau Stucke
Wohnung zur Miete 937 € 4 Zimmer 86,4 m² 2. Geschoss frei ab 12.03.2026 In der Dodesheide 142 Dodesheide Osnabrück 49088
B
937 €
Kaltmiete
Wohnung zur Miete
4 Zimmer
·
86,4 m²
·
2. Geschoss
·
frei ab 12.03.2026
In der Dodesheide 142, Dodesheide, Osnabrück (49088)
Diese großzügige und helle 4-Zimmer-Wohnung befindet sich im 2. Obergeschoss eines bereits modernisierten Mehrfamilienhauses und präsentiert sich nach einer umfassenden Renovierung in einem top gepflegten Zustand. Alle Räume sind bequem vom zentralen Flur aus erreichbar, was für einen praktischen und harmonischen Grundriss sorgt. Die Wohnung überzeugt durch lichtdurchflutete Zimmer, die vielfältige Nutzungsmöglichkeiten bieten - ideal für Familien, Homeoffice oder Paare mit Platzbedarf. Ein bes...
Frau Stucke
Wohnung zur Miete 712 € 4 Zimmer 82,7 m² 2. Geschoss frei ab 12.03.2026 Schlesische Str. 8 Dodesheide Osnabrück 49088
B
712 €
Kaltmiete
Wohnung zur Miete
4 Zimmer
·
82,7 m²
·
2. Geschoss
·
frei ab 12.03.2026
Schlesische Str. 8, Dodesheide, Osnabrück (49088)
Diese Wohnung lohnt sich, besichtigt zu werden. Vom Flur aus erreichen Sie alle Räume; die großen Fenster sorgen für viel Tageslicht. Es wurde bereits umfassend renoviert, einem kurzfristigen Einzug steht daher nichts im Weg. Parkmöglichkeiten befinden sich direkt vor dem Haus.
von privat
Wohnung zur Miete 1.000 € 4 Zimmer 86 m² Geschoss 1/3 frei ab sofort Belm 49191
1.000 €
Kaltmiete
Wohnung zur Miete
4 Zimmer
·
86 m²
·
Geschoss 1/3
·
frei ab sofort
Belm (49191)
Willkommen in dieser charmanten Wohnung in der Stettiner Straße, im Herzen von Belm (49191). Auf 86 Quadratmetern bietet diese ansprechende 4-Zimmer-Wohnung alles, was eine Familie zum Wohlfühlen braucht. Mit einem modernen Badezimmer und einem WC, und einer voll ausgestatteten Küche ist der Wohnraum sowohl funktional als auch einladend. Genießen Sie die frische Luft auf dem Balkon, während die Parkplätze bequem direkt vor der Tür zur Verfügung stehen. Die Umgebung hat ebenfalls einiges zu biet...
Wohnung zur Miete - Erstbezug 1.256 € 4 Zimmer 93 m² 2. Geschoss frei ab 01.06.2026 Büren Lotte 49504
1.256 €
Kaltmiete
Wohnung zur Miete - Erstbezug
4 Zimmer
·
93 m²
·
2. Geschoss
·
frei ab 01.06.2026
Büren, Lotte (49504)
Im attraktiven Neubauquartier ,,Schafwinkel" in Lotte entstehen insgesamt 44 moderne Wohneinheiten, die im Rahmen der Hausverwaltung durch unser Büro angeboten werden. Die Fertigstellung der ersten Gebäudeteile ist für Juni 2026 geplant. Bereits jetzt zeichnet sich ab, dass das Projekt Schafwinkel ein neues Highlight im Lotter Wohnungsmarkt wird - ideal für alle, die modernes, energieeffizientes und komfortables Wohnen schätzen. Das Quartier kombiniert hohe Bauqualität mit einer bezahlbaren Mie...
Wohnung zur Miete - Erstbezug 1.204 € 4 Zimmer 86 m² 2. Geschoss frei ab 01.05.2026 Büren Lotte 49504
1.204 €
Kaltmiete
Wohnung zur Miete - Erstbezug
4 Zimmer
·
86 m²
·
2. Geschoss
·
frei ab 01.05.2026
Büren, Lotte (49504)
Im attraktiven Neubauquartier ,,Schafwinkel" in Lotte entstehen insgesamt 44 moderne Wohneinheiten, die im Rahmen der Hausverwaltung durch unser Büro angeboten werden. Die Fertigstellung der ersten Gebäudeteile ist für Juni 2026 geplant. Bereits jetzt zeichnet sich ab, dass das Projekt Schafwinkel ein neues Highlight im Lotter Wohnungsmarkt wird - ideal für alle, die modernes, energieeffizientes und komfortables Wohnen schätzen. Das Quartier kombiniert hohe Bauqualität mit einer bezahlbaren Mie...
Wohnung zur Miete 1.160 € 4 Zimmer 100,8 m² 1. Geschoss frei ab 01.04.2026 Henriettenstraße 4 Dissen Dissen T. W. 49201
1.160 €
Kaltmiete
Wohnung zur Miete
4 Zimmer
·
100,8 m²
·
1. Geschoss
·
frei ab 01.04.2026
Henriettenstraße 4, Dissen, Dissen T. W. (49201)
Auf dem ehemaligen Areal des "Albertinenstift"-Krankenhauses entstand das zukunftsorientierte HenriettenQuartier mit insgesamt 29 Wohneinheiten, verteilt auf zwei Häusern. Als KfW-Effizienzhaus 40+ verbindet das HenriettenQuartier eine energetisch klimafreundliche Versorgung, exzellente digitale Infrastruktur und innovative Mobilitätskonzepte mit naturnahen, durchmischten Wohnformen und nachhaltiger, ganzheitlicher Lebensqualität. Das Wohnquartier zeichnet sich zudem durch besondere Standortfak...
Wohnung zur Miete - Erstbezug 1.269 € 4 Zimmer 94 m² 2. Geschoss frei ab 01.06.2026 Büren Lotte 49504
1.269 €
Kaltmiete
Wohnung zur Miete - Erstbezug
4 Zimmer
·
94 m²
·
2. Geschoss
·
frei ab 01.06.2026
Büren, Lotte (49504)
Im attraktiven Neubauquartier ,,Schafwinkel" in Lotte entstehen insgesamt 44 moderne Wohneinheiten, die im Rahmen der Hausverwaltung durch unser Büro angeboten werden. Die Fertigstellung der ersten Gebäudeteile ist für Juni 2026 geplant. Bereits jetzt zeichnet sich ab, dass das Projekt Schafwinkel ein neues Highlight im Lotter Wohnungsmarkt wird - ideal für alle, die modernes, energieeffizientes und komfortables Wohnen schätzen. Das Quartier kombiniert hohe Bauqualität mit einer bezahlbaren Mie...
Wohnung zur Miete - Erstbezug 1.246 € 4 Zimmer 89 m² 2. Geschoss frei ab 01.06.2026 Büren Lotte 49504
1.246 €
Kaltmiete
Wohnung zur Miete - Erstbezug
4 Zimmer
·
89 m²
·
2. Geschoss
·
frei ab 01.06.2026
Büren, Lotte (49504)
Im attraktiven Neubauquartier ,,Schafwinkel" in Lotte entstehen insgesamt 44 moderne Wohneinheiten, die im Rahmen der Hausverwaltung durch unser Büro angeboten werden. Die Fertigstellung der ersten Gebäudeteile ist für Juni 2026 geplant. Bereits jetzt zeichnet sich ab, dass das Projekt Schafwinkel ein neues Highlight im Lotter Wohnungsmarkt wird - ideal für alle, die modernes, energieeffizientes und komfortables Wohnen schätzen. Das Quartier kombiniert hohe Bauqualität mit einer bezahlbaren Mie...
Wohnung zur Miete - Erstbezug 1.202 € 4 Zimmer 89 m² 2. Geschoss frei ab 01.06.2026 Büren Lotte 49504
1.202 €
Kaltmiete
Wohnung zur Miete - Erstbezug
4 Zimmer
·
89 m²
·
2. Geschoss
·
frei ab 01.06.2026
Büren, Lotte (49504)
Im attraktiven Neubauquartier ,,Schafwinkel" in Lotte entstehen insgesamt 44 moderne Wohneinheiten, die im Rahmen der Hausverwaltung durch unser Büro angeboten werden. Die Fertigstellung der ersten Gebäudeteile ist für Juni 2026 geplant. Bereits jetzt zeichnet sich ab, dass das Projekt Schafwinkel ein neues Highlight im Lotter Wohnungsmarkt wird - ideal für alle, die modernes, energieeffizientes und komfortables Wohnen schätzen. Das Quartier kombiniert hohe Bauqualität mit einer bezahlbaren Mie...
Maisonette zur Miete 1.276 € 4 Zimmer 116 m² 2. Geschoss frei ab sofort Schledehausen Bissendorf / Schledehausen 49143
A+
1.276 €
Kaltmiete
Maisonette zur Miete
4 Zimmer
·
116 m²
·
2. Geschoss
·
frei ab sofort
Schledehausen, Bissendorf / Schledehausen (49143)
Wir freuen uns, Ihnen diese exklusive Maisonette-Wohnung zur Miete anbieten zu können. Die Wohnung befindet sich im zweiten Stock eines Neubaus aus dem Jahr 2022 und bietet eine Wohnfläche von insgesamt 116 Quadratmetern. Mit vier Zimmern und drei Schlafzimmern bietet diese Wohnung genügend Platz für Familien oder WG's. Die Wohnung verfügt über ein modernes Design und ist in einem neuwertigen Zustand. Sie besteht aus zwei Etagen, die durch eine elegante Treppe verbunden sind. Auf jeder Etage be...
von privat
Wohnung zur Miete 1.320 € 4 Zimmer 110 m² frei ab sofort Wallenhorst 49134
1.320 €
Kaltmiete
Wohnung zur Miete
4 Zimmer
·
110 m²
·
frei ab sofort
Wallenhorst (49134)
o Erstbezug o Großzügige Grundrisse mit offener Wohnküche o Hochwertige, dimmbare Einbaustrahler im Wohnbereich o Alle Bäder mit Tageslicht, hochwertiger Ausstattung und bodengleichen Duschen o Elektrische Rollläden in allen Räumen o Energieeffizientes Heizen über Erdwärmepumpe, Fußbodenheizung in allen Räumen, Photovoltaikstrom vom eigenen Dach (Mieterstrom), Wasserenthärtungsanlage o Glasfaseranschluss (Hausanschluss) vorhanden o Großzügige Terrassen bzw. Balkone, Erdgeschosswohnung mit Garte...
Privat vom Eigentümer
Penthouse zur Miete - Erstbezug 1.700 € 4 Zimmer 163 m² 2. Geschoss Altenmelle Melle 49324
A+
1.700 €
Kaltmiete
Penthouse zur Miete - Erstbezug
4 Zimmer
·
163 m²
·
2. Geschoss
Altenmelle, Melle (49324)
Top Lage, zentral gelegen Kategorie: Luxus Bauweise: Massiv Energieeffizienzklasse­: A+ schwellenarm und barrierefrei! Diese schöne hell durchflutete Penthouse Wohnung im 2.OG zeichnet sich durch eine gehobene Innenausstattung aus und kann "zu sofort" bezogen werden. Das Gebäude wurde nach Kfw 40 plus Standard errichtet und bietet somit neuesten Wohnkomfort bei gleichzeitiger Energieeffizienz. Ein Highlight ist die stufenlose sonnige Dachterrasse. Zu dem Objekt zählen neben vier einladenden Zim...
Wohnung zur Miete 950 € 4 Zimmer 100 m² frei ab 01.04.2026 Laggenbeck Ibbenbüren-Laggenbeck 49479
G
950 €
Kaltmiete
Wohnung zur Miete
4 Zimmer
·
100 m²
·
frei ab 01.04.2026
Laggenbeck, Ibbenbüren-Laggenbeck (49479)
Willkommen in dieser charmanten Etagenwohnung zur Miete in Ibbenbüren-Laggenbeck. Die im Jahr 1978 erbaute Wohnung beeindruckt mit einer großzügigen Wohnfläche von ca. 100 m² und bietet damit viel Raum zur Entfaltung. Mit insgesamt vier Zimmern, darunter drei gemütliche Schlafzimmer, ist diese Wohnung ideal für Familien oder Paare, die zusätzlichen Platz suchen. Ein saniertes Tageslichtbad rundet das durchdachte Raumkonzept ab. Ein besonderes Highlight ist der Balkon, der zum Entspannen einlädt...
Wohnung zur Miete - Erstbezug 1.276 € 4 Zimmer 116 m² EG frei ab sofort Buer Melle 49328
1.276 €
Kaltmiete
Wohnung zur Miete - Erstbezug
4 Zimmer
·
116 m²
·
EG
·
frei ab sofort
Buer, Melle (49328)
Diese ebenerdige und großzügige 4-Zimmer-Wohnung bietet Ihrer Familie alles, was das Leben komfortabel, stilvoll und entspannt macht. Das moderne Zuhause überzeugt mit einem frischen Wohngefühl, hochwertiger Ausstattung und durchdachtem Wohnkomfort - perfekt für Familien, die Wert auf Qualität und modernes Wohnen legen. Und das Beste: Sie sind die ersten, die dieses schöne Zuhause beziehen! Lebensmittelpunkt und Herzstück ist das großzügige Wohn- und Esszimmer mit offener Küche. Kochen, essen, ...
Wohnung zur Miete - Erstbezug 1.150 € 4 Zimmer 107 m² 2. Geschoss frei ab sofort Buer Melle 49328
1.150 €
Kaltmiete
Wohnung zur Miete - Erstbezug
4 Zimmer
·
107 m²
·
2. Geschoss
·
frei ab sofort
Buer, Melle (49328)
Sind Sie auf der Suche nach Ruhe und herrlichen Ausblicken mit kurzen Wegen zu allen Alltagsdingen? Dann haben wir hier das passende Zuhause für Ihr Wohlgefühl gefunden! Diese moderne und hochwertig ausgestattete Dachgeschosswohnung bietet Paaren oder Familien ein Zuhause, das Komfort, Stil und zeitgemäße Technik ideal vereint. Im Erstbezug überzeugt die Wohnung mit einem frischen Wohngefühl und durchdachten Details, die den Alltag spürbar erleichtern. Der großzügige Wohn- und Essbereich mit of...
Wohnung zur Miete 1.090 € 4 Zimmer 109 m² 1. Geschoss Bramsche 49565
C
1.090 €
Kaltmiete
Wohnung zur Miete
4 Zimmer
·
109 m²
·
1. Geschoss
Bramsche (49565)
Objektbeschreibung Die Wohnung befindet sich im 1. Obergeschoss einer gepflegten Eigentumswohnanlage und ist sowohl über eine Treppe als auch mit dem Fahrstuhl zu erreichen. Die komplette Wohnanlage im Zentrum von Bramsche ist sehr gepflegt. Dies betrifft die gesamte Gebäudestruktur und die Außenanlagen. Die Wohnung verfügt über einen Balkon,der über das Wohnzimmer erreichbar ist.Alle Räume der Wohnung sind mit Außenfenstern ausgestattet und entsprechend hell und gut zu lüften. Im Erdgeschoß be...
von privat
Maisonette zur Miete 1.129 € 4 Zimmer 90 m² Geschoss 1/2 frei ab sofort Hesepe Bramsche 49565
1.129 €
Kaltmiete
Maisonette zur Miete
4 Zimmer
·
90 m²
·
Geschoss 1/2
·
frei ab sofort
Hesepe, Bramsche (49565)
Zur Vermietung steht eine moderne 4-Zimmer-Neubauwohnung auf zwei Ebenen im Obergeschoss, ca. 90 m², in ruhiger, grüner Umgebung. Die Wohnung verfügt über: Hellen Wohn-/Essbereich Drei Schlafzimmer 1 Bad (Dusche) Balkon Moderne Einbauküche Fußbodenheizung KfW-40-Standard für energieeffizientes Wohnen Günstiger Solarstrom direkt vom Dach Carport- oder Außenstellplatz möglich Lage: Naturnahe Umgebung mit guter Verkehrsanbindung. Einkaufsmöglichkeiten, Schulen und öffentliche Verkehrsmittel sind s...
Wie zufrieden bist du mit dieser Seite (nicht mit den Immobilien selbst)?