Version: 8.24.0Navigation überspringen

13 Angebote für 2 - 2,5-Zimmer Wohnungen mieten in Köln Deutz

Herr Tobias Jonnarth
Studio zur Miete Tauschwohnung 720 € 2 Zimmer 60 m² 1. Geschoss Deutz Köln 50679
Neu
720 €
Kaltmiete
Studio zur Miete · Tauschwohnung
2 Zimmer
·
60 m²
·
1. Geschoss
Deutz, Köln (50679)
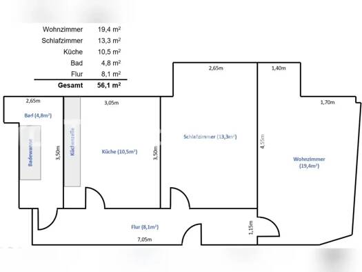
Hey, wir sind Lorenz und August und leben derzeit in einer WG zusammen direkt an der TH Deutz. Lorenz studiert an der Uni Köln und August macht eine Ausbildung zum Mediengestalter. Da sich unser beider Leben mittlerweile größtenteils auf der linken Rheinseite abspielt und wir nach nun knapp zwei Jahren in unserer Wohnung mal einen Tapetenwechsel brauchen, suchen wir aktuell eine WG-geeignete Wohnung auf der Linken Rheinseite. Wir bieten dafür unsere toll geschnittene 2-Zimmer-Wohnung mit geräum...
Immowelt logo
Wohnung zur Miete 1.165 € 2 Zimmer 68,2 m² 2. Geschoss frei ab 01.05.2026 Gummersbacher Str. 31a Deutz Köln 0679
1.165 €
Kaltmiete
Wohnung zur Miete
2 Zimmer
·
68,2 m²
·
2. Geschoss
·
frei ab 01.05.2026
Gummersbacher Str. 31a, Deutz, Köln (0679)
Zeitgemäßes Wohnen in urbaner Lage: Diese helle 2-Zimmer-Wohnung mit kleinem Balkon befindet sich im 2. Obergeschoss eines modernen Wohnhauses mit insgesamt 12 Wohneinheiten. Die Wohnung bietet klassischen Wohnkomfort in einem gepflegten Umfeld und überzeugt durch eine funktionale Raumaufteilung, großflächige Fensterverglasungen sowie eine moderne Ausstattung mit offener Einbauküche und einem modernen Badezimmer. Bewerbungen ausschließlich online über: https://zim.onboarding.reos.software/contr...
Wohnung zur Miete Tauschwohnung 720 € 2 Zimmer 48 m² Deutz Köln 50679
Neu
720 €
Kaltmiete
Wohnung zur Miete · Tauschwohnung
2 Zimmer
·
48 m²
Deutz, Köln (50679)
Es handelt es sich hierbei um ein Tauschangebot. (Anbieter-ID: 419812) Hallo! Ich biete meine gemütliche 2-Zimmer-Wohnung in der Kölner Innenstadt zum Tausch an. Die Flat kostet 720 Euro im Monat und hat 48 m². Ich suche eine Wohnung in Düsseldorf mit mindestens 3 Zimmern und 80 m². Die Miete sollte nicht höher als 1800 Euro sein. Wenn das interessant für dich klingt, melde dich gerne bei mir! Ich freue mich auf einen netten Austausch. Weitere Informationen zur genauen Lage und Details können s...
Wohnung zur Miete Tauschwohnung 440 € 2 Zimmer 40 m² 4. Geschoss Deutz Köln 50679
440 €
Kaltmiete
Wohnung zur Miete · Tauschwohnung
2 Zimmer
·
40 m²
·
4. Geschoss
Deutz, Köln (50679)
Es handelt es sich hierbei um ein Tauschangebot. (Anbieter-ID: 325204) Hallo zusammen, schweren Herzens trenne ich mich von meiner schönen Wohnung in Deutz, weil ich mit meinem Freund zusammenziehe. Jetzt sucht dieses kleine Juwel einen neuen Bewohner*in - vielleicht ja dich? ? 40 qm, perfekt aufgeteilt mit zwei gleich großen Zimmern ? Helle Räume & schöner Dielenboden für ein gemütliches Wohngefühl ? Bad mit Fenster & Badewanne - perfekt für entspannte Abende ? Ruhige, aber zentrale La...
Wohnung zur Miete Tauschwohnung 1.100 € 2 Zimmer 63 m² 2. Geschoss Deutz Köln 50679
1.100 €
Kaltmiete
Wohnung zur Miete · Tauschwohnung
2 Zimmer
·
63 m²
·
2. Geschoss
Deutz, Köln (50679)
Es handelt es sich hierbei um ein Tauschangebot. (Anbieter-ID: 408779) Hallo! Ich biete meine gemütliche 2-Zimmer-Wohnung mit Südbalkon, mitten in der Kölner Innenstadt/Deutz zum Tausch an. Sie ist ruhig gelegen und perfekt angebunden. Zu Fuß ist man in 7min am Deutzer Bahnhof, 4min an der Deutzer Freiheit und 8min Deutz Messe/Lanxess Arena. Außerdem sind es 5min zum Rhein und ein Stückchen weiter zu den Poller Wiesen. Sie ist 60 m² groß und die Miete beträgt 1200 €. Außerdem gibt es ein Keller...
Immowelt logo
Wohnung zur Miete Tauschwohnung 850 € 2 Zimmer 54 m² 2. Geschoss Deutz Köln 50679
850 €
Kaltmiete
Wohnung zur Miete · Tauschwohnung
2 Zimmer
·
54 m²
·
2. Geschoss
Deutz, Köln (50679)
Es handelt es sich hierbei um ein Tauschangebot. (Anbieter-ID: 392590) Ich biete meine charmante 2-Zimmer-Wohnung mit 54 m² im Herzen von Köln Deutz zum Tausch an. Die Wohnung liegt zentral und bietet alles, was man für den Alltag braucht - ideal für Singles oder Paare. Die monatliche Kaltmiete beträgt 850 Euro. Ich suche im Gegenzug eine größere Wohnung in Köln (Belgisches Viertel, Deutz, Südstadt, Lindenthal, Sülz) mit mind. 2,5 Zimmern und ab ca. 65m² Wohnfläche. Ich habe keinen Zeitstress :...
Wohnung zur Miete Tauschwohnung 900 € 2 Zimmer 75 m² 3. Geschoss Deutz Köln 50679
900 €
Kaltmiete
Wohnung zur Miete · Tauschwohnung
2 Zimmer
·
75 m²
·
3. Geschoss
Deutz, Köln (50679)
Es handelt es sich hierbei um ein Tauschangebot. (Anbieter-ID: 365309) . Diese Anzeige wurde von einem Nutzer eingestellt. Tauschwohnung.com stellt nur die Plattform bereit und ist nicht Anbieter der Wohnung. Hinweise auf mögliche Rechtsverletzungen (z. B. bei Fotos) bitte hier melden: https://www.tauschwohnung.com/reporting-process-for-illegal-content
Wohnung zur Miete Tauschwohnung 623 € 2 Zimmer 76 m² 1. Geschoss Deutz Köln 50679
623 €
Kaltmiete
Wohnung zur Miete · Tauschwohnung
2 Zimmer
·
76 m²
·
1. Geschoss
Deutz, Köln (50679)
Es handelt es sich hierbei um ein Tauschangebot. (Anbieter-ID: 399859) Wir bieten eine gemütliche 2-Zimmer-Wohnung im Herzen von Köln! Die Wohnung liegt zentral in direkter Rheinnähe, sodass man fix überall ist. Dennoch ist es super ruhig, gerade auch auf der Balkonseite. Mit 76 m² und einem großen Balkon in den Innenhof bietet sie ausreichend Platz für zwei. Da wir uns vergrößern wollen, suchen wir eine Wohnung in Köln mit mindestens 3 Zimmern und Balkon - gerne in den einschlägigen Veedeln (D...
Wohnung zur Miete Tauschwohnung 720 € 2 Zimmer 60 m² 1. Geschoss Deutz Köln 50679
720 €
Kaltmiete
Wohnung zur Miete · Tauschwohnung
2 Zimmer
·
60 m²
·
1. Geschoss
Deutz, Köln (50679)
Es handelt es sich hierbei um ein Tauschangebot. (Anbieter-ID: 370469) Hey, wir sind Lorenz und August und leben derzeit in einer WG zusammen direkt an der TH Deutz. Lorenz studiert an der Uni Köln und August macht eine Ausbildung zum Mediengestalter. Da sich unser beider Leben mittlerweile größtenteils auf der linken Rheinseite abspielt und wir nach nun knapp zwei Jahren in unserer Wohnung mal einen Tapetenwechsel brauchen, suchen wir aktuell eine WG-geeignete Wohnung auf der Linken Rheinseite...
Gesponsert
Herr Tobias Jonnarth
Studio zur Miete Tauschwohnung 756 € 2 Zimmer 55 m² 3. Geschoss Neustadt-Süd Köln 50678
Neu
756 €
Kaltmiete
Studio zur Miete · Tauschwohnung
2 Zimmer
·
55 m²
·
3. Geschoss
Neustadt-Süd, Köln (50678)
Ich biete meine helle Altbauwohnung in der Kölner Südstadt zum Wohnungstausch an - absolute Toplage, hoher Decken, schöner Holzboden, viel Licht. Laut Mietvertrag 2 Zimmer, praktisch sinds aber eher 1,5 Zimmer: ein separates Schlafzimmer + ein richtig großer Wohn-/Essbereich mit geräumiger Küche (insgesamt ca. 54 m²). Altbau ohne Stuck. Miete: 756 € kalt / 956 € warm (inkl. 100 € Heizkostenvz. + 100 € BK-Vz.) Ich suche: 1-1,5 Zimmer in der Kölner Südstadt, schön & hell (gern Altbau), ab 01....
Immowelt logo
Wohnung zur Miete Tauschwohnung 630 € 2 Zimmer 60 m² Deutz Köln 50679
Neu
630 €
Kaltmiete
Wohnung zur Miete · Tauschwohnung
2 Zimmer
·
60 m²
Deutz, Köln (50679)
Es handelt es sich hierbei um ein Tauschangebot. (Anbieter-ID: 419726) Unsere helle, gut geschnittene Wohnung zentral in Deutz (Innenstadt) hat 2 Zimmer und 60 m². Wir haben zusätzlich einen großen Balkon zum ruhigen Innenhof, der sowohl vom Schlafzimmer als auch von der Küche aus betreten werden kann. Morgens und vormittags kann man dort seinen Kaffee in der Sonne genießen. Die Straße ist sehr ruhig, und doch ist man in fünf Minuten zu Fuß an der Einkaufsstraße, wo man alles für den täglichen ...
Wohnung zur Miete Tauschwohnung 1.140 € 2 Zimmer 70 m² 3. Geschoss Deutz Köln 50679
1.140 €
Kaltmiete
Wohnung zur Miete · Tauschwohnung
2 Zimmer
·
70 m²
·
3. Geschoss
Deutz, Köln (50679)
Es handelt es sich hierbei um ein Tauschangebot. (Anbieter-ID: 345314) Schöne, gut ausgestattete Wohnung mit Terrasse - ideal für Paare Die Wohnung (70 qm) ist modern und vollständig ausgestattet, mit einer schönen Terrasse - perfekt für ein Paar. Sie bietet eine angenehme Wohnatmosphäre und ist gut geschnitten. Die Lage ist verkehrsgünstig und ruhig. Der Kontakt mit der Immobilie ist unkompliziert und freundlich. Die Wohnung befindet sich eine Minute zu Fuß vom Bahnhof Messe/Deutz entfernt und...
Wohnung zur Miete Tauschwohnung 1.080 € 2 Zimmer 59 m² Deutz Köln 50679
1.080 €
Kaltmiete
Wohnung zur Miete · Tauschwohnung
2 Zimmer
·
59 m²
Deutz, Köln (50679)
Es handelt es sich hierbei um ein Tauschangebot. (Anbieter-ID: 372843) Wunderschöne Altbauwohnung sucht Tausch! Unsere kernsanierte Altbauwohnung mit viel Charme und hohen Decken möchte die Rheinseite wechseln. Wir suchen im Gegenzug eine vergleichbare Wohnung (ähnliches Niveau und Lagequalität) auf der anderen Seite des Rheins. Wenn ihr Interesse habt oder jemanden kennt, freuen wir uns über eine Nachricht! Diese Anzeige wurde von einem Nutzer eingestellt. Tauschwohnung.com stellt nur die Plat...
Herr Tobias Jonnarth
Studio zur Miete Tauschwohnung 700 € 2 Zimmer 50 m² 2. Geschoss Deutz Köln 50679
700 €
Kaltmiete
Studio zur Miete · Tauschwohnung
2 Zimmer
·
50 m²
·
2. Geschoss
Deutz, Köln (50679)
Schöne gepflegte Wohnung in Familienhaus. 2,5 Zimmer, große Küche/Büro, Wohnzimmer, Schlafzimmer, Bad. Mini Diele mit Waschmaschine. Direkt neben Linien 3,4,7,1,9, sehr gut verbindet. 5 min zu Fuß : deutzer Freiheit mit allem Möglichen Supermärkte und dm. Wichtig Diese Wohnung wird derzeit bei Wohnungsswap als Tauschobjekt angeboten, eignet sich also nur für diejenigen, die im Gegenzug eine eigene passende Wohnung für den Tausch haben. Es ist kostenlos, ihr Konto zu registrieren und diese besti...
Möchtest du deine Immobilie vermieten?
Einfach inserieren
Hohe Reichweite für deine Anzeige
Schnell passende Mieter finden
Möchtest du deine Immobilie vermieten?
Private Vermieter inserieren 1 Monat kostenlos ‒ auch bei mehreren Mietobjekten
Deine Suche, nur smarter
Alle Anfragen im Überblick
Suchaufträge verwalten
Anzeigen-Status verfolgen
Verbessere dein Sucherlebnis - melde dich an, um deinen Fortschritt zu speichern.
Gesponsert
Herr Tobias Jonnarth
Studio zur Miete Tauschwohnung 770 € 2 Zimmer 56 m² 1. Geschoss Neustadt-Süd Köln 50674
Neu
770 €
Kaltmiete
Studio zur Miete · Tauschwohnung
2 Zimmer
·
56 m²
·
1. Geschoss
Neustadt-Süd, Köln (50674)
- 2,5 Zimmer-Wohnung mit 56qm - Schlafzimmer zum Innenhof, Wohnzimmer, Essküche, Badezimmer, Balkon - Parkettboden, Dreifachverglasung, elektrische Rolläden - Kellerabteil und Fahrradschuppen - Super zentral gelegen zwischen Zülpicher Platz und Barbarossaplatz Wichtig Diese Wohnung wird derzeit bei Wohnungsswap als Tauschobjekt angeboten, eignet sich also nur für diejenigen, die im Gegenzug eine eigene passende Wohnung für den Tausch haben. Es ist kostenlos, ihr Konto zu registrieren und diese ...
Weitere Ergebnisse in der Nähe
Entdecke weitere Ergebnisse in der Umgebung von Deutz, 50679
Wohnung zur Miete Tauschwohnung 800 € 2 Zimmer 57 m² Altstadt-Süd Köln 50674
800 €
Kaltmiete
Wohnung zur Miete · Tauschwohnung
2 Zimmer
·
57 m²
Altstadt-Süd, Köln (50674)
Es handelt es sich hierbei um ein Tauschangebot. (Anbieter-ID: 416298) Zu bieten: Super zentrale Altbauwohnung im Belgischen Viertel. Die Küche haben wir gerade neu gemacht mit Induktionskochfeld und neuer Granitspüle. Wir sind auf der Suche nach einer etwas größeren und hellen Wohnung ab ca. 60qm, gerne mit Wohnküche, Duschbad mit Fenster und Luxus wäre ein Balkon! Wir sind gespannt auf einen netten Austausch. :) Diese Anzeige wurde von einem Nutzer eingestellt. Tauschwohnung.com stellt nur di...
Herr Tobias Jonnarth
Studio zur Miete Tauschwohnung 1.550 € 2 Zimmer 72 m² 1. Geschoss Altstadt-Nord Köln 50668
1.550 €
Kaltmiete
Studio zur Miete · Tauschwohnung
2 Zimmer
·
72 m²
·
1. Geschoss
Altstadt-Nord, Köln (50668)
Wir bieten: Wir wohnen nun ein Jahr in dieser schönen Altbauwohnung, die fußläufig zu Eigelstein und Ebertplatz liegt. Sie hat 2,5 Zimmer (ein sehr großes Zimmer mit Erker, ein kleineres Schlafzimmer, große Küche mit Sitzmöglichkeit, Bad mit Badewanne und Dusche und einen Abstellraum) und hohe Decken. Das Rheinufer ist drei Minuten fußläufig zu erreichen, den Hauptbahnhof erreicht man in knapp zehn Minuten zu Fuß. Ein Tausch ist mit der Vermieterin (sehr nett) abgesprochen. Wir suchen: Da wir n...
Wohnung zur Miete Tauschwohnung 585 € 2 Zimmer 60 m² 4. Geschoss Altstadt-Nord Köln 50668
585 €
Kaltmiete
Wohnung zur Miete · Tauschwohnung
2 Zimmer
·
60 m²
·
4. Geschoss
Altstadt-Nord, Köln (50668)
Es handelt es sich hierbei um ein Tauschangebot. (Anbieter-ID: 346476) Wir bieten unsere wunderschöne und gemütliche Altbauwohnung, die unschlagbar günstig ist und im Agnesviertel liegt. - circa 60qm2 - 4. OG (kein Aufzug) - in den Nebenkosten ist Gas und Strom schon enthalten - offene Küche - Tageslichtbad - wunderschöner alter Dielenboden - gute Anbindung an den Öpnv - sehr netter Vermieter und Hausgemeinschaft - ruhig gelegen (Wohnung geht komplett nach hinten in den Innenhof) - kein Balkon/...
Wohnung zur Miete Tauschwohnung 700 € 2 Zimmer 56 m² 3. Geschoss Altstadt-Süd Köln 50678
Neu
700 €
Kaltmiete
Wohnung zur Miete · Tauschwohnung
2 Zimmer
·
56 m²
·
3. Geschoss
Altstadt-Süd, Köln (50678)
Es handelt es sich hierbei um ein Tauschangebot. (Anbieter-ID: 338643) Biete: 2 Zimmerwohnung in der Südstadt (Altbauwohnung saniert) Nähe: Kranhäuser/ ruhige Lage Suche 2-3 Zimmerwohnung mit Balkon in der Südstadt Diese Anzeige wurde von einem Nutzer eingestellt. Tauschwohnung.com stellt nur die Plattform bereit und ist nicht Anbieter der Wohnung. Hinweise auf mögliche Rechtsverletzungen (z. B. bei Fotos) bitte hier melden: https://www.tauschwohnung.com/reporting-process-for-illegal-content
Herr Tobias Jonnarth
Studio zur Miete Tauschwohnung 440 € 2 Zimmer 48 m² 4. Geschoss Altstadt-Nord Köln 50667
440 €
Kaltmiete
Studio zur Miete · Tauschwohnung
2 Zimmer
·
48 m²
·
4. Geschoss
Altstadt-Nord, Köln (50667)
Super aufgeteilte, sehr zentral gelegene Wohnung 1 Minute vom Dom fußläufig innerhalb von ca 5 Minuten: Heumarkt, Rathaus, Appellhofplatz Tolle Vermieter, angemessene Miete und sehr nette Nachbarn Besonders angenehme Ausstattungsmerkmale: Die Wohnung hat ein Badezimmer mit Fenster und eine Gemeinschaftsterasse zu bieten. Die Küche verbleibt gegen kleinen Abschlag in der Wohnung; gerne können auch weitere Möbel übernommen werden - muss aber nicht Ich suche eine 2-3 Zimmerwohnung, am liebsten im ...
Wohnung zur Miete Tauschwohnung 850 € 2 Zimmer 62 m² 3. Geschoss Altstadt-Nord Köln 50670
Neu
850 €
Kaltmiete
Wohnung zur Miete · Tauschwohnung
2 Zimmer
·
62 m²
·
3. Geschoss
Altstadt-Nord, Köln (50670)
Es handelt es sich hierbei um ein Tauschangebot. (Anbieter-ID: 390567) Wir bieten unsere gemütliche 2-Zimmerwohnung im Herzen des Agnesviertels in Köln zum Tausch gegen eine größere (mindestens 3 Zimmer) Wohnung in Freiburg im Breisgau und Umgebung Was wir bieten: 2-Zimmer-Wohnung mit großer Küche -sehr zentrale, dennoch ruhige Lage, da im verkehrsberuhigten Bereich -hell -Parkettboden -Fußbodenheizung im Bad -3. Stock ohne Aufzug -Gartenmitbenutzung -moderne Küche zur Übernahme (auf den Bilder...
Wohnung zur Miete Tauschwohnung 900 € 2 Zimmer 62 m² 3. Geschoss Altstadt-Süd Köln 50676
900 €
Kaltmiete
Wohnung zur Miete · Tauschwohnung
2 Zimmer
·
62 m²
·
3. Geschoss
Altstadt-Süd, Köln (50676)
Es handelt es sich hierbei um ein Tauschangebot. (Anbieter-ID: 393877) Ich biete eine 2-ZKB-Wohnung (62qm) im 3. Stock mit Aufzug in zentraler Lage in einer Einbahnstraße im Mauritiusviertel. Das Haus wurde im Jahr 2000 vom Vermieter gebaut und es gibt 9 Parteien. Neumarkt, Rudolfplatz und Zülpicher Platz sind jeweils 5 Gehminuten entfernt. Die Wohnung verfügt über ein Bad mit Badewanne und einen Waschmaschinenanschluss im Badezimmer. Zwei Balkone sorgen den ganzen Tag über für Sonne und laden ...
Wohnung zur Miete Tauschwohnung 1.050 € 2 Zimmer 96 m² 4. Geschoss Humboldt-Gremberg Köln 51105
1.050 €
Kaltmiete
Wohnung zur Miete · Tauschwohnung
2 Zimmer
·
96 m²
·
4. Geschoss
Humboldt-Gremberg, Köln (51105)
Es handelt es sich hierbei um ein Tauschangebot. (Anbieter-ID: 10707) Unsere Familie wird größer und deswegen müssen wir leider unsere tolle Loft-Wohnung verlassen. Die Wohnung hat durch die offene Räumen und sehr hohe Decke (ca. 4,5m) ein unglaublich tolles Flair. Die Wohnung ist ist durch die West-Ost Fassaden und schöne Dachfenster besonders hell. Die große und offene Küche ist Traumhaft, vor allem, wenn Gäste dabei sind. Die Wohnung hat 2 Badezimmer und 2 Stauräume, die perfekt für die gute...
Immobilien Thielen
Wohnung zur Miete 1.950 € 2 Zimmer 65 m² 2. Geschoss frei ab 01.03.2026 Pipinstr. 3 Altstadt-Süd Köln 50667
1.950 €
Warmmiete
Wohnung zur Miete
2 Zimmer
·
65 m²
·
2. Geschoss
·
frei ab 01.03.2026
Pipinstr. 3, Altstadt-Süd, Köln (50667)
Diese sehr helle zwei Zimmer Wohnung ist 2024 komplett saniert worden und befindet sich im zweiten Stock eines Denkmalgeschützen Gebäude, welches ein Star-Architekt entworfen hat. Sie ist mit einer Einbau-Insel-Küche und vielen Extras ausgestattet, neben einem begehbaren Kleiderschrank im Schlafzimmer ist in der Decke der offenen Küche eine Lichtkuppel eingearbeitet, diese lässt den Raum hell und freundlich erscheinen, ebenso befindet sich ein Kaminofen im Wohnraum, dieser lädt zu einem gemütli...
Herr Tobias Jonnarth
Studio zur Miete Tauschwohnung 955 € 2 Zimmer 62 m² 1. Geschoss Altstadt-Süd Köln 50678
955 €
Kaltmiete
Studio zur Miete · Tauschwohnung
2 Zimmer
·
62 m²
·
1. Geschoss
Altstadt-Süd, Köln (50678)
Biete helle, super geschnittene 62m² Wohnung zur Miete zum Tausch an Bestens geeignet für Kleinfamilie, Paare, oder 2er WG Vollständige Renovierung in 2021 inkl. neuer Bodenbelag Klassischer Schnitt mit zentraler Diele (und praktischen Wandnischen) von wo aus man in jedes Zimmer gelangt (keine Durchgangszimmer). Zentrale Lage: Kartäuserwall, Südstadt, 50678 Köln ÖPNV und Geschäfte: 2 Fußminuten entfernt Rheinauhafen: 5 Fußminuten entfernt 2 x schöne, ähnlich große Schlaf- oder Arbeitszimmer tei...
Maisonette zur Miete Tauschwohnung 696 € 2 Zimmer 60 m² 4. Geschoss Altstadt-Süd Köln 50678
696 €
Kaltmiete
Maisonette zur Miete · Tauschwohnung
2 Zimmer
·
60 m²
·
4. Geschoss
Altstadt-Süd, Köln (50678)
Es handelt es sich hierbei um ein Tauschangebot. (Anbieter-ID: 378814) Ich biete meine helle Maisonette-Wohnung in der Kölner Südstadt zum Tausch an. Die Wohnung liegt nur wenige Meter vom Chlodwigplatz entfernt und hat 58 qm Wohnfläche, verteilt auf zwei Ebenen. Besonders hervorzuheben sind der großzügige Balkon sowie die zentrale, aber dennoch charmante Lage mit bester Anbindung und lebendigem Umfeld. Für 90 €/Monat kann (kein Muss!) ein Tiefgaragenstellplatz im gleichen Haus angemietet werde...
Wohnung zur Miete Tauschwohnung 885 € 2 Zimmer 53 m² Altstadt-Nord Köln 50668
885 €
Kaltmiete
Wohnung zur Miete · Tauschwohnung
2 Zimmer
·
53 m²
Altstadt-Nord, Köln (50668)
Es handelt es sich hierbei um ein Tauschangebot. (Anbieter-ID: 395183) Ich biete: eine schöne 2-Zimmer-Wohnung (53qm) in der Weidengasse mit hellem Wohnzimmer (21m) zur Straßenseite, einem ruhigen Schlafzimmer (13qm) zum Innenhof, einer wunderschönen Küche mit Zugang zum Balkon im Innenhof und einem modernen Bad mit Fenster. Ideal für alle, die gerne gut angebunden sein wollen (S-Bahn und Straßenbahn 12, 15, 16 und 18, fußläufig zum Hbf) und nah an allem, was man so braucht (Rewe, DM, Kneipen, ...
Wohnung zur Miete Tauschwohnung 690 € 2 Zimmer 39 m² 5. Geschoss Altstadt-Süd Köln 50674
690 €
Kaltmiete
Wohnung zur Miete · Tauschwohnung
2 Zimmer
·
39 m²
·
5. Geschoss
Altstadt-Süd, Köln (50674)
Es handelt es sich hierbei um ein Tauschangebot. (Anbieter-ID: 361424) Schöne Wohnung in elegantem Stil mit EBK, neuem Bad und 2-Zimmern. Super geeignet für eine Person. Biete gemeinsam mit Freundin zwei Wohnungrn an. Suche nach größerer Wohnung mit Partnerin - mind. 70qm, 3-Zimmer und guter Lage in Vierteln wie Ehrenfeld, Lindenthal, Neustadt-Süd, Südstadt, Belgisches etc. Hier unser zweites Inserat: [Link wurde entfernt] Diese Anzeige wurde von einem Nutzer eingestellt. Tauschwohnung.com stel...
Herr Tobias Jonnarth
Studio zur Miete Tauschwohnung 1.280 € 2 Zimmer 85 m² EG Kalk Köln 51103
1.280 €
Kaltmiete
Studio zur Miete · Tauschwohnung
2 Zimmer
·
85 m²
·
EG
Kalk, Köln (51103)
Ruhige Lage in Nähe einer großen Einkaufsstraße, vorne so wie hinten Terrasse, Wasch/Trockenraum im Keller, trockener sauberer Kellerraum, Tiefgaragen Stellplatz, Wichtig Diese Wohnung wird derzeit bei Wohnungsswap als Tauschobjekt angeboten, eignet sich also nur für diejenigen, die im Gegenzug eine eigene passende Wohnung für den Tausch haben. Es ist kostenlos, ihr Konto zu registrieren und diese bestimme Wohnung oder Hunderte andere Wohnungen bei uns zu finden.
Wohnung zur Miete Tauschwohnung 420 € 2 Zimmer 45 m² 1. Geschoss Humboldt-Gremberg Köln 51105
Neu
420 €
Kaltmiete
Wohnung zur Miete · Tauschwohnung
2 Zimmer
·
45 m²
·
1. Geschoss
Humboldt-Gremberg, Köln (51105)
Es handelt es sich hierbei um ein Tauschangebot. (Anbieter-ID: 175880) Ich biete meine geliebte Altbauwohnung in Humboldt-Gremberg an. Die helle zwei Zimmer Wohnung hat eine geräumige Küche und ein Badezimmer mit Fenster und Badewanne. Die Wohnung beeindruckt durch ihre hohen Decken und bietet dadurch viel Stauraum nach oben. Im Sommer kannst du es dir im Gemeinschaftsgarten gemütlich machen oder einen schönen Spaziergang im zehn Minuten entfernten Gremberger Wäldchen machen. Haustiere sind erl...
Wohnung zur Miete Tauschwohnung 1.000 € 2 Zimmer 58 m² 3. Geschoss Altstadt-Süd Köln 50674
Neu
1.000 €
Kaltmiete
Wohnung zur Miete · Tauschwohnung
2 Zimmer
·
58 m²
·
3. Geschoss
Altstadt-Süd, Köln (50674)
Es handelt es sich hierbei um ein Tauschangebot. (Anbieter-ID: 353925) Ich möchte mich vergrößern und bin auf der Suche nach einer ähnlichen Wohnung. Gerne in der Südstadt, Zollstock, Lindenthal, sülz... Diese Anzeige wurde von einem Nutzer eingestellt. Tauschwohnung.com stellt nur die Plattform bereit und ist nicht Anbieter der Wohnung. Hinweise auf mögliche Rechtsverletzungen (z. B. bei Fotos) bitte hier melden: https://www.tauschwohnung.com/reporting-process-for-illegal-content
Wohnung zur Miete Tauschwohnung 750 € 2 Zimmer 57 m² 3. Geschoss Humboldt-Gremberg Köln 51105
750 €
Kaltmiete
Wohnung zur Miete · Tauschwohnung
2 Zimmer
·
57 m²
·
3. Geschoss
Humboldt-Gremberg, Köln (51105)
Es handelt es sich hierbei um ein Tauschangebot. (Anbieter-ID: 56689) Hallo :) ich biete eine wunderschöne Altbauwohnung in Kalk mit großem Balkon und einen Gemeinschaftsgarten. Die Wohnung hat 2 Zimmer Schlafzimmer, Wohnzimmer eine Küche und ein Bad mit Wanne. Der Balkon ist 8m lang und 2,15m breit mit Ausblick zum Innenhof, auf dem man von morgens bis abends Sonne hat. Die Nachbarn sind super freundlich, es ist ruhig, die Wohnung ist sehr gemütlich und hat große Fenster in den Zimmern. Leider...
Wie zufrieden bist du mit dieser Seite (nicht mit den Immobilien selbst)?