Version: 8.24.1Navigation überspringen

Möblierte Wohnungen mieten in Michelau in Oberfranken (96247), Lichtenfels

Aktuell keine passenden Ergebnisse zu deinen Suchkriterien.
Speicher deine Suche als Suchauftrag, um weitere Ergebnisse zu erhalten.
Weitere Ergebnisse in der Nähe
Entdecke weitere Ergebnisse in der Umgebung von Michelau in Oberfranken, 96247
Wohnung zur Miete 4 Zimmer 110 m² frei ab sofort Friedrich-Ebert-Str. 64 Schney Lichtenfels 96215
Mietkosten auf Anfrage
Wohnung zur Miete
4 Zimmer
·
110 m²
·
frei ab sofort
Friedrich-Ebert-Str. 64, Schney, Lichtenfels (96215)
WZ groß, drei SZ, Küche, Bad/WC, großer Balkon mit herrlicher Aussicht. Fahrradgarage, Grillplatz
Studio zur Miete - Erstbezug 1.284 € 1 Zimmer 50 m² frei ab sofort Angerstraße 20 Bad Staffelstein 96231
A+
1.284 €
Warmmiete
Studio zur Miete - Erstbezug
1 Zimmer
·
50 m²
·
frei ab sofort
Angerstraße 20, Bad Staffelstein (96231)
Willkommen im Obermain Living, Ihrem komfortablen Zuhause auf Zeit in Bad Staffelstein. Die perfekte Unterkunft für alle Geschäftsreisenden, Gastdozenten, Pendler und alle, die auch auf längeren Reisen nicht auf Privatsphäre, Unabhängigkeit und ein Zuhause-Gefühl verzichten möchten. Wir bieten 16 voll möblierte, hochwertig ausgestattete Appartements, je nach Verfügbarkeit.
Wohnung zur Miete 277 € 2 Zimmer 44,6 m² 1. Geschoss frei ab 01.04.2026 Schillerstr. 16 Bad Staffelstein 96231
D
277 €
Kaltmiete
Wohnung zur Miete
2 Zimmer
·
44,6 m²
·
1. Geschoss
·
frei ab 01.04.2026
Schillerstr. 16, Bad Staffelstein (96231)
Die gepflegte 2-Zimmer-Wohnung befindet sich im 1. Obergeschoss des Wohnhauses. Insgesamt wird das Gebäude von 8 Mietparteien bewohnt.
von privat
Wohnung zur Miete 470 € 1 Zimmer 30 m² Coburg 96450
470 €
Kaltmiete
Wohnung zur Miete
1 Zimmer
·
30 m²
Coburg (96450)
Willkommen in dieser charmanten 1-Zimmer-Wohnung in der Samuel-Schmidt-Straße, im begehrten Stadtteil Coburg (96450). Diese Wohnung bietet mit 30 Quadratmetern einen funktionalen Wohnraum, ideal für Singles, die ein gemütliches Zuhause suchen. Die gut ausgestattete Küche und das Badezimmer sorgen für maximalen Komfort. Zudem ist ein Parkplatz im Angebot, was das Abstellen Ihres Fahrzeugs zum Kinderspiel macht. Die Lage ist einfach perfekt. Die nächste Bushaltestelle Marschberg ist nur 410 m ent...
SCHAUBAU GmbH Bauträger + Erschliessungen
Studio zur Miete 400 € 1 Zimmer 20 m² 3. Geschoss frei ab sofort Grafengasse 7 Coburg 96450
400 €
Kaltmiete
Studio zur Miete
1 Zimmer
·
20 m²
·
3. Geschoss
·
frei ab sofort
Grafengasse 7, Coburg (96450)
Diese möblierte Wohnung besteht aus einem hellen und sonnigen Wohn- Schlafzimmer vor der Traumkulisse des Coburger Schlossplatzes, komplett eingerichtet als Wohn- Schlafzimmer, mit Kochzeile, mit Spülmaschine, Spüle, Mikrowelle, Kühlschrank, Herd mit Backofen, Badezimmer mit Dusche, WC, Fenster, Waschmaschine und Waschbecken,
Wohnung zur Miete 650 € 2,5 Zimmer 60 m² 1. Geschoss frei ab sofort Dörfles-Esbach 96487
650 €
Kaltmiete
Wohnung zur Miete
2,5 Zimmer
·
60 m²
·
1. Geschoss
·
frei ab sofort
Dörfles-Esbach (96487)
In unserem belieben langjährigen Bestandsobjekt werden zwei Zimmer warm und möbliert vermietet. Geeignet für Monteure, Studenten usw. Das eine Zimmer hat ca. 19,2 qm Fläche und kostet warm 375,-- Euro. das andere Zimmer ist etwas kleiner mit ca. 12,3 qm und kostet warm 325,-- Euro. Je nach Anforderung könnten auch noch Möbel wie z.B. ein Schreibtisch nachgeordert oder heraus genommen werden. Die Küche mit ca. 14,5 qm kann gemeinschaftlich genutzt werden. Der Flur hat ca. 6,6 qm Fläche und das B...
von privat
Wohnung zur Miete 650 € 1 Zimmer 26 m² EG frei ab sofort Coburg 96450
650 €
Kaltmiete
Wohnung zur Miete
1 Zimmer
·
26 m²
·
EG
·
frei ab sofort
Coburg (96450)
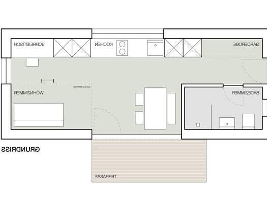
Zur Vermietung steht ein Tiny-Haus im skandinavischen Stil mit einer Wohnfläche von 26qm. Der Grundriss bietet ein vollwertiges Badezimmer, einen Koch- Essbereich mit großer Einbauküche, sowie ein Wohnbereich mit Arbeitsplatz und Schlafempore. Die hochwertige Holzkonstruktion und die natürlich behandelten Oberflächen sind Qualitätsmerkmale eines nachhaltigen Gebäudes mit gesundem Raumklima. Der eigene Garten 150qm mit Terrasse und Obstbäumen lädt zum entspannen ein und bietet die Möglichkeit ei...
von privat
Wohnung zur Miete 375 € 1 Zimmer 37,3 m² Geschoss -1/7 frei ab sofort Coburg 96450
375 €
Kaltmiete
Wohnung zur Miete
1 Zimmer
·
37,3 m²
·
Geschoss -1/7
·
frei ab sofort
Coburg (96450)
Diese helle 1,5-Zimmer Wohnung mit ca. 37,32 m² Wohnfläche befindet sich im 1. Obergeschoss eines gepflegten Mehrfamilienhauses mit Aufzug in Coburg Zentrum. Die Wohnung verfügt über eine Wohn-, Schlaf-, Essraum, ein Badezimmer und einer Küchenzeile. Ein Keller bietet zusätzlichen Stauraum. Die Wohnung ist ab sofort verfügbar. Haustiere sind nach Absprache erlaubt. Gegen eine fair Ablösesumme, kann die komplette Einrichtung (von der Tasse bis zum Handtuch) übernommen werden. Ideal also wer OHNE...
Frau Petra Heginger
Otte Immobilien GmbH
Wohnung zur Miete 450 € 2 Zimmer 65 m² EG frei ab sofort Eicha Ahorn OT 96482
A
450 €
Kaltmiete
Wohnung zur Miete
2 Zimmer
·
65 m²
·
EG
·
frei ab sofort
Eicha, Ahorn OT (96482)
Die komplett renovierte und geschmackvoll möblierte Erdgeschosswohnung befindet sich in einem Zweifamilienhaus und ist ausschließlich für einen Einpersonenhaushalt geeignet. Auf ca. 65 m² Wohnfläche bietet sie ein helles und großzügiges Wohn-/Esszimmer, eine separate Küche inklusive Einbauküche mit kleinem Essplatz, ein Schlafzimmer sowie ein Badezimmer mit Dusche und WC. Ein Parkplatz direkt vor dem Haus gehört zur Wohnung und steht dem Mieter zur Verfügung. Da kein Waschmaschinenanschluss vor...
von privat
Wohnung zur Miete 600 € 2 Zimmer 60 m² Geschoss 4/7 frei ab 01.04.2026 Memmelsdorf 96117
C
600 €
Kaltmiete
Wohnung zur Miete
2 Zimmer
·
60 m²
·
Geschoss 4/7
·
frei ab 01.04.2026
Memmelsdorf (96117)
Diese helle gepflegte 2-Zimmer-Wohnung mit ca. 60 m² Wohnfläche befindet sich im 4. Obergeschoss eines Mehrfamilienhauses in ruhiger und dennoch stadtnaher Lage von Memmelsdorf. Die letzte Renovierung erfolgte 2016. Die Wohnung präsentiert sich in einem gepflegten und modernen Zustand. Raumaufteilung und Ausstattung Die Wohnung verfügt über: – Wohn- und Essbereich mit Zugang zum Balkon – Separate Küche mit moderner Einbauküche (Kühl-/Gefrierschrank, Cerankochfeld, Backofen, Geschirrspüler) – Sc...
Wie zufrieden bist du mit dieser Seite (nicht mit den Immobilien selbst)?