Version: 8.25.1Navigation überspringen

6 Wohnungen mieten in Waldkirch (79183), Emmendingen

Wohnung zur Miete 1.350 € 2 Zimmer 80 m² 1. Geschoss Kollnau Waldkirch 79183
Neu
G
1.350 €
Kaltmiete
Wohnung zur Miete
2 Zimmer
·
80 m²
·
1. Geschoss
Kollnau, Waldkirch (79183)
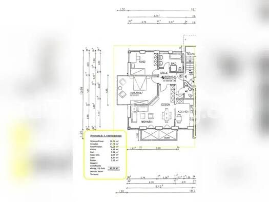
Diese hochwertige, vollständig möblierte 2,5-Zimmer-Erdgeschoss-Wohnung in Waldkirch-Kollnau bietet auf 80 m² ein Zuhause zum Ankommen befristet bis August 2027. Dank Süd-Ausrichtung ist sie hell und freundlich. Die Terrasse mit traumhaftem Naturblick lädt zum Entspannen ein. Moderne Einbauküche, voll ausgestattetes Homeoffice, Waschmaschine und Trockner machen den Alltag leicht. 75-Zoll The Frame-TV, hochwertiges Soundsystem und smartes LED-Licht sorgen für Wohlfühlatmosphäre ideal für Berufst...
Immowelt logo
Wohnung zur Miete Tauschwohnung 510 € 3 Zimmer 51 m² 1. Geschoss Waldkirch 79183
510 €
Kaltmiete
Wohnung zur Miete · Tauschwohnung
3 Zimmer
·
51 m²
·
1. Geschoss
Waldkirch (79183)
Es handelt es sich hierbei um ein Tauschangebot. (Anbieter-ID: 432728) - 51 m² Wohnfläche - geräumiger Balkon mit Aussicht - Kandel und Marktplatz ganz in der Nähe - Kellerraum vorhanden - Gasetagenheizung (Kosten ca. 70-100 €/Monat) - Kaltmiete: 510 € - Nebenkosten: 70 € - Gesamtmiete: ca. 680-740 €/Monat Diese Anzeige wurde von einem Nutzer eingestellt. Tauschwohnung.com stellt nur die Plattform bereit und ist nicht Anbieter der Wohnung. Hinweise auf mögliche Rechtsverletzungen (z. B. bei Fot...
Wohnung zur Miete - Erstbezug 1.700 € 2,5 Zimmer 95 m² EG Waldkirch 79183
1.700 €
Kaltmiete
Wohnung zur Miete - Erstbezug
2,5 Zimmer
·
95 m²
·
EG
Waldkirch (79183)
Die hochmoderne 2,5-Zimmer-Wohnung befindet sich im Erdgeschoss eines neu erbauten Mehrfamilienhauses mit insgesamt 7 Wohneinheiten in zentrumsnaher Lage von Waldkirch. Ca. 95 qm Wohnfläche verteilen sich auf einen großzügigen Wohn-, Küchen- und Essbereich, ein Schlafzimmer, ein Bad mit Wanne, Dusche, Waschplatz und WC, eine Diele, ein Gäste-WC, eine Abstellkammer und eine Terrasse. Die hochwertige Ausstattung der Wohnung wird Sie begeistern. Der Fußboden ist mit Feinsteinzeug und Vinyl in Holz...
Wohnung zur Miete 1.600 € 2 Zimmer 95 m² 2. Geschoss Waldkirch 79183
1.600 €
Kaltmiete
Wohnung zur Miete
2 Zimmer
·
95 m²
·
2. Geschoss
Waldkirch (79183)
Die hochmoderne 2,5-Zimmer-Wohnung befindet sich im 2. Obergeschoss eines neu erbauten Mehrfamilienhauses mit insgesamt 7 Wohneinheiten in zentrumsnaher Lage von Waldkirch. Ca. 95 qm Wohnfläche verteilen sich auf einen großzügigen Wohn-, Küchen- und Essbereich, ein Schlafzimmer, ein Bad mit Wanne, Dusche, Waschplatz und WC, eine Diele, ein Gäste-WC, eine Abstellkammer und eine Terrasse. Die hochwertige Ausstattung der Wohnung wird Sie begeistern. Der Fußboden ist mit Feinsteinzeug und Vinyl in ...
Wohnung zur Miete Tauschwohnung 1.100 € 3 Zimmer 90 m² 1. Geschoss Waldkirch 79183
1.100 €
Kaltmiete
Wohnung zur Miete · Tauschwohnung
3 Zimmer
·
90 m²
·
1. Geschoss
Waldkirch (79183)
Es handelt es sich hierbei um ein Tauschangebot. (Anbieter-ID: 307409) Wir sind ein Paar das vor 2 Jahren von Freiburg nach Waldkirch gezogen ist. Da einer von uns bald ein Studium in Freiburg beginnt, wollen wir wieder nach Freiburg ziehen, auch wenn wir die Wohnung hier in Waldkirch schweren Herzens verlassen. Hier wohnt man in einem Haus welches aus drei Stockwerken besteht. Ein gigantischer Keller im UG den man sich teilt und der aus 5 Räumen besteht, eine Wohnung im EG (Nachbarn), und unse...
Immowelt logo
Wohnung zur Miete Tauschwohnung 1.150 € 4 Zimmer 110 m² 1. Geschoss Waldkirch 79183
1.150 €
Kaltmiete
Wohnung zur Miete · Tauschwohnung
4 Zimmer
·
110 m²
·
1. Geschoss
Waldkirch (79183)
Es handelt es sich hierbei um ein Tauschangebot. (Anbieter-ID: 133795) Wir wohnen im 1., 2. Stock und noch in der Dachspitze. Es ist sehr schön hell und alles renoviert! Blick auf den Kandel und ganz schnell im Grünen Diese Anzeige wurde von einem Nutzer eingestellt. Tauschwohnung.com stellt nur die Plattform bereit und ist nicht Anbieter der Wohnung. Hinweise auf mögliche Rechtsverletzungen (z. B. bei Fotos) bitte hier melden: https://www.tauschwohnung.com/reporting-process-for-illegal-content
Weitere Ergebnisse in der Nähe
Entdecke weitere Ergebnisse in der Umgebung von Waldkirch, 79183
Wohnung zur Miete Tauschwohnung 650 € 2 Zimmer 70 m² 5. Geschoss Denzlingen 79211
650 €
Kaltmiete
Wohnung zur Miete · Tauschwohnung
2 Zimmer
·
70 m²
·
5. Geschoss
Denzlingen (79211)
Es handelt es sich hierbei um ein Tauschangebot. (Anbieter-ID: 84877) Super Helle 2 Zi. Wohnung in Denzlingen mit großem Balkon und schönem Blick ins Grüne. Küche vor einem Jahr eingebaut und Bad mit Fenster. Ruhige und Kinderfreundliche Gegend sowie nette Nachbarschaft. Stellplatz und Keller vorhanden. Trockenraum für die nasse Wäsche vorhanden. Einkaufsmöglichkeiten wie Rewe, Bäckereien, DM, Edeka vorhanden. Busstation vor der Tür. Bahnhof ca. 5 min mit dem Fahrrad und ca. 15 min zu Fuß. Nebe...
von privat
Maisonette zur Miete 1.700 € 4 Zimmer 150 m² Geschoss 2/3 frei ab 01.07.2026 Kollmarsreute Emmendingen 79312
Neu
1.700 €
Kaltmiete
Maisonette zur Miete
4 Zimmer
·
150 m²
·
Geschoss 2/3
·
frei ab 01.07.2026
Kollmarsreute, Emmendingen (79312)
Diese großzügige und lichtdurchflutete 4-Zimmer-Maisonette-Wohnung mit ca. 150 m² Wohnfläche befindet sich im 2. Obergeschoss eines gepflegten Mehrfamilienhauses in Emmendingen-Kollmarsreute. Durch die Aufteilung über zwei Ebenen entsteht ein besonderes Wohngefühl mit klarer Trennung von Wohn- und Rückzugsbereichen Die Wohnung wurde zuletzt im Jahr 2014 modernisiert und präsentiert sich in einem gepflegten Zustand mit solider, funktionaler Innenausstattung. Gleichzeitig bietet sie ausreichend G...
von privat
Wohnung zur Miete 2.250 € 4 Zimmer 135 m² Geschoss EG/3 frei ab sofort Heuweiler 79194
Neu
2.250 €
Kaltmiete
Wohnung zur Miete
4 Zimmer
·
135 m²
·
Geschoss EG/3
·
frei ab sofort
Heuweiler (79194)
Exklusive 4‑Zimmer‑Wohnung mit großer Terrasse & Garten – 135 m² Luxus pur Diese außergewöhnliche 4‑Zimmer‑Wohnung bietet ein Wohnambiente der Spitzenklasse und überzeugt durch hochwertige Ausstattung, großzügige Raumaufteilung und ein exklusives Wohngefühl. Ausstattung & Highlights • 135 m² Wohnfläche – lichtdurchflutet und ideal geschnitten • Edles Parkett in allen Wohnräumen • Fußbodenheizung für angenehmes Raumklima • 2 moderne Design‑Bäder mit hochwertigen Materialien • Luxus‑Einbauküche m...
Wohnung zur Miete 1.300 € 5 Zimmer 170 m² Simonswald 79263
Neu
1.300 €
Kaltmiete
Wohnung zur Miete
5 Zimmer
·
170 m²
Simonswald (79263)
Schöne und außergewöhnlich große 5-Zimmer-Wohnung zentral in Simonswald. Die Wohnung befindet sich im 2. OG (DG) eines gepflegten Mehrfamilienhauses. Hier haben Sie 4 großzügige Schlaf-/ Büroräume mit Laminatboden und ein Wohn- und Esszimmer mit schönen, grauen Fliesen. Über alle Wohn- und Schlafräume haben Sie Zugang zu einem der Balkone. Die Küche ist angrenzend zum Wohnzimmer und mit einer großen Einbauküche ausgestattet. Diese können Sie entweder nutzen oder Ihre eigene Küche einbauen. Das ...
Wohnung zur Miete Tauschwohnung 670 € 2 Zimmer 84 m² 1. Geschoss Emmendingen 79312
670 €
Kaltmiete
Wohnung zur Miete · Tauschwohnung
2 Zimmer
·
84 m²
·
1. Geschoss
Emmendingen (79312)
2 Zimmer über zwei Etagen in denkmalgeschütztem Altbau. Helles Tageslichtbad mit Badewanne, Gäste WC Innenstadt Wichtig Diese Wohnung wird derzeit bei Wohnungsswap als Tauschobjekt angeboten, eignet sich also nur für diejenigen, die im Gegenzug eine eigene passende Wohnung für den Tausch haben. Es ist kostenlos, ihr Konto zu registrieren und diese bestimme Wohnung oder Hunderte andere Wohnungen bei uns zu finden.
Wohnung zur Miete Tauschwohnung 1.100 € 2,5 Zimmer 84 m² Gundelfingen 79194
1.100 €
Kaltmiete
Wohnung zur Miete · Tauschwohnung
2,5 Zimmer
·
84 m²
Gundelfingen (79194)
Es handelt es sich hierbei um ein Tauschangebot. (Anbieter-ID: 429424) Hallo, ich biete meine gemütliche 2,5-Zimmer-Wohnung in Gundelfingen an. Sie ist 84 m² groß und die Nettokaltmiete beträgt 1.100 € zzgl. Garagenstellplatz 50 € und Nebenkosten in Höhe von ca. 230 € (laut Wirtschaftsplan 2026). Ich suche eine Wohnung in Freiburg im Breisgau. Idealerweise sollte sie mindestens 25-30 m² groß sein, ca. 1-1,5 Zimmer haben - separate Küche wäre ideal - und maximal 650 € kosten. Die Wohnung in Gund...
Wohnung zur Miete 1.130 € 3 Zimmer 90 m² 1. Geschoss frei ab 01.06.2026 Emmendingen 79312
1.130 €
Kaltmiete
Wohnung zur Miete
3 Zimmer
·
90 m²
·
1. Geschoss
·
frei ab 01.06.2026
Emmendingen (79312)
von privat
Wohnung zur Miete 1.595 € 4 Zimmer 110 m² Geschoss 1/3 frei ab 01.07.2026 Emmendingen 79312
1.595 €
Kaltmiete
Wohnung zur Miete
4 Zimmer
·
110 m²
·
Geschoss 1/3
·
frei ab 01.07.2026
Emmendingen (79312)
!! BEFRISTETE VERMIETUNG VOM 01.07.2026 BIS 28.02.2029 AUFGRUND EINES AUSLANDAUFENTHALTES!! EINE BESICHTIGUNG FINDET AM 11.04.2026 UM 11:00 UHR STATT GERNE PER NACHRICHT MELDEN - Haustiere und Rauchen sind in der Wohnung nicht erlaubt. - Diese helle und sehr gut geschnittene 4. Zimmerwohnung befindet sich im 1. OG eines neu erbauten Mehrfamilienhauses in beliebter Lage in Emmendingen. Im Eingangsbereich teilt sich die Wohnung in zwei Teile auf. Auf Ihrer linken Seite gelangen Sie zu den beiden ...
Herr Tobias Jonnarth
Wohnung zur Miete Tauschwohnung 1.380 € 2 Zimmer 75 m² 2. Geschoss Gundelfingen Freiburg im Breisgau 79194
1.380 €
Kaltmiete
Wohnung zur Miete · Tauschwohnung
2 Zimmer
·
75 m²
·
2. Geschoss
Gundelfingen, Freiburg im Breisgau (79194)
Wir sind ein junges Paar und wohnen in einer wunderschönen sehr hellen modernen 2 Zimmerwohnung in Gundelfingen, im Norden von Freiburg. Die Lage ist super schön ruhig und trotzdem ist man super schnell in der Innenstadt. Alle Einkaufsmöglichkeiten sind direkt ums Eck. Die Wohnung hat ein Schlafzimmer und einen großen Wohn-Essbereich, ein Bad mit Toilette und Badewanne und ein extra Gäste-WC. Außerdem gibt es einen kleinen Vorratsraum und ein Kellerabteil, sowie einen Tiefgaragenstellplatz. Der...
Wohnung zur Miete Tauschwohnung 620 € 3 Zimmer 75 m² 3. Geschoss Emmendingen 79312
Neu
620 €
Kaltmiete
Wohnung zur Miete · Tauschwohnung
3 Zimmer
·
75 m²
·
3. Geschoss
Emmendingen (79312)
Es handelt es sich hierbei um ein Tauschangebot. (Anbieter-ID: 427696) Tausche meine gemütliche 3 Zimmer DG Wohnung. Die Wohnung hat ca 75m² (anrechenbare Fläche 60)und ist für 620€+ 190€NK zu haben. Große Esszimmer/Küche. Wohnzimmer ist groß Schlafzimmer/Kinderzimmer kleiner. -Keller -Waschraum Haustiere sind erlaubt! ???? Badewanne vorhanden. Garten ums halbe Haus zur alleinigen Nutzung. In einer ruhigen Straße, wo direkt die Grundschule(und Spielplatz) ein paar Häuser weiter ist. Tolle Nachb...
Frau Jasmin Joos
Volksbank Breisgau Nord eG Immobilienabteilung
Maisonette zur Miete 2.480 € 6,5 Zimmer 224 m² Emmendingen 79312
Neu
A
2.480 €
Kaltmiete
Maisonette zur Miete
6,5 Zimmer
·
224 m²
Emmendingen (79312)
Das im Jahre 1991 errichtete Zweifamilienhaus liegt ruhig und idyllisch auf dem Kellenberg in der schönen Stadt Emmendingen. Die Johann-Philipp-Sonntag-Straße 15 befindet sich in einem gepflegten Wohngebiet mit viel Grün und einer angenehmen Nachbarschaft. Das Haus selbst befindet sich am Hang, was für eine besondere Wohnatmosphäre sorgt. Über den Aufzug erreichen Sie bequem das Obergeschoss, wo sich die großzügige und helle 6,5-Zimmer-Wohnung mit ca. 224 m² Wohnfläche (ohne Terrasse) befindet....
Wohnung zur Miete Tauschwohnung 745 € 3 Zimmer 82 m² 1. Geschoss Eschbach Stegen 79252
745 €
Kaltmiete
Wohnung zur Miete · Tauschwohnung
3 Zimmer
·
82 m²
·
1. Geschoss
Eschbach, Stegen (79252)
Es handelt es sich hierbei um ein Tauschangebot. (Anbieter-ID: 429132) Ich biete meine gemütliche 3-Zimmer-Wohnung in Stegen-Eschbach im wunderschönen Dreisamtal zum Tausch an. Die Wohnung liegt im ersten Stock und umfasst ein großes Wohn- und Esszimmer mit Einbauküche, ein Schlafzimmer sowie ein weiteres Zimmer, ideal als Arbeits- oder Gästezimmer. Dazu kommen ein Flur, ein Bad mit Dusche und ein eigenes Kellerabteil. Insgesamt 82 m², sehr ruhig gelegen und mit der Natur direkt vor der Tür. Da...
Wohnung zur Miete Tauschwohnung 1.050 € 4 Zimmer 135 m² Eschbach Stegen 79252
1.050 €
Kaltmiete
Wohnung zur Miete · Tauschwohnung
4 Zimmer
·
135 m²
Eschbach, Stegen (79252)
Es handelt es sich hierbei um ein Tauschangebot. (Anbieter-ID: 344817) Hallo wir meine 15. jährige Tochter und ich suchen eine vergleichbare Wohnmöglichkeit in der Nähe von Freiburg. Wir haben einen Kater und Schildkröte und freuen uns über einen Garten. Wir können uns verkleinern oder vergrößern. Wichtig sind uns 3 Zimmer plus Küche und Bad. Unsere wunderschöne Wohnung geben wir nicht leichtherzig ab. Wir sind aktuell interessiert eine Veränderung zu bejahen um zu schauen ob es hier was gibt f...
Maisonette zur Miete Tauschwohnung 900 € 3,5 Zimmer 100 m² 2. Geschoss Eschbach Stegen 79252
900 €
Kaltmiete
Maisonette zur Miete · Tauschwohnung
3,5 Zimmer
·
100 m²
·
2. Geschoss
Eschbach, Stegen (79252)
Es handelt es sich hierbei um ein Tauschangebot. (Anbieter-ID: 394139) Hallo zusammen, ich biete eine wunderschöne Maisonettewohnung in Stegen zum Wohnungstausch ab dem 01.03.2026 an. Die Wohnung liegt direkt am Waldrand, mit Bach hinter dem Haus, viel Licht, Ostbalkon und einem ganz besonderen, warmen Charakter durch die gemütlichen Dachschrägen. Insgesamt umfasst sie ca. 100 qm Wohnfläche auf zwei Ebenen und eignet sich ideal für ein paar oder eine junge Familie, die naturnah und ruhig wohnen...
Herr Tobias Jonnarth
Wohnung zur Miete Tauschwohnung 745 € 3 Zimmer 82 m² 1. Geschoss Eschbach Freiburg im Breisgau 79252
745 €
Kaltmiete
Wohnung zur Miete · Tauschwohnung
3 Zimmer
·
82 m²
·
1. Geschoss
Eschbach, Freiburg im Breisgau (79252)
Ich biete meine gemütliche 3-Zimmer-Wohnung in Stegen-Eschbach im wunderschönen Dreisamtal zum Tausch an. Die Wohnung liegt im ersten Stock und umfasst ein großes Wohn- und Esszimmer mit Einbauküche, ein Schlafzimmer sowie ein weiteres Zimmer, ideal als Arbeits- oder Gästezimmer. Dazu kommen ein Flur, ein Bad mit Dusche und ein eigenes Kellerabteil. Insgesamt 82 m², sehr ruhig gelegen und mit der Natur direkt vor der Tür. Das Haus teile ich mit nur zwei weiteren Mietparteien, es ist angenehm ru...
Wohnung zur Miete Tauschwohnung 770 € 3 Zimmer 81 m² 1. Geschoss Zähringen Freiburg im Breisgau 79104
770 €
Kaltmiete
Wohnung zur Miete · Tauschwohnung
3 Zimmer
·
81 m²
·
1. Geschoss
Zähringen, Freiburg im Breisgau (79104)
Es handelt es sich hierbei um ein Tauschangebot. (Anbieter-ID: 350708) 3-Zi-Whg mit EBK, Balkon, Bad mit Badewanne, GästeWC, Garage 3-Zi-Whg im 1. OG mit EBK, Balkon, Bad mit Badewanne und Duschmöglichkeit, separates Gäste WC, Abstellkammer mit Wasseranschluss um Waschmaschine und Trockner dort rein stellen zu können, Garage (bei Bedarf - kein muss), ebenerdiges Fahrradabteil und Keller. Hausmeister- und Reinigungsdienst in den NK inklusive, somit keine Treppenreinigung oder Schneeschippen nöti...
Wohnung zur Miete Tauschwohnung 870 € 3 Zimmer 65 m² 3. Geschoss Zähringen Freiburg im Breisgau 79108
870 €
Kaltmiete
Wohnung zur Miete · Tauschwohnung
3 Zimmer
·
65 m²
·
3. Geschoss
Zähringen, Freiburg im Breisgau (79108)
Es handelt es sich hierbei um ein Tauschangebot. (Anbieter-ID: 387971) Zuckersüße Maisonette-Wohnung mit begehbarem Kleiderschrank zum Tausch gegen ein größeres Objekt! Mein Partner und ich sind auf der Suche nach einem gemeinsamen Zuhause. Ich biete meine Wohnung daher zum Tausch an. Meine Wohnung liegt in Zähringen, sowohl S-Bahn als auch Tram in unmittelbarer Nähe. Supermärkte, Drogerie, Bäcker, Bank und Cafés/Restaurants hat es auch um die Ecke. Die Wohnung hat einen Balkon, ein Bad mit Bad...
von privat
WG-Zimmer zur Miete 840 € 3 Zimmer 56 m² Geschoss 4/5 frei ab sofort Zähringen Freiburg im Breisgau 79108
Neu
840 €
Kaltmiete
WG-Zimmer zur Miete
3 Zimmer
·
56 m²
·
Geschoss 4/5
·
frei ab sofort
Zähringen, Freiburg im Breisgau (79108)
Die helle und gemütliche 3-Zimmer-Wohnung eignet sich aufgrund ihrer Raumaufteilung ideal als Wohnraum auch für ein Pärchen. Sie verfügt über gut nutzbare Einzelräume, die über einen mittig gelegenen Flur erschlossen werden. Aus dem Fenster eröffnet sich ein Blick ins Grüne sowie auf das Münster. In Laufnähe gibt es mehrere Restaurants, Bäckereien, Cafés, Supermärkte und Ärzte. Auch einige Grün- und Parkanlagen, Fitnessstudios, Bars, Reinigungen und ein Modegeschäft erreichen Sie fußläufig. In ...
Herr Tobias Jonnarth
Wohnung zur Miete Tauschwohnung 1.250 € 2 Zimmer 57 m² 3. Geschoss Brühl Freiburg im Breisgau 79106
1.250 €
Kaltmiete
Wohnung zur Miete · Tauschwohnung
2 Zimmer
·
57 m²
·
3. Geschoss
Brühl, Freiburg im Breisgau (79106)
Schöne 2 Raum Neubau Wohnung nähe Güterbahnhof. Viele Einkaufsmöglichkeiten und schnell im schönen Grünen. 5Min zum Stadion und ca. 10min in die Innenstadt. Wichtig Diese Wohnung wird derzeit bei Wohnungsswap als Tauschobjekt angeboten, eignet sich also nur für diejenigen, die im Gegenzug eine eigene passende Wohnung für den Tausch haben. Es ist kostenlos, ihr Konto zu registrieren und diese bestimme Wohnung oder Hunderte andere Wohnungen bei uns zu finden.
Herr Tobias Jonnarth
Wohnung zur Miete Tauschwohnung 830 € 3 Zimmer 65 m² 3. Geschoss Zähringen Freiburg im Breisgau 79108
830 €
Kaltmiete
Wohnung zur Miete · Tauschwohnung
3 Zimmer
·
65 m²
·
3. Geschoss
Zähringen, Freiburg im Breisgau (79108)
Ich lebe in einer 3 Zimmer Maisonette Wohnung und würde gerne mit meinem Freund zusammen in eine 4 Zimmer Wohnung umziehen! Meine Wohnung liegt in Zähringen, sowohl S-Bahn als auch Tram in unmittelbarer Nähe. Supermärkte, Drogerie, Bäcker, Bank und Cafés/Restaurants hat es auch um die Ecke. Die Wohnung hat einen Balkon, ein Bad mit Badewanne und zusätzlich eine separate Toilette im Obergeschoss. Das Highlight ist natürlich der begehbare Kleiderschrank (zählt nicht als extra Zimmer). Es gibt auß...
von privat
WG-Zimmer zur Miete 1.500 € 3 Zimmer 100 m² Geschoss 1/3 frei ab sofort Mußbach Freiamt 79348
Neu
1.500 €
Kaltmiete
WG-Zimmer zur Miete
3 Zimmer
·
100 m²
·
Geschoss 1/3
·
frei ab sofort
Mußbach, Freiamt (79348)
> NUR EINE HALBE AUTOSTUNDE NÖRDLICH FREIBURG UND ZUM EUROPA PARK! IM LANDKREIS EMMENDINGEN, IN KOMPLETT AUTARKER GEMEINDE FREIAMT, AUF 430M HÖHE IN MODERNER WOHNSIEDLUNG BEIM KURHAUS. IM MODERNEN SCHWARZWALDHAUS, MÖBLIERT UND AUSGESTATTETE MAISONETTE WOHNUNG, BZW. DUPLEX-APARTMENT IM ERDGESCHOSS MIT SOUTERRAINE UND WASCHKÜCHE MIT WASCHMASCHINE UND TROCKNER, WÄSCHETROCKENPLATZ. AUF JEDER ETAGE BEFINDET SICH EIN MÖBLIERT UND AUSGESTATTETES SINGLE-STUDIO, WELCHE JEWEILS EIN WOHN- ARBEITS- & SCHLA...
Studio zur Miete Tauschwohnung 350 € 1 Zimmer 37 m² 4. Geschoss Brühl Freiburg im Breisgau 79108
350 €
Kaltmiete
Studio zur Miete · Tauschwohnung
1 Zimmer
·
37 m²
·
4. Geschoss
Brühl, Freiburg im Breisgau (79108)
Es handelt es sich hierbei um ein Tauschangebot. (Anbieter-ID: 387943) Hallo zusammen, zum Tausch steht eine 1-Zimmer-Wohnung in einem großen Wohnkomplex. Sie bietet einen Balkon mit schönem Ausblick, auf dem man gemütlich den Sonnenuntergang genießen kann. Die Wohnung hat eine Badewanne zum Entspannen und ein eigenes Kellerabteil. Einkaufsmöglichkeiten sind praktisch direkt ums Eck. Die Wohnung liegt nahe der Güterbahngleisen, doch selbst für empfindliche Ohren ist es meiner Meinung nach anneh...
Wohnung zur Miete Tauschwohnung 1.850 € 4,5 Zimmer 130 m² EG Herdern Freiburg im Breisgau 79104
1.850 €
Kaltmiete
Wohnung zur Miete · Tauschwohnung
4,5 Zimmer
·
130 m²
·
EG
Herdern, Freiburg im Breisgau (79104)
Es handelt es sich hierbei um ein Tauschangebot. (Anbieter-ID: 387330) 4,5 Zimmer, auf zwei Stockwerken, großer überdachter Balkon, großer Terrasse mit eigenem Garten, 2 Garagen Stellplätze, Keller, Fahrradkeller, Haustiere erlaubt, 12 min zur Straßenbahn und Einkaufsmöglichkeiten, Post etc , 5 Minuten zum Zug und Bäcker. 5 min zum Waldrand. Ich biete hier unsere helle und ruhige 4,5 Zimmer Wohnung in Zähringen Pochgasse, Höhe Vordere Poche, an. Sie ist auf zwei Etagen, im unteren Bereich, durc...
von privat
Wohnung zur Miete 800 € 2 Zimmer 45 m² Geschoss 1/2 Mußbach Freiamt 79348
800 €
Kaltmiete
Wohnung zur Miete
2 Zimmer
·
45 m²
·
Geschoss 1/2
Mußbach, Freiamt (79348)
VERMIETUNG VON PRIVATEM EIGENTÜMER! > SOFORT MIT 6 MONATEN FESTER LAUFZEIT, UND VERLÄNGERUNG MIT NEUEM ZEITMIETVERTRAG MAX. 3X WIEDERHOLT MÖGLICH! * DEUTSCHE MELDEADRESSE, AUSWEIS, ARBEITSVERTRAG UND EINKOMMENSNACHWEISE ERFORDERLICH, ERSTE MIETE IN BAR ZUM VERTRAG, UND QUITTUNG WIRD AUSGESTELLT! KAUTION MIT VORAUSZAHLUNG NACH VERTRAGSABSCHLUSS PER ÜBERWEISUNG MIT VERWENDUNGSZWECK. MODERNES STUDIO-APARTMENT MIT BALKON UND WALDBLICK IM 1. OG, MIT 2 SEPARATEN, MÖBLIERT UND AUSGESTATTETEN SINGLE-ST...
Wie zufrieden bist du mit dieser Seite (nicht mit den Immobilien selbst)?
Markttrends
Immobilienpreis pro m²
April 2026
Apartment building illustration
Wohnung
12 €/m²
Niedrigster Preis
8 €/m²
Höchster Preis
15 €/m²
House illustration
Haus
12 €/m²
Niedrigster Preis
10 €/m²
Höchster Preis
14 €/m²
Preisentwicklung
Entdecke die Preisentwicklungen vor Ort und auf dem größeren Markt in den letzten 5 Jahren.
1 Monat
+1.1%
6 Monate
+0.8%
1 Jahr
+4.4%
5 Jahre
-
Waldkirch
Baden-Württemberg
Auf den Markt reinzoomenZugang zu detaillierten Immobilienpreisen, bis hin zur genauen Adresse.