Version: 8.25.1Navigation überspringen

1 Büro-/Praxisfläche mieten in Stuttgart Botnang

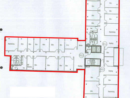
Bürofläche zur Miete 0,07 € 160 m² Bürofläche Botnang Stuttgart / Botnang 70195
0,07 €/m²
Bürofläche zur Miete
160 m² Bürofläche
Botnang, Stuttgart / Botnang (70195)
Die zur Vermietung kommenden Büroräume überzeugen durch eine durchdachte Raumstruktur, die sowohl funktional als auch atmosphärisch wirkt. Auf rund 160 m² Nutzfläche verteilen sich drei große Büros u...
Immowelt logo
Weitere Ergebnisse in der Nähe
Entdecke weitere Ergebnisse in der Umgebung von Botnang
Immoraum GmbH
Bürofläche zur Miete provisionsfrei West Stuttgart, West 70176
Mietkosten auf Anfrage
Bürofläche zur Miete · provisionsfrei
 
West, Stuttgart, West (70176)
Das ansprechende Bürogebäude verfügt derzeit über vakante Büroflächen im 4. und 5. Obergeschoss. Hohe Decken und große Fenster lassen lichtdurchflutete Büroräume entstehen, die eine angenehme Arbeits...
Immoraum GmbH
Praxis zur Miete provisionsfrei 129,5 m² Bürofläche teilbar ab 129,5 m² West Stuttgart, Mitte 70176
Mietkosten auf Anfrage
Praxis zur Miete · provisionsfrei
129,5 m² Bürofläche
·
teilbar ab 129,5 m²
West, Stuttgart, Mitte (70176)
Zur Vermietung stehen moderne und gut geschnittene Praxisflächen in einem gepflegten Geschäftshaus in zentraler Stadtlage. Die Räumlichkeiten eignen sich ideal für medizinische, therapeutische oder b...
Immoraum GmbH
Bürofläche zur Miete provisionsfrei 19,50 € 1.126,6 m² Bürofläche teilbar ab 1.126,6 m² West Stuttgart, West 70176
19,50 €/m²
Bürofläche zur Miete · provisionsfrei
1.126,6 m² Bürofläche
·
teilbar ab 1.126,6 m²
West, Stuttgart, West (70176)
Das ansprechende Bürogebäude verfügt derzeit über vakante Büroflächen im 4. und 5. Obergeschoss. Hohe Decken und große Fenster lassen lichtdurchflutete Büroräume entstehen, die eine angenehme Arbeits...
Frau Fiona Kaulin
Bürofläche zur Miete 23,57 € 69 m² Bürofläche West Stuttgart 70193
Neu
23,57 €/m²
Bürofläche zur Miete
69 m² Bürofläche
West, Stuttgart (70193)
In einem modernen, 2023 errichteten Gebäude wird eine exklusive Gewerbeeinheit im Erdgeschoss zur Untermiete angeboten. Die Einheit ist derzeit als Kosmetikstudio eingerichtet. Im Rahmen der Unterver...
Immoraum GmbH
Bürofläche zur Miete provisionsfrei 234 m² Bürofläche teilbar ab 234 m² West Stuttgart, West 70176
Mietkosten auf Anfrage
Bürofläche zur Miete · provisionsfrei
234 m² Bürofläche
·
teilbar ab 234 m²
West, Stuttgart, West (70176)
Das Büro- und Geschäftshaus wurde im Jahre 1950 erbaut und befindet sich in einem gepflegten Zustand. Die vakanten Büroflächen im Gebäude verteilen sich auf vier Etagen und sind insgesamt ca. 1.029 m...
Bürofläche zur Miete provisionsfrei 21,50 € 242,5 m² Bürofläche teilbar ab 243 m² West Stuttgart 70176
21,50 €/m²
Bürofläche zur Miete · provisionsfrei
242,5 m² Bürofläche
·
teilbar ab 243 m²
West, Stuttgart (70176)
Das markante Lloyd-Haus in Stuttgart wurde im Jahr 1970 erbaut und besteht aus 8 Geschossen in einer beliebten Lage der Stuttgarter Innenstadt. 2009 wurde das Gebäude umfänglich modernisiert und auf ...
FRANK Immobilien GmbH
Bürofläche zur Miete 18 € 2.288 m² Bürofläche teilbar ab 147,1 m² West Stuttgart 70176
18 €/m²
Bürofläche zur Miete
2.288 m² Bürofläche
·
teilbar ab 147,1 m²
West, Stuttgart (70176)
Die Bürofläche verfügt über eine gehobene Büroausstattung und befindet sich im beliebten Silberburg-Carré im belebten Stuttgarter Westen. Aufgrund der repräsentativen Glasfassade erhält die Bürofläch...
Immoraum GmbH
Praxis zur Miete provisionsfrei 111,8 m² Bürofläche teilbar ab 111,8 m² West Stuttgart, Mitte 70176
Mietkosten auf Anfrage
Praxis zur Miete · provisionsfrei
111,8 m² Bürofläche
·
teilbar ab 111,8 m²
West, Stuttgart, Mitte (70176)
Zur Vermietung stehen moderne und gut geschnittene Praxisflächen in einem gepflegten Geschäftshaus in zentraler Stadtlage. Die Räumlichkeiten eignen sich ideal für medizinische, therapeutische oder b...
Immoraum GmbH
Büro zur Miete provisionsfrei 800 m² Bürofläche teilbar ab 200 m² West Stuttgart, West 70178
Mietkosten auf Anfrage
Büro zur Miete · provisionsfrei
800 m² Bürofläche
·
teilbar ab 200 m²
West, Stuttgart, West (70178)
Erleben Sie flexible Büroflächen oder mieten Sie gleich ein ganzes Haus in einer der begehrtesten Lagen von S-West/Feuersee. Diese Immobilie bietet insgesamt ca. 800 m² moderne Büroflächen, verteilt ...
Immoraum GmbH
Bürofläche zur Miete provisionsfrei 14 € 357 m² Bürofläche teilbar ab 357 m² West Stuttgart, Mitte 70178
14 €/m²
Bürofläche zur Miete · provisionsfrei
357 m² Bürofläche
·
teilbar ab 357 m²
West, Stuttgart, Mitte (70178)
Die hier aufgeführte Vakanz befindet sich in einem ansprechenden Büro- und Geschäftshaus. Durch die großen Fenster ist eine helle und moderne Arbeitsatmosphäre gegeben. Die Ausstattung umfasst z. B.:...
Immoraum GmbH
Bürofläche zur Miete provisionsfrei 22 € 179 m² Bürofläche teilbar ab 179 m² West Stuttgart, West 70176
22 €/m²
Bürofläche zur Miete · provisionsfrei
179 m² Bürofläche
·
teilbar ab 179 m²
West, Stuttgart, West (70176)
Das moderne Bürohaus bietet eine hervorragende Infrastruktur, geprägt durch kurze Wege, am attraktiven Standort-Feuersee. Das Objekt überzeugt vor allem durch eine edle Fassade und einer repräsentati...
Immoraum GmbH
Bürofläche zur Miete provisionsfrei 741 m² Bürofläche teilbar ab 234 m² West Stuttgart, West 70176
Mietkosten auf Anfrage
Bürofläche zur Miete · provisionsfrei
741 m² Bürofläche
·
teilbar ab 234 m²
West, Stuttgart, West (70176)
Das Büro- und Geschäftshaus wurde im Jahre 1950 erbaut und befindet sich in einem gepflegten Zustand. Die vakanten Büroflächen im Gebäude verteilen sich auf vier Etagen und sind insgesamt ca. 1.029 m...
Immoraum GmbH
Bürofläche zur Miete provisionsfrei 238 m² Bürofläche teilbar ab 238 m² West Stuttgart, West 70176
Mietkosten auf Anfrage
Bürofläche zur Miete · provisionsfrei
238 m² Bürofläche
·
teilbar ab 238 m²
West, Stuttgart, West (70176)
Das Büro- und Geschäftshaus wurde im Jahre 1950 erbaut und befindet sich in einem gepflegten Zustand. Die vakanten Büroflächen im Gebäude verteilen sich auf vier Etagen und sind insgesamt ca. 1.029 m...
Immoraum GmbH
Büro zur Miete provisionsfrei 21,50 € 391,9 m² Bürofläche teilbar ab 391,9 m² West Stuttgart, West 70176
21,50 €/m²
Büro zur Miete · provisionsfrei
391,9 m² Bürofläche
·
teilbar ab 391,9 m²
West, Stuttgart, West (70176)
Diese gepflegte Bürofläche im obersten Stockwerk bietet ca. 390 m² moderne Arbeitsfläche und eine großzügige 70 m² Dachterrasse. Lichtdurchflutete Räume, ein repräsentatives Ambiente und ein einzigar...
Immoraum GmbH
Büro zur Miete provisionsfrei 19 € 288 m² Bürofläche teilbar ab 288 m² West Stuttgart, West 70176
19 €/m²
Büro zur Miete · provisionsfrei
288 m² Bürofläche
·
teilbar ab 288 m²
West, Stuttgart, West (70176)
Willkommen in der Silberburgstraße 121, Stuttgart! Dieses frisch sanierte Büro- und Wohnobjekt bietet moderne, helle und top ausgestattete Büroflächen zum Erstbezug. Es stehen drei Einheiten zur Verf...
Bürofläche zur Miete provisionsfrei 17,90 € 179 m² Bürofläche West Stuttgart 70176
17,90 €/m²
Bürofläche zur Miete · provisionsfrei
179 m² Bürofläche
West, Stuttgart (70176)
Das 5-geschossige Bürogebäude befindet sich im Stuttgarter Westen direkt am Feuersee nahe der Stuttgarter Innenstadt. Die Büroflächen erfüllen modernste Anforderungen und sind hochwertig ausgebaut. D...
INLEASE Real Estate Advisory GmbH
Bürogebäude zur Miete provisionsfrei 18 € 1.346,6 m² Bürofläche teilbar ab 668,2 m² West Stuttgart 70176
18 €/m²
Bürogebäude zur Miete · provisionsfrei
1.346,6 m² Bürofläche
·
teilbar ab 668,2 m²
West, Stuttgart (70176)
Immoraum GmbH
Bürofläche zur Miete provisionsfrei 18 € 269 m² Bürofläche teilbar ab 269 m² West Stuttgart, West 70176
18 €/m²
Bürofläche zur Miete · provisionsfrei
269 m² Bürofläche
·
teilbar ab 269 m²
West, Stuttgart, West (70176)
Das Büro- und Geschäftshaus wurde im Jahre 1950 erbaut und befindet sich in einem gepflegten Zustand. Die vakanten Büroflächen im Gebäude verteilen sich auf vier Etagen und sind insgesamt ca. 1.029 m...
Immoraum GmbH
Bürofläche zur Miete provisionsfrei 19 € 171 m² Bürofläche teilbar ab 171 m² West Stuttgart, West 70176
19 €/m²
Bürofläche zur Miete · provisionsfrei
171 m² Bürofläche
·
teilbar ab 171 m²
West, Stuttgart, West (70176)
Willkommen in der Silberburgstraße 121, Stuttgart! Dieses frisch sanierte Büro- und Wohnobjekt bietet moderne, helle und top ausgestattete Büroflächen zum Erstbezug. Es stehen drei Einheiten zur Verf...
Immoraum GmbH
Bürofläche zur Miete 2.454 m² Bürofläche West Stuttgart, West 70178
Mietkosten auf Anfrage
Bürofläche zur Miete
2.454 m² Bürofläche
West, Stuttgart, West (70178)
Das Quartier Karlshöhe ist ein einzigartiges Gebäude-Ensemble, bestehend aus insgesamt fünf Gebäudekomplexen, welche sich um die Reinsburgstraße am Fuße der Karlshöhe gruppieren. Die repräsentativen ...
Frau Fiona Kaulin
Bürofläche zur Miete 23,57 € 69 m² Bürofläche West Stuttgart 70193
Neu
23,57 €/m²
Bürofläche zur Miete
69 m² Bürofläche
West, Stuttgart (70193)
Diese exklusive Gewerbeeinheit im Erdgeschoss eines 2023 errichteten Gebäudes bietet auf ca. 69 m² vielseitige Nutzungsmöglichkeiten. Derzeit als Kosmetikstudio eingerichtet, kann die Einheit ebenso ...
Bürosuche sharednc.com
Bürosuche sharednc.com
Bürofläche zur Miete provisionsfrei 450 € 95 m² Bürofläche Seyfferstraße West Stuttgart 70197
450 €
Warmmiete
Bürofläche zur Miete · provisionsfrei
95 m² Bürofläche
Seyfferstraße, West, Stuttgart (70197)
(Objekt-Nr.: 214033 BI) Objektkategorie: Abgeschlossener Büroraum Titel des Angebots: Raum ***Flexible Konditionen*** Mindestlaufzeit: Keine Kündigungsfrist: 2 Monate zum Monatsende Verfügbar ab: Sof...
FRANK Immobilien GmbH
Bürogebäude zur Miete 14,50 € 361 m² Bürofläche West Stuttgart 70176
14,50 €/m²
Bürogebäude zur Miete
361 m² Bürofläche
West, Stuttgart (70176)
Die repräsentative und architektonisch ansprechende Liegenschaft stammt aus dem Jahre 1952, wurde 1992 sowie im letzten Jahr grundlegend saniert. Das Gebäude verfügt über insgesamt fünf vollwertige O...
Bürofläche zur Miete provisionsfrei 18 € 2.288 m² Bürofläche teilbar ab 149 m² West Stuttgart 70176
18 €/m²
Bürofläche zur Miete · provisionsfrei
2.288 m² Bürofläche
·
teilbar ab 149 m²
West, Stuttgart (70176)
Bei dem Objekt handelt es sich um ein modernes Bürogebäude mit ansprechender Architektur und einer modernen Fassade mit viel Glasanteilen. Das Gebäude verfügt über einen repräsentativen Entrée-Bereic...
Immoraum GmbH
Bürofläche zur Miete provisionsfrei 237,4 m² Bürofläche teilbar ab 237,4 m² West Stuttgart, West 70176
Mietkosten auf Anfrage
Bürofläche zur Miete · provisionsfrei
237,4 m² Bürofläche
·
teilbar ab 237,4 m²
West, Stuttgart, West (70176)
Das ansprechende Bürogebäude verfügt derzeit über vakante Büroflächen im 4. und 5. Obergeschoss. Hohe Decken und große Fenster lassen lichtdurchflutete Büroräume entstehen, die eine angenehme Arbeits...
Immoraum GmbH
Bürofläche zur Miete provisionsfrei 19 € 285,9 m² Bürofläche teilbar ab 285,9 m² West Stuttgart, West 70176
19 €/m²
Bürofläche zur Miete · provisionsfrei
285,9 m² Bürofläche
·
teilbar ab 285,9 m²
West, Stuttgart, West (70176)
Willkommen in der Silberburgstraße 121, Stuttgart! Dieses frisch sanierte Büro- und Wohnobjekt bietet moderne, helle und top ausgestattete Büroflächen zum Erstbezug. Es stehen drei Einheiten zur Verf...
Bürofläche zur Miete 300 € 1 Zimmer 12 m² Bürofläche West Stuttgart 70178
Neu
300 €
Nettomiete zzgl. Nebenkosten
Bürofläche zur Miete
1 Zimmer
·
12 m² Bürofläche
West, Stuttgart (70178)
Die Lagerfläche befindet sich im 1.OG eines 2007 erbauten Wohn- und Geschäftshauses. Hier haben Sie direkten Blick auf den Feuersee. Der Aufzug uns das Treppenhaus wird wöchentlich gereinigt. Zudem h...
Herr Michel Brenner
CBRE GmbH
Bürofläche zur Miete provisionsfrei 18 € 2.288 m² Bürofläche teilbar ab 149,1 m² West Stuttgart 70176
18 €/m²
Bürofläche zur Miete · provisionsfrei
2.288 m² Bürofläche
·
teilbar ab 149,1 m²
West, Stuttgart (70176)
Immoraum GmbH
Bürofläche zur Miete provisionsfrei 15,50 € 112 m² Bürofläche West Stuttgart, West 70197
15,50 €/m²
Bürofläche zur Miete · provisionsfrei
112 m² Bürofläche
West, Stuttgart, West (70197)
Das im Jahr 1900 erbaute Gebäude befindet sich auf dem schönen Hasenberg und bringt einen fantastischem Ausblick mit sich. Insgesamt bietet das charmevolle Objekt eine Vakanz im 1. OG von ca. 128 m²....
Wie zufrieden bist du mit dieser Seite (nicht mit den Immobilien selbst)?
Markttrends
Immobilienpreis pro m²
April 2026
Apartment building illustration
Wohnung
15 €/m²
Niedrigster Preis
8 €/m²
Höchster Preis
28 €/m²
House illustration
Haus
16 €/m²
Niedrigster Preis
10 €/m²
Höchster Preis
27 €/m²
Preisentwicklung
Entdecke die Preisentwicklungen vor Ort und auf dem größeren Markt in den letzten 5 Jahren.
1 Monat
+0.3%
6 Monate
+0.5%
1 Jahr
+3.2%
5 Jahre
-
Stuttgart
Baden-Württemberg
Auf den Markt reinzoomenZugang zu detaillierten Immobilienpreisen, bis hin zur genauen Adresse.