Version: 8.25.1Navigation überspringen

Büro-/Praxisflächen mieten in Carlow (19217), Nordwestmecklenburg

Aktuell keine passenden Ergebnisse zu deinen Suchkriterien.
Speicher deine Suche als Suchauftrag, um weitere Ergebnisse zu erhalten.
Weitere Ergebnisse in der Nähe
Entdecke weitere Ergebnisse in der Umgebung von Carlow, 19217
Praxisfläche zur Miete provisionsfrei 7,50 € 11 Zimmer 226 m² Bürofläche teilbar von 119 m² bis 107 m² Töpferstraße 1 Ratzeburg 23909
7,50 €/m²
Praxisfläche zur Miete · provisionsfrei
11 Zimmer
·
226 m² Bürofläche
·
teilbar von 119 m² bis 107 m²
Töpferstraße 1, Ratzeburg (23909)
Objektbeschreibung Bei diesem repräsentativen, gewerblichen Mietobjekt handelt es sich um eine ehemals als Zahnarztpraxis/Kieferorthopädie genutzte ganze Etage (insgesamt 226 m/2) im 2.OG eines denkm...
Bürofläche zur Miete 1.200 € 4 Zimmer 84,9 m² Bürofläche Jarmstorfer Strasse 16 c Gadebusch 19205
1.200 €
Nettomiete zzgl. Nebenkosten
Bürofläche zur Miete
4 Zimmer
·
84,9 m² Bürofläche
Jarmstorfer Strasse 16 c, Gadebusch (19205)
Hochwertiges Büro mit 3 separaten Räumen, moderner Küche und großzügigem Flur in ruhigem Gewerbeobjekt Dieses großzügige Büro mit ca. 104 m² Nutzfläche überzeugt durch eine durchdachte Raumaufteilung...
Herr Mathias Flägel
FALC Immobilien Herzogtum Lauenburg Nord
Bürofläche zur Miete provisionsfrei 1.899 € 3 Zimmer Gadebusch 19205
1.899 €
Nettomiete
Bürofläche zur Miete · provisionsfrei
3 Zimmer
Gadebusch (19205)
Zur Vermietung steht eine moderne Gewerbefläche mit einer Größe von ca. 160 m², die im Jahr 2020 erbaut wurde. Die Einheit befindet sich im Erdgeschoss eines gepflegten Hauses, in dem neben der angeb...
Bürofläche zur Miete - Erstbezug provisionsfrei 14 € 10 Zimmer 300 m² Bürofläche teilbar ab 300 m² Selmsdorf 23923
14 €/m²
Bürofläche zur Miete - Erstbezug · provisionsfrei
10 Zimmer
·
300 m² Bürofläche
·
teilbar ab 300 m²
Selmsdorf (23923)
Attraktive Bürofläche im modernen Niedrigenergie-Gebäude - flexibel aufteilbar in Selmsdorf In einem hochwertigen Bürogebäude in Selmsdorf steht im 2. Obergeschoss eine großzügige, ca. 300 m² große B...
Bürofläche zur Miete 959 m² Bürofläche teilbar ab 77 m² St. Gertrud Lübeck 23568
Mietkosten auf Anfrage
Bürofläche zur Miete
959 m² Bürofläche
·
teilbar ab 77 m²
St. Gertrud, Lübeck (23568)
Bei dem angebotenen Objekt handelt es sich um zwei ineinander übergehende Gebäudeteile, bestehend aus einem Lager- sowie einem Bürogebäude. Durch die flexible Raumaufteilung in den Lager- und Büroflä...
Herr Heinemann
Bürofläche zur Miete provisionsfrei 656 € 1 Zimmer 79,1 m² Bürofläche Nibelungenstr. 6 St. Jürgen Lübeck 23562
656 €
Nettomiete
Bürofläche zur Miete · provisionsfrei
1 Zimmer
·
79,1 m² Bürofläche
Nibelungenstr. 6, St. Jürgen, Lübeck (23562)
Dieses Gewerbe wurde gerade erst aufwendig von uns saniert. Über eine große Bürofläche oder ähnliuches mit einer großen Fensterfront. Das Gewerbe hat eine neue Elektrik bekommen, sowie in weiß gestri...
Herr Heinemann
Bürofläche zur Miete provisionsfrei 358 € 1 Zimmer 41,8 m² Bürofläche Nibelungenstr. 6 St. Jürgen Lübeck 23562
358 €
Nettomiete
Bürofläche zur Miete · provisionsfrei
1 Zimmer
·
41,8 m² Bürofläche
Nibelungenstr. 6, St. Jürgen, Lübeck (23562)
Dieses Gewerbe wurde aufwendig saniert und hat eine große Fensterfront. Ein WC ist vorhanden, sowie ein Küchenraum mit einer Küchenunterzeile inkl. einem Herd und einer Spüle. Des Weiteren, gibt es e...
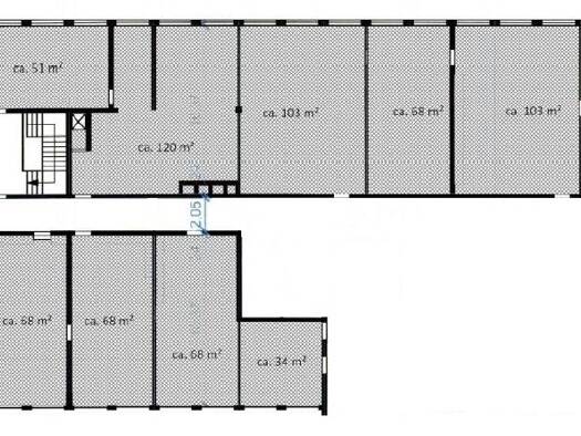
Bürofläche zur Miete 8 € 7 Zimmer 321 m² Bürofläche St. Gertrud Lübeck 23568
8 €/m²
Bürofläche zur Miete
7 Zimmer
·
321 m² Bürofläche
St. Gertrud, Lübeck (23568)
Im Gewerbegebiet Glashüttenweg wird ein großes Gewerbeobjekt frei. Im 1. Obergeschoss kann eine Bürofläche von insgesamt 1.546m² angemietet werden. Es gibt allerdings auch die Möglichkeit einer Aufte...
Bürofläche zur Miete provisionsfrei 651 m² Bürofläche St. Jürgen Lübeck 23562
Mietkosten auf Anfrage
Bürofläche zur Miete · provisionsfrei
651 m² Bürofläche
St. Jürgen, Lübeck (23562)
Attraktive Ladenfläche im Wirth-Center! Die etwa 651 m² große Verkaufs-Fläche befindet sich im Erdgeschoss des Wirth-Centers. Die Fläche wurde vormals als Textil-Einzelhandel genutzt. Die Aufteilung ...
Bürosuche sharednc.com
Bürosuche sharednc.com
Bürofläche zur Miete provisionsfrei 1.929 € 33 m² Bürofläche Maria-Goeppert-Straße St. Jürgen Lübeck 23562
Neu
1.929 €
Warmmiete
Bürofläche zur Miete · provisionsfrei
33 m² Bürofläche
Maria-Goeppert-Straße, St. Jürgen, Lübeck (23562)
(Objekt-Nr.: 219267 IY) Objektkategorie: Abgeschlossener Büroraum Titel des Angebots: Büroraum M ab ***Flexible Konditionen*** Mindestlaufzeit: 1 Monat Kündigungsfrist: 3 Monate zum Monatsende Verfüg...
Bürosuche sharednc.com
Bürosuche sharednc.com
Bürofläche zur Miete provisionsfrei 2.699 € 38 m² Bürofläche Maria-Goeppert-Straße St. Jürgen Lübeck 23562
Neu
2.699 €
Warmmiete
Bürofläche zur Miete · provisionsfrei
38 m² Bürofläche
Maria-Goeppert-Straße, St. Jürgen, Lübeck (23562)
(Objekt-Nr.: 219267 IX) Objektkategorie: Abgeschlossener Büroraum Titel des Angebots: Büroraum L ***Flexible Konditionen*** Mindestlaufzeit: 1 Monat Kündigungsfrist: 30 Tage zum Monatsende Verfügbar ...
Bürosuche sharednc.com
Bürosuche sharednc.com
Bürofläche zur Miete provisionsfrei 229 € 4 m² Bürofläche Maria-Goeppert-Straße St. Jürgen Lübeck 23562
229 €
Warmmiete
Bürofläche zur Miete · provisionsfrei
4 m² Bürofläche
Maria-Goeppert-Straße, St. Jürgen, Lübeck (23562)
(Objekt-Nr.: 219267 IE) Objektkategorie: Schreibtischplatz Titel des Angebots: Offene Arbeitsplätze ***Flexible Konditionen*** Mindestlaufzeit: 1 Monat Kündigungsfrist: 3 Monate zum Monatsende Verfüg...
Bürofläche zur Miete 12,50 € 12 Zimmer 274 m² Bürofläche St. Jürgen Lübeck 23562
12,50 €/m²
Bürofläche zur Miete
12 Zimmer
·
274 m² Bürofläche
St. Jürgen, Lübeck (23562)
Attraktive Büro- oder Praxisfläche im Wirth-Center ! Das "Wirth-Center" in Lübeck bietet eine einmalige Gelegenheit für Einzelhändler und Dienstleister, sich in einer hochfrequentierten und infrastru...
IWG Management GmbH
Herr Hans Müller
IWG Management GmbH
Bürofläche zur Miete provisionsfrei 4.606 € 100 m² Bürofläche Maria-Goeppert Strasse 3 St. Jürgen Lübeck 23562
4.606 €
Nettomiete zzgl. Nebenkosten
Bürofläche zur Miete · provisionsfrei
100 m² Bürofläche
Maria-Goeppert Strasse 3, St. Jürgen, Lübeck (23562)
Großraumbüros für 15 Personen. Verfügbar zu flexiblen Bedingungen, damit Sie mehr Fläche dazubuchen oder bei Bedarf den Standort wechseln können. Schaffen Sie mit großen Gelehrten eine Basis für Ihr ...
IWG Management GmbH
Herr Hans Müller
IWG Management GmbH
Bürofläche zur Miete provisionsfrei 1.278 € 20 m² Bürofläche Maria-Goeppert Strasse 3 St. Jürgen Lübeck 23562
1.278 €
Nettomiete zzgl. Nebenkosten
Bürofläche zur Miete · provisionsfrei
20 m² Bürofläche
Maria-Goeppert Strasse 3, St. Jürgen, Lübeck (23562)
Buchen Sie ein voll ausgestattetes Büro für vier Personen und wir stellen sicher, dass alles durchgehend reibungslos funktioniert. Schaffen Sie mit großen Gelehrten eine Basis für Ihr Unternehmen im ...
IWG Management GmbH
Herr Hans Müller
IWG Management GmbH
Bürofläche zur Miete provisionsfrei 639 € 10 m² Bürofläche Maria-Goeppert Strasse 3 St. Jürgen Lübeck 23562
639 €
Nettomiete zzgl. Nebenkosten
Bürofläche zur Miete · provisionsfrei
10 m² Bürofläche
Maria-Goeppert Strasse 3, St. Jürgen, Lübeck (23562)
Legen Sie jetzt los in einem bezugsfertigen Büroraum für zwei Personen. Schaffen Sie mit großen Gelehrten eine Basis für Ihr Unternehmen im distinguierten Medizinzentrum der Universität Lübeck. Unser...
IWG Management GmbH
Herr Hans Müller
IWG Management GmbH
Bürofläche zur Miete provisionsfrei 879 € 15 m² Bürofläche Maria-Goeppert Strasse 3 St. Jürgen Lübeck 23562
879 €
Nettomiete zzgl. Nebenkosten
Bürofläche zur Miete · provisionsfrei
15 m² Bürofläche
Maria-Goeppert Strasse 3, St. Jürgen, Lübeck (23562)
Produktiver Arbeitsplatz für drei Personen, bei dem Sie sich um nichts mehr kümmern müssen. Schaffen Sie mit großen Gelehrten eine Basis für Ihr Unternehmen im distinguierten Medizinzentrum der Unive...
IWG Management GmbH
Herr Hans Müller
IWG Management GmbH
Bürofläche zur Miete provisionsfrei 680 m² Bürofläche Maria-Goeppert Strasse 3 St. Jürgen Lübeck 23562
Mietkosten auf Anfrage
Bürofläche zur Miete · provisionsfrei
680 m² Bürofläche
Maria-Goeppert Strasse 3, St. Jürgen, Lübeck (23562)
Schaffen Sie mit großen Gelehrten eine Basis für Ihr Unternehmen im distinguierten Medizinzentrum der Universität Lübeck. Unsere Büros in der Maria-Goeppert-Straße 3 sind problemlos mit dem Bus zu er...
IWG Management GmbH
Herr Hans Müller
IWG Management GmbH
Bürofläche zur Miete provisionsfrei 179 € 8 m² Bürofläche Maria-Goeppert Strasse 3 St. Jürgen Lübeck 23562
179 €
Nettomiete zzgl. Nebenkosten
Bürofläche zur Miete · provisionsfrei
8 m² Bürofläche
Maria-Goeppert Strasse 3, St. Jürgen, Lübeck (23562)
Arbeiten Sie, wo und wie Sie möchten - mit einer Regus-Büro-Mitgliedschaft. Zu Preisen ab 179 bieten wir Ihnen die Flexibilität und Freiheit, jeder Arbeitsweise gerecht zu werden. Schauen Sie einfach...
IWG Management GmbH
Herr Hans Müller
IWG Management GmbH
Bürofläche zur Miete provisionsfrei 2.917 € 45 m² Bürofläche Maria-Goeppert Strasse 3 St. Jürgen Lübeck 23562
2.917 €
Nettomiete zzgl. Nebenkosten
Bürofläche zur Miete · provisionsfrei
45 m² Bürofläche
Maria-Goeppert Strasse 3, St. Jürgen, Lübeck (23562)
Treffen Sie eine flexible Auswahl für Ihr Unternehmen mit Großraumbüros, die für Teams jeder Größe ausgelegt sind. Schaffen Sie mit großen Gelehrten eine Basis für Ihr Unternehmen im distinguierten M...
IWG Management GmbH
Herr Hans Müller
IWG Management GmbH
Bürofläche zur Miete provisionsfrei 639 € 8 m² Bürofläche Maria-Goeppert Strasse 3 St. Jürgen Lübeck 23562
639 €
Nettomiete zzgl. Nebenkosten
Bürofläche zur Miete · provisionsfrei
8 m² Bürofläche
Maria-Goeppert Strasse 3, St. Jürgen, Lübeck (23562)
Konzentrieren Sie sich mit einem professionellen Büro nur für Sie auf den Erfolg Ihres Unternehmens. Schaffen Sie mit großen Gelehrten eine Basis für Ihr Unternehmen im distinguierten Medizinzentrum ...
IWG Management GmbH
Herr Hans Müller
IWG Management GmbH
Bürofläche zur Miete provisionsfrei 1.399 € 30 m² Bürofläche Maria-Goeppert Strasse 3 St. Jürgen Lübeck 23562
1.399 €
Nettomiete zzgl. Nebenkosten
Bürofläche zur Miete · provisionsfrei
30 m² Bürofläche
Maria-Goeppert Strasse 3, St. Jürgen, Lübeck (23562)
Erhalten Sie Zugang zu einem hellen und inspirierenden Büroraum, der darauf ausgelegt ist, Teams von 5 Personen optimal bei ihrer Arbeit zu unterstützen. Schaffen Sie mit großen Gelehrten eine Basis ...
IWG Management GmbH
Herr Hans Müller
IWG Management GmbH
Bürofläche zur Miete provisionsfrei 269 € 10 m² Bürofläche Maria-Goeppert Strasse 3 St. Jürgen Lübeck 23562
269 €
Nettomiete zzgl. Nebenkosten
Bürofläche zur Miete · provisionsfrei
10 m² Bürofläche
Maria-Goeppert Strasse 3, St. Jürgen, Lübeck (23562)
Arbeiten Sie inmitten einer Community gleichgesinnter Unternehmer in unseren geteilten Büros. Unsere Coworking-Bereiche sind auf Zusammenarbeit ausgelegt und wir kümmern uns um alles. Reservieren Sie...
IWG Management GmbH
Herr Hans Müller
IWG Management GmbH
Bürofläche zur Miete provisionsfrei 680 m² Bürofläche Maria-Goeppert Strasse 3 St. Jürgen Lübeck 23562
Mietkosten auf Anfrage
Bürofläche zur Miete · provisionsfrei
680 m² Bürofläche
Maria-Goeppert Strasse 3, St. Jürgen, Lübeck (23562)
Büroflächen für jede Teamgröße; in unserem Business Center in Campus Park Entdecken Sie unser umfangreiches Angebot an vollständig möblierten Büroflächen, mit dem wir Unternehmen in jeder Entwicklung...
IWG Management GmbH
Herr Hans Müller
IWG Management GmbH
Bürofläche zur Miete provisionsfrei 109 € 5 m² Bürofläche Maria-Goeppert Strasse 3 St. Jürgen Lübeck 23562
109 €
Nettomiete zzgl. Nebenkosten
Bürofläche zur Miete · provisionsfrei
5 m² Bürofläche
Maria-Goeppert Strasse 3, St. Jürgen, Lübeck (23562)
Arbeiten Sie, wo und wie Sie möchten - mit einer Regus-Coworking-Mitgliedschaft. Mit Preisen ab 109 bieten wir Ihnen die Flexibilität und Freiheit, jeder Arbeitsweise gerecht zu werden. Schauen Sie e...
IWG Management GmbH
Herr Hans Müller
IWG Management GmbH
Bürofläche zur Miete provisionsfrei 169 € 1 m² Bürofläche Maria-Goeppert Strasse 3 St. Jürgen Lübeck 23562
169 €
Nettomiete zzgl. Nebenkosten
Bürofläche zur Miete · provisionsfrei
1 m² Bürofläche
Maria-Goeppert Strasse 3, St. Jürgen, Lübeck (23562)
Bauen Sie Ihre Geschäftspräsenz schnell auf - mit einer sofortigen professionellen Unternehmensadresse und den Services für virtuelle Büros, die Sie brauchen. Sie haben die Wahl aus Tausenden von Sta...
Herr Bjarne Benthien
Bürofläche zur Miete provisionsfrei 11,20 € 414,9 m² Bürofläche teilbar ab 414,9 m² St. Jürgen Lübeck 23564
11,20 €/m²
Bürofläche zur Miete · provisionsfrei
414,9 m² Bürofläche
·
teilbar ab 414,9 m²
St. Jürgen, Lübeck (23564)
Die zur Vermietung stehende Büroeinheit befindet sich im 2. Obergeschoss eines im Jahre 1994 erbauten Gewerbeobjekts in der Falkenstraße in Lübeck. Das zweistöckige Gebäude umfasst Verkaufs- und Lage...
Bürofläche zur Miete 1.000 € 95 m² Bürofläche St. Jürgen Lübeck 23562
1.000 €
Nettomiete zzgl. Nebenkosten
Bürofläche zur Miete
95 m² Bürofläche
St. Jürgen, Lübeck (23562)
Attraktive, ruhige Maisonette-Bürofläche in begehrter Wohnlage an der Wakenitz in Lübeck-St. Jürgen! Zur Vermietung steht eine ca. 95m² große Bürofläche mit 3-4 unterschiedlich nutzbaren Räumen, eine...
NEUE LÜBECKER Norddeutsche Baugenossenschaft eG
Bürofläche zur Miete 16 € 580 m² Bürofläche Am Kaufhof 3 St. Gertrud Lübeck 23566
16 €/m²
Bürofläche zur Miete
580 m² Bürofläche
Am Kaufhof 3, St. Gertrud, Lübeck (23566)
Das Objekt "Am Kaufhof 3" ist Teil eines modernen, gemischt genutzten Gebäudekomplexes im Stadtteil St. Gertrud, einem gefragten Wohn- und Geschäftsviertel in Lübeck. Es kombiniert hochwertige Bürofl...
Bürogebäude zur Miete provisionsfrei 995 € 2 Zimmer 66,3 m² Bürofläche St. Gertrud Lübeck 23566
Neu
995 €
Nettomiete
Bürogebäude zur Miete · provisionsfrei
2 Zimmer
·
66,3 m² Bürofläche
St. Gertrud, Lübeck (23566)
Die angebotene Gewerbeeinheit befindet sich im Erdgeschoss eines urspru?nglich 1901 errichteten Mehrfamilienhauses mit vier Wohneinheiten und einer Gewerbeeinheit, das im Jahr 2026 umfassend kernsani...
Wie zufrieden bist du mit dieser Seite (nicht mit den Immobilien selbst)?
Markttrends
Immobilienpreis pro m²
April 2026
Apartment building illustration
Wohnung
9 €/m²
Niedrigster Preis
7 €/m²
Höchster Preis
10 €/m²
House illustration
Haus
11 €/m²
Niedrigster Preis
9 €/m²
Höchster Preis
13 €/m²
Preisentwicklung
Entdecke die Preisentwicklungen vor Ort und auf dem größeren Markt in den letzten 5 Jahren.
1 Monat
-0.1%
6 Monate
+0.5%
1 Jahr
+1.1%
5 Jahre
-
Carlow
Mecklenburg-Vorpommern
Auf den Markt reinzoomenZugang zu detaillierten Immobilienpreisen, bis hin zur genauen Adresse.