Version: 8.25.1Navigation überspringen

9 Büro-/Praxisflächen mieten in Bonn Beuel

Büro zur Miete 19 € 2.548 m² Bürofläche teilbar ab 199 m² Oberkassel Bonn 53227
19 €/m²
Büro zur Miete
2.548 m² Bürofläche
·
teilbar ab 199 m²
Oberkassel, Bonn (53227)
Der aus drei Gebäuden bestehende moderne Bürokomplex "Rheinwerk III" besticht durch seine Lage und die sehr ansprechende Architektur. Trotz der Lage direkt am Rhein ist das Objekt laut Vermieter nich...
Immowelt logo
Bürofläche zur Miete 12,50 € 2 Zimmer 108 m² Bürofläche Vilich-Müldorf Bonn 53229
12,50 €/m²
Bürofläche zur Miete
2 Zimmer
·
108 m² Bürofläche
Vilich-Müldorf, Bonn (53229)
Objektbeschreibung Freistehendes Bürohaus in massiver Bauweise im rückwärtigen Bereich einer gemischt genutzten Liegenschaft, erreichbar über eine separate Zufahrt. Das eingeschossige Bürohaus verfüg...
von privat
Büro zur Miete provisionsfrei 1.350 € 2 Zimmer 71 m² Bürofläche Limperich Bonn 53227
Neu
1.350 €
Nettomiete
Büro zur Miete · provisionsfrei
2 Zimmer
·
71 m² Bürofläche
Limperich, Bonn (53227)
Geeignet ist diese Gewerbeeinheit als Büroetage, Ladenlokal, kleine Praxis. Auch geeignet z.B. als Apotheke da neben Arztpraxis und im Umfeld keine weitere Apotheke. Die Räumlichkeiten teilen sich wi...
Herr Torsten Hamm
Greif & Contzen Immobilienmakler GmbH
Büro zur Miete 13,90 € 608 m² Bürofläche teilbar ab 187 m² Beuel Bonn 53225
13,90 €/m²
Büro zur Miete
608 m² Bürofläche
·
teilbar ab 187 m²
Beuel, Bonn (53225)
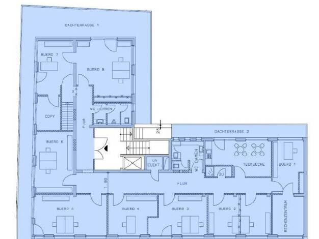
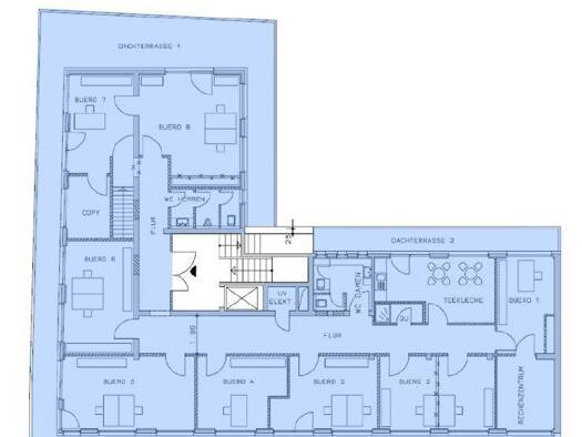
Die vakante Büroetage befindet sich im ersten Obergeschoss eines Wohn-, Büro- und Geschäftshaus und bietet eine großzügige Fläche von rund 608 m². Die Büroflächen sind bequem über zwei Treppenhäuser ...
Bürofläche zur Miete Oberkassel Bonn 53227
Mietkosten auf Anfrage
Bürofläche zur Miete
 
Oberkassel, Bonn (53227)
Das moderne Bürogebäude Rheinwerk 3 zeichnet sich durch zeitgemäße Architektur und funktionale Büroflächen aus. Die Immobilie bietet flexible Raumaufteilungen, die sich ideal für verschiedene Unterne...
Immowelt logo
Herr Severin Brochhaus
CBRE GmbH
Bürofläche zur Miete provisionsfrei 18,50 € 815,2 m² Bürofläche Oberkassel Bonn 53227
18,50 €/m²
Bürofläche zur Miete · provisionsfrei
815,2 m² Bürofläche
Oberkassel, Bonn (53227)
Herr Wieland Münch
Bürofläche zur Miete provisionsfrei 16,50 € 516 m² Bürofläche teilbar ab 239 m² Beuel Bonn 53225
16,50 €/m²
Bürofläche zur Miete · provisionsfrei
516 m² Bürofläche
·
teilbar ab 239 m²
Beuel, Bonn (53225)
Kurzbeschreibung Moderne Bürofläche direkt im herzen von Bonn-Beuel! Objekt Insgesamt stehen ca. 516,81 m² zur Anmietung zur Verfügung, aufgeteilt auf ca. 277,38 m² (inklusive ca. 15,82 m² anteiliger...
Bürofläche zur Miete provisionsfrei 10,50 € 4.127 m² Bürofläche teilbar ab 4.127 m² Beuel Bonn 53225
10,50 €/m²
Bürofläche zur Miete · provisionsfrei
4.127 m² Bürofläche
·
teilbar ab 4.127 m²
Beuel, Bonn (53225)
In Bonn-Beuel stehen provisionsfreie Büroflächen mit einer Gesamtfläche von ca. 4.127 m² zur Verfügung, die sich pro Etage ab ca. 340 m² flexibel teilen lassen. Die Büroflächen erstrecken sich über E...
Bürofläche zur Miete 498 m² Bürofläche Beuel Bonn 53229
Mietkosten auf Anfrage
Bürofläche zur Miete
498 m² Bürofläche
Beuel, Bonn (53229)
Die Immobilie wurde als Neubau ausschließlich zur gewerblichen Nutzung erstellt. Die in Teilbereichen vorhandene historische, denkmalgeschütze Fassade ist vollständig saniert und entspricht neubaugle...
Immowelt logo
Weitere Ergebnisse in der Nähe
Entdecke weitere Ergebnisse in der Umgebung von Beuel
Bürofläche zur Miete 2.100 € 5 Zimmer 160 m² Bürofläche Zentrum Bonn 53111
2.100 €
Nettomiete zzgl. Nebenkosten
Bürofläche zur Miete
5 Zimmer
·
160 m² Bürofläche
Zentrum, Bonn (53111)
Das 1954 errichtete, repräsentative Bürogebäude wurde in 2014 nach hohen Qualitätsansprüchen des Eigentümers modernisiert und präsentiert sich in einem exzellenten Pflege- und Erhaltungszustand. Die ...
von privat
Büro zur Miete provisionsfrei 3.500 € 1 Zimmer 120 m² Bürofläche Belderberg 4 Zentrum Bonn 53111
Neu
3.500 €
Nettomiete
Büro zur Miete · provisionsfrei
1 Zimmer
·
120 m² Bürofläche
Belderberg 4, Zentrum, Bonn (53111)
Zur Vermietung steht eine hochwertig kernsanierte Gewerbefläche/Ladenlokal in absoluter Innenstadtlage von Bonn (53111), direkt am Belderberg 4. Das Objekt befindet sich in einem Neubauzustand und ei...
von privat
Büro zur Miete provisionsfrei 6.500 € 1 Zimmer 160 m² Bürofläche Brüdergasse 6 Zentrum Bonn 53111
Neu
6.500 €
Nettomiete
Büro zur Miete · provisionsfrei
1 Zimmer
·
160 m² Bürofläche
Brüdergasse 6, Zentrum, Bonn (53111)
Toplage: Brüdergasse 5–6, 53111 Bonn Nutzung: Gastronomie – Burger-Restaurant im Las Vegas Style Fläche: ca. 160m² auf 2 Ebenen Ausstattung: Komplett möbliert & sofort betriebsbereit Verfügbar ab: 01...
Herr Wieland Münch
Büro zur Miete 12,50 € 558 m² Bürofläche teilbar ab 219 m² Zentrum Bonn 53111
12,50 €/m²
Büro zur Miete
558 m² Bürofläche
·
teilbar ab 219 m²
Zentrum, Bonn (53111)
Kurzbeschreibung Büroflächen mit Rheinblick, bestens angebunden in der Bonner City! Objekt Insgesamt stehen ca. 558 m² zur Anmietung zur Verfügung, aufgeteilt auf ca. 219 m² im 4. Obergeschoss und ca...
Büro zur Miete 12 € 124 m² Bürofläche Zentrum Bonn 53111
12 €/m²
Büro zur Miete
124 m² Bürofläche
Zentrum, Bonn (53111)
Zentral gelegene Büroetage mit bester ÖPNV-Anbindung!
Herr Torsten Hamm
Greif & Contzen Immobilienmakler GmbH
Büro zur Miete 19,33 € 73 m² Bürofläche teilbar ab 20 m² Zentrum Bonn 53113
19,33 €/m²
Büro zur Miete
73 m² Bürofläche
·
teilbar ab 20 m²
Zentrum, Bonn (53113)
Bei diesem Bürogebäude, dem "House of Consulting", handelt es sich um eine Gründerzeitvilla, die 2007 aufwendig und mit viel Liebe zum Detail vollständig saniert und modernisiert wurde. Das Haus verf...
Herr Torsten Hamm
Greif & Contzen Immobilienmakler GmbH
Bürofläche zur Miete 23,50 € 9.306 m² Bürofläche teilbar ab 1.800 m² Zentrum Bonn 53113
23,50 €/m²
Bürofläche zur Miete
9.306 m² Bürofläche
·
teilbar ab 1.800 m²
Zentrum, Bonn (53113)
Mit dem "GreenGate" ist ein High-End-Büroneubau mit elf oberirdischen Geschossen und vier Ebenen für Kantine, Tiefgarage und Fahrradgarage unterhalb entstanden. Die hochattraktive Architektur, die Tr...
von privat
Büro zur Miete provisionsfrei 1.150 € 1 Zimmer 74 m² Bürofläche Zentrum Bonn 53111
Neu
D
1.150 €
Nettomiete
Büro zur Miete · provisionsfrei
1 Zimmer
·
74 m² Bürofläche
Zentrum, Bonn (53111)
Bonn-Zentrum Altstadt – Werkstatt, Lagerraum, Atelier, verschiedene Nutzungen - 74 qm In hervorragender Lage der Bonner Altstadt (Adolfstraße Nähe Frankenbad) wird eine ca. 74 qm Gewerbefläche als La...
Herr Torsten Hamm
Greif & Contzen Immobilienmakler GmbH
Bürofläche zur Miete 24 € 2.952 m² Bürofläche teilbar ab 369 m² Zentrum Bonn 53113
24 €/m²
Bürofläche zur Miete
2.952 m² Bürofläche
·
teilbar ab 369 m²
Zentrum, Bonn (53113)
Das neue Büroquartier am Bundeskanzlerplatz besteht aus insgesamt drei Baukörpern mit einer oberirdischen Fläche von insgesamt ca. 70.000 m² (BGF) bzw. 57.600 m² (gif). Die hochmodernen Bürohäuser si...
Büro zur Miete 2.300 € 159 m² Bürofläche Zentrum Bonn 53113
2.300 €
Nettomiete zzgl. Nebenkosten
Büro zur Miete
159 m² Bürofläche
Zentrum, Bonn (53113)
Ca. 159 m² in architektonisch markantem Bürohaus an erstklassiger Adresse im Bonner Bundesviertel!
Herr Torsten Hamm
Greif & Contzen Immobilienmakler GmbH
Bürofläche zur Miete 13,50 € 164 m² Bürofläche Zentrum Bonn 53111
13,50 €/m²
Bürofläche zur Miete
164 m² Bürofläche
Zentrum, Bonn (53111)
Das moderne Bürogebäude verfügt über einen ansprechenden Eingangsbereich. Über den repräsentativen Glasaufzug und eine Treppe gelangt der Mieter zu seiner Mietfläche. Eine Teeküche ist vorhanden, der...
von privat
Büro zur Miete provisionsfrei 1.700 € 5 Zimmer 143 m² Bürofläche Zentrum Bonn 53113
1.700 €
Nettomiete
Büro zur Miete · provisionsfrei
5 Zimmer
·
143 m² Bürofläche
Zentrum, Bonn (53113)
Die repräsentativen Büro- oder Praxisräume im Erdgeschoss und dem zum Garten hin ebenerdigen Untergeschoss des Denkmalgeschützten Gründerzeithauses eignen sich für vielfältige Nutzung, auch in Kombin...
Bürogebäude zur Miete 7,50 € 7 Zimmer 250 m² Bürofläche Zentrum Bonn 53119
7,50 €/m²
Bürogebäude zur Miete
7 Zimmer
·
250 m² Bürofläche
Zentrum, Bonn (53119)
Das vollständige Exposé finden Sie auf unserer Webseite: www.ksk-immobilien.de/immobilien/funktionale-bueroflaechen-in-verkehrsguenstiger-lage-von-bonn-139927/?utm_source=portale (bitte kopieren Sie ...
Bürogebäude zur Miete 15 € 177 m² Bürofläche Kaiserstr. 139-141 Zentrum Bonn 53113
15 €/m²
Bürogebäude zur Miete
177 m² Bürofläche
Kaiserstr. 139-141, Zentrum, Bonn (53113)
Diese moderne Büroeinheit befindet sich in einem sehr gepflegten Geschäftshaus mitten im Herzen der Bonner Südstadt und nur 300 m vom Rhein entfernt. Das Büro befindet sich im 1. Obergeschoss und ist...
Bürofläche zur Miete 12,20 € 354 m² Bürofläche Kaiserstr. 139-141 Zentrum Bonn 53113
12,20 €/m²
Bürofläche zur Miete
354 m² Bürofläche
Kaiserstr. 139-141, Zentrum, Bonn (53113)
Diese moderne Büroeinheit befindet sich in einem sehr gepflegten Geschäftshaus mitten im Herzen der Bonner Südstadt und nur 300 m vom Rhein entfernt. Das Büro befindet sich im 1. Obergeschoss und ist...
Bürogebäude zur Miete 15,68 € 124 m² Bürofläche Kaiserstr. 139-141 Zentrum Bonn 53113
15,68 €/m²
Bürogebäude zur Miete
124 m² Bürofläche
Kaiserstr. 139-141, Zentrum, Bonn (53113)
Diese moderne Büroeinheit befindet sich in einem sehr gepflegten Geschäftshaus mitten im Herzen der Bonner Südstadt und nur 300 m vom Rhein entfernt. Das Büro befindet sich im 1. Obergeschoss und ist...
Herr Anton Ameziane
Greif & Contzen Immobilienmakler GmbH
Büro zur Miete 8,90 € 397 m² Bürofläche Zentrum Bonn 53111
8,90 €/m²
Büro zur Miete
397 m² Bürofläche
Zentrum, Bonn (53111)
Bei der Immobilie handelt es sich um ein Bürohaus in attraktiver, erweiterter Bahnhofslage. Das Objekt umfasst vier nutzbare Büro-etagen mit jeweils ca. 100 m² Bürofläche, die zusammenhängend für ein...
Bürosuche sharednc.com
Bürosuche sharednc.com
Bürofläche zur Miete provisionsfrei 350 € 299 m² Bürofläche Am Hauptbahnhof Zentrum Bonn 53111
350 €
Warmmiete
Bürofläche zur Miete · provisionsfrei
299 m² Bürofläche
Am Hauptbahnhof, Zentrum, Bonn (53111)
(Objekt-Nr.: 217010 QL) Objektkategorie: Abgeschlossener Büroraum Titel des Angebots: Konferenzraum Silicon Valley pro Stunde (ab 5 Stunden) ***Flexible Konditionen*** Mindestlaufzeit: Keine Kündigun...
Bürosuche sharednc.com
Bürosuche sharednc.com
Bürofläche zur Miete provisionsfrei 150 € 30 m² Bürofläche Am Hauptbahnhof Zentrum Bonn 53111
150 €
Warmmiete
Bürofläche zur Miete · provisionsfrei
30 m² Bürofläche
Am Hauptbahnhof, Zentrum, Bonn (53111)
(Objekt-Nr.: 217010 QH) Objektkategorie: Abgeschlossener Büroraum Titel des Angebots: Büroräume Tagesweise pro Tag ***Flexible Konditionen*** Mindestlaufzeit: Keine Kündigungsfrist: keine Verfügbar a...
Bürosuche sharednc.com
Bürosuche sharednc.com
Bürofläche zur Miete provisionsfrei 29 € 4 m² Bürofläche Am Hauptbahnhof Zentrum Bonn 53111
29 €
Warmmiete
Bürofläche zur Miete · provisionsfrei
4 m² Bürofläche
Am Hauptbahnhof, Zentrum, Bonn (53111)
(Objekt-Nr.: 217010 QI) Objektkategorie: Schreibtischplatz Titel des Angebots: Coworkingdesks Tagespreis ***Flexible Konditionen*** Mindestlaufzeit: Keine Kündigungsfrist: keine Verfügbar ab: Sofort ...
Bürosuche sharednc.com
Bürosuche sharednc.com
Bürofläche zur Miete provisionsfrei 140 € 99 m² Bürofläche Am Hauptbahnhof Zentrum Bonn 53111
140 €
Warmmiete
Bürofläche zur Miete · provisionsfrei
99 m² Bürofläche
Am Hauptbahnhof, Zentrum, Bonn (53111)
(Objekt-Nr.: 217010 QK) Objektkategorie: Abgeschlossener Büroraum Titel des Angebots: Konferenzraum Palo Alto pro Stunde (ab 4 Stunden) ***Flexible Konditionen*** Mindestlaufzeit: Keine Kündigungsfri...
Wie zufrieden bist du mit dieser Seite (nicht mit den Immobilien selbst)?
Markttrends
Immobilienpreis pro m²
April 2026
Apartment building illustration
Wohnung
11 €/m²
Niedrigster Preis
6 €/m²
Höchster Preis
20 €/m²
House illustration
Haus
14 €/m²
Niedrigster Preis
9 €/m²
Höchster Preis
22 €/m²
Preisentwicklung
Entdecke die Preisentwicklungen vor Ort und auf dem größeren Markt in den letzten 5 Jahren.
1 Monat
-0.4%
6 Monate
+1.3%
1 Jahr
+4%
5 Jahre
-
Bonn
Nordrhein-Westfalen
Auf den Markt reinzoomenZugang zu detaillierten Immobilienpreisen, bis hin zur genauen Adresse.