Version: 8.26.0Navigation überspringen

1 Büro-/Praxisfläche mieten in Prosselsheim (97279), Würzburg

Bürofläche zur Miete 500 € 3 Zimmer Prosselsheim 97279
500 €
Nettomiete
Bürofläche zur Miete
3 Zimmer
Prosselsheim (97279)
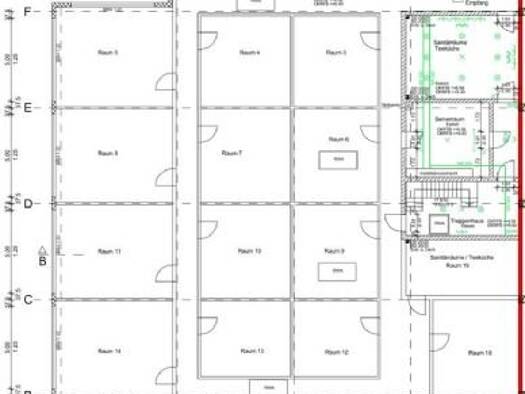
Entdecken Sie diese attraktive Bürofläche (ehemalige Bank) in Prosselsheim, die ab sofort zur Miete verfügbar ist. Dieses neuwertige Objekt bietet Ihnen drei gut gestaltete Zimmer und wurde ursprüngl...
Immowelt logo
Weitere Ergebnisse in der Nähe
Entdecke weitere Ergebnisse in der Umgebung von Prosselsheim, 97279
Frau Christine Sturm Dipl. Ing.(FH)
Christine Sturm Immobilien
Bürofläche zur Miete 1.200 € 3 Zimmer 127,6 m² Bürofläche Bergtheim 97241
1.200 €
Nettomiete
Bürofläche zur Miete
3 Zimmer
·
127,6 m² Bürofläche
Bergtheim (97241)
Zur Vermietung steht eine vielseitig nutzbare Gewerbefläche im Herzen von Bergtheim. Viele Jahre war hier die Sparkasse des Ortes untergebracht. Die Fläche hat eine Größe von 127,57 m² und eignet sic...
Bürofläche zur Miete 630 € 2 Zimmer 58 m² Bürofläche Kürnach 97273
D
630 €
Nettomiete
Bürofläche zur Miete
2 Zimmer
·
58 m² Bürofläche
Kürnach (97273)
Die zur Vermietung stehende Einheit verfügt über einen separaten Eingang, Es handelt sich um zwei helle, mit Fußbodenheizung und Fliesen ausgestattete Räume mit Zugang auf die vorgelagerten Terrassen...
Castell Immobilien GmbH
Bürofläche zur Miete provisionsfrei 6,90 € 385 m² Bürofläche Unterpleichfeld 97294
6,90 €/m²
Bürofläche zur Miete · provisionsfrei
385 m² Bürofläche
Unterpleichfeld (97294)
Sehr schöne Bürofläche mit Schulungsräumen in Unterpleichfeld. Die Fläche befindet sich im Erdgeschoss in einer sehr gepflegten Gewerbeimmobilie. Der große Raum / die Halle wird zusätzlich über ein g...
Bürofläche zur Miete provisionsfrei 296 € 1 Zimmer 16,5 m² Bürofläche teilbar von 36 m² bis 60 m² Effeldorf Dettelbach 97337
296 €
Warmmiete
Bürofläche zur Miete · provisionsfrei
1 Zimmer
·
16,5 m² Bürofläche
·
teilbar von 36 m² bis 60 m²
Effeldorf, Dettelbach (97337)
Es handelt sich um ein Büro in einer parkähnlichen Anlage im Mainfrankenpark, mit zwei Teichen, schön eingewachsener Außenanlage, komplett umzäunt, mit einem Empfangsgebäude und weiteren Gebäuden, in...
Bürofläche zur Miete 6,20 € 250 m² Bürofläche Estenfeld 97230
6,20 €/m²
Bürofläche zur Miete
250 m² Bürofläche
Estenfeld (97230)
Wir bieten Ihnen ab sofort mit Mietbeginn "nach Absprache" eine Bürofläche im Gewerbeobjekt in Estenfeld im Ergeschoss an. Dieses befindet sich in Estenfeld an der B19 mit ca. 250 m² in einem zentral...
von privat
Büro zur Miete provisionsfrei 1.850 € 5 Zimmer 163 m² Bürofläche Estenfeld 97230
1.850 €
Nettomiete
Büro zur Miete · provisionsfrei
5 Zimmer
·
163 m² Bürofläche
Estenfeld (97230)
Attraktive Bürofläche mit 4 Zimmern, Serverraum & Parkplätzen Diese vielseitig nutzbare Bürofläche bietet ideale Voraussetzungen für Unternehmen, die Wert auf eine funktionale und angenehme Arbeitsum...
Bürofläche zur Miete provisionsfrei 2.990 € 220 m² Bürofläche Edekastraße Rottendorf 97228
Neu
2.990 €
Warmmiete
Bürofläche zur Miete · provisionsfrei
220 m² Bürofläche
Edekastraße, Rottendorf (97228)
(Objekt-Nr.: 225887 CT) Objektkategorie: Eigene Bürofläche Titel des Angebots: 220 m² Büroetage ***Flexible Konditionen*** Mindestlaufzeit: 1 Monat Kündigungsfrist: 30 Tage zum Monatsende Verfügbar a...
Bürofläche zur Miete provisionsfrei 3.990 € 440 m² Bürofläche Edekastraße Rottendorf 97228
Neu
3.990 €
Warmmiete
Bürofläche zur Miete · provisionsfrei
440 m² Bürofläche
Edekastraße, Rottendorf (97228)
(Objekt-Nr.: 225887 CU) Objektkategorie: Eigene Bürofläche Titel des Angebots: 440 m² Büroetage ***Flexible Konditionen*** Mindestlaufzeit: 6 Monate Kündigungsfrist: 30 Tage zum Monatsende Verfügbar ...
Bürosuche sharednc.com
Bürosuche sharednc.com
Bürofläche zur Miete provisionsfrei 1.199 € 108 m² Bürofläche Edekastraße Rottendorf 97228
Neu
1.199 €
Warmmiete
Bürofläche zur Miete · provisionsfrei
108 m² Bürofläche
Edekastraße, Rottendorf (97228)
(Objekt-Nr.: 226602 Y) Objektkategorie: Abgeschlossener Büroraum Titel des Angebots: 72 m² Büro Beschreibung: Inklusive den Meisten Nebenkosten ***Flexible Konditionen*** Mindestlaufzeit: 1 Monat Kün...
Bürofläche zur Miete provisionsfrei 999 € 75 m² Bürofläche Edekastraße Rottendorf 97228
Neu
999 €
Warmmiete
Bürofläche zur Miete · provisionsfrei
75 m² Bürofläche
Edekastraße, Rottendorf (97228)
(Objekt-Nr.: 226602 Z) Objektkategorie: Abgeschlossener Büroraum Titel des Angebots: 50 m² Büro Beschreibung: Inklusive den meisten Nebenkosten ***Flexible Konditionen*** Mindestlaufzeit: 12 Monate K...
Bürofläche zur Miete provisionsfrei 1.100 € 6 Zimmer 150 m² Bürofläche Schweinfurter Str. 22 Stadtschwarzach Schwarzach am Main 97359
1.100 €
Nettomiete
Bürofläche zur Miete · provisionsfrei
6 Zimmer
·
150 m² Bürofläche
Schweinfurter Str. 22, Stadtschwarzach, Schwarzach am Main (97359)
Bei diesem Objekt handelt es sich um die Räumlichkeiten der Sparkasse in Schwarzach am Main. Im EG befindet sich die Mieteinheit mit ca. 150 m², die Raumaufteilung kann flexibel gestaltet werden. Akt...
Bürofläche zur Miete provisionsfrei 3.950 € 690 m² Bürofläche Industriestr. 6b Stadtschwarzach Schwarzach am Main 97359
3.950 €
Nettomiete zzgl. Nebenkosten
Bürofläche zur Miete · provisionsfrei
690 m² Bürofläche
Industriestr. 6b, Stadtschwarzach, Schwarzach am Main (97359)
Die Räumlichkeiten sind hochwertig ausgestattet und bieten neben einer Verkaufs- oder Produktionsfläche zusätzliche Räume mit Aufenthaltsbereich, Toilettenanlagen, etc. Die Räumlichkeiten wurden komp...
Herr Thomas Ritscher
Bürofläche zur Miete 9,22 € 10 Zimmer 640 m² Bürofläche Rottendorf 97228
9,22 €/m²
Bürofläche zur Miete
10 Zimmer
·
640 m² Bürofläche
Rottendorf (97228)
Diese vielseitig nutzbare Gewerbeeinheit im Erdgeschoss mit einer Gesamtfläche von ca. 640 m² überzeugt durch moderne Ausstattung und hohe Flexibilität - ideal für eine Vielzahl von Branchen wie Bera...
von privat
Büro zur Miete provisionsfrei 2.800 € 1 Zimmer 400 m² Bürofläche Gewerbering-Nord 4 Stadtschwarzach Schwarzach am Main 97359
2.800 €
Nettomiete
Büro zur Miete · provisionsfrei
1 Zimmer
·
400 m² Bürofläche
Gewerbering-Nord 4, Stadtschwarzach, Schwarzach am Main (97359)
Vermiete Gewerbehalle, mit Toiletten und Teeküche. Ab Sofort. Rolltor , Eingang, Betonboden, Heizung Gas
Büro zur Miete 3.700 € 380 m² Bürofläche Lengfeld Würzburg 97076
3.700 €
Nettomiete zzgl. Nebenkosten
Büro zur Miete
380 m² Bürofläche
Lengfeld, Würzburg (97076)
ENERGIEAUSWEIS - erstellt am: 27.10.2023 - gültig bis: 26.10.2033 - Art des Energieausweises: nach Verbrauch - Verbrauchskennwert für Strom: ca. 34,4 kWh/(m²a) - Verbrauchskennwert für Heizung: ca. 6...
Büro zur Miete 2.250 € Lengfeld Würzburg 97076
2.250 €
Nettomiete zzgl. Nebenkosten
Büro zur Miete
 
Lengfeld, Würzburg (97076)
ENERGIEAUSWEIS - erstellt am: 27.10.2023 - gültig bis: 26.10.2033 - Art des Energieausweises: nach Verbrauch - Verbrauchskennwert für Strom: ca. 34,4 kWh/(m²a) - Verbrauchskennwert für Heizung: ca. 6...
Büro zur Miete 3.700 € 380 m² Bürofläche Lengfeld Würzburg 97076
3.700 €
Nettomiete zzgl. Nebenkosten
Büro zur Miete
380 m² Bürofläche
Lengfeld, Würzburg (97076)
ENERGIEAUSWEIS - erstellt am: 27.10.2023 - gültig bis: 26.10.2033 - Art des Energieausweises: nach Verbrauch - Verbrauchskennwert für Strom: ca. 34,4 kWh/(m²a) - Verbrauchskennwert für Heizung: ca. 6...
Bürofläche zur Miete 7 € 330 m² Bürofläche Lengfeld Würzburg / Lengfeld 97076
7 €/m²
Bürofläche zur Miete
330 m² Bürofläche
Lengfeld, Würzburg / Lengfeld (97076)
Zur Vermietung steht eine attraktive Gewerbeimmobilie im 2. Obergeschoss eines Bürohauses mit insgesamt drei Einheiten. Die ca. 330 m² große Bürofläche befindet sich in einem gepflegten Gewerbegebiet...
Bürogebäude zur Miete 1.290 € 4 Zimmer 140 m² Bürofläche Versbacher Straße 178 Versbach Würzburg 97078
1.290 €
Nettomiete
Bürogebäude zur Miete
4 Zimmer
·
140 m² Bürofläche
Versbacher Straße 178, Versbach, Würzburg (97078)
Inmitten einer hoch frequentierten Straße liegt dieses Wohn- und Geschäftsgebäude aus dem Baujahr 1982. Das dreistöckige Gebäude mit Satteldach verfügt über eine zentrale Heizung und ist barrierefrei...
Büro zur Miete 7.400 € 760 m² Bürofläche Lengfeld Würzburg 97076
7.400 €
Nettomiete zzgl. Nebenkosten
Büro zur Miete
760 m² Bürofläche
Lengfeld, Würzburg (97076)
ENERGIEAUSWEIS - erstellt am: 27.10.2023 - gültig bis: 26.10.2033 - Art des Energieausweises: nach Verbrauch - Verbrauchskennwert für Strom: ca. 34,4 kWh/(m²a) - Verbrauchskennwert für Heizung: ca. 6...
FW Immobilien Service Günther Weisensel
Bürofläche zur Miete 6,50 € 160 m² Bürofläche Werneck 97440
6,50 €
Nettomiete zzgl. Nebenkosten
Bürofläche zur Miete
160 m² Bürofläche
Werneck (97440)
Es handelt sich um eine Gewerbefläche im Halbuntergeschoss eines Geschäftshauses, welches ca. 1996 erbaut wurde. Die Nutzfläche beträgt Ca. 160 m². Die zu vermietende Fläche besteht aus 1 Ladenfläche...
Nötzold Immobilien               (Ihr Immobilienmakler für Würzburg und Umgebung)
Büro zur Miete provisionsfrei 6.880 € 6 Zimmer 382 m² Bürofläche John Skilton Str. 22 Frauenland Würzburg 97074
6.880 €
Nettomiete
Büro zur Miete · provisionsfrei
6 Zimmer
·
382 m² Bürofläche
John Skilton Str. 22, Frauenland, Würzburg (97074)
Objektbeschreibung Zur Vermietung steht eine Büroeinheit im Erdgeschoss. Die Einheit verfügt über einen großzügigen Empfangs- und Wartebereich, fünf bis neun Büros mit ca. 15 bis 25 Arbeitsplätzen, e...
Nötzold Immobilien               (Ihr Immobilienmakler für Würzburg und Umgebung)
Büro zur Miete provisionsfrei 2.465 € 5 Zimmer 155 m² Bürofläche John Skilton Str. 22 Frauenland Würzburg 97074
2.465 €
Nettomiete
Büro zur Miete · provisionsfrei
5 Zimmer
·
155 m² Bürofläche
John Skilton Str. 22, Frauenland, Würzburg (97074)
Objektbeschreibung Zur Vermietung steht eine Büroeinheit im 1. Obergeschoss (Aufzug vorhanden). Die Einheit verfügt über vier Büros, einen Besprechungsraum, Küche, Damen und Herren WC und ein EDV-Rau...
Bürogebäude zur Miete provisionsfrei 2.797 m² Bürofläche Kitzingen 97318
Mietkosten auf Anfrage
Bürogebäude zur Miete · provisionsfrei
2.797 m² Bürofläche
Kitzingen (97318)
Objektbeschreibung In einem repräsentativen Gebäude aus der Kaiserzeit stehen attraktive Büro- und Verwaltungsflächen zur Vermietung. Zuletzt wurde das Objekt durch eine Schule für Erwachsenbildung g...
Büro zur Miete 28 Zimmer 800 m² Bürofläche Kitzingen 97318
Mietkosten auf Anfrage
Büro zur Miete
28 Zimmer
·
800 m² Bürofläche
Kitzingen (97318)
Nutzen Sie diese Chance und sichern Sie sich eine attraktive Bürofläche im Erdgeschoss mit ca. 394,82 m². Die Fläche überzeugt durch ihre flexible Aufteilung in mehrere Büros unterschiedlicher Größe...
Wohn- und Geschäftshaus zur Miete 9 € 4 Zimmer 125 m² Bürofläche Frauenland Würzburg 97074
9 €/m²
Wohn- und Geschäftshaus zur Miete
4 Zimmer
·
125 m² Bürofläche
Frauenland, Würzburg (97074)
Zur Vermietung steht eine attraktive Gewerbeeinheit mit ca. 125 m² Nutzfläche im Dachgeschoss eines gepflegten Gebäudes im beliebten Würzburger Stadtteil Frauenland (Hans-Löffler-Str.). Die Einheit e...
Bürogebäude zur Miete provisionsfrei 337 m² Bürofläche Kitzingen 97318
Mietkosten auf Anfrage
Bürogebäude zur Miete · provisionsfrei
337 m² Bürofläche
Kitzingen (97318)
Direkt am Haupteingang des conneKT Technologieparks befindet sich dieses für Büro- oder Praxisnutzung besonders geeignete Gebäude. Im Technologiepark sind Unternehmen verschiedenster Branchen und Grö...
Büro zur Miete 10 Zimmer 395 m² Bürofläche Kitzingen 97318
Mietkosten auf Anfrage
Büro zur Miete
10 Zimmer
·
395 m² Bürofläche
Kitzingen (97318)
Nutzen Sie diese Chance und sichern Sie sich eine attraktive Bürofläche im Erdgeschoss mit ca. 394,82 m². Die Fläche überzeugt durch ihre flexible Aufteilung in mehrere Büros unterschiedlicher Größe...
Bürofläche zur Miete 8 € 6 Zimmer 187,5 m² Bürofläche Grombühl Würzburg 97070
8 €/m²
Bürofläche zur Miete
6 Zimmer
·
187,5 m² Bürofläche
Grombühl, Würzburg (97070)
Objektbeschreibung Großzügige Büroeinheit - Bürohaus mit zwei Gewerbeeinheiten - die Einheit befindet sich im Erdgeschoss mit sep. Eingang - 6 Büroräume und T-Küche - 5 PKW-Stellplätze inklusive Raum...
Wie zufrieden bist du mit dieser Seite (nicht mit den Immobilien selbst)?
Markttrends
Immobilienpreis pro m²
Mai 2026
Apartment building illustration
Wohnung
8 €/m²
Niedrigster Preis
7 €/m²
Höchster Preis
10 €/m²
House illustration
Haus
9 €/m²
Niedrigster Preis
7 €/m²
Höchster Preis
10 €/m²
Preisentwicklung
Entdecke die Preisentwicklungen vor Ort und auf dem größeren Markt in den letzten 5 Jahren.
1 Monat
+1.3%
6 Monate
+2.4%
1 Jahr
+4.9%
5 Jahre
-
Prosselsheim
Bayern
Auf den Markt reinzoomenZugang zu detaillierten Immobilienpreisen, bis hin zur genauen Adresse.