Version: 8.26.0Navigation überspringen

1 Lager mieten in München Altstadt-Lehel

Privat vom Eigentümer
Laden zur Miete provisionsfrei 7.800 € 75 m² Verkaufsfläche Zweibrückenstrasse 3 Altstadt-Lehel München 80331
7.800 €
Nettomiete zzgl. Nebenkosten
Laden zur Miete · provisionsfrei
75 m² Verkaufsfläche
Zweibrückenstrasse 3, Altstadt-Lehel, München (80331)
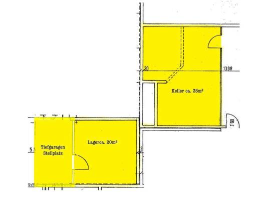
Zur Vermietung stehen hier zwei Flächen ohne Ablöse und ohne Maklergebühren an der gleichen Adresse: 1: Grün eingezeichnete Fläche mit ca. 76m2 plus ca. 26m2 Lagerfläche in zwei Kellerabteilen für €7...
Immowelt logo
Weitere Ergebnisse in der Nähe
Entdecke weitere Ergebnisse in der Umgebung von Altstadt-Lehel
Privat von Ernst Christian Neumann
Laden zur Miete provisionsfrei 2.550 € 64 m² Verkaufsfläche Steinstraße 54 Au-Haidhausen München 81667
Neu
2.550 €
Nettomiete zzgl. Nebenkosten
Laden zur Miete · provisionsfrei
64 m² Verkaufsfläche
Steinstraße 54, Au-Haidhausen, München (81667)
FLÄCHEN UND PREISE (zzgl. 19% MwSt.): ca. 64 m² Gewerbefläche: KM €2.550 + NK €290 ca. 20 m² Außenbereich: KM ca. €200 inkl. NK ca. 20 m² Lagerraum im 1.UG: KM €250 inkl. NK ca. 35 m² Kellerraum im 1...
Laden zur Miete provisionsfrei Theresienstraße 35a Maxvorstadt München 80333
Mietkosten auf Anfrage
Laden zur Miete · provisionsfrei
 
Theresienstraße 35a, Maxvorstadt, München (80333)
Genaue Beschreibung der Objektart: Ladenfläche Weitere Details zum Energieausweis: Art des Ausweises: Energiepass wird spätestens bei Besichtigung vorgelegt. Energiedaten laut Energieausweis nach § 8...
Laden zur Miete 3.501 m² Verkaufsfläche teilbar ab 1.301 m² Ludwigsvorstadt-Isarvorstadt München 80335
Mietkosten auf Anfrage
Laden zur Miete
3.501 m² Verkaufsfläche
·
teilbar ab 1.301 m²
Ludwigsvorstadt-Isarvorstadt, München (80335)
Retailflächen im EG und 1.OG Das Gebäude wurde 2022 umfangreich revitalisiert und hochwertig ausgestattet. Einige Gebäudehighlights: - Ansprechendes Architekturkonzept - Attraktive Zugangslobby, 2 Au...
Herr Michael Hren
Laden zur Miete 29,53 € 38 m² Verkaufsfläche Schwabing-Freimann München 80939
29,53 €/m²
Laden zur Miete
38 m² Verkaufsfläche
Schwabing-Freimann, München (80939)
Die angebotene Gewerbefläche verfügt über eine Gesamtfläche von ca. 49,10 m² und überzeugt durch eine durchdachte Aufteilung sowie eine angenehme, einladende Atmosphäre. Die Einheit erstreckt sich üb...
Laden zur Miete 22 € 583 m² Verkaufsfläche teilbar ab 450 m² Schwabing-Freimann München 80807
22 €/m²
Laden zur Miete
583 m² Verkaufsfläche
·
teilbar ab 450 m²
Schwabing-Freimann, München (80807)
Solitär stehendes Bürogebäude mit klarer Betonwerksteinfassade. - Repräsentatives Foyer - Hochwertiges Treppenhaus - Große Fensterfronten Im EG steht eine Gewerbefläche mit ca. 582 m², Raumhöhe ca. 3...
Laden zur Miete provisionsfrei 3.094 € 61,1 m² Verkaufsfläche Destouchesstraße 37 Schwabing-West München 80803
3.094 €
Nettomiete zzgl. Nebenkosten
Laden zur Miete · provisionsfrei
61,1 m² Verkaufsfläche
Destouchesstraße 37, Schwabing-West, München (80803)
Das zu vermietende Objekt umfasst eine Ladenfläche im Erdgeschoss sowie eine Lagerfläche im Untergeschoss. Die Einheiten stehen ab August zur Verfügung.
Immobilien Sobe GmbH
Laden zur Miete 1.865 € 74,2 m² Verkaufsfläche Schwabing-West München 80801
1.865 €
Nettomiete
Laden zur Miete
74,2 m² Verkaufsfläche
Schwabing-West, München (80801)
Der Laden befindet sich im EG eines Mehrfamilienhauses. Der Laden ist renoviert. Heizung: Zentralheizung WC, Teeküche, Parkettboden Kaltmiete EUR 1.550,00 + Heizkostenvorauszahlung EUR 80,00 + Betrie...
Laden zur Miete provisionsfrei 1.612 € 2 Zimmer 50 m² Verkaufsfläche Schwabing-West München 80798
1.612 €
Nettomiete zzgl. Nebenkosten
Laden zur Miete · provisionsfrei
2 Zimmer
·
50 m² Verkaufsfläche
Schwabing-West, München (80798)
Dieses moderne Ladengeschäft befindet sich in guter Lauflage in Schwabing. Geboten werden Ihnen ein ein großer Verkaufsraum mit einer breiten Fensterfront, ein Büro, ein WC mit Dusche sowie ein Lager...
29 €/m²
Laden zur Miete - Erstbezug · provisionsfrei
1 Zimmer
·
2.800 m² Verkaufsfläche
·
teilbar von 300 m² bis 2.300 m²
Bogenhausen, München (81929)
Auch als Showroom gienet
Laden zur Miete 29 € 1.700 m² Verkaufsfläche teilbar ab 363 m² Ramersdorf-Perlach München 81541
29 €/m²
Laden zur Miete
1.700 m² Verkaufsfläche
·
teilbar ab 363 m²
Ramersdorf-Perlach, München (81541)
Showroom oder Einzelhandelsflächen gesucht? Die Raumhöhe im EG beträgt ca. 4.90 m! Freie EG Fläche ca. 1700 m² Haus Nr 28 ein weiterer Baustein zur Komplettierung des Campus mit öffentlich zugänglich...
Laden zur Miete 25 € 794 m² Verkaufsfläche Schwanthalerhöhe München 80339
25 €/m²
Laden zur Miete
794 m² Verkaufsfläche
Schwanthalerhöhe, München (80339)
An den Brücken ein hochmodernes Ensemble aus dem Jahr 2010. Hochwertig und ökologisch, licht und hell. Großzügig verglaste Fassaden. Einsatz schonender Technologien u.a. Geothermie, Lüftungstechnik m...
Laden zur Miete 28 € 896 m² Verkaufsfläche teilbar ab 500 m² Neuhausen-Nymphenburg München 80636
28 €/m²
Laden zur Miete
896 m² Verkaufsfläche
·
teilbar ab 500 m²
Neuhausen-Nymphenburg, München (80636)
Ein städtebaulich prägendes Element! Teilweise siebengeschossig, markant gebogene Fassade und am Kreuzpunkt der Blick auf die Rotunde, dem zentralen verglasten Rundbau. umfangreiches Refubishment erf...
Mietkosten auf Anfrage
Laden zur Miete · provisionsfrei
385 m² Verkaufsfläche
Sendling-Westpark, München (81373)
Diese attraktive Handelsfläche befindet sich im belebten Stadtteil Sendling-Westpark in München. In der Am Westpark gelegen, wurde die Immobilie modernisiert und bietet eine perfekte Gelegenheit für ...
Laden zur Miete 1.100 € 25 m² Verkaufsfläche Moosach München 80992
Neu
1.100 €
Nettomiete
Laden zur Miete
25 m² Verkaufsfläche
Moosach, München (80992)
Diese gut sichtbare Laden-/Verkaufsfläche im Erdgeschoss verfügt über ca. 49 m² und bietet direkten, ebenerdigen Zugang von der Bunzlauer Straße 20 in 80992 München-Moosach. Die Fläche wird derzeit a...
Salchow Immobilien
Laden zur Miete 17 € 3 Zimmer 116 m² Verkaufsfläche Limesstrasse 81 Aubing-Lochhausen-Langwied München 81243
Neu
E
17 €/m²
Laden zur Miete
3 Zimmer
·
116 m² Verkaufsfläche
Limesstrasse 81, Aubing-Lochhausen-Langwied, München (81243)
* Hier ist Ihr Standort für Ihren Geschäftserfolg* * Das Geschäft ist mit diesen einzelnen Flächen für sehr viele Berufsarten gut geeignet:* * Büro * Schülerhilfe * Therapie- Praxen * Ausstellungen *...
Salchow Immobilien
Laden zur Miete 17 € 3 Zimmer 116 m² Verkaufsfläche Limesstrasse 81 Aubing-Lochhausen-Langwied München 81243
E
17 €/m²
Laden zur Miete
3 Zimmer
·
116 m² Verkaufsfläche
Limesstrasse 81, Aubing-Lochhausen-Langwied, München (81243)
* Hier ist Ihr Standort für Ihren Geschäftserfolg* * Das Geschäft ist mit diesen einzelnen Flächen für sehr viele Berufsarten gut geeignet:* * Büro * Schülerhilfe * Therapie- Praxen * Ausstellungen *...
Salchow Immobilien
Laden zur Miete 17 € 3 Zimmer 116 m² Verkaufsfläche Limesstrasse 81 Aubing-Lochhausen-Langwied München 81243
E
17 €/m²
Laden zur Miete
3 Zimmer
·
116 m² Verkaufsfläche
Limesstrasse 81, Aubing-Lochhausen-Langwied, München (81243)
* Hier ist Ihr Standort für Ihren Geschäftserfolg* * Das Geschäft ist mit diesen einzelnen Flächen für sehr viele Berufsarten gut geeignet:* * Büro * Schülerhilfe * Therapie- Praxen * Ausstellungen *...
Laden zur Miete 2.100 € 86,8 m² Verkaufsfläche Hohenbrunn 85662
2.100 €
Nettomiete
Laden zur Miete
86,8 m² Verkaufsfläche
Hohenbrunn (85662)
Die Gewerbefläche befindet sich im Erdgeschoss eines gepflegten Wohn- und Geschäftshauses. WC-Anlagen für Mitarbeiter und Kunden sowie verschiedene Lagerräume befinden sich im Untergeschoss, welches ...
Laden zur Miete 1.500 € 160 m² Verkaufsfläche Dachau 85221
Neu
1.500 €
Nettomiete
Laden zur Miete
160 m² Verkaufsfläche
Dachau (85221)
Alle Details und Informationen auf Anfrage ! Tolles Ladengeschäft im Erdgeschoss, barrierefrei Langjähriges, gutgehendes Modgeschäft kann übernommen werden !
Laden zur Miete 2.925 € 4 Zimmer Gauting 82131
Neu
2.925 €
Nettomiete
Laden zur Miete
4 Zimmer
Gauting (82131)
Die perfekte, zeitgemässe Fläche mitten in Gauting! Mit seinen großen Schaufenstern und der Top-Lage bietet es beste Voraussetzungen für Ihren Erfolg. Die guten Parkmöglichkeiten direkt davor sind id...
Laden zur Miete provisionsfrei 3.420 € 377,8 m² Verkaufsfläche Hauptplatz 2 Gauting 82131
3.420 €
Nettomiete zzgl. Nebenkosten
Laden zur Miete · provisionsfrei
377,8 m² Verkaufsfläche
Hauptplatz 2, Gauting (82131)
Die angebotene Gewerbe-Immobilieneinheit befindet sich im Erdgeschoß eines gepflegten Wohn- und Geschäfthauses. Dieses liegt an einer zentralen Straßenkreuzung, im Herzen der Gemeinde. Im Erdgeschoß ...
Laden zur Miete 4.500 € 3 Zimmer Emmering 82275
4.500 €
Nettomiete
Laden zur Miete
3 Zimmer
Emmering (82275)
Dieses großzügige Ladenlokal in Emmering bietet die perfekte Gelegenheit für Einzelhändler, die auf der Suche nach einer hochfrequentierten Lage sind. Mit einer beeindruckenden Verkaufsfläche von übe...
Laden zur Miete 4 Zimmer 127 m² Verkaufsfläche Starnberg 82319
Mietkosten auf Anfrage
Laden zur Miete
4 Zimmer
·
127 m² Verkaufsfläche
Starnberg (82319)
Laden zur Miete provisionsfrei 980 € 4 Zimmer 90 m² Verkaufsfläche Fürstenfeldbruck 82256
980 €
Nettomiete
Laden zur Miete · provisionsfrei
4 Zimmer
·
90 m² Verkaufsfläche
Fürstenfeldbruck (82256)
Die angebotene Gewerbeeinheit befindet sich in gut sichtbarer Lage in der Münchner Straße in Fürstenfeldbruck und erstreckt sich über das Erdgeschoss sowie das 1. Untergeschoss eines gepflegten Wohn-...
Laden zur Miete 1.500 € 1 Zimmer Fürstenfeldbruck 82256
Neu
1.500 €
Nettomiete
Laden zur Miete
1 Zimmer
Fürstenfeldbruck (82256)
In dem Wohn- und Geschäftshaus in bester Lage direkt am Viehmarktplatz finden Sie diese geräumige Gewerbeeinheit mit großer Schaufensterfläche und eigenem Souterrain-Bereich. Viele Gestaltungsmöglich...
Lauffer Immobilien
Laden zur Miete 980 € 1 Zimmer 74 m² Verkaufsfläche Altstadt Farchet Wolfratshausen 82515
Neu
980 €
Nettomiete
Laden zur Miete
1 Zimmer
·
74 m² Verkaufsfläche
Altstadt, Farchet, Wolfratshausen (82515)
Laden zur Miete 2.400 € 198 m² Verkaufsfläche Ebersberg 85560
Neu
2.400 €
Nettomiete
Laden zur Miete
198 m² Verkaufsfläche
Ebersberg (85560)
Willkommen in zentraler Stadtlage von Ebersberg: In der Eberhardstraße erwartet Sie eine vielseitig nutzbare Einzelhandels- und Bürofläche im Erdgeschoss in stark frequentierter, gut sichtbarer Gesch...
Wie zufrieden bist du mit dieser Seite (nicht mit den Immobilien selbst)?
Markttrends
Immobilienpreis pro m²
Mai 2026
Apartment building illustration
Wohnung
21 €/m²
Niedrigster Preis
9 €/m²
Höchster Preis
41 €/m²
House illustration
Haus
18 €/m²
Niedrigster Preis
9 €/m²
Höchster Preis
28 €/m²
Preisentwicklung
Entdecke die Preisentwicklungen vor Ort und auf dem größeren Markt in den letzten 5 Jahren.
1 Monat
+0.4%
6 Monate
+2.3%
1 Jahr
+2.4%
5 Jahre
-
München
Bayern
Auf den Markt reinzoomenZugang zu detaillierten Immobilienpreisen, bis hin zur genauen Adresse.