Version: 8.19.5
Navigation überspringen
Suchen
Neubauprojekte
Gewerbe
Anbieten
Finanzieren
Umziehen
Immobilienpreise
Inserieren ab 0€
immowelt Startseite
Suchen
Mieten & Kaufen
Wohnung mieten
Haus kaufen
Wohnung kaufen
Gewerbeimmobilien
Auslandsimmobilien
Grundstück kaufen
WGs
Renditeobjekte
Zwangsversteigerung
Bauen
Hauskataloge
Musterhäuser
Musterhausparks
Hausanbieter
Fertighäuser
Ratgeber & Leistungen
Mein Profil
Immobilien-Ratgeber
SCHUFA-Auskunft bestellen
Immobilienpreise
Price Map
Hilfe und Beratung
SCHUFA-Auskunft bestellen
Jetzt anfordern
Neubauprojekte
Gewerbe
Gewerbe
Gewerbeimmobilien suchen
Büro und Praxis
Läden und Einzelhandel
Landwirtschaft
Lagerhalle
Gastgewerbe und Hotel
Anbieten
Für private Anbieter
Eigentümer-Services
Inserieren ab 0€
Kostenlos vermieten
Wohnung vermieten
Haus verkaufen
Immobilienbewertung
Makler finden
Für Immobilienprofis
Leistungen für Profis
Partner werden
Anzeige inserieren
Neu
Weiterbildungsangebot
Tipps für Makler
Ratgeber & Leistungen
Energieausweis erstellen
Immobilien-Ratgeber
Nutzungsdauer-Gutachten
Finanzieren
Finanzierungsangebote
Angebote einholen
Finanzierung berechnen
Finanzierungsrechner
Budgetrechner
Mieten-Kaufen-Rechner
Ratgeber & Service
Baufinanzierung-Ratgeber
Eigenkapital
Anschlussfinanzierung
Umziehen
Umzugskosten
Umzugskosten berechnen
Ratgeber & Service
Umzugs-Tipps
Umzug Checkliste
Tipps zu Umzugskartons
Mietvertrag kündigen
Umzugsangebote
Finde Umzugsunternehmen
Umzugspartner
Immobilienpreise
Preisstatistik
Immobilienpreise
Ratgeber & Service
Immobilie bewerten
Inserieren ab 0€
0 Wohnungen kaufen in Essen Heidhausen
Aktuell keine passenden Ergebnisse zu deinen Suchkriterien.
Speicher deine Suche als Suchauftrag, um weitere Ergebnisse zu erhalten.
Gesponsert
Frau Shary Veldhoen
1 / 15
B
619.000 €
5.116 €/m²
Wohnung zum Kauf
4 Zimmer
·
121 m²
·
3. Geschoss
·
frei ab 01.06.2026
Kettwig, Essen / Kettwig (45219)
Ruhrblick, Sonne, Freiheit - Wohnen im Herzen von Kettwig! Diese außergewöhnliche Eigentumswohnung verbindet moderne Architektur mit einem besonderen Wohngefühl in begehrter Ruhrnähe in Essen-Kettwig...
Gesponsert
Herr Nikola Zaric
1 / 12
E
199.000 €
2.095 €/m²
Wohnung zum Kauf
4 Zimmer
·
95 m²
Mitte, Heiligenhaus (42579)
Diese charmante Eigentumswohnung mit einer Wohnfläche von ca. 95 m² vereint Behaglichkeit, Struktur und ein harmonisches Wohngefühl. Sie befindet sich im 3. Obergeschoss eines Mehrfamilienhauses aus ...
Weitere Ergebnisse in der Nähe
Entdecke weitere Ergebnisse in der Umgebung von Heidhausen, 45239
Frau Shary Veldhoen
1 / 13
835.000 €
5.978 €/m²
Wohnung zum Kauf - Neubau
4 Zimmer
·
139,7 m²
·
3. Geschoss
Werden, Essen (45239)
Wohneinheit 11 ist die einzige Penthousewohnung des gesamten Neubauprojekts "Dahler Höhe 20" und allein deshalb schon ein besonderes Highlight. Sie bietet auf ca. 140 m² eine außergewöhnliche Kombina...
Frau Shary Veldhoen
1 / 25
A+
839.000 €
5.392 €/m²
Wohnung zum Kauf - Neubau
5 Zimmer
·
155,6 m²
·
2. Geschoss
Werden, Essen (45239)
Willkommen in Ihrem neuem Zuhause! Wohneinheit 8 ist das Highlight des Neubauprojekts "Dahler Höhe 20" und bietet auf ca. 155 m² Wohnfläche eine einzigartige Kombination aus großzügigem Platzangebot,...
Frau Shary Veldhoen
1 / 10
A+
389.000 €
5.416 €/m²
Wohnung zum Kauf - Neubau
2 Zimmer
·
71,8 m²
·
1. Geschoss
Werden, Essen (45239)
Entdecken Sie in Wohneinheit 5 ein Zuhause, das durch zeitgemäßes Design, hohen Komfort und eine ruhige Lage überzeugt. Diese durchdachte Wohnung im 1.OG bietet auf ca. 72 m² ein stilvolles Raumkonze...
1 / 3
A+
379.000 €
5.588 €/m²
Wohnung zum Kauf - Neubau
2 Zimmer
·
67,8 m²
·
2. Geschoss
Werden, Essen (45239)
Willkommen in Wohneinheit 9, einer charmanten 2-Raum-Wohnung, die mit ca. 68 m² Wohnfläche modernes Wohnen in einem stilvollen und durchdachten Ambiente bietet. Diese Wohnung ist ideal für Singles od...
Frau Shary Veldhoen
1 / 7
A+
469.000 €
4.807 €/m²
Wohnung zum Kauf - Neubau
3 Zimmer
·
97,6 m²
·
EG
Werden, Essen (45239)
Wohneinheit 1 in der "Dahler Höhe 20" in Essen Werden vereint modernes Design, Komfort und eine hochwertige Ausstattung zu einem Zuhause, das keine Wünsche offenlässt. Diese großzügige 3-Raum-Erdgesc...
Frau Shary Veldhoen
1 / 6
A+
525.000 €
5.321 €/m²
Wohnung zum Kauf - Neubau
3 Zimmer
·
98,7 m²
·
1. Geschoss
Werden, Essen (45239)
Willkommen in der Wohneinheit 4 unseres besonderen Neubauprojektes "Dahler Höhe 20", es erwartet Sie eine großzügige Wohnung im 1. Obergeschoss, die modernes Design mit durchdachtem Komfort verbindet...
1 / 24
E
634.000 €
2.963 €/m²
Wohnung zum Kauf
6 Zimmer
·
214 m²
Werden, Essen (45239)
Man könnte so viel schreiben über diesen einmaligen Wohnplatz voller Charme, Atmosphäre, großzügigem Volumen und viel Repräsentanz, aber ohne Verlust eines warmen, geborgenen Wohngefühls incl. Kaminf...
1 / 6
Neu
190.000 €
3.800 €/m²
Studio zum Kauf · provisionsfrei
1,5 Zimmer
·
50 m²
·
frei ab sofort
Kettwig, Essen (45219)
Wir sind Deutschlands führender Berater und Vermittler im Bereich Pflegeimmobilien als Kapitalanlage und bieten privaten Investoren somit die sicherste und passivste Anlageform. Ihre Vorteile auf ein...
Frau Leonie Laarmann
1 / 22
C
449.000 €
4.276 €/m²
Wohnung zum Kauf
3 Zimmer
·
105 m²
Fischlaken, Essen (45239)
Diese großzügige Erdgeschosswohnung in Hanglage befindet sich in einem gepflegten Mehrfamilienhaus, das im Jahr 2000 in massiver Bauweise errichtet wurde. Offiziell im Untergeschoss gelegen, präsenti...
1 / 1
189.000 €
Wohnung zum Kauf · provisionsfrei
4 Zimmer
·
95 m²
Mitte, Heiligenhaus (42579)
BITTE BEACHTEN SIE, DASS SIE BEI IHRER ANFRAGE EINE TELEFONNUMMER ANGEBEN. Eigentumswohnung, Baujahr: ca. 1969, Aufteilungsplan: 2, Miteigentumsanteil: 50%, 1. Etage, Wohnfläche: 95m², Zimmer: 4, Küc...
1 / 18
A+
740.000 €
4.933 €/m²
Wohnung zum Kauf
4 Zimmer
·
150 m²
Werden, Essen (45239)
Diese moderne, barrierefreie 4-Zimmer-Wohnung aus dem Baujahr 2022 verbindet hochwertige Ausstattung mit durchdachtem Grundriss und bester Energieeffizienz. Im vorderen Bereich der Wohnung befinden s...
1 / 20
444.900 €
4.718 €/m²
Wohnung zum Kauf - Neubau · provisionsfrei
2 Zimmer
·
99,6 m²
·
EG
Neubauprojekt
Von-Behring-Straße 99a, Mitte, Velbert (42549)
Lernen Sie Velbert von seiner schönsten Seite kennen! Mit dem Neubauprojekt "Sonnenhang Velbert - Wohnen mit schöner Aussicht" der Vastbau GmbH entstehen in einer gepflegten und ruhigen Nachbarschaft...
1 / 21
424.900 €
5.320 €/m²
Terrassenwohnung zum Kauf · provisionsfrei
3 Zimmer
·
86,4 m²
Von-Behring-Straße 99a, Mitte, Velbert (42549)
Lernen Sie Velbert von seiner schönsten Seite kennen! Mit dem Neubauprojekt "Sonnenhang Velbert - Wohnen mit schöner Aussicht" der Vastbau GmbH entstehen in einer gepflegten und ruhigen Nachbarschaft...
1 / 21
494.900 €
4.898 €/m²
Wohnung zum Kauf - Neubau · provisionsfrei
3 Zimmer
·
106,1 m²
·
1. Geschoss
Neubauprojekt
Von-Behring-Straße 99a, Mitte, Velbert (42549)
Lernen Sie Velbert von seiner schönsten Seite kennen! Mit dem Neubauprojekt "Sonnenhang Velbert - Wohnen mit schöner Aussicht" der Vastbau GmbH entstehen in einer gepflegten und ruhigen Nachbarschaft...
1 / 22
474.900 €
4.679 €/m²
Wohnung zum Kauf - Neubau · provisionsfrei
3 Zimmer
·
106,9 m²
·
1. Geschoss
Neubauprojekt
Von-Behring-Straße 99a, Mitte, Velbert (42549)
Lernen Sie Velbert von seiner schönsten Seite kennen! Mit dem Neubauprojekt "Sonnenhang Velbert - Wohnen mit schöner Aussicht" der Vastbau GmbH entstehen in einer gepflegten und ruhigen Nachbarschaft...
Frau Montserrat Cernuda
1 / 20
399.000 €
2.850 €/m²
Wohnung zum Kauf
4 Zimmer
·
140 m²
Fischlaken, Essen (45239)
Hier werden Träume wahr, diese gut geschnittene Galerie-Wohnung, wird Sie durch die vielen positiven Aspekte überzeugen. Sie erwerben hier ein in Kürze energetisch saniertes Objekt und eine Großzügig...
1 / 13
E
385.000 €
3.459 €/m²
Wohnung zum Kauf
3 Zimmer
·
111,3 m²
Fischlaken, Essen (45239)
Willkommen in einer Wohnung, die mehr ist als nur ein Ort zum Wohnen. Sie ist ein Zuhause - eingebettet in die ruhige, grüne Umgebung von Fischlaken, einem der begehrtesten Stadtteile Essens. Hier ve...
Dustin Gerban
1 / 13
D
439.000 €
4.942 €/m²
Wohnung zum Kauf
3,5 Zimmer
·
88,8 m²
Werden, Essen (45239)
Diese von uns exklusiv angebotene Wohnung befindet sich im Erd- und Untergeschoss eines ca. im Jahre 1980 in massiver Bauweise erstellten Mehrfamilienhauses mit insgesamt nur 6 Parteien im Haus und 1...
1 / 12
E
134.000 €
2.030 €/m²
Wohnung zum Kauf
3 Zimmer
·
66 m²
·
EG
Birth, Velbert (42549)
Die hier angebotene Immobilie ist eine Wohnung mit einladendem Flair. Zu dem Apartment zählen dreieinhalb hübsche Zimmer. Weiterhin gibt es einen Garten, in dem es sich wunderbar vom Alltag erholen l...
1 / 2
817.860 €
6.455 €/m²
Penthouse zum Kauf - Erstbezug · provisionsfrei
4 Zimmer
·
126,7 m²
·
3. Geschoss
·
frei ab 30.09.2027
Bredeney, Essen (45133)
Ein echtes Highlight des Projekts ist dieses außergewöhnliche Staffelgeschoss mit Penthouse Charakter und ca. 126,7 m² Wohnfläche und einer ca. 20 m² großen Dachterrasse. Der ca. 44,2 m² große Wohn- ...
Niederlassung Essen
1 / 13
1.250.000 €
9.198 €/m²
Penthouse zum Kauf - Erstbezug · provisionsfrei
4 Zimmer
·
135,9 m²
·
2. Geschoss
Essen / Bredeney (45133)
Auf dem Gelände, wo jetzt der Bredeney Park mit 47 Eigentumswohnungen entsteht, wohnte ab 1955 der hochgeschätzte Berthold Beitz mit seiner Familie. Die zwischen ca. 103-233 Quadratmeter großen Wohnu...
1 / 1
145.000 €
Wohnung zum Kauf · provisionsfrei
Mitte, Velbert, Velbert (42551)
Laut Wertgutachten handelt es sich um eine Wohnung im 2. Obergeschoss rechts eines Mehrfamilienhauses, Baujahr 1966. Die Wohnfläche beträgt 70,92 qm. Es handelt sich um eine Drei-Zimmer-Wohnung mit B...
Niederlassung Essen
1 / 12
1.020.000 €
7.010 €/m²
Wohnung zum Kauf - Erstbezug · provisionsfrei
4 Zimmer
·
145,5 m²
·
1. Geschoss
Essen / Bredeney (45133)
Auf dem Gelände, wo jetzt der Bredeney Park mit 47 Eigentumswohnungen entsteht, wohnte ab 1955 der hochgeschätzte Berthold Beitz mit seiner Familie. Die zwischen ca. 103-233 Quadratmeter großen Wohnu...
Niederlassung Essen
1 / 15
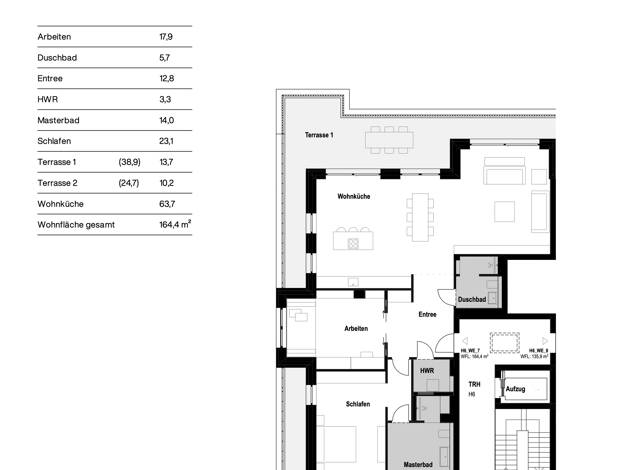
1.510.000 €
9.185 €/m²
Penthouse zum Kauf - Erstbezug · provisionsfrei
3 Zimmer
·
164,4 m²
·
EG
Bredeney, Essen / Bredeney (45133)
Auf dem Gelände, wo jetzt der Bredeney Park mit 47 Eigentumswohnungen entsteht, wohnte ab 1955 der hochgeschätzte Berthold Beitz mit seiner Familie. Die zwischen ca. 103-233 Quadratmeter großen Wohnu...
Niederlassung Essen
1 / 10
1.026.000 €
7.008 €/m²
Wohnung zum Kauf - Erstbezug · provisionsfrei
4 Zimmer
·
146,4 m²
·
1. Geschoss
Essen / Bredeney (45133)
Auf dem Gelände, wo jetzt der Bredeney Park mit 47 Eigentumswohnungen entsteht, wohnte ab 1955 der hochgeschätzte Berthold Beitz mit seiner Familie. Die zwischen ca. 103-233 Quadratmeter großen Wohnu...
Frau Maria Pitronaci
1 / 18
215.500 €
2.502 €/m²
Wohnung zum Kauf · provisionsfrei
4 Zimmer
·
86,1 m²
·
2. Geschoss
Ruhrtalstraße 395, Kettwig, Essen (45219)
Zum Verkauf steht eine großzügige, familienfreundliche 3-Zimmer-Wohnung mit ca. 86 m² Wohnfläche im 2. Obergeschoss einer gepflegten Eigentümergemeinschaft an der Ruhrtalstraße 395, 397, 399, 401 und...
1 / 2
673.335 €
5.855 €/m²
Wohnung zum Kauf - Erstbezug · provisionsfrei
4 Zimmer
·
115 m²
·
1. Geschoss
·
frei ab 30.09.2027
Bredeney, Essen (45133)
Diese großzügige Wohnung im ersten Obergeschoss bietet mit ca. 115 m² ein Wohnkonzept, das Familien und anspruchsvollen Paaren gleichermaßen Raum und Komfort schenkt. Mittelpunkt der Wohnung ist der ...
1 / 8
G
115.000 €
1.917 €/m²
Wohnung zum Kauf
2 Zimmer
·
60 m²
·
frei ab sofort
Mitte, Velbert (42549)
Die Wohnung befindet sich im 3. OG, mit Aufzug und hat eine Wohnfläche von ca. 60 m². Diese sind aufgeteilt in 1 Wohnzimmer, 1 Schlafzimmer, Diele, 1 Wannenbad, 1 Abstellraum und 1 kleiner Balkon Ein...
1 / 1
1.140.000 €
1.900 €/m²
Wohnung zum Kauf
600 m²
Kettwig, Essen (45219)
ETW- Paket im Essener Süden zu verkaufen: - guter Standort - reines Wohngebiet - gewachsene Strukturen - kein sozialer Brennpunkt - Infrastruktur in der Nähe - gute Verkehrsanbindungen - vermietet - ...
Ihr McMakler Team
1 / 8
D
139.000 €
1.931 €/m²
Wohnung zum Kauf
3 Zimmer
·
72,3 m²
·
EG
Mitte, Heiligenhaus (42579)
Objektnr: 1069458 Diese Erdgeschosswohnung auf ca. 72 m² überzeugt mit klarer Raumlogik und frischen, sofort nutzbaren Qualitäten. Der Wohn-Essbereich öffnet sich zum großzügigen, überdachten West-Ba...
Wie zufrieden bist du mit dieser Seite (nicht mit den Immobilien selbst)?
Immobilie
Wohnung zum Kauf in Deutschland
Wohnung zum Kauf in Nordrhein-Westfalen
Wohnung zum Kauf im Landkreis Essen
Wohnung zum Kauf in Essen
Wohnung zum Kauf in Essen Stadtbezirk IX
Wohnung zum Kauf in Essen Heidhausen
Weitere Immobilien findest du hier
Weitere Immobilien findest du hier
Stadtteile im Umkreis
Stadtteile im Umkreis
Wohnungen nach Anzahl der Zimmer
Wohnungen nach Anzahl der Zimmer
Andere
Andere
Empfohlene Suchen
Empfohlene Suchen
Maisonette kaufen in Essen Heidhausen
Wohnung kaufen in Essen Bredeney (68 Immobilien)
Wohnung kaufen in Essen Fischlaken (3 Immobilien)
Wohnung kaufen in Essen Heisingen (7 Immobilien)
Wohnung kaufen in Essen Kettwig (13 Immobilien)
Wohnung kaufen in Essen Kupferdreh (4 Immobilien)
Wohnung kaufen in Essen Schuir (2 Immobilien)
Wohnung kaufen in Essen Stadt Velbert
Wohnung kaufen in Essen Stadtwald (7 Immobilien)
Wohnung kaufen in Essen Werden (9 Immobilien)
Wohnung kaufen in Heiligenhaus Isenbügel
Wohnung kaufen in Velbert Birth (1 Immobilien)
Wohnung kaufen in Velbert Kostenberg
Wohnung kaufen in Velbert Langenhorst
Wohnung kaufen in Velbert Mitte (21 Immobilien)
1-Zimmer-Wohnung kaufen in Essen Heidhausen
3-Zimmer-Wohnung kaufen in Essen Heidhausen
Neubauwohnung kaufen in Essen Heidhausen
Eigentumswohnung als Kapitalanlage kaufen in Essen Heidhausen
Eigentumswohnung als Kapitalanlage kaufen in Essen Heidhausen
Neubauwohnung kaufen in Essen Heidhausen
Immowelt logo