Version: 8.24.1Navigation überspringen

2 Gewerbeimmobilien kaufen in Erlenbach a.Main (63906), Miltenberg

Hotel zum Kauf 265.000 € 14 Zimmer 250 m² Gastrofläche 689 m² Grundstück Streit Erlenbach a.Main 63906
265.000 €
Hotel zum Kauf
14 Zimmer
·
250 m² Gastrofläche
·
689 m² Grundstück
Streit, Erlenbach a.Main (63906)
Das Objekt ist auf Zwei Geschosse verteilt.Ebenerdig kommen Sie in den Fremdenzimmer Bereich.Gastrobereich ist dazwischen verendert, so dass es auch im Utergeschoß weitere Zimmer entstanden sind mit ...
Immowelt logo
Bürofläche zum Kauf als Kapitalanlage geeignet 850.000 € 6 Zimmer 282 m² Erlenbach Erlenbach a. Main 63906
850.000 €
Bürofläche zum Kauf · als Kapitalanlage geeignet
6 Zimmer
·
282 m²
Erlenbach, Erlenbach a. Main (63906)
großzügiger Kunden-Eingangsbereich mit Empfangsbüro, geräumiges und helles Foyer mit Platz für mehrere Beraterstehtische, drei Büros für jeweils 2-3 Mitarbeiter, dazu ein kleiner Besprechungsraum für...
Weitere Ergebnisse in der Nähe
Entdecke weitere Ergebnisse in der Umgebung von Erlenbach a.Main, 63906
Frau Yvonne Orth
Restaurant zum Kauf 590.000 € 430 m² Gastrofläche 815 m² Grundstück Wörth am Main 63939
590.000 € 761 €/m²
Restaurant zum Kauf
430 m² Gastrofläche
·
815 m² Grundstück
Wörth am Main (63939)
" Zentral gelegenes und gut eingeführtes Gewerbeanwesen zu verkaufen." Für Existenzgründer - aktiver Betrieb - Treffpunkt für Jedermann mit viel Zeit in der Nacht geöffnet. Sehr beliebt für Einwohner...
Werkstatt zum Kauf 750.000 € 40 m² Lagerfläche Wörth 63939
750.000 €
Werkstatt zum Kauf
40 m² Lagerfläche
Wörth (63939)
Energieeffiziente High-Tech-Werkstatt trifft auf etablierten Waschpark - eine Kombination, die in dieser Qualität nur selten angeboten wird. Auf einem großzügigen Grundstück von rund 1.273 m² erwarte...
Frau Susanne Lischke
Büro zum Kauf 490.000 € Elsenfeld 63820
D
490.000 €
Büro zum Kauf
 
Elsenfeld (63820)
In zentraler Lage Elsenfelds entstanden 1995 im Erdgeschoss eines überaus gepflegten Mehrfamilienhauses diese hellen und somit sehr freundlichen Räume einer Arztpraxis. Die gepflegte Praxis ist ab so...
Hotel zum Kauf 1.999.900 € 29 Zimmer 2.321 m² Grundstück Trennfurt Klingenberg am Main 63911
1.999.900 €
Hotel zum Kauf
29 Zimmer
·
2.321 m² Grundstück
Trennfurt, Klingenberg am Main (63911)
Willkommen in der charmanten Welt der Gastfreundschaft im historischen Herzen von Klingenberg am Main. Das traditionsreiche Hotel Garni bietet Ihnen die einmalige Gelegenheit, ein Stück Geschichte zu...
ProWohnen-Miteinander leben GmbH
Hotel zum Kauf 37 Zimmer Mönchberg 63933
Preis auf Anfrage
Hotel zum Kauf
37 Zimmer
Mönchberg (63933)
Das Hotel Schmitt in Mönchberg, seit 1972 in Familienbesitz, bietet komfortable Zimmer und eine einladende Atmosphäre im Herzen des bayerischen Spessarts. Gäste genießen regionale Spezialitäten im ha...
ImmoAgrar
Land-/Forstwirtschaft zum Kauf 22.125 € 4.434 m² 4.434 m² Grundstück Dornau Sulzbach am Main 63834
22.125 € 4,99 €/m²
Land-/Forstwirtschaft zum Kauf
4.434 m²
·
4.434 m² Grundstück
Dornau, Sulzbach am Main (63834)
Zum Verkauf stehen in der Gemarkung 63834 Soden (MIL) - 2.140 m² Wiese mit Baumbestand - 1.901 m² Wiese mit Baumbestand - 393 m² Wiese mit Baumbestand _ Bodenarten: lehmiger Sand, Sand Bodenzahlen: 3...
Frau Sabine Schöbernig
Praxis zum Kauf 360.000 € 5 Zimmer 104 m² Bürofläche Sulzbach Sulzbach am Main 63834
360.000 €
Praxis zum Kauf
5 Zimmer
·
104 m² Bürofläche
Sulzbach, Sulzbach am Main (63834)
Diese großzügigen Praxis-/Büroräume in exponierter Lage von Sulzbach am Main stehen ab sofort zum Verkauf. Die Einheit befindet sich im Erdgeschoss eines gepflegten Wohn- und Geschäftshauses, von der...
Halle/Industriefläche zum Kauf 740.000 € 3.200 m² Lagerfläche Sulzbach 63834
740.000 €
Halle/Industriefläche zum Kauf
3.200 m² Lagerfläche
Sulzbach (63834)
Die Hallenflächen verteilen sich auf ca. 3.000 m² in Gewächshäusern und ca. 150 m² Betriebsgebäude Die Wohnfläche verteilt sich auf zwei in sich abgeschlossene Wohnhäuser, die über ein gemeinsames Tr...
Gastronomie/Hotel zum Kauf 595.000 € 1.100 m² Grundstück Reistenhausen Collenberg 97903
595.000 €
Gastronomie/Hotel zum Kauf
1.100 m² Grundstück
Reistenhausen, Collenberg (97903)
Dieses Objekt vereint historischen Charme mit den Annehmlichkeiten des modernen Lebens und bietet eine ideale Umgebung für Familie die Beruf und Wohnen räumlich vereinbaren möchten . Es bietet eine b...
Bauernhof zum Kauf 1.100.000 € 365 m² 60.000 m² Grundstück Pflaumheim Großostheim 63762
Neu
1.100.000 €
Bauernhof zum Kauf
365 m²
·
60.000 m² Grundstück
Pflaumheim, Großostheim (63762)
Reiterhof in traumhafter Alleinlage! Der Hof ist eine ehemalige Staatsdomäne und beeindruckt durch seine rustikale, fast unveränderte Bausubstanz. Arrondiert sind ca. 3,5 ha Eigentum und ca. 2,6 ha P...
Landwirtschaftliche Fläche zum Kauf 24.000 € 5.656 m² 5.656 m² Grundstück Am Dreispitz Reistenhausen Collenberg 97903
24.000 €
Landwirtschaftliche Fläche zum Kauf
5.656 m²
·
5.656 m² Grundstück
Am Dreispitz, Reistenhausen, Collenberg (97903)
Land statt Euro, eine wachsende Geldanlage ! tolle, ebene Ackerfläche in sonniger Höhenlage und sehr gut anfahrbar zu verkaufen. Unweit der letzten Wohnhäuser liegt diese Ackerfläche und wartet auf e...
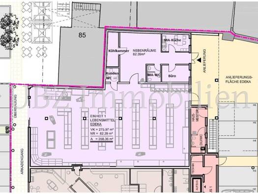
Laden zum Kauf 830.000 € 276 m² Verkaufsfläche Großostheim 63762
830.000 €
Laden zum Kauf
276 m² Verkaufsfläche
Großostheim (63762)
Der Nahversorger wird von der Edeka-Stenger-Gruppe geführt. Mit Edeka wurde ein 15-Jahres-Vertrag geschlossen. Der Dorfladen profitiert insbesondere von der Laufkundschaft der in der näheren Umgebung...
Hotel zum Kauf 2.050.000 € 14 Zimmer 28 Betten 300 m² Gastrofläche Bad König 64732
2.050.000 €
Hotel zum Kauf
14 Zimmer
·
28 Betten
·
300 m² Gastrofläche
Bad König (64732)
Hier zum schnellen Überblick nochmals die markantesten Besonderheiten: - Objektstatus: noch geschlossen - Kategorie: Hotel / Garni / Restaurant - Brauereifrei - Gesamtfläche ca. 1.960 m² - ca. 70 Inn...
Bürogebäude zum Kauf 2.950.000 € 1.550 m² Bürofläche Großostheim 63762
2.950.000 €
Bürogebäude zum Kauf
1.550 m² Bürofläche
Großostheim (63762)
Das moderne Büro- und Verwaltungsgebäude wurde ca. 2015/2016 in Massivbauweise errichtet und präsentiert sich in einem durchgängig neuwertigen Gesamtzustand. Die Trägerwände sind überwiegend aus Stah...
Land-/Forstwirtschaft zum Kauf 3.200 € 830 m² 830 m² Grundstück Collenberg 97903
3.200 €
Land-/Forstwirtschaft zum Kauf
830 m²
·
830 m² Grundstück
Collenberg (97903)
Wald statt Euro, eine wachsende Geldanlage ! Waldfläche mit einem Baumbestand aus Eichen , Buchen , und ein paar Kiefern und sehr gut anfahrbar zu verkaufen. Die Fläche ist nicht verpachtet und kann ...
Produktionshalle zum Kauf als Kapitalanlage geeignet 7.900.000 € 6.050 m² 16.893 m² Grundstück Obernau Aschaffenburg 63743
7.900.000 €
Produktionshalle zum Kauf · als Kapitalanlage geeignet
6.050 m²
·
16.893 m² Grundstück
Obernau, Aschaffenburg (63743)
Zum Verkauf steht dieser Lager / Produktionskomplex mit Büro sowie Sozialflächen als starke Kapitalanlage. Die Liegenschaft befindet sich im Gewerbegebiet Obernau, 5 km südlich von Aschaffenburg und ...
Forstwirtschaft zum Kauf 6.200 € 1.820 m² 1.820 m² Grundstück Collenberg 97903
6.200 €
Forstwirtschaft zum Kauf
1.820 m²
·
1.820 m² Grundstück
Collenberg (97903)
Holz aus dem eigenen Wald, eine wachsende Geldanlage ! Waldfläche mit einem Baumbestand aus Eichen , Buchen , und ein paar Kiefern und anfahrbar zu verkaufen. Die Fläche ist nicht verpachtet und kann...
Land-/Forstwirtschaft zum Kauf 1.500.000 € 200.000 m² Grundstück Miltenberg 63897
1.500.000 € 34,50 €/m²
Land-/Forstwirtschaft zum Kauf
200.000 m² Grundstück
Miltenberg (63897)
Hier haben Sie die einzigartige Möglichkeit Ausgleichsfläche für Ihren Neubau zu erwerben, dadurch bieten sich Ihnen neue Möglichkeiten um in Ihrer aktuellen Umgebung Bauland zu erschließen und Geset...
Herr Martin Anderl
Sparkasse Aschaffenburg Miltenberg i. V. der Sparkassen-Immobilien-Vermittlungs-GmbH
Werkstatt zum Kauf 1.385.000 € 1.060 m² Lagerfläche Ringheim Großostheim 63762
1.385.000 €
Werkstatt zum Kauf
1.060 m² Lagerfläche
Ringheim, Großostheim (63762)
In einem attraktiven, autobahnnahen Gewerbegebiet (Anbindung über die B469 an die A3 und A45) von Großostheim-Ringheim wurde im Jahr 1980/81 ein großzügiges Gewerbeanwesen errichtet, das ursprünglich...
Bürogebäude zum Kauf 1.550.000 € 795 m² Bürofläche Ringheim Großostheim 63762
1.550.000 €
Bürogebäude zum Kauf
795 m² Bürofläche
Ringheim, Großostheim (63762)
Das moderne Bürogebäude wurde ca. 2015/2016 in Massivbauweise errichtet und präsentiert sich in einem durchgängig neuwertigen Gesamtzustand. Die Trägerwände sind aus Stahlbeton und die Zwischenwände ...
Frau Andrea Arnold Immobilienfachwirtin/IHK
Andrea Arnold Immobilien
Praxis zum Kauf 360.000 € 184 m² Bürofläche Schweinheim Aschaffenburg / Schweinheim 63743
360.000 €
Praxis zum Kauf
184 m² Bürofläche
Schweinheim, Aschaffenburg / Schweinheim (63743)
In einem 3-Parteiennhaus befindet sich diese großzügige Fläche im 1. Obergeschoss (ohne Aufzug). Bisher wurde die Fläche als Praxis genutzt und steht nun frei. Die Bilder sind KI-Generiert und zeigen...
Sulzmann Immobilien
Land-/Forstwirtschaft zum Kauf 389.000 € 15.320 m² 2.245 m² Grundstück Ober-Kinzig Bad König 64732
F
389.000 €
Land-/Forstwirtschaft zum Kauf
15.320 m²
·
2.245 m² Grundstück
Ober-Kinzig, Bad König (64732)
das um 1900 errichtete landwirtschaftliche Anwesen ( modernisiert und renoviert) wird zur Zeit als Pferdehof genutzt mit Offen-Stallhaltung. Großes Wohnhaus, Scheune, Nebengebäude, Gewölbekeller und ...
Teich-/Fischwirtschaft zum Kauf provisionsfrei Monbrunn Miltenberg 63897
Preis auf Anfrage
Teich-/Fischwirtschaft zum Kauf · provisionsfrei
 
Monbrunn, Miltenberg (63897)
Im Kundenauftrag der Frau Dr. K. suchen wir ein Anwesen zum Wohnen und für die Pferdehaltung am Hof. Favorisiert ist ein Alleinlage oder mind. einen sehr ruhige Ortslage. Angrenzende Grünflächen sind...
Praxis zum Kauf provisionsfrei 299.000 € 7 Zimmer 128,6 m² Bürofläche Groß-Umstadt 64823
299.000 €
Praxis zum Kauf · provisionsfrei
7 Zimmer
·
128,6 m² Bürofläche
Groß-Umstadt (64823)
In attraktiver Lage von Groß-Umstadt bieten wir Ihnen eine außergewöhnliche Gewerbeeinheit in einem gepflegten Wohn- und Geschäftshaus an, die derzeit als Dentallabor genutzt wird. Das Anwesen steht ...
ELK-IMMOBILIEN GmbH
Restaurant zum Kauf 645.000 € 471 m² Gastrofläche 1.125 m² Grundstück Eichenbühl 63928
645.000 €
Restaurant zum Kauf
471 m² Gastrofläche
·
1.125 m² Grundstück
Eichenbühl (63928)
Erdgeschoss: offene und einladende Gaststätte mit Nebenraum und Kinderspielzimmer, zwei Thekenanlagen, WC-Bereiche, Küche, hochwertige Einrichtung und Ausstattung Obergeschoss: Flur, 2 Zimmer-Wohnung...
Capital5 Immobilien GmbH
Werkstatt zum Kauf 1.950.000 € 689,7 m² Lagerfläche Groß-Umstadt 64823
1.950.000 €
Werkstatt zum Kauf
689,7 m² Lagerfläche
Groß-Umstadt (64823)
Dieses Objekt ist ein Traum für jeden, der Komfort bei der Arbeit schätzt. Die Werkstatt bietet eine hervorragende Gelegenheit für Handwerker und Gewerbetreibende. Mit einer Grundstücksgröße von knap...
Werkstatt zum Kauf 199.000 € Klein-Umstadt Groß-Umstadt / Klein-Umstadt 64823
199.000 €
Werkstatt zum Kauf
 
Klein-Umstadt, Groß-Umstadt / Klein-Umstadt (64823)
In Klein-Umstadt, einem idyllischen Ortsteil der Stadt Groß-Umstadt, präsentiert sich auf einem 598 m² großen Grundstück eine Produktionshalle mit rund 300 m² Nutzfläche. Das Objekt liegt an einer gu...
Bauernhof zum Kauf Groß-Umstadt 64823
Preis auf Anfrage
Bauernhof zum Kauf
 
Groß-Umstadt (64823)
Im Auftrag einer Tierärztin suchen wir in einzigartiger Alleinlage einen Hof für Pferdehaltung. Traumvorstellung ..ein romantisches Mühlenanwesen mit eigenem Bachlauf! Die Vermittlung ist für Verkäuf...
Wie zufrieden bist du mit dieser Seite (nicht mit den Immobilien selbst)?
Markttrends
Immobilienpreis pro m²
März 2026
Apartment building illustration
Wohnung
2.927 €/m²
Niedrigster Preis
1.353 €/m²
Höchster Preis
4.873 €/m²
House illustration
Haus
2.827 €/m²
Niedrigster Preis
1.131 €/m²
Höchster Preis
5.504 €/m²
Preisentwicklung
Entdecke die Preisentwicklungen vor Ort und auf dem größeren Markt in den letzten 5 Jahren.
1 Monat
+0.4%
6 Monate
+3.4%
1 Jahr
+5.3%
5 Jahre
+6.1%
Erlenbach a.Main
Bayern
Auf den Markt reinzoomenZugang zu detaillierten Immobilienpreisen, bis hin zur genauen Adresse.