
Einfamilienhaus Trendline 165 - inkl. Technikanbau von Suckfüll Energiesparhaus
Ab 350.044 €
Bewertungen von Suckfüll Energiesparhaus
3,5
(57)
Wohnfläche
162 m²
Zimmer
8
Ausbaustufe
Schlüsselfertig
Bauweise
Fertighaus
Etagen
2
Energiestandard
Effizienzhaus 40
Dachform
Satteldach
Hausart
Einfamilienhaus
Beschreibung
Das besonders Auffällige dieser Hausidee ist einerseits der ausgelagerte Hauswirtschaftsraum, welcher optimal mit einem Carport kombiniert werden kann. Andererseits gibt es hier den modernen Erkeranbau, der selbstverständlich auch mit einem klassischen Satteldach oder schrägem Pultdach möglich ist. Durch ihn entsteht im Dachgeschoss ein
zusätzliches Zimmer mit Blick in den Garten.
Preise verstehen sich inkl. Bodenplatte und 19 % MwSt. - Mehrpreis für dargestellten Carport mit Einzelfundament = 33.230 €
Merkmale
- Erker
- Gästezimmer
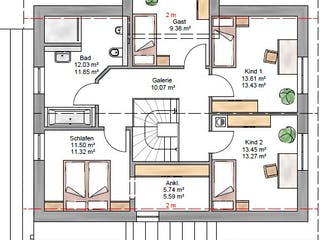
Grundrissfür Trendline 165 - inkl. Technikanbau
Außenmaße
Länge: 8,8 m
Breite: 11,15 m
Grundrisse
Der Grundriss entspricht nicht Ihren Vorstellungen?
Passen Sie den Grundriss an Ihre persönlichen Bedürfnisse an und besprechen Sie Ihren individuellen Plan mit einem Bauberater des Anbieters.
Merkmale
Energiestandard und Förderung
Energiestandard
Effizienzhaus 40
Dach
Dachform
Satteldach
Dachneigung
30°
Preisdetails für Trendline 165 - inkl. Technikanbau
Schlüsselfertig ab
350.044 €
Ausbauhaus ab466.650 €
ab 1.053,78 €
Dieser Preis ist ein Beispiel für den Anfang, ein Berater kann Ihnen ein detailliertes Angebot erstellen, das Ihren Bedürfnissen entspricht.
Möchten Sie bei Ihrem Projekt Geld sparen?
Durch einen Angebotsvergleich mit Immowelt.de können Sie bis zu 20 % Ihrer Baukosten sparen.
Über den Anbieter Suckfüll Energiesparhaus
Zum Anbieterprofil
Bewertungen
3,5
(57)

Bewertungen
3,5
57 BewertungenAkzeptabel
Suckfüll Energiesparhaus in Zahlen
Gründungsjahr
1958
Häuser im Angebot
47
Bewertungen von Suckfüll Energiesparhaus
Herr Krämer hat einen kompetenten Eindruck ge...
Herr Krämer hat einen kompetenten Eindruck gemacht. Das Gespräch war vertrauensvoll und konstruktiv. Das Angebot ist absolut interessant. Suckfüll ist trotz kleinerer Firma eine Bereicherung.
15 Juni 2025Ulrike O.
Suckfull hat ein Online -Video gesendet und a...
Suckfull hat ein Online -Video gesendet und auch Schwabenhaus.
20 Jan. 2024Heike W.
nichts bestimmtes
nichts bestimmtes
02 Aug. 2023Paul B.
Leistungsspektrum
Preisgarantie
Bauzeit Garantie
Individuelle Planung
Blower Door Test
Persönliche Beratung für Ihre individuellen Wünsche
Finden Sie jetzt Ihren Ansprechpartner
Suckfüll Energiesparhaus
Weitere Häuser
Ähnliche Häuser Für Trendline 165 - inkl. Technikanbau