





Einfamilienhaus CLOU 166 von RENSCH-HAUS
Ab 395.620 €
Bewertungen von RENSCH-HAUS
4,2
(241)
Wohnfläche
162 m²
Zimmer
6
Ausbaustufe
Schlüsselfertig
Bauweise
Fertighaus
Etagen
2
Energiestandard
Effizienzhaus 40
Dachform
Satteldach
Hausart
Einfamilienhaus
Beschreibung
Variante mit Eingangsüberdachung
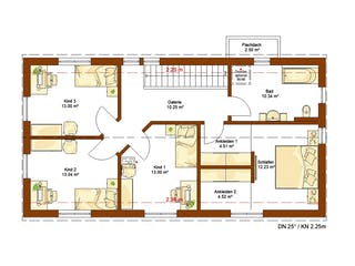
Dieses Hauskonzept funktioniert auch sehr gut auf schmalen Grundstücken. CLOU 166 ist ein schlankes Haus und bietet Platz für große Familien mit 3 bis 4 Kindern. Drei Kinderzimmer (im Dachgeschoss) können auf vier erweitert werden, wenn man das Büro im Erdgeschoss als ein weiteres Kinderzimmer nutzt. Luxus pur: Im Dachgeschoss ist das Elternschlafzimmer mit zwei separaten Ankleidebereichen angeordnet.
Angaben zum Preis: Schlüsselfertig (Preis für Basishaus), ab Oberkante Fundamentplatte gemäß aktueller Bau- und Leistungsbeschreibung Concept.
Merkmale
- Gästezimmer
Grundrissfür CLOU 166
Außenmaße
Länge: 14,01 m
Breite: 7,39 m
Grundrisse
Der Grundriss entspricht nicht Ihren Vorstellungen?
Passen Sie den Grundriss an Ihre persönlichen Bedürfnisse an und besprechen Sie Ihren individuellen Plan mit einem Bauberater des Anbieters.
Merkmale
Energiestandard und Förderung
Energiestandard
Effizienzhaus 40
U-Wert
0,14
Dach
Dachform
Satteldach
Dachneigung
25°
Kniestockhöhe
225 cm
Preisdetails für CLOU 166
Schlüsselfertig ab
395.620 €
ab 1.190,98 €
Dieser Preis ist ein Beispiel für den Anfang, ein Berater kann Ihnen ein detailliertes Angebot erstellen, das Ihren Bedürfnissen entspricht.
Möchten Sie bei Ihrem Projekt Geld sparen?
Durch einen Angebotsvergleich mit Immowelt.de können Sie bis zu 20 % Ihrer Baukosten sparen.
Über den Anbieter RENSCH-HAUS
Zum Anbieterprofil
Bewertungen
4,2
(241)

Bewertungen
4,2
241 BewertungenHervorragend
RENSCH-HAUS in Zahlen
Gründungsjahr
1876
Häuser im Angebot
60
Häuser pro Jahr
ca. 300
Häuser gesamt
ca. 10.500
Mitarbeiter
250
Bewertungen von RENSCH-HAUS
Herr Obendorfer hat uns bislang super zur Sei...
Herr Obendorfer hat uns bislang super zur Seite gestanden.
24 März 2026Florian S.
Sehr engagierter u. netter Berater Hr. Stockerl
Sehr engagierter und freundlicher Berater Hr. Stockerl. Super schnelle Reaktionszeiten auf Mails - prima! Rensch war bei uns in der engeren Wahl, aber irgendwann muss man sich (allein schon aus zeitlichen Gründen) für oder gegen eine Firma entscheiden. Daher fällt Rensch bei uns jetzt vermutlich raus.
21 März 2026Hubert S.
Informelles Gespräch mit interessanten Inform...
Informelles Gespräch mit interessanten Informationen,Zusendung des Hauskataloges mit Preisen zur eigenen Orientierung
19 März 2026Herbert O.
Leistungsspektrum
Preisgarantie
Bauzeit Garantie
Individuelle Planung
Blower Door Test
Persönliche Beratung für Ihre individuellen Wünsche
Finden Sie jetzt Ihren Ansprechpartner
RENSCH-HAUS
Auszeichnungen, Zertifikate & Mitgliedschaften






Ähnliche Häuser Für CLOU 166