







Einfamilienhaus Stadtvilla Aurelio von Kern-Haus
Ab 585.900 €
Bewertungen von Kern-Haus
3,9
(82)
Wohnfläche
213 m²
Zimmer
5
Ausbaustufe
Schlüsselfertig
Bauweise
Massivhaus
Etagen
2
Energiestandard
Effizienzhaus 55 EE
Dachform
Walmdach
Hausart
Einfamilienhaus
Beschreibung
Stadtvilla Aurelio – Luxus mit mediterranem Flair
Luxus mit südländischem Charme: Die Stadtvilla Aurelio bringt mediterranes Flair in jedes Baugebiet. Auf zwei Geschossen finden Sie großzügige Räume, die dem hohen Anspruch an maximalen Wohnkomfort gerecht werden. Die exklusive Architektur wird durch eine Vielzahl an Fenstern bestimmt, die die Innenräume der Stadtvilla zu einem lichtdurchfluteten Wohnerlebnis machen.
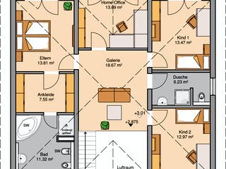
Der große Eingangsbereich, der einen herrlichen Blick auf die Galerie des Obergeschosses bietet, hinterlässt garantiert einen bleibenden Eindruck. Zudem befindet sich im Erdgeschoss das großzügige Wohn- und Esszimmer, die Küche, ein Bad mit Dusche und der Hauswirtschaftsraum mit eigenem, separatem Eingang.
Im Obergeschoss gelangt man von der Galerie in zwei Kinderzimmer mit separatem Bad, in ein Home-Office mit einem direkt angrenzenden Balkon und in das Haupt-Schlafzimmer. An dieses Schlafzimmer grenzt direkt ein Ankleideraum und das eigene Wellness-Badezimmer, dass mit viel Fläche zum Entspannen einlädt.
Um das schlüsselfertige und vollständige Angebot abzurunden, bietet Kern-Haus auf Wunsch die Stadtvilla inklusive der gezeigten Carport-Garagen-Kombination oder weiteren Garagenmöglichkeiten an. Sprechen Sie mit den Baufachberatern über Ihre Wünsche und Vorstellungen. Kern-Haus setzt Ihre Ideen und Träume gerne in die Tat um!
Grundrissfür Stadtvilla Aurelio
Außenmaße
Länge: 12,85 m
Breite: 12,1 m
Grundrisse
Der Grundriss entspricht nicht Ihren Vorstellungen?
Passen Sie den Grundriss an Ihre persönlichen Bedürfnisse an und besprechen Sie Ihren individuellen Plan mit einem Bauberater des Anbieters.
Merkmale
Energiestandard und Förderung
Energiestandard
Effizienzhaus 55 EE
Dach
Dachform
Walmdach
Dachneigung
22°
Preisdetails für Stadtvilla Aurelio
Schlüsselfertig ab
585.900 €
ab 1.763,80 €
Dieser Preis ist ein Beispiel für den Anfang, ein Berater kann Ihnen ein detailliertes Angebot erstellen, das Ihren Bedürfnissen entspricht.
Möchten Sie bei Ihrem Projekt Geld sparen?
Durch einen Angebotsvergleich mit Immowelt.de können Sie bis zu 20 % Ihrer Baukosten sparen.
Über den Anbieter Kern-Haus
Zum Anbieterprofil
Bewertungen
3,9
(82)

Bewertungen
3,9
82 BewertungenGut
Kern-Haus in Zahlen
Gründungsjahr
1980
Häuser im Angebot
59
Mitarbeiter
300
Bewertungen von Kern-Haus
Frau Kuss ist sehr nett und engagiert. Sie ke...
Frau Kuss ist sehr nett und engagiert. Sie kennt das Unternehmen und hat eine ausführliche Bedarfsanalyse durchgeführt.
21 März 2026Julia V.
Mail erhalten, leider war ich selbst schlecht...
Mail erhalten, leider war ich selbst schlecht erreichbar.
16 März 2024Florian W.
Email erhalten
Email erhalten
10 März 2024Ana Cecilia S.
Leistungsspektrum
Preisgarantie
Bauzeit Garantie
Individuelle Planung
Blower Door Test
Persönliche Beratung für Ihre individuellen Wünsche
Finden Sie jetzt Ihren Ansprechpartner
Kern-Haus
Auszeichnungen, Zertifikate & Mitgliedschaften





Ähnliche Häuser Für Stadtvilla Aurelio