




Einfamilienhaus Bela von Fingerhut Haus
Ab 541.336 €
Bewertungen von Fingerhut Haus
4,2
(100)
Wohnfläche
190 m²
Zimmer
6
Ausbaustufe
Schlüsselfertig
Bauweise
Fertighaus
Etagen
2
Energiestandard
Effizienzhaus 55
Dachform
Flachdach
Hausart
Einfamilienhaus
Beschreibung
Alles in Form
Familiärer Individualismus trifft strenge Mathematik – Bei unserem Haus Bela handelt es sich um ein vollkommen geometrischen Wohnkonzept mit individuellen Details.
Zwei stilvolle Flügeltüren sorgen für einen lichtdurchfluteten Wohnraum im Erdgeschoss. Das Esszimmer und die daran angrenzende Küche schließen direkt an das Wohnzimmer an, wodurch alle Räume schnell zu erreichen sind. Das Gesamtbild des Hauses wirkt jedoch großzügig und weitläufig. Auch die Räume im Dachgeschoss sind klar strukturiert. Hier kann sich jeder der Hausbewohner individuell entfalten. In jedem Raum des Hauses sorgen große, bodentiefe Fenster für die moderne und helle Optik.
Angaben zum Preis:
Die gezeigten Abbildungen zeigen zum Teil Sonderleistungen gegen Mehrpreis. Preis der entsprechenden Ausbaustufe inkl. Fingerhut-Bodenplatte und 19 % MwSt. gemäß der Fingerhut-Bau- und Leistungsbeschreibung 1012, Preisliste P05/25.
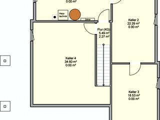
Grundrissfür Bela
Grundrisse
Der Grundriss entspricht nicht Ihren Vorstellungen?
Passen Sie den Grundriss an Ihre persönlichen Bedürfnisse an und besprechen Sie Ihren individuellen Plan mit einem Bauberater des Anbieters.
Merkmale
Energiestandard und Förderung
Energiestandard
Effizienzhaus 40
Effizienzhaus 40 Plus
Effizienzhaus 55
Plusenergiehaus
U-Wert
0,14
Dach
Dachform
Flachdach
Preisdetails für Bela
Schlüsselfertig ab
541.336 €
Ausbauhaus ab368.043 €
ab 1.629,65 €
Dieser Preis ist ein Beispiel für den Anfang, ein Berater kann Ihnen ein detailliertes Angebot erstellen, das Ihren Bedürfnissen entspricht.
Möchten Sie bei Ihrem Projekt Geld sparen?
Durch einen Angebotsvergleich mit Immowelt.de können Sie bis zu 20 % Ihrer Baukosten sparen.
Über den Anbieter Fingerhut Haus
Zum Anbieterprofil
Bewertungen
4,2
(100)

Bewertungen
4,2
100 BewertungenHervorragend
Fingerhut Haus in Zahlen
Gründungsjahr
1903
Häuser im Angebot
100
Mitarbeiter
145
Bewertungen von Fingerhut Haus
Tolle Qualität, Transparenz. Werden jedoch d...
Tolle Qualität, Transparenz. Werden jedoch das alte Haus nicht abreißen lassen sondern Sanieren. Das spart viel Geld.
15 März 2026Martina W.
Sehr nette und kompetente Beratung.
Sehr nette und kompetente Beratung.
01 Feb. 2026Torsten D.
kein kommentar
kein kommentar
10 Jan. 2026Bernd W.
Leistungsspektrum
Finanzierungsberatung
Preisgarantie
Bauzeit Garantie
Individuelle Planung
Blower Door Test
Persönliche Beratung für Ihre individuellen Wünsche
Finden Sie jetzt Ihren Ansprechpartner
Fingerhut Haus
Ähnliche Häuser Für Bela