


Zweifamilienhaus Zweifamilienhaus ZH185 Basis von Baudirekt Architektenhäuser
Preis auf Anfrage
Bewertungen von Baudirekt Architektenhäuser
4,0
(26)
Wohnfläche
186 m²
Zimmer
6
Ausbaustufe
Schlüsselfertig
Bauweise
Massivhaus
Etagen
2
Energiestandard
Effizienzhaus 55
Dachform
Zeltdach
Hausart
Zweifamilienhaus
Beschreibung
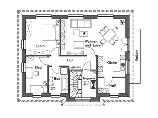
Sie möchten eine zweite Wohnung in Ihrem Einfamilienhaus integrieren, um diese zu vermieten oder um die Großeltern bzw. erwachsene Kinder im Haus zu haben? Dann ist die Massiv-Hausidee ZH 185 die richtige Lösung. Die zwei beinah gleich großen Wohnungen sind über ein abgeschlossenes Treppenhaus erreichbar, wodurch die gewünschte Privatsphäre sichergestellt wird. Mit jeweils 3 Zimmern auf rund 93 m² je Wohnung ist das ZH 185 eine ausgereifte Massiv-Hausidee, die zwei Parteien harmonisch unter einem Dach leben lässt.
Grundrissfür Zweifamilienhaus ZH185 Basis
Außenmaße
Länge: 12,29 m
Breite: 9,91 m
Grundrisse
Der Grundriss entspricht nicht Ihren Vorstellungen?
Passen Sie den Grundriss an Ihre persönlichen Bedürfnisse an und besprechen Sie Ihren individuellen Plan mit einem Bauberater des Anbieters.
Merkmale
Energiestandard und Förderung
Energiestandard
Effizienzhaus 55
Dach
Dachform
Zeltdach
Preisdetails für Zweifamilienhaus ZH185 Basis
Schlüsselfertig ab
Preis auf Anfrage
Dieser Preis ist ein Beispiel für den Anfang, ein Berater kann Ihnen ein detailliertes Angebot erstellen, das Ihren Bedürfnissen entspricht.
Möchten Sie bei Ihrem Projekt Geld sparen?
Durch einen Angebotsvergleich mit Immowelt.de können Sie bis zu 20 % Ihrer Baukosten sparen.
Über den Anbieter Baudirekt Architektenhäuser
Zum Anbieterprofil
Bewertungen
4,0
(26)

Bewertungen
4,0
26 BewertungenGut
Baudirekt Architektenhäuser in Zahlen
Gründungsjahr
1995
Häuser im Angebot
64
Häuser pro Jahr
> 100
Mitarbeiter
51-100
Bewertungen von Baudirekt Architektenhäuser
Gute Beratung. Alles sehr transparent. Unsich...
Gute Beratung. Alles sehr transparent. Unsicher, ob Fertigstellungstermin auch eingehalten wird.
04 Apr. 2026Bernd D.
Gute Beratung. Günstiger Preis in guter Qualität.
Gute Beratung.
21 März 2026Bernd D.
Keine Rückmeldung
Erst einen Termin doppelt belegt, dann sollte ein neuer Termin vereinbart werden. Kein weiterer Kontakt
31 Jan. 2026Tom S.
Persönliche Beratung für Ihre individuellen Wünsche
Finden Sie jetzt Ihren Ansprechpartner
Baudirekt Architektenhäuser
Weitere Häuser
Beliebte Häuser von Baudirekt Architektenhäuser
Ähnliche Häuser Für Zweifamilienhaus ZH185 Basis